Full Description
THREE BEDROOM COTTAGE STYLE DETACHED HOUSE, situated in the popular village of Cretingham, with farmland views to the rear.
Built in the 1990's this property offers character throughout but without the maintenance that comes with the age of the old listed properties. The accommodation offers space and a feeling of light, with a partly vaulted entrance hall leading into a sitting room with inglenook fireplace, the handmade kitchen is of a good size with space for dining, there is also the benefit of a cloakroom, utility room and study. On the first floor, there are three bedrooms and a white family bathroom suite, with views either over the street or farmland views from the rear windows.
Benefits include oil fired heating system and double glazed windows, the garage has recently been converted to a high standard and is now incorporated as a games room/separate family space.
FULL DETAILS AND APPROXIMATE ROOM SIZES ARE AS FOLLOWS:
Enclosed Entrance Porch:
Composite door with window to side aspect, wooden floor, door to:
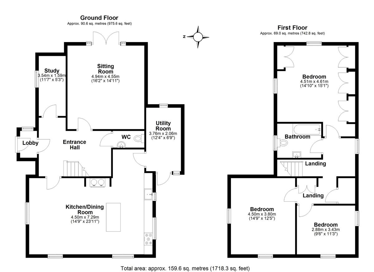
Entrance Hall: 15' x 8'7" (4.57m x 2.65m)
With Staircase to first floor, partially vaulted with ceiling timbers. Radiator, pamment tiled flooring, doors to sitting room, office, kitchen and door to:
Cloakroom:
Comprising of a white suite with low level w.c., pedestal wash hand basin, tile splash backs and built-in cupboard.
Study: 11'5" x 5'1" (3.50m x 1.55m)
Window to the front aspect, radiator, wood effect floor.
Sitting Room: 15' x 16'1" (4.57m x 4.90m)
Feature inglenook fireplace with oak bressumer over and wood burning stove on raised herringbone red brick hearth, radiator, exposed wooden floorboards and ceiling timbers, French doors open out to the terrace with views over farmland beyond.
Kitchen/Dining Room: 23'9" x 14'10" (7.28m x 4.29m)
Comprehensively fitted with a handmade kitchen, comprising matching range of base units under English Elm worktop incorporating a recessed Belfast sink with brass taps over. Range cooker with stainless steel extractor hood over and wine rack to side. A large kitchen island with breakfast bar, Carrara quartz worktop and storage space under. Royal blue oil fired Rayburn with two cast iron plates and two ovens which also supplements the heating and hot water, plumbing for dishwasher, exposed ceiling beams, recessed spotlighting and pamment tile floor with two radiators. This room offers a triple aspect with windows to the front, side and rear making it a light and airy space incorporating the kitchen with a sizeable space to dine.
Utility Room: 12'4" x 6'10" (3.77m x 1.85m)
Fitted with a matching range of high and low level units with roll top work surface incorporating a one and a half stainless steel sink and drainer with mixer tap over. Plumbing for washing machine and space for further appliances. Pamment flooring and radiator, window to rear aspect and door to the exterior with window to the side.
First Floor Landing:
With built-in storage cupboards, airing cupboard housing pressurised water cylinder with shelving, window
to rear aspect, radiator, doors to all first floor accommodation.
Bedroom One: 17'4" x 14'7" (5.30m x 4.48m)
With exposed ceiling timbers, window to front and rear aspects, eaves storage, radiator, countryside views.
Bedroom Two: 14'9" x 11'10" (4.54m x 3.38m)
With built-in wardrobe and storage cupboard with drawers to side, exposed ceiling timbers, radiator, windows
to front and side.
Bedroom Three: 11'6" x 9'6" (3.53m x 2.92m)
With exposed timbers, radiator, window to side and window to rear with stunning farmland views.
Family Bathroom: 8'6" x 6'7" (2.62m x 2.04m)
Comprising panelled bath with mains fed drencher shower over, integrated controls with tiled surround
and splash screen, close coupled WC, pedestal wash hand basin with h&c over, tiled splash back. Heated chrome towel radiator, extractor fan, recessed lighting.
OUTSIDE:
A shared access splay leads onto the drive of Beehive Cottage which provides an off-road parking area.
There is a DETACHED CONVERTED SINGLE GARAGE: 20' x 11'1" with roller shutter door to front, personal door and window to side, power and light connected, the space is now used as a games room.
The garden at the front of the cottage has foliage to the sides and is enclosed by hedged and fenced boundaries. An expanse of gravel provides off-road parking and there are flower borders and trellis screening the oil tank.
A wooden gate opens onto the rear paved terrace which is situated behind the property. Steps lead up to the lawn which also has a variety of mature shrubs and trees, enclosed by hedging and fencing to the boundaries.
There is also a black weather boarded timber shed with pantile roof.
The garden has an open aspect to the rear with stunning views over farmland.
Mid Suffolk District Council - Tax Band 'E'
Freehold - EPC rating: D
Regulations 2017 - Under Money Laundering, Terrorist Financing and Transfer of Funds
As Estate Agents, we are required to obtain identification from buyers/sellers in the form of either the photo page of a driving licence or passport, the document must still be valid for use. In addition, we will request proof of address in the form of a utility bill (with the name and address of the buyer clearly marked within the document).
This must not be more than three months old.
Under the terms of the regulations, we are also required to clarify, where the purchase funds will be obtained from.
Council Tax Band: E
Tenure: Freehold
Electricity supply: Mains
Heating: Oil
Water supply: Mains
Sewerage: Mains
Viewing
Please contact us on 01728 860699 if you wish to arrange a viewing appointment for this property, or require further information.
Energy Performance Certificate
Click here to view the Energy Efficiency Rating and Environmental Impact Rating for this property.
Hamilton Smith - IP16 endeavour to maintain accurate depictions of properties in Virtual Tours, Floor Plans and descriptions, however, these are intended only as a guide and purchasers must satisfy themselves by personal inspection.
Built in the 1990's this property offers character throughout but without the maintenance that comes with the age of the old listed properties. The accommodation offers space and a feeling of light, with a partly vaulted entrance hall leading into a sitting room with inglenook fireplace, the handmade kitchen is of a good size with space for dining, there is also the benefit of a cloakroom, utility room and study. On the first floor, there are three bedrooms and a white family bathroom suite, with views either over the street or farmland views from the rear windows.
Benefits include oil fired heating system and double glazed windows, the garage has recently been converted to a high standard and is now incorporated as a games room/separate family space.
FULL DETAILS AND APPROXIMATE ROOM SIZES ARE AS FOLLOWS:
Enclosed Entrance Porch:
Composite door with window to side aspect, wooden floor, door to:
Entrance Hall: 15' x 8'7" (4.57m x 2.65m)
With Staircase to first floor, partially vaulted with ceiling timbers. Radiator, pamment tiled flooring, doors to sitting room, office, kitchen and door to:
Cloakroom:
Comprising of a white suite with low level w.c., pedestal wash hand basin, tile splash backs and built-in cupboard.
Study: 11'5" x 5'1" (3.50m x 1.55m)
Window to the front aspect, radiator, wood effect floor.
Sitting Room: 15' x 16'1" (4.57m x 4.90m)
Feature inglenook fireplace with oak bressumer over and wood burning stove on raised herringbone red brick hearth, radiator, exposed wooden floorboards and ceiling timbers, French doors open out to the terrace with views over farmland beyond.
Kitchen/Dining Room: 23'9" x 14'10" (7.28m x 4.29m)
Comprehensively fitted with a handmade kitchen, comprising matching range of base units under English Elm worktop incorporating a recessed Belfast sink with brass taps over. Range cooker with stainless steel extractor hood over and wine rack to side. A large kitchen island with breakfast bar, Carrara quartz worktop and storage space under. Royal blue oil fired Rayburn with two cast iron plates and two ovens which also supplements the heating and hot water, plumbing for dishwasher, exposed ceiling beams, recessed spotlighting and pamment tile floor with two radiators. This room offers a triple aspect with windows to the front, side and rear making it a light and airy space incorporating the kitchen with a sizeable space to dine.
Utility Room: 12'4" x 6'10" (3.77m x 1.85m)
Fitted with a matching range of high and low level units with roll top work surface incorporating a one and a half stainless steel sink and drainer with mixer tap over. Plumbing for washing machine and space for further appliances. Pamment flooring and radiator, window to rear aspect and door to the exterior with window to the side.
First Floor Landing:
With built-in storage cupboards, airing cupboard housing pressurised water cylinder with shelving, window
to rear aspect, radiator, doors to all first floor accommodation.
Bedroom One: 17'4" x 14'7" (5.30m x 4.48m)
With exposed ceiling timbers, window to front and rear aspects, eaves storage, radiator, countryside views.
Bedroom Two: 14'9" x 11'10" (4.54m x 3.38m)
With built-in wardrobe and storage cupboard with drawers to side, exposed ceiling timbers, radiator, windows
to front and side.
Bedroom Three: 11'6" x 9'6" (3.53m x 2.92m)
With exposed timbers, radiator, window to side and window to rear with stunning farmland views.
Family Bathroom: 8'6" x 6'7" (2.62m x 2.04m)
Comprising panelled bath with mains fed drencher shower over, integrated controls with tiled surround
and splash screen, close coupled WC, pedestal wash hand basin with h&c over, tiled splash back. Heated chrome towel radiator, extractor fan, recessed lighting.
OUTSIDE:
A shared access splay leads onto the drive of Beehive Cottage which provides an off-road parking area.
There is a DETACHED CONVERTED SINGLE GARAGE: 20' x 11'1" with roller shutter door to front, personal door and window to side, power and light connected, the space is now used as a games room.
The garden at the front of the cottage has foliage to the sides and is enclosed by hedged and fenced boundaries. An expanse of gravel provides off-road parking and there are flower borders and trellis screening the oil tank.
A wooden gate opens onto the rear paved terrace which is situated behind the property. Steps lead up to the lawn which also has a variety of mature shrubs and trees, enclosed by hedging and fencing to the boundaries.
There is also a black weather boarded timber shed with pantile roof.
The garden has an open aspect to the rear with stunning views over farmland.
Mid Suffolk District Council - Tax Band 'E'
Freehold - EPC rating: D
Regulations 2017 - Under Money Laundering, Terrorist Financing and Transfer of Funds
As Estate Agents, we are required to obtain identification from buyers/sellers in the form of either the photo page of a driving licence or passport, the document must still be valid for use. In addition, we will request proof of address in the form of a utility bill (with the name and address of the buyer clearly marked within the document).
This must not be more than three months old.
Under the terms of the regulations, we are also required to clarify, where the purchase funds will be obtained from.
Council Tax Band: E
Tenure: Freehold
Electricity supply: Mains
Heating: Oil
Water supply: Mains
Sewerage: Mains
Viewing
Please contact us on 01728 860699 if you wish to arrange a viewing appointment for this property, or require further information.
Energy Performance Certificate
Click here to view the Energy Efficiency Rating and Environmental Impact Rating for this property.
Hamilton Smith - IP16 endeavour to maintain accurate depictions of properties in Virtual Tours, Floor Plans and descriptions, however, these are intended only as a guide and purchasers must satisfy themselves by personal inspection.

