- Rear Garden
- Parking
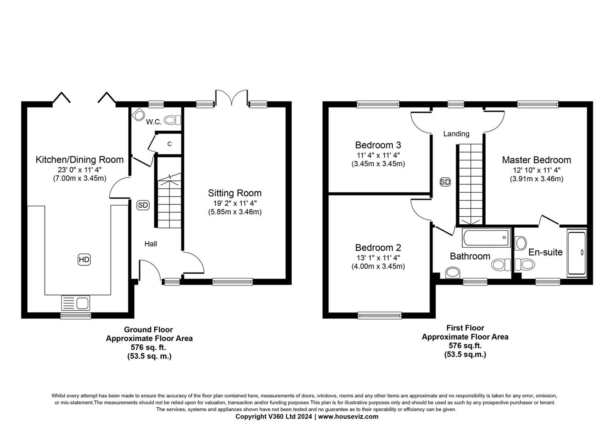
- Three Bedrooms
- Gas Central Heating
- Brand New Detached House
Full Description
Kitchen: Range of kitchen choices with solid worktops on certain plots
Single Oven, 4 burner hob and extractor fan fitted, integrated dishwasher and fridge freezer on certain plots
Plumbing for washing machine Howdens kitchens Clerkenwell Gloss as standard range included.
Camaro flooring to all wet areas (kitchen, utility, en-suite, bathroom and cloakrooms) only
electrical: Recessed LED downlights to kitchen areas and bathrooms
Outside lighting to front and rear on certain plots
Double socket outlets
plumbing and heating: Air Source Heat Pump central heating to underfloor ground floor & radiators first floor.
White sanitaryware throughout with chrome-effect mixer taps plus white bath panel and matching seat
Outside tap where possible
carpentry: Molded skirting and architraves painted white
White painted staircase with oak handrail
Suffolk Oak doors with chrome effect handles
ceilings:
Ceilings smooth throughout
walls/tiling: Kitchen - worktop upstand and choice ofstainless steel or glass splashback to ovens*
Bathroom - half-height all round and full height to bath and shower areas
En-Suite with bath - full-height to shower cubicle and half-height all around*
Cloakroom - half height all round
other items/garden: Close boarded fencing/post and rail fencing where applicable
UPVc windows with aluminum bio-folds and composite part glazed front door
Rear garden cleared, rotavated and topsoiled where applicable
All internal walls painted white
Driveways in 3 sized tegula paving blocks
warranty:
Professional consultants certificate - valid for 6 years
reservations: Secure your preferred plot by contacting the us on, complete the reservation agreement and reserve your preferred plot by
payment of a non refundable £1000. T & c's full details and a sample reservation can be provided once an offer has been agreed.
Note: Manufacturers, suppliers, appliances, materials and colours are all subject to variation.
Agents note:
gci Images used for other properties on site.
Carpets not included.
Viewing
Please contact us on 01449 722242 if you wish to arrange a viewing appointment for this property, or require further information.
Hamilton Smith - IP16 endeavour to maintain accurate depictions of properties in Virtual Tours, Floor Plans and descriptions, however, these are intended only as a guide and purchasers must satisfy themselves by personal inspection.

