- No chain
- Built in storage
- Well presented throughout
- Parking
- 2 Bedroom End Terrace
- Enclosed garden
- Ensuite shower room
- Bathroom
- Cloakroom
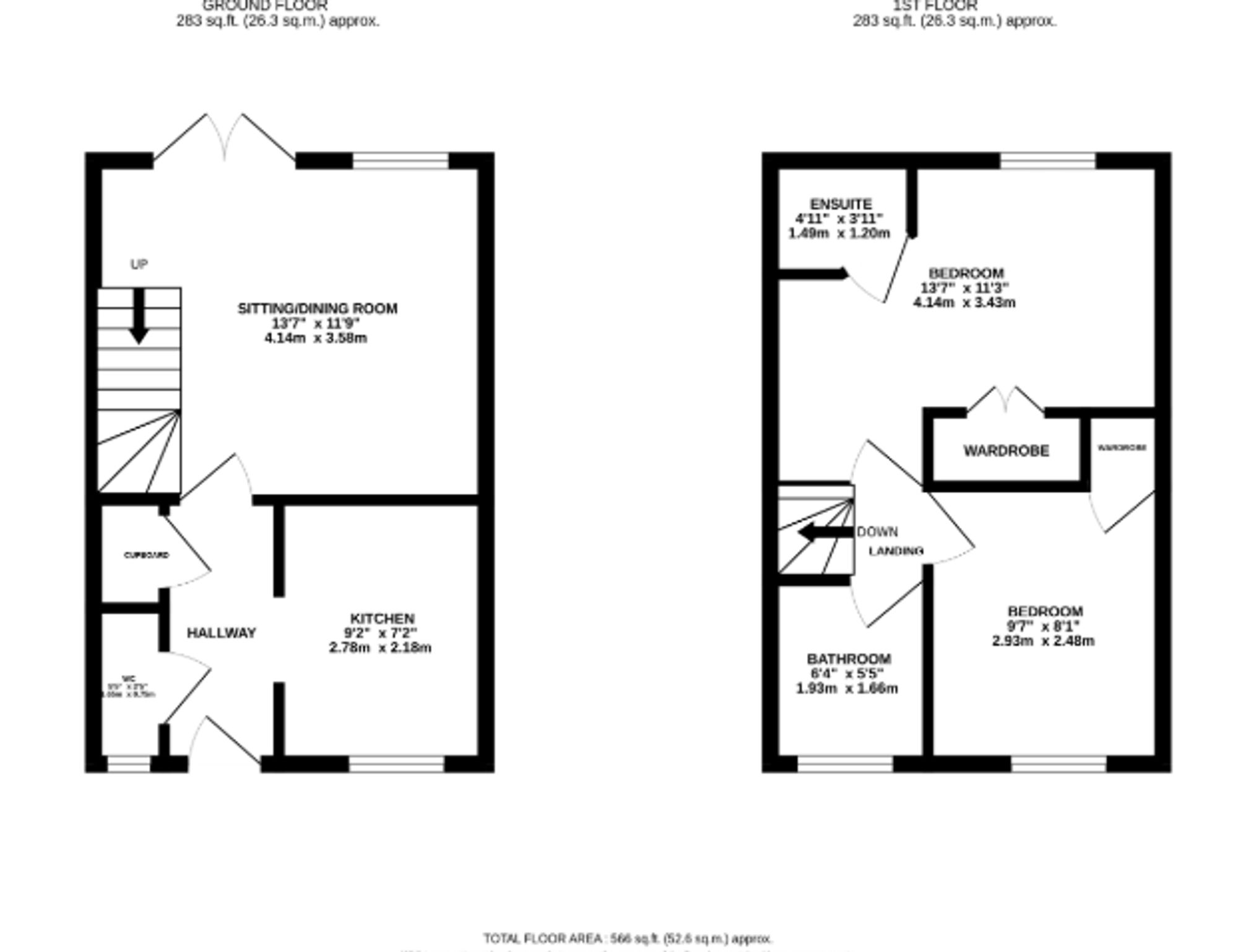
Full Description
This attractive two-bedroom end-of-terrace house offers an ideal opportunity for first-time buyers or buy-to-let investors, benefiting from a low-maintenance front garden, covered storm porch, enclosed rear garden, and two allocated parking spaces. The property is well laid out with modern conveniences including gas central heating, a fitted kitchen, downstairs WC, and an en-suite shower room to the main bedroom.
Accommodation
Storm Porch
Covered entrance porch leading to a timber front door.
Entrance Hallway
A welcoming inner hallway with radiator, useful understairs storage cupboard, and access to the ground-floor accommodation.
Kitchen
Positioned to the front of the property and fitted with a range of high and low-level units with tiled splashbacks. Features include an integrated electric oven, hob with extractor hood above, space for a washing machine and tall fridge/freezer, and a wall-mounted gas combi boiler. Front-facing window provides natural light.
Downstairs WC
Convenient cloakroom with front-facing window, WC, wash hand basin, and radiator.
Living / Dining Room
A bright and spacious reception room featuring windows and double doors opening onto the rear garden, radiator, and an attractive fireplace with wooden mantel and marble-effect hearth - creating a cosy focal point.
First Floor
Landing
Providing access to both bedrooms and the family bathroom.
Bedroom One
A generous double bedroom located to the rear of the property, with radiator, built-in storage cupboards, and access to the en-suite shower room.
En-Suite Shower Room
Comprising a corner shower cubicle, WC, pedestal wash hand basin, heated towel rail, partially tiled walls, and window.
Bedroom Two
A well-proportioned bedroom with window to the front aspect and radiator.
Family Bathroom
Fitted with a panelled bath, WC, and pedestal wash hand basin, partially tiled walls, and front-facing window.
Outside
Front Garden
Low-maintenance frontage with covered storm porch.
Rear Garden
Fully enclosed and mainly laid to lawn with a patio seating area and pathway leading to a large storage shed with power connected - ideal for hobbies, storage, or a small workshop.
A rear gate provides direct access to the parking area where there are two allocated parking spaces.
Location - Rendlesham
Rendlesham is a well-served and highly desirable village offering a village store, dental practice, primary school, and the historic Church of St Gregory. The stunning Rendlesham Forest is right on the doorstep, providing miles of scenic walking and cycling routes.
Nearby riverside towns and villages such as Orford, Snape, and Aldeburgh offer a wide range of leisure pursuits including sailing, restaurants, traditional public houses, and the renowned Snape Maltings Concert Hall.
The larger market town of Woodbridge provides extensive shopping, commercial, and entertainment facilities, along with a branch line railway station offering services to London Liverpool Street via Ipswich. A further station is located at nearby Campsea Ashe.
EPC Rating: C
Council Tax Band
B
Local Council
East Suffolk House, Station Road, Melton, Woodbridge, IP12 1RT
Agents Note
Items depicted in the photographs are not necessarily included in the sale. The parking space is at the rear of the property.
Services
Electricity, Gas, mains drains and water are connected to the property.
Viewing
Please contact us on 01728 833007 if you wish to arrange a viewing appointment for this property, or require further information.
Hamilton Smith - IP16 endeavour to maintain accurate depictions of properties in Virtual Tours, Floor Plans and descriptions, however, these are intended only as a guide and purchasers must satisfy themselves by personal inspection.

