- 3 Bedroom mid terrace
- Kitchen/ Dining room
- Spacious living room with large window
- Deceptively spacious
- Semi rural location
- Off road parking
- Well kept garden
Full Description
This spacious and well-presented three-bedroom terraced house enjoys a desirable semi-rural position and benefits from off-road parking for two vehicles. The property offers generous living space throughout, with a well-maintained rear garden perfect for outdoor entertaining.
This spacious and well-presented three-bedroom terraced house enjoys a desirable semi-rural position and benefits from off-road parking for two vehicles. The property offers generous living space throughout, with a well-maintained rear garden perfect for outdoor entertaining.
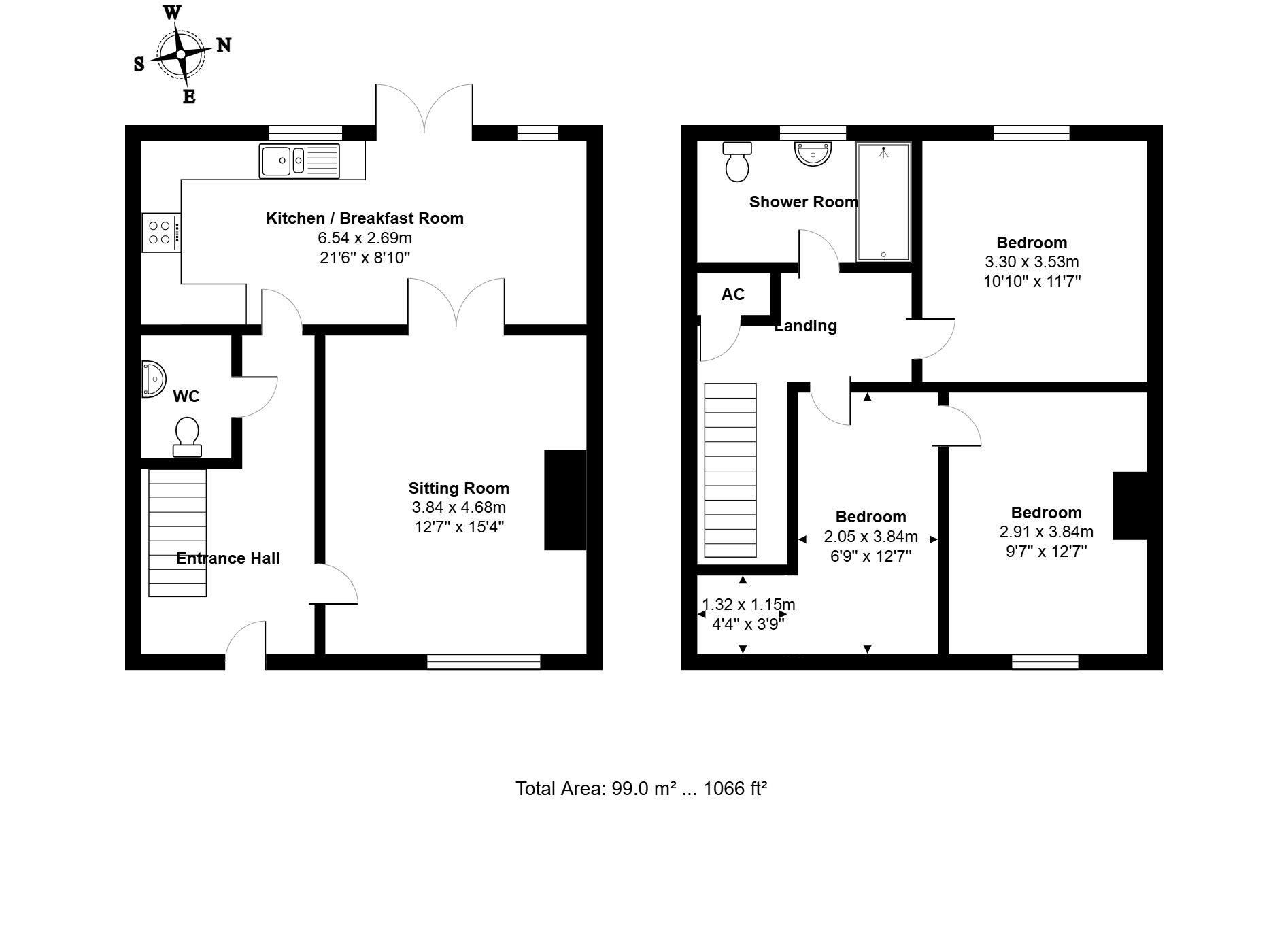
Upon entering the property, a glazed front door opens into a welcoming and spacious inner hallway.
The hallway features a radiator and a staircase rising to the first floor.
There is also access to a large cloakroom, fitted with a WC, wash hand basin, radiator, and tiled flooring. The cloakroom offers ample space and the potential to install a shower cubicle if desired.
The living room is a bright and airy space, centred around a charming feature fireplace with a wooden mantle and tiled hearth. A large front-facing window allows for plenty of natural light, while two radiators ensure comfort throughout the seasons. Double doors lead seamlessly from the living room into the kitchen/dining room.
The kitchen/dining room is well-fitted with a range of high and low-level units, complemented by a rolled-edge work surface and tiled splashbacks. A double-drainer stainless steel sink with a mixer tap sits beneath a rear-facing window, while additional double doors provide direct access to the garden. There is space and plumbing for a dishwasher, washing machine, and an under-counter fridge. The kitchen houses the oil-fired boiler and features a practical tiled floor, with a radiator to complete the space.
The first-floor landing is generously sized and includes a radiator and a large storage cupboard. The landing leads to the three bedrooms and the shower room.
The principal bedroom is a spacious double room with a window overlooking the rear garden. It features a radiator and offers a calm and comfortable retreat.
The second bedroom is another double room, positioned at the front of the house. It benefits from a window with a pleasant outlook, a radiator, and access to the loft via a ceiling hatch.
The third bedroom, also situated at the front, is a good-sized single room with a window and radiator, ideal for use as a bedroom, study, or nursery.
The modern shower room is fitted with a large walk-in cubicle and electric shower, a pedestal wash basin, WC, heated towel rail, and part-tiled walls. A window to the rear brings in natural light and ventilation.
Externally, the property features off-road parking for two vehicles at the front. The rear garden is beautifully maintained, with a large patio seating area perfect for entertaining. The garden is mainly laid to lawn, with well-manicured borders, mature trees, and established shrubs. There is also a useful timber storage shed for garden equipment.
Overall, this attractive home offers spacious accommodation in a peaceful setting, while remaining conveniently located for local amenities and countryside walks.
COUNCIL TAX BAND C
LOCAL COUNCIL East Suffolk House, Station Road, Melton, Woodbridge, IP12 1RT
SERVICES Electricity, Oil, mains drains and water are connected to the property.
AGENTS NOTE Items depicted in the photographs are not necessarily included in the sale.
Please be aware that there are various infrastructure projects proposed for east Suffolk including plans for a new nuclear power station at Sizewell. Wind farm expansion in the North Sea is also taking place and bringing power ashore along with associated cabling and substation works are also being proposed.
LOCATION The village is situated between Leiston and Yoxford and has easy access to the beautiful Suffolk Heritage Coast and the A12. The village benefits from a popular pub and a parish church. There are numerous coastal attractions within easy reach including Thorpeness and Aldeburgh, both of which have golf courses and a good selection of pubs and restaurants. Aldeburgh also has an excellent range of shops. RSPB Minsmere and Dunwich are both nearby, offering some lovely heathland walks. There is branch line rail service at Darsham and Saxmundham connecting to London.
Viewing
Please contact us on 01728 833007 if you wish to arrange a viewing appointment for this property, or require further information.
Energy Performance Certificate
Click here to view the Energy Efficiency Rating and Environmental Impact Rating for this property.
Hamilton Smith - IP16 endeavour to maintain accurate depictions of properties in Virtual Tours, Floor Plans and descriptions, however, these are intended only as a guide and purchasers must satisfy themselves by personal inspection.
This spacious and well-presented three-bedroom terraced house enjoys a desirable semi-rural position and benefits from off-road parking for two vehicles. The property offers generous living space throughout, with a well-maintained rear garden perfect for outdoor entertaining.
Upon entering the property, a glazed front door opens into a welcoming and spacious inner hallway.
The hallway features a radiator and a staircase rising to the first floor.
There is also access to a large cloakroom, fitted with a WC, wash hand basin, radiator, and tiled flooring. The cloakroom offers ample space and the potential to install a shower cubicle if desired.
The living room is a bright and airy space, centred around a charming feature fireplace with a wooden mantle and tiled hearth. A large front-facing window allows for plenty of natural light, while two radiators ensure comfort throughout the seasons. Double doors lead seamlessly from the living room into the kitchen/dining room.
The kitchen/dining room is well-fitted with a range of high and low-level units, complemented by a rolled-edge work surface and tiled splashbacks. A double-drainer stainless steel sink with a mixer tap sits beneath a rear-facing window, while additional double doors provide direct access to the garden. There is space and plumbing for a dishwasher, washing machine, and an under-counter fridge. The kitchen houses the oil-fired boiler and features a practical tiled floor, with a radiator to complete the space.
The first-floor landing is generously sized and includes a radiator and a large storage cupboard. The landing leads to the three bedrooms and the shower room.
The principal bedroom is a spacious double room with a window overlooking the rear garden. It features a radiator and offers a calm and comfortable retreat.
The second bedroom is another double room, positioned at the front of the house. It benefits from a window with a pleasant outlook, a radiator, and access to the loft via a ceiling hatch.
The third bedroom, also situated at the front, is a good-sized single room with a window and radiator, ideal for use as a bedroom, study, or nursery.
The modern shower room is fitted with a large walk-in cubicle and electric shower, a pedestal wash basin, WC, heated towel rail, and part-tiled walls. A window to the rear brings in natural light and ventilation.
Externally, the property features off-road parking for two vehicles at the front. The rear garden is beautifully maintained, with a large patio seating area perfect for entertaining. The garden is mainly laid to lawn, with well-manicured borders, mature trees, and established shrubs. There is also a useful timber storage shed for garden equipment.
Overall, this attractive home offers spacious accommodation in a peaceful setting, while remaining conveniently located for local amenities and countryside walks.
COUNCIL TAX BAND C
LOCAL COUNCIL East Suffolk House, Station Road, Melton, Woodbridge, IP12 1RT
SERVICES Electricity, Oil, mains drains and water are connected to the property.
AGENTS NOTE Items depicted in the photographs are not necessarily included in the sale.
Please be aware that there are various infrastructure projects proposed for east Suffolk including plans for a new nuclear power station at Sizewell. Wind farm expansion in the North Sea is also taking place and bringing power ashore along with associated cabling and substation works are also being proposed.
LOCATION The village is situated between Leiston and Yoxford and has easy access to the beautiful Suffolk Heritage Coast and the A12. The village benefits from a popular pub and a parish church. There are numerous coastal attractions within easy reach including Thorpeness and Aldeburgh, both of which have golf courses and a good selection of pubs and restaurants. Aldeburgh also has an excellent range of shops. RSPB Minsmere and Dunwich are both nearby, offering some lovely heathland walks. There is branch line rail service at Darsham and Saxmundham connecting to London.
Viewing
Please contact us on 01728 833007 if you wish to arrange a viewing appointment for this property, or require further information.
Energy Performance Certificate
Click here to view the Energy Efficiency Rating and Environmental Impact Rating for this property.
Hamilton Smith - IP16 endeavour to maintain accurate depictions of properties in Virtual Tours, Floor Plans and descriptions, however, these are intended only as a guide and purchasers must satisfy themselves by personal inspection.