- Five bedroom detached
- Garage and parking
- Master with En-Suite
- South facing garden
Full Description
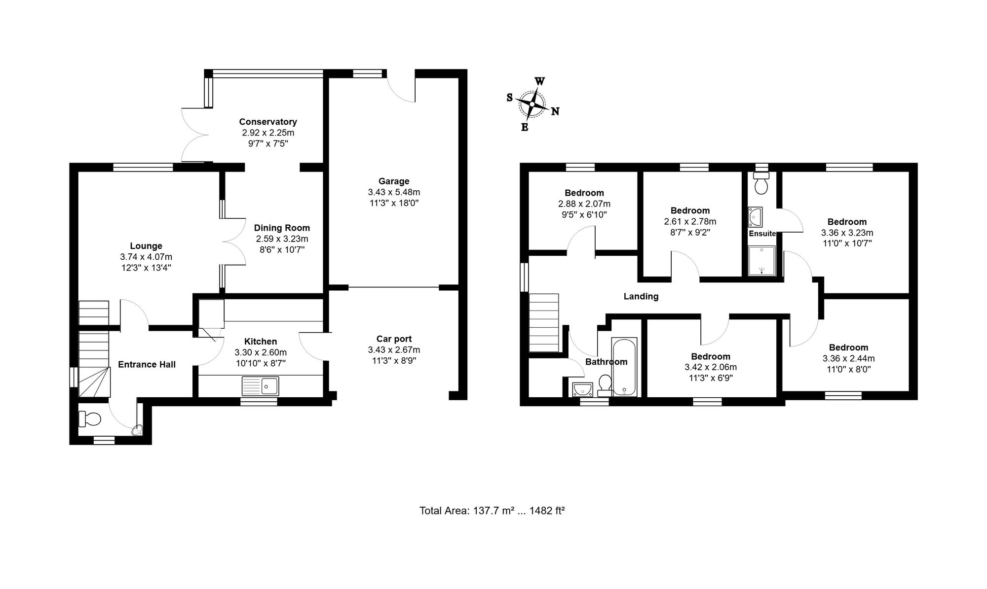
Located in a popular residential area of Stowmarket, this well-proportioned four-bedroom detached house with a garage and car port offers versatile living accommodation, ideal for families or professionals. The property is set back from the road with a shingled front garden and off-road parking. It benefits from a south-facing rear garden, a conservatory, and spacious internal layout.
Front of the Property
To the front is a shingled garden with a concrete path leading to the main entrance. There is a single parking space to the right-hand side, adjacent to the garage, and a covered car port offering additional sheltered parking.
Entrance Hallway
A compact yet functional entrance hall fitted with wood-effect flooring provides access to the kitchen and downstairs W/C, with stairs rising to the first floor.
Downstairs W/C
Situated just off the hallway, the ground floor cloakroom includes a white toilet and matching sink with a frosted double-glazed window facing the front.
Kitchen - 2.5m x 3.2m
Positioned at the front of the property, the kitchen features a range of high and low level units with white fleck effect work surfaces and matching splashbacks. The flooring is a tiled-effect finish, and a grey sink with drainer is installed beneath a double-glazed window to the front. There is space for a freestanding oven, and a built-in under-counter fridge is included. A double-glazed door provides side access to the exterior.
Living Room - 3.74m x 4.10m
This bright and comfortable living space is located at the rear of the home, with wood-effect laminate flooring and off-white painted walls. A large window overlooks the rear garden, with a white wall-mounted radiator positioned below. Double wooden doors open through to the dining room.
Dining Room - 3.22m x 3.54m
Accessed from the living room, the dining area features beige wood-effect laminate flooring and neutral décor. A sealed serving hatch connects to the kitchen. The space is warmed by a wall-mounted white radiator and has direct access to the conservatory.
Conservatory - 2.2m x 2.9m
The conservatory extends the living space and is finished with laminate flooring to match the dining room. Painted in a neutral tone, it features double-glazed windows on all sides and twin doors leading out to the garden.
Upstairs Hallway - 0.8m x 7.58m
A long and narrow upstairs hallway provides access to all four bedrooms and the family bathroom. It is fitted with grey-fleck carpet and painted blue, with two separate loft access points.
Master Bedroom - 3.19m x 3.34m
The spacious master bedroom overlooks the rear garden and is fitted with grey-fleck carpet and light purple painted walls. A large triple-opening window lets in plenty of natural light, and a white wall radiator is positioned beneath.
En-Suite
The en-suite shower room is fully tiled from floor to ceiling in a marble effect. It includes a small hand basin with storage beneath, a white plunger-flush toilet, and an enclosed shower cubicle with a glass door and electric shower unit.
First Bedroom - 2.06m x 2.85m
This single bedroom has laminate flooring, light blue painted walls, and a rear-facing window. A white wall-mounted radiator provides heating.
Second Bedroom - 2.7m x 2.6m
Also rear-facing, this bedroom features grey laminate flooring and light purple walls. The room includes a black-painted radiator.
Third Bedroom - 2.19m x 3.33m
Fitted with brown carpet and blue walls, this rear-facing bedroom includes a white radiator beneath the window.
Fourth Bedroom - 2.59m x 3.47m
Located at the front of the property, this double bedroom is decorated in grey tones with matching grey-fleck carpet and a grey painted wall radiator.
A window faces the front aspect.
Rear Garden
The enclosed south-facing rear garden is a lovely outdoor space, perfect for relaxing or entertaining. Directly outside the conservatory is a raised decking area which leads onto a second sun deck. A central grassed section is surrounded by shingle borders, and a built pagoda with slab base completes the garden.
Garage and Car Port
The single garage features a concrete floor and open brick walls, with various electrical points throughout. Access is via a white up-and-over garage door. The adjoining car port provides additional sheltered parking or storage space.
Location: Stowmarket
Stowmarket is a thriving market town in Suffolk, offering excellent transport links via the A14 and a direct train line to London Liverpool Street. The town provides a full range of amenities including supermarkets, schools, healthcare facilities, and a leisure centre. There is also a regular local market and a selection of cafes, restaurants, and independent shops, making it a convenient and well-connected place to call home.
Council tax band C
services Electricity, Gas, mains drains and water are connected to the property.
Agents note Items depicted in the photographs are not necessarily included in the sale. Pursuant to the 1979 Estate Agents Act we hereby declare that the owner 12 Spencer Way, Stowmarket, IP14 1UB is a "connected person as defined by the Act" to a member of staff/ owner, working for Hamilton Smith Estate Agents.
EPC Rating: C
Viewing
Please contact us on 01449 722242 if you wish to arrange a viewing appointment for this property, or require further information.
Hamilton Smith - IP16 endeavour to maintain accurate depictions of properties in Virtual Tours, Floor Plans and descriptions, however, these are intended only as a guide and purchasers must satisfy themselves by personal inspection.

