Full Description
We are pleased to offer for sale this attractive, substantial, individually built four bedroom village house, occupying an appealing position within the desirable village centre of Great Finborough. Only a short distance from the well served market town of Stowmarket with main line rail link to London's Liverpool Street. Offered with the benefit of no onward chain.
The property occupies an appealing position, set back from the road occupying a tucked away position only a short stroll to the village centre. Great Finborough is a desirable Mid Suffolk village surrounded by rolling Suffolk countryside with Primary school, quaint village pub and renowned Independent school known as Finborough Hall. The market town of Stowmarket is approximately 3 miles distance offering a much wider range of facilities which include shops, schooling, health centres, places of worship and public library. There is also the Mid Suffolk Leisure Centre and a main line rail link to London's Liverpool Street. The A14 trunk road offers access in an easterly direction to Ipswich, the A12 and Felixstowe and in a westerly to Bury St Edmunds, Cambridge and onto the Midlands.
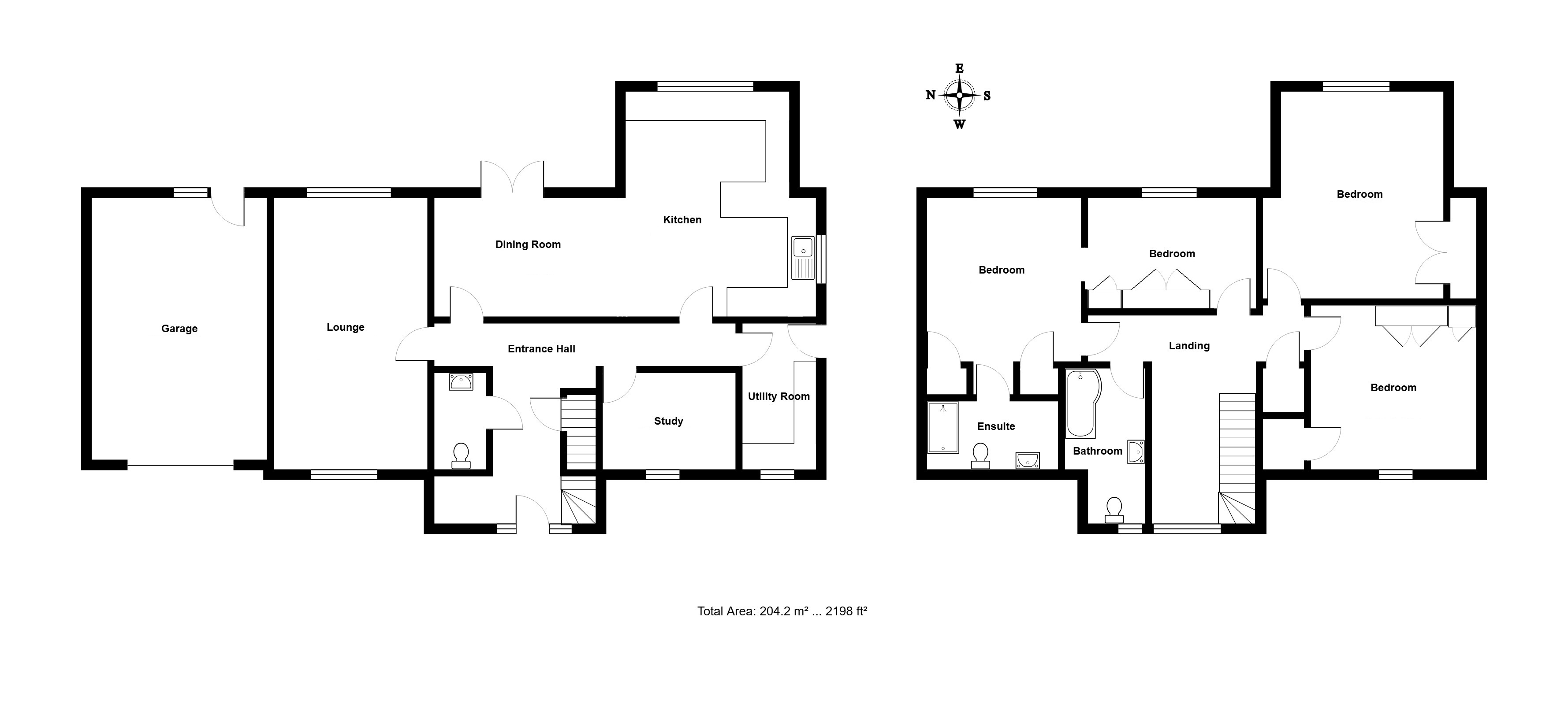
Bergan House represents an individual, traditional style substantial four bedroom family house, built by the current owner to a high standard. Presented in excellent condition throughout ready for immediate occupation and offered with the benefit of no onward chain. Features include an inviting vaulted reception hall with 16'8" high ceiling, bright and airy sitting room has windows to the front and rear with views over the garden, also located to the rear is the live-in kitchen/dining/family room, of generous proportions, further accommodation on the ground floor includes a utility room and study. An open landing on the first floor gives access to four generous double bedrooms, with the master bedroom having good size en-suite and views to the rear. Internal viewing is highly recommended
reception hall: 16'8" high vaulted ceiling, PVC double glazed entrance door, two side windows, wood effect flooring, underfloor heating, staircase to the first floor, built-in understairs storage cupboard, further high level landing window.
Cloakroom: White suite comprises low level wc and vanity unit with ceramic wash hand basin, and storage cupboards below, tiled floor, undefloor heating.
Sitting room: 20' 3" x 12' 0" (6.17m x 3.66m) Underfloor heating, wall mounted tv point, a bright and airy room with generous windows to the front and rear aspects with views over the garden.
Live-in kitchen/dining/family room: 29' 0" x 16' 9" narrowing to 9'3" (8.84m x 5.11m narrowing to 2.81m) Kitchen is fitted with an extensive range of base and wall mounted units having walnut wood effect doors and drawer fronts, incorporating wide pan drawers and peninsular unit creating a breakfast bar, fitted worktops inset with one and a half bowl sink unit with mono mixer tap, built-in appliances include eye level black glass double oven and grill, inset black glass hob with extractor fan connected over, space for fridge/freezer, integrated dishwasher, ceramic tile floor, underfloor heating, inset spotlight, large picture window overlooking the rear garden, further window to the side aspect.
Dining area:
Wood effect flooring, underfloor heating, wall mounted tv point, inset spotlights, PVC double glazed French doors opening to the garden.
Study: 9' 9" x 7' 2" (2.97m x 2.18m) Underfloor heating, PVC double glazed window to the front aspect.
Utility room: 10' 7" x 5' 7" (3.23m x 1.7m) Fitted base storage units, fitted worktops inset with stainless steel single bowl sink unit with mixer tap, plumbing for washing machine, space for tumble dryer, oil fired boiler, tiled floor, underfloor heating, window to the front aspect, half glazed PVC door to the garden.
Open first floor landing: A good feeling of space, radiator, access to the insulated loft space, generous built-in linen cupboard, window to the front aspect.
Master bedroom: 12' 8" x 11' 4" (3.86m x 3.45m) Radiator, two built-in wardrobes inset with fitted shelves and hanging rails, dormer window with views over the garden and beyond.
En-suite: 9' 7" x 5' 4" (2.92m x 1.63m) Ceramic wash hand basin with vanity storage cupboard and further drawers below, low level wc with concealed cistern with wood effect worktop, generous independent double shower enclosure with pivot glazed door, towel radiator, extensive tiling, dormer window to the front aspect.
Bedroom 2: 15' 4" x 13' 5" (4.67m x 4.09m) Radiator, generous built-in double wardrobe inset with fitted shelves and hanging rails, dormer window to the rear with far reaching views.
Bedroom 3: 12' 6" x 12' 5" (3.81m x 3.78m) Radiator, both single and double wardrobes with fitted shelves and hanging rails, further built-in storage cupboard, dormer window to the front aspect.
Bedroom 4: 12' 8" x 9' 4" (3.86m x 2.84m) (currently used as a dressing room) Radiator, built-in double wardrobe inset with fitted shelves and hanging rails, further built-in storage cupboard, dormer window with far reaching views to the rear.
Family bathroom: Contemporary white suite comprises low level wc, pedestal wash hand basin with mono mixer tap and P shaped shower bath with curved pivot glazed screen and shower connected over, extensive wall tiling, tile effect flooring, chrome towel radiator, spotlights, extractor fan, dormer window to the front aspect.
Outside: The lengthy drive gives access and provides off road parking and turning space and leads to the substantial garage with electric door, power and light connected, personal door directly to the rear garden. There is pedestrian access to the further side of the house leading to the rear garden with substantial paved terrace opening to an expansive lawn, mature shrubs, timber garden shed, fenced boundaries.
Postcode: IP14 3AQ
energy rating: C - 71
viewing: By arrangement with the agents, Hamilton Smith, or email us at You can also visit our web site
Viewing
Please contact us on 01473 833307 if you wish to arrange a viewing appointment for this property, or require further information.
Energy Performance Certificate
Click here to view the Energy Efficiency Rating and Environmental Impact Rating for this property.
Hamilton Smith - IP16 endeavour to maintain accurate depictions of properties in Virtual Tours, Floor Plans and descriptions, however, these are intended only as a guide and purchasers must satisfy themselves by personal inspection.
The property occupies an appealing position, set back from the road occupying a tucked away position only a short stroll to the village centre. Great Finborough is a desirable Mid Suffolk village surrounded by rolling Suffolk countryside with Primary school, quaint village pub and renowned Independent school known as Finborough Hall. The market town of Stowmarket is approximately 3 miles distance offering a much wider range of facilities which include shops, schooling, health centres, places of worship and public library. There is also the Mid Suffolk Leisure Centre and a main line rail link to London's Liverpool Street. The A14 trunk road offers access in an easterly direction to Ipswich, the A12 and Felixstowe and in a westerly to Bury St Edmunds, Cambridge and onto the Midlands.
Bergan House represents an individual, traditional style substantial four bedroom family house, built by the current owner to a high standard. Presented in excellent condition throughout ready for immediate occupation and offered with the benefit of no onward chain. Features include an inviting vaulted reception hall with 16'8" high ceiling, bright and airy sitting room has windows to the front and rear with views over the garden, also located to the rear is the live-in kitchen/dining/family room, of generous proportions, further accommodation on the ground floor includes a utility room and study. An open landing on the first floor gives access to four generous double bedrooms, with the master bedroom having good size en-suite and views to the rear. Internal viewing is highly recommended
reception hall: 16'8" high vaulted ceiling, PVC double glazed entrance door, two side windows, wood effect flooring, underfloor heating, staircase to the first floor, built-in understairs storage cupboard, further high level landing window.
Cloakroom: White suite comprises low level wc and vanity unit with ceramic wash hand basin, and storage cupboards below, tiled floor, undefloor heating.
Sitting room: 20' 3" x 12' 0" (6.17m x 3.66m) Underfloor heating, wall mounted tv point, a bright and airy room with generous windows to the front and rear aspects with views over the garden.
Live-in kitchen/dining/family room: 29' 0" x 16' 9" narrowing to 9'3" (8.84m x 5.11m narrowing to 2.81m) Kitchen is fitted with an extensive range of base and wall mounted units having walnut wood effect doors and drawer fronts, incorporating wide pan drawers and peninsular unit creating a breakfast bar, fitted worktops inset with one and a half bowl sink unit with mono mixer tap, built-in appliances include eye level black glass double oven and grill, inset black glass hob with extractor fan connected over, space for fridge/freezer, integrated dishwasher, ceramic tile floor, underfloor heating, inset spotlight, large picture window overlooking the rear garden, further window to the side aspect.
Dining area:
Wood effect flooring, underfloor heating, wall mounted tv point, inset spotlights, PVC double glazed French doors opening to the garden.
Study: 9' 9" x 7' 2" (2.97m x 2.18m) Underfloor heating, PVC double glazed window to the front aspect.
Utility room: 10' 7" x 5' 7" (3.23m x 1.7m) Fitted base storage units, fitted worktops inset with stainless steel single bowl sink unit with mixer tap, plumbing for washing machine, space for tumble dryer, oil fired boiler, tiled floor, underfloor heating, window to the front aspect, half glazed PVC door to the garden.
Open first floor landing: A good feeling of space, radiator, access to the insulated loft space, generous built-in linen cupboard, window to the front aspect.
Master bedroom: 12' 8" x 11' 4" (3.86m x 3.45m) Radiator, two built-in wardrobes inset with fitted shelves and hanging rails, dormer window with views over the garden and beyond.
En-suite: 9' 7" x 5' 4" (2.92m x 1.63m) Ceramic wash hand basin with vanity storage cupboard and further drawers below, low level wc with concealed cistern with wood effect worktop, generous independent double shower enclosure with pivot glazed door, towel radiator, extensive tiling, dormer window to the front aspect.
Bedroom 2: 15' 4" x 13' 5" (4.67m x 4.09m) Radiator, generous built-in double wardrobe inset with fitted shelves and hanging rails, dormer window to the rear with far reaching views.
Bedroom 3: 12' 6" x 12' 5" (3.81m x 3.78m) Radiator, both single and double wardrobes with fitted shelves and hanging rails, further built-in storage cupboard, dormer window to the front aspect.
Bedroom 4: 12' 8" x 9' 4" (3.86m x 2.84m) (currently used as a dressing room) Radiator, built-in double wardrobe inset with fitted shelves and hanging rails, further built-in storage cupboard, dormer window with far reaching views to the rear.
Family bathroom: Contemporary white suite comprises low level wc, pedestal wash hand basin with mono mixer tap and P shaped shower bath with curved pivot glazed screen and shower connected over, extensive wall tiling, tile effect flooring, chrome towel radiator, spotlights, extractor fan, dormer window to the front aspect.
Outside: The lengthy drive gives access and provides off road parking and turning space and leads to the substantial garage with electric door, power and light connected, personal door directly to the rear garden. There is pedestrian access to the further side of the house leading to the rear garden with substantial paved terrace opening to an expansive lawn, mature shrubs, timber garden shed, fenced boundaries.
Postcode: IP14 3AQ
energy rating: C - 71
viewing: By arrangement with the agents, Hamilton Smith, or email us at You can also visit our web site
Viewing
Please contact us on 01473 833307 if you wish to arrange a viewing appointment for this property, or require further information.
Energy Performance Certificate
Click here to view the Energy Efficiency Rating and Environmental Impact Rating for this property.
Hamilton Smith - IP16 endeavour to maintain accurate depictions of properties in Virtual Tours, Floor Plans and descriptions, however, these are intended only as a guide and purchasers must satisfy themselves by personal inspection.

