- Spacious two-bedroom house
- Gas Central Heating
- Generous living accommodation
- Private rear garden
Full Description
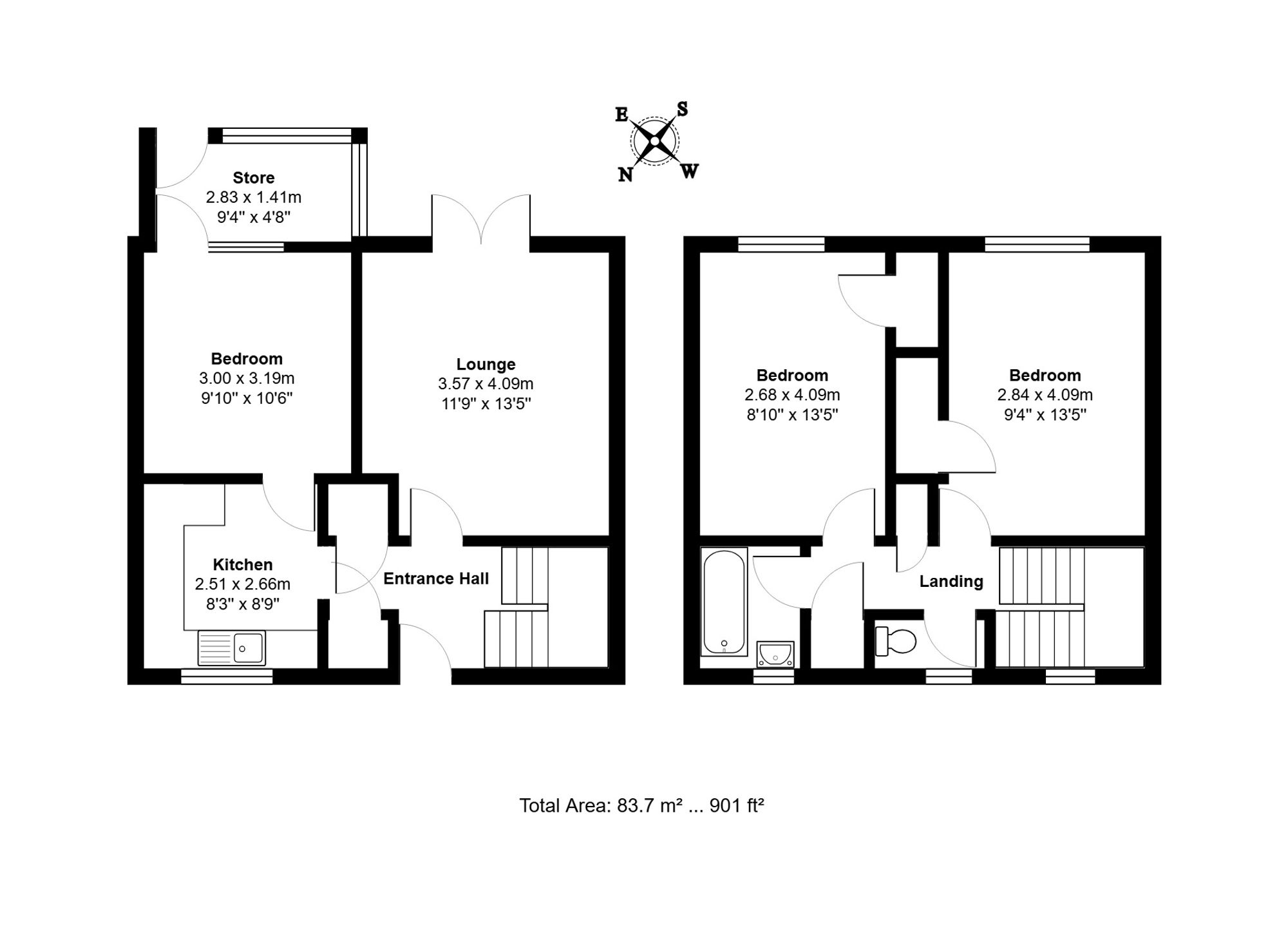
Entrance hall entry through double glazed door, two storage cupboards, stairs leading to first floor
sitting room wall radiator, double glazed door leading to rear garden
kitchen a variety of wall and base units, stainless steel sink and drainer, worksurfaces with tiled splashbacks, space for appliances, tiled flooring, double glazed window to front
dining room wall radiator, double glazed window to rear, double glazed door leading to rear garden
stairs/landing landing has storage cupboard
bedroom built in wardrobes, wall radiator, double glazed window to rear
bedroom built in wardrobes, wall radiator, double glazed window to rear
bathroom white suite comprising of bath with shower mixer, shower over bath, sink and pedestal, wall radiator, double glazed window to front
WC low level wc, wall radiator, double glazed window to front
garden enclosed garden mainly laid to lawn, patio, rear access to general off road parking area
Viewing
Please contact us on 01449 722242 if you wish to arrange a viewing appointment for this property, or require further information.
Hamilton Smith - IP16 endeavour to maintain accurate depictions of properties in Virtual Tours, Floor Plans and descriptions, however, these are intended only as a guide and purchasers must satisfy themselves by personal inspection.

