- Newly redecorated
- No Chain
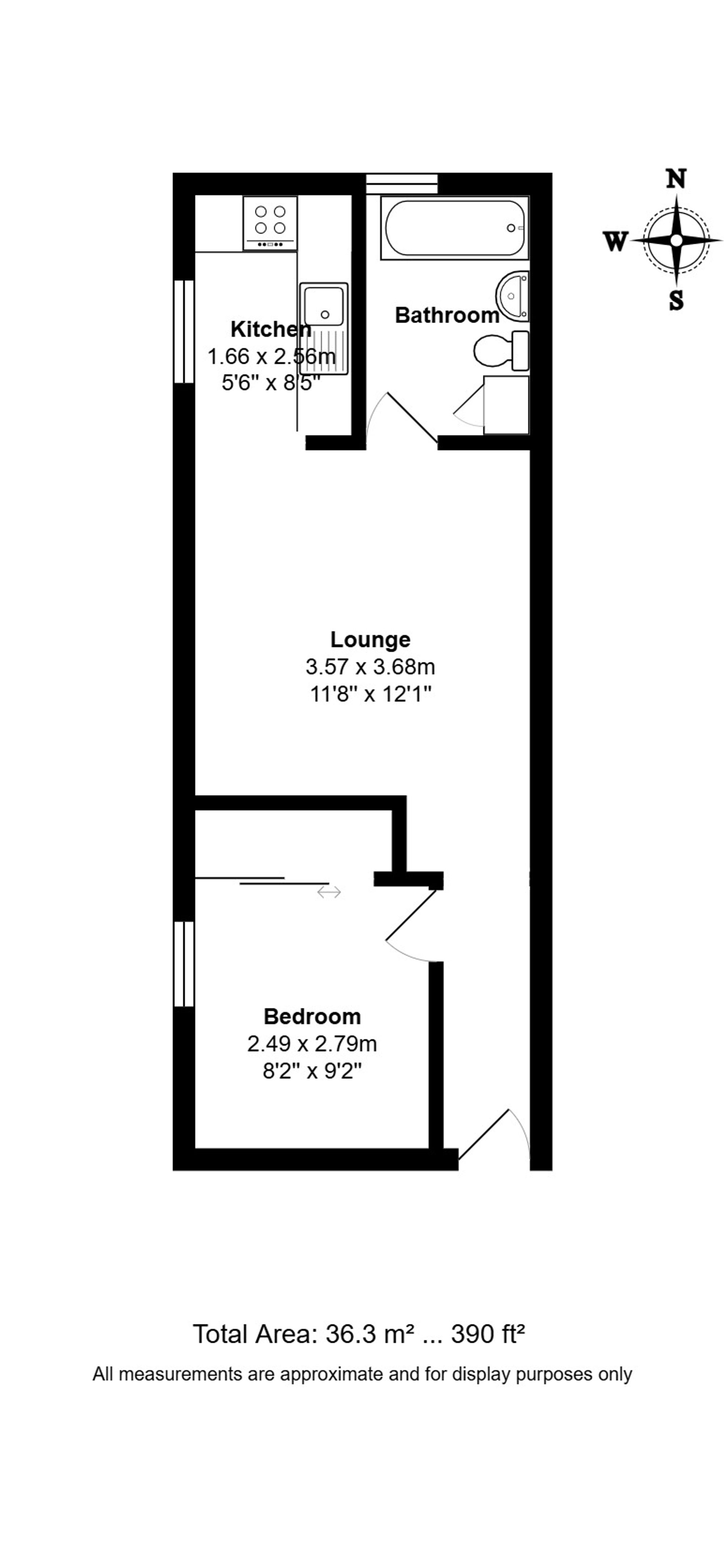
- 1 Bedroom Ground Floor Flat
- New flooring
- Parking
Full Description
Tenure: Leasehold
A well-presented one-bedroom ground floor apartment, ideally located within walking distance of local amenities in the popular market town of Saxmundham. Offered with no onward chain, the property presents an excellent opportunity for first-time buyers or investors alike.
The apartment is accessed via a covered entrance leading into a communal hallway, with a private door opening into the property. Inside, the accommodation comprises an entrance hall leading through to a bright and spacious sitting room, featuring a bay window and additional side window allowing for plenty of natural light. The sitting room is open plan to a modern fitted kitchen, which includes a range of base and wall units, an inset electric oven and hob with extractor over, stainless steel sink unit, and space for a fridge and washing machine.
The bedroom is a comfortable double with a window to the side aspect, built-in wardrobe, fitted carpet, and storage heater. The bathroom is fitted with a panel bath with electric shower over, low-level WC, and pedestal wash hand basin, complemented by fully tiled walls and flooring, a wall-mounted cupboard, and extractor fan.
Externally, the property benefits from ample parking and access to well-maintained communal gardens.
Saxmundham is a well-served and highly regarded market town offering a range of amenities including Tesco and Waitrose supermarkets, independent shops, cafés, galleries, and restaurants. The town also benefits from a weekly market, excellent transport links, and a railway station providing regular services to Ipswich, Norwich, Cambridge, and London Liverpool Street. The Suffolk Heritage Coast, including Aldeburgh and Southwold, is within easy reach.
Additional Information: The property is within Council Tax Band A and falls under the jurisdiction of East Suffolk Council. Mains electricity, water and drainage are connected. The service charge is approximately £650 per annum (as of 2025), with a peppercorn ground rent. The property is held on a long lease of 999 years from 1st January 1990.
Agent's Note: Items shown within the photographs are not necessarily included within the sale.
EPC Rating: C
Viewing
Please contact us on 01728 833007 if you wish to arrange a viewing appointment for this property, or require further information.
Hamilton Smith - IP16 endeavour to maintain accurate depictions of properties in Virtual Tours, Floor Plans and descriptions, however, these are intended only as a guide and purchasers must satisfy themselves by personal inspection.

