- Beautifully presented
- Ensuite shower room
- Kitchen/ Dining area
- Utility room
- 5 Bedroom Detached
- Garage and driveway
- South facing garden
- Recently built
Full Description
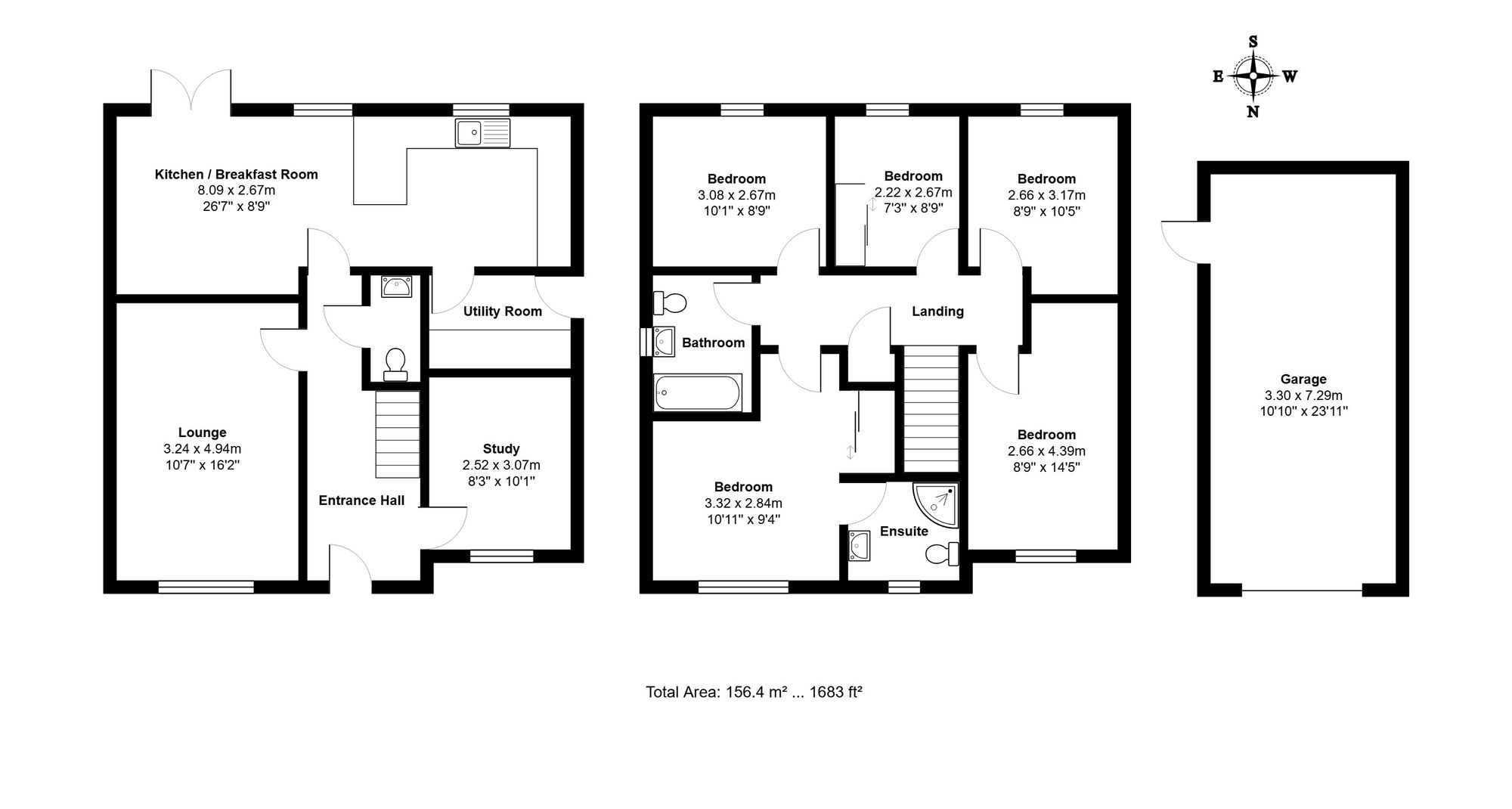
A beautifully presented and well-maintained five-bedroom detached family home, situated on a popular modern development in Leiston and built by Persimmon Homes. Offering spacious and versatile accommodation throughout, this superb property benefits from a south-facing garden and has been carefully looked after by the current owners, making it an ideal purchase for growing families.
The property is entered via a part-glazed uPVC front door into a welcoming entrance hall with vinyl flooring, radiator, and stairs rising to the first floor. From here, doors lead to a cloakroom fitted with a white suite comprising a low-level WC and pedestal wash hand basin, along with a useful snug or study positioned to the front aspect, providing an ideal space for home working or a playroom.
The sitting room is a comfortable and inviting space featuring a front-facing window, fitted carpet, radiators, and a wall-mounted electric fire. To the rear of the property, the heart of the home is the impressive kitchen/dining room, fitted with a range of white fronted base and wall units with marble-effect worktops, an inset sink unit, induction hob with extractor over, and built-in electric ovens. There is also an integrated dishwasher, water softener, filter tap, and space for a fridge freezer. The dining area offers ample space for family dining and entertaining, with uPVC patio doors opening directly onto the rear garden.
Upstairs, the landing provides access to the loft and all bedrooms. The main bedroom is a generous double with a front-facing window, built-in wardrobes with sliding doors, and access to an en-suite shower room fitted with a corner shower cubicle, WC, and wash hand basin, complemented by fully tiled walls. There are four further well-proportioned bedrooms, making the property highly flexible for family living, guest accommodation, or home office use. The family bathroom is fitted with a white suite including a panel bath with shower over, WC, and pedestal wash hand basin, with part tiled walls and a side aspect window.
Outside, the property enjoys a small front garden with a pathway and driveway leading to the front door. The rear garden is a particular feature, being south-facing and mainly laid to lawn with a patio seating area, ideal for outdoor entertaining. The garden is well enclosed and also benefits from a large detached single garage with power and lighting and boarded loft storage, along with a substantial garden shed, also with power and light.
The property forms part of a modern development built by Persimmon Homes, one of the UK's leading housebuilders, known for creating well-designed, energy-efficient homes suited to contemporary family living.
Leiston is a well-served Suffolk town offering a range of everyday amenities including supermarkets, independent shops, cafés, and schools, along with a leisure centre and cinema. The town is ideally located for access to the Suffolk Heritage Coast, with popular destinations such as Aldeburgh and Thorpeness just a short drive away.
The nearby Sizewell C development, a major new nuclear power project currently under construction, is set to bring significant investment and employment opportunities to the area, further enhancing Leiston's appeal for both homeowners and investors.
This is an excellent opportunity to acquire a spacious, modern family home in a convenient and increasingly sought-after location.
EPC Rating: B
Local Council
East Suffolk House, Station Road, Melton, Woodbridge, IP12 1RT
Council Tax Band
E
Services
Electricity, Gas, mains drains and water are connected to the property.
Agents Note
Items depicted in the photographs are not necessarily included in the sale. Please note that there is an annual estate management charge.
Viewing
Please contact us on 01728 833007 if you wish to arrange a viewing appointment for this property, or require further information.
Hamilton Smith - IP16 endeavour to maintain accurate depictions of properties in Virtual Tours, Floor Plans and descriptions, however, these are intended only as a guide and purchasers must satisfy themselves by personal inspection.

