- Built by Hopkins Homes
- Electric vehicle charging point
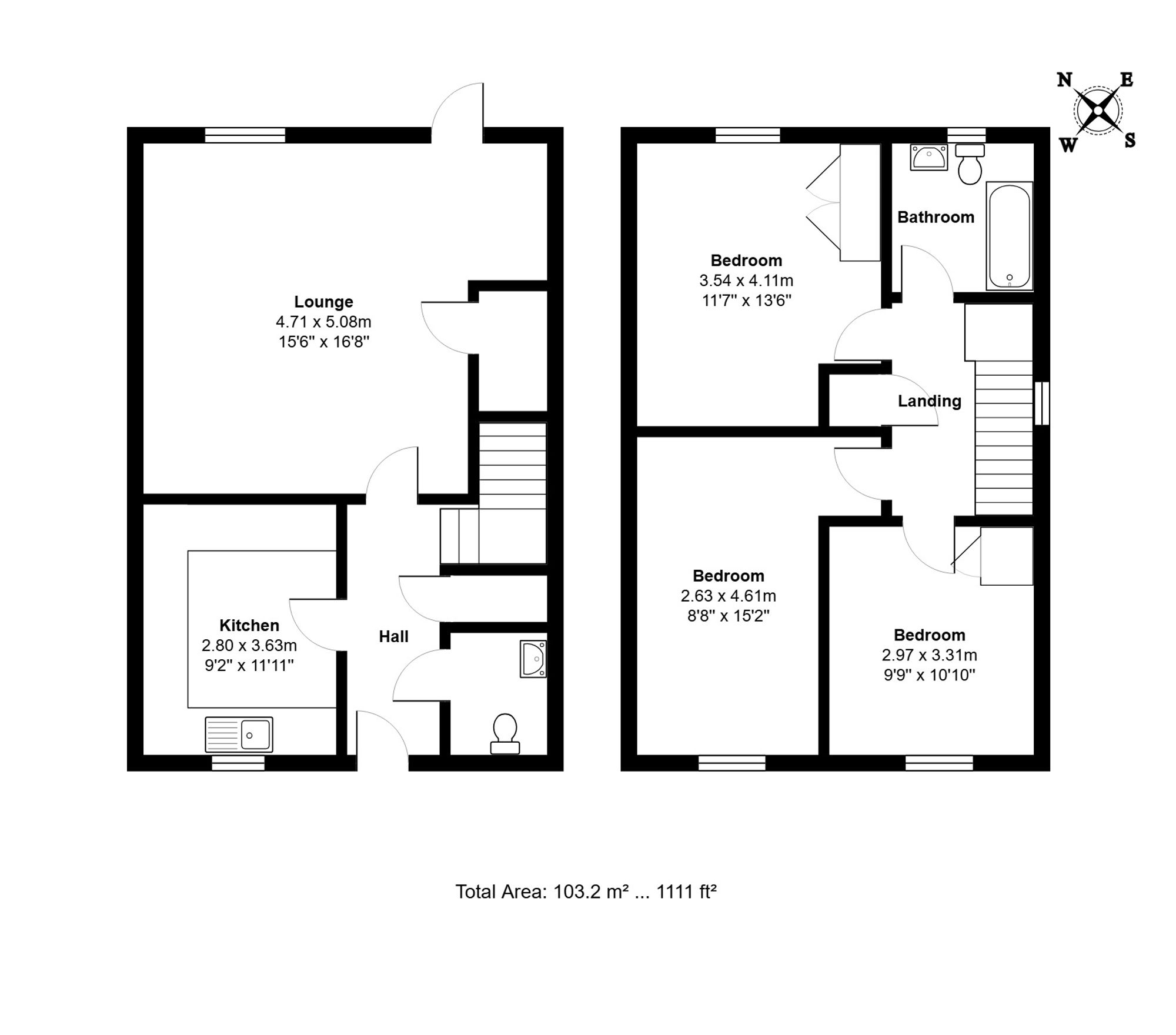
- Spacious living/dining room
- Fully enclosed rear garden
- Generous ground floor cloakroom (potential for shower)
- Three well-proportioned bedrooms
- Modern Shaker-style kitchen with integrated appliances
- Off-road parking for two vehicles
Full Description
Tenure: Leasehold
50% Shared ownership
Situated within a modern residential development built by Hopkins Homes, this well-presented three bedroom home offers spacious and well-balanced accommodation with off-road parking for two vehicles, an electric vehicle charging point and a fully enclosed rear garden. Located in the desirable village of Aldringham, the property enjoys a peaceful setting while being just a short drive from the Suffolk Heritage Coast and the popular seaside town of Aldeburgh.
Entrance Hall
Glazed composite front door opening into a spacious entrance hall with radiator, useful understairs storage cupboard and stairs rising to the first floor.
Cloakroom
A generous ground floor cloakroom with window to the front aspect, WC, pedestal wash hand basin and radiator. The size offers potential to install a shower cubicle if required (subject to any necessary works).
Kitchen
Window to the front aspect. Fitted with a range of high and low level Shaker-style units with work surfaces and tiled splashbacks. Double drainer stainless steel sink with mixer tap. Integrated fridge, freezer, oven, gas hob with extractor fan, dishwasher and washing machine. Wall-mounted gas combi boiler, tiled flooring and radiator.
Living/Dining Room
A bright and spacious reception room with window and door opening onto the rear garden. Two radiators and a large storage cupboard.
First Floor
Landing
Window to the side aspect, loft access via hatch and airing/storage cupboard.
Master Bedroom
Window to the rear, radiator and built-in double wardrobe.
Bedroom Two
Window to the front and radiator.
Bedroom Three
Double room with window to the front, radiator and large storage cupboard.
Family Bathroom
Modern white suite comprising panel bath with mixer shower over, WC and wash hand basin. Partially tiled walls and chrome heated towel rail.
Outside
To the front, there is driveway parking for two vehicles along with an electric vehicle charging point.
The rear garden is fully enclosed and mainly laid to lawn with a patio seating area and storage shed. A pathway provides access back towards the parking area.
Location
Aldringham is a sought-after coastal village offering a peaceful lifestyle while remaining close to amenities in nearby Leiston and the Heritage Coast. The surrounding area is renowned for its coastal walks, countryside and easy access to beaches and nature reserves.
EPC Rating: B
Local Council
East Suffolk House, Station Road, Melton, Woodbridge, IP12 1RT
Council Tax Band
D
Services
Electricity, Gas, mains drains and water are connected to the property.
Agents Note
Items depicted in the photographs are not necessarily included in the sale. An annual estate maintenance charge applies.
Monthly Payments
Rent - £411.63
Service charge - £6.13
3rd Party Management - £17.48
Insurance - £36.52
Viewing
Please contact us on 01728 833007 if you wish to arrange a viewing appointment for this property, or require further information.
Hamilton Smith - IP16 endeavour to maintain accurate depictions of properties in Virtual Tours, Floor Plans and descriptions, however, these are intended only as a guide and purchasers must satisfy themselves by personal inspection.

