- Open Plan Kitchen/ Family room
- Large Garage
- Large 5 Bedroom detached
- Off road parking
- Play room/ Study
- Perfect for a growing family
- Build in Storage
- Ensuite shower room
- Electric car charging point
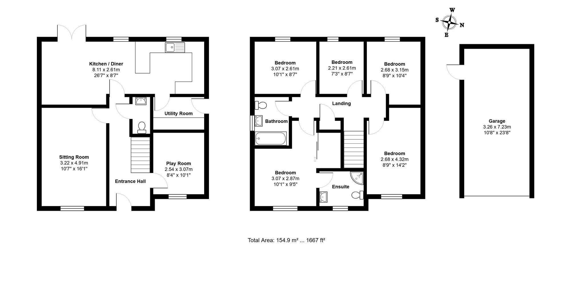
Full Description
This recently built five-bedroom detached house which offers spacious and contemporary living on a modern estate. The property spans two floors with all five bedrooms situated on the first floor, making it an ideal layout for family life. A bright and welcoming entrance hall, a generous living room, and an expansive open-plan kitchen/dining room create an inviting ground floor, while modern fixtures and fittings are found throughout. The home benefits from gas central heating and double glazing for comfort and energy efficiency. Outside, a fully enclosed rear garden with decked areas and a large single garage with driveway parking for two cars complete this high-quality family residence.
Entrance Hall
Entered via a glazed uPVC front door, the entrance hall is bright and welcoming. It features a radiator and provides the central hub of the home, with stairs rising to the first floor. There is also a door giving access to the convenient ground-floor cloakroom.
Cloakroom
A useful ground-floor cloakroom fitted with a WC and a pedestal wash basin with a tiled splashback. This room includes a radiator and an extractor fan for ventilation, offering practicality for family and guests.
Study/ Play room
A versatile room with a radiator and window to the front aspect.
Living Room
A generously sized living room with a window to the front aspect, allowing plenty of natural light to fill the space. This comfortable reception room is ideal for family relaxation or entertaining, and it features two radiators to ensure warmth throughout the year. The neutral decor and spacious layout provide a versatile environment for any style of furnishings.
Kitchen/Dining Room/ Family room
The heart of the home is the large open-plan kitchen and dining room, perfect for modern family living. The kitchen area is fitted with an extensive range of high and low level units complemented by rolled-edge work surfaces and matching upstands. It includes a stainless steel double drainer sink with a mixer tap, an electric oven with a gas hob, and integrated appliances including a fridge/freezer and a dishwasher. The adjoining dining area offers ample space for a family-sized table and enjoys an abundance of natural light, with two windows and double doors that open directly to the rear garden. Two radiators serve this expansive space, ensuring it remains cozy and inviting for meals and gatherings year-round.
Utility Room
Adjoining the kitchen is a separate utility room providing additional storage and laundry facilities. It features matching wall and base cabinets and work surface consistent with the kitchen design. This room houses the wall-mounted gas boiler and includes an integrated washing machine, with space available for an under-counter freezer or other appliance. A door from the utility room leads out to the rear garden, allowing easy access for hanging laundry or tending to the garden, and helps keep the noise and clutter of appliances out of the main living area.
First Floor Landing
Upstairs, the first floor landing is spacious and provides access to all five bedrooms and the family bathroom. A hatch offers access to the loft, useful for additional storage. The landing also contains an storage cupboard, ensuring plenty of space to keep household items neatly tucked away.
Bedroom One (Main Bedroom)
The principal bedroom is a spacious double room featuring a window to the front aspect that fills the room with natural light. It benefits from a custom built-in wardrobe with sliding doors, providing extensive hanging and shelving space without compromising floor area. A radiator ensures the room stays warm and cozy. This main bedroom also enjoys the luxury of an en-suite shower room for added convenience and privacy.
En-Suite Shower Room
Serving the main bedroom, the en-suite is modern and well-appointed. It includes a corner shower cubicle with a mixer shower, allowing for refreshing morning routines. There is also a WC and a pedestal wash basin, all complemented by contemporary tiling and fixtures. A window to the front provides natural light and ventilation, while a radiator keeps the space comfortable.
Bedroom Two
Bedroom Two is another well-proportioned room with a window to the front aspect of the house. This bright bedroom can easily accommodate a double bed and additional furniture. It features a radiator and offers a comfortable space for family members or guests, with a neutral décor that makes it easy to personalize.
Bedroom Three
Bedroom Three enjoys a pleasant view over the rear garden through its rear-facing window. It is a generous bedroom that can serve as a double room or a large single, providing flexibility for a growing family. The room is kept warm by a radiator and offers ample space for a bed and bedroom furnishings, ensuring comfort and practicality.
Bedroom Four
Bedroom Four is a charming room with a window overlooking the rear garden, sharing the same peaceful aspect as Bedroom Three. It features a radiator and is well-suited as a cozy bedroom or could serve as a home office or hobby room if desired. Its versatile size allows it to adapt to the needs of the household while maintaining the light and airy feel found throughout the upstairs.
Bedroom Five
The fifth bedroom is a neatly designed single bedroom with a rear-facing window that draws in natural light. This room includes a radiator and is ideal for use as a child's bedroom, a nursery, or even a study. Though smaller than the other bedrooms, it offers enough space for a single bed and furniture, making it a practical and versatile addition to the first floor.
Family Bathroom
The family bathroom is modern and well-equipped to serve all bedrooms. It features a panelled bath with an electric shower over, providing the option of a relaxing bath or an invigorating shower. There is also a pedestal wash basin and a WC, with partial wall tiling around the bath and sink areas for a clean and stylish finish. A window to the side aspect allows natural light and ventilation, keeping the space fresh. The bathroom also includes a radiator to ensure the room remains warm and comfortable.
Rear Garden and Garage
Outside, the rear garden is fully enclosed, offering a private and secure outdoor space for relaxation and play. The garden has been thoughtfully landscaped to include two decked seating areas-ideal for outdoor dining or entertaining-a neatly maintained lawn, and a patio-style walkway. Mature bamboo plantings line parts of the border, adding greenery and a sense of privacy. A personal door from the garden provides direct access to the large single garage, which offers excellent storage, an electric charging point and parking space. In front of the garage, there are two dedicated driveway parking spaces, providing ample off-road parking for residents and visitors.
This beautifully presented five-bedroom detached home combines modern design with functional family living. With its spacious interior, high-quality fixtures, and attractive garden and parking, the property stands as an ideal family home on a sought-after modern estate.
EPC Rating: B
Location
Leiston offers an excellent range of amenities which include a supermarket, local shops, schools, a cinema and newly refurbished sports centre with swimming pool. There is a nearby beach at Sizewell and the attractions of the Heritage Coast lie within convenient reach by car. It is located only 3 miles from Aldeburgh, which is arguably one of Suffolk's most sought-after coastal towns with superb recreational facilities including sailing, golf, fishing and walking. The Nuclear power stations at Sizewell attract employees from across the world on long and short term contracts.
Council Tax Band
E
Viewing
Please contact us on 01728 833007 if you wish to arrange a viewing appointment for this property, or require further information.
Hamilton Smith - IP16 endeavour to maintain accurate depictions of properties in Virtual Tours, Floor Plans and descriptions, however, these are intended only as a guide and purchasers must satisfy themselves by personal inspection.

