- Private garden
- Single garage
- Central heating
- Double glazing
Full Description
We are pleased to offer for sale this rarely available, extended, detached family home, situated within a desirable cul-de-sac walking distance of the village centre amenities. With well presented, spacious accommodation throughout, with drive, garage and
The property occupies a pleasant position within this desirable cul-de-sac, walking distance to the heart of the well served and popular village of Barham/Claydon. Claydon offers a range of shops including post office, pharmacy, hairdressers, public houses and primary and secondary schooling. The Suffolk county town of Ipswich is approximately three miles distant offering a much wider range of facilities including mainline railway link to London's Liverpool Street. The A14 trunk road offers access in an easterly direction to the A12 and
Felixstowe and in a westerly direction to Bury St Edmunds, Cambridge and on to the Midlands.
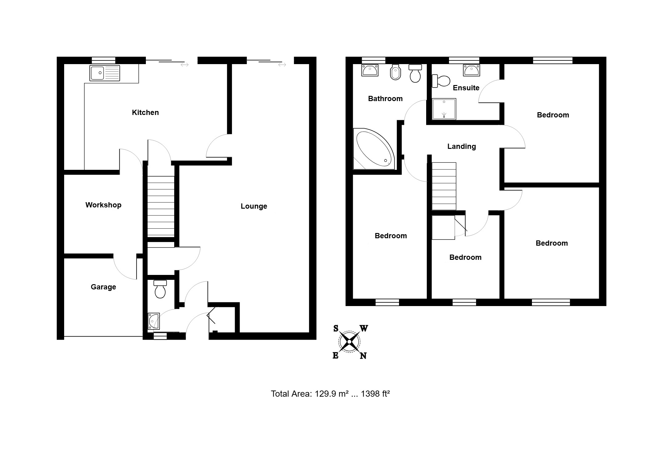
This detached family house has been extended to provide well planned and spacious accommodation throughout. Features include an impressive 28' sitting room with patio doors to the rear garden and gives access to the generous kitchen/dining room, again with patio doors opening to the garden, on the first floor a spacious galleried landing provides access to the large family bathroom with corner jacuzzi bath and four bedrooms, with the master bedroom having en-suite shower room. The rear garden is a particular feature with generous patio leading to the extensive lawn. The property further benefits from gas fired heating to radiators, pvc double glazing and solar panels.
Entrance hall:
PVC part glazed entrance door, built-in cloaks cupboard.
Cloakroom:
Suite comprises low level wc and wall mounted was hand basin, splash back, radiator, window to the front aspect.
Sitting room:
28' 5" x 13' 9" (8.66m x 4.19m) Three radiators, tv point, wood effect flooring, sliding patio doors opening to the garden, window to the front aspect.
Kitchen/dining room:
17' 4" x 11' 8" (5.28m x 3.56m) Fitted with a generous range of base and wall mounted units having wood effect doors and drawer fronts, fitted worktops inset with one and a half bowl sink unit with mixer tap, built-in black glass oven and grill with four ring hob above and extractor fan connected over, tiled splash backs, tiled flooring, plumbing and space for washing machine, space for fridge/freezer, spotlights, radiator, door to the garage/workshop, built-in understairs storage cupboard window and sliding patio doors opening to the rear garden.
First floor galleried landing:
10' 6" x 9' 2" (3.2m x 2.79m) Galleried balustrading, access to loft space, smoke alarm.
Bedroom 1:
12' 7" x 10' 3" (3.84m x 3.12m) Radiator, window to the rear aspect
en-suite:
6' 7" x 6' 5" (2.01m x 1.96m) Suite comprises low level wc, pedestal wash hand basin and shower cubicle with glazed screen, fully tiled walls, heated towel rail, window to the rear aspect.
Bedroom 2:
13' 5" x 8' 3" (4.09m x 2.51m) Radiator, window to the front aspect.
Bedroom 3:
12' 5" x 9' 6" (3.78m x 2.9m) Radiator, window to the front aspect.
Bedroom 4:
8' 8" x 7' 5" (2.64m x 2.26m) Radiator, window to the front aspect.
Family bathroom:
11' 7" x 7' 11" (3.53m x 2.41m) White suite comprises low level wc, pedestal wash hand basin, bidet and Jacuzzi corner bath with shower connected over with sliding screen, radiator, heated towel rail, fully tiled walls, spotlights, window to the rear aspect.
Outside:
The house is set back from the road with open lawn and shrub border. Adjacent block paved drive provides parking for two cars and gives access to the garage with electric roller door. Secure gated access with security lighting to the side leads to the rear garden with generous patio area leading to an extensive lawn, flower and shrub borders, timber garden shed with power, fenced boundaries.
Postcode: IP6 0DL
energy rating: B - 81
viewing:
By arrangement with the agents, Hamilton Smith, or email us at You can also visit our web site
Viewing
Please contact us on 01473 833307 if you wish to arrange a viewing appointment for this property, or require further information.
Energy Performance Certificate
Click here to view the Energy Efficiency Rating and Environmental Impact Rating for this property.
Hamilton Smith - IP16 endeavour to maintain accurate depictions of properties in Virtual Tours, Floor Plans and descriptions, however, these are intended only as a guide and purchasers must satisfy themselves by personal inspection.
The property occupies a pleasant position within this desirable cul-de-sac, walking distance to the heart of the well served and popular village of Barham/Claydon. Claydon offers a range of shops including post office, pharmacy, hairdressers, public houses and primary and secondary schooling. The Suffolk county town of Ipswich is approximately three miles distant offering a much wider range of facilities including mainline railway link to London's Liverpool Street. The A14 trunk road offers access in an easterly direction to the A12 and
Felixstowe and in a westerly direction to Bury St Edmunds, Cambridge and on to the Midlands.
This detached family house has been extended to provide well planned and spacious accommodation throughout. Features include an impressive 28' sitting room with patio doors to the rear garden and gives access to the generous kitchen/dining room, again with patio doors opening to the garden, on the first floor a spacious galleried landing provides access to the large family bathroom with corner jacuzzi bath and four bedrooms, with the master bedroom having en-suite shower room. The rear garden is a particular feature with generous patio leading to the extensive lawn. The property further benefits from gas fired heating to radiators, pvc double glazing and solar panels.
Entrance hall:
PVC part glazed entrance door, built-in cloaks cupboard.
Cloakroom:
Suite comprises low level wc and wall mounted was hand basin, splash back, radiator, window to the front aspect.
Sitting room:
28' 5" x 13' 9" (8.66m x 4.19m) Three radiators, tv point, wood effect flooring, sliding patio doors opening to the garden, window to the front aspect.
Kitchen/dining room:
17' 4" x 11' 8" (5.28m x 3.56m) Fitted with a generous range of base and wall mounted units having wood effect doors and drawer fronts, fitted worktops inset with one and a half bowl sink unit with mixer tap, built-in black glass oven and grill with four ring hob above and extractor fan connected over, tiled splash backs, tiled flooring, plumbing and space for washing machine, space for fridge/freezer, spotlights, radiator, door to the garage/workshop, built-in understairs storage cupboard window and sliding patio doors opening to the rear garden.
First floor galleried landing:
10' 6" x 9' 2" (3.2m x 2.79m) Galleried balustrading, access to loft space, smoke alarm.
Bedroom 1:
12' 7" x 10' 3" (3.84m x 3.12m) Radiator, window to the rear aspect
en-suite:
6' 7" x 6' 5" (2.01m x 1.96m) Suite comprises low level wc, pedestal wash hand basin and shower cubicle with glazed screen, fully tiled walls, heated towel rail, window to the rear aspect.
Bedroom 2:
13' 5" x 8' 3" (4.09m x 2.51m) Radiator, window to the front aspect.
Bedroom 3:
12' 5" x 9' 6" (3.78m x 2.9m) Radiator, window to the front aspect.
Bedroom 4:
8' 8" x 7' 5" (2.64m x 2.26m) Radiator, window to the front aspect.
Family bathroom:
11' 7" x 7' 11" (3.53m x 2.41m) White suite comprises low level wc, pedestal wash hand basin, bidet and Jacuzzi corner bath with shower connected over with sliding screen, radiator, heated towel rail, fully tiled walls, spotlights, window to the rear aspect.
Outside:
The house is set back from the road with open lawn and shrub border. Adjacent block paved drive provides parking for two cars and gives access to the garage with electric roller door. Secure gated access with security lighting to the side leads to the rear garden with generous patio area leading to an extensive lawn, flower and shrub borders, timber garden shed with power, fenced boundaries.
Postcode: IP6 0DL
energy rating: B - 81
viewing:
By arrangement with the agents, Hamilton Smith, or email us at You can also visit our web site
Viewing
Please contact us on 01473 833307 if you wish to arrange a viewing appointment for this property, or require further information.
Energy Performance Certificate
Click here to view the Energy Efficiency Rating and Environmental Impact Rating for this property.
Hamilton Smith - IP16 endeavour to maintain accurate depictions of properties in Virtual Tours, Floor Plans and descriptions, however, these are intended only as a guide and purchasers must satisfy themselves by personal inspection.

