Full Description
This extended four bedroom semi-detached house on Woodbridge Road East offers an opportunity to update and create your ideal living space in a desirable location, well set back from the road. Benefiting from spacious accommodation and has gas central heating, 1st floor bathroom, ground floor cloakroom, ample off road parking and a garage. Contact us now to book your viewing.
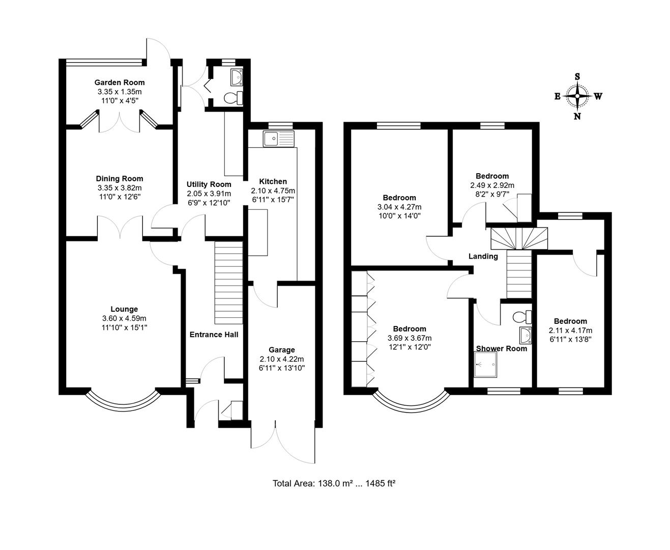
Entrance Hall:
Stairs to 1st floor, radiator, beautiful Parquet flooring, doors to...
Lounge: (3.60 x 4.59m)
This spacious lounge features a large bay window to front, feature parquet flooring and fireplace with a wooden surround and brick detailing, complemented by a picture rail. There is a radiaitor, double doors into the dining room.
Dining Room: (3.35 x 3.82m)
The dining room offers wood-effect flooring, a radiator, picture rail and connects directly to the garden room through double doors, enhancing the sense of space and light.
Garden Room: (3.35 x 1.35m)
Large windows to rear and a double glazed window to rear.
Kitchen: (4.75m x 2.11m (15'7 x 6'11))
A vaulted ceiling with a skylight and double glazed window to rear. A range of wall and base units, sink and drainer, space for appliances, radiator, tiled splash backs, drawers, work tops, door to garage. Opens through to the utility room.
Utility Room: (3.91m x 2.06m (12'10 x 6'9))
Large space with worktops, untis, radiator, door to lobby and door to dining room.
Lobby:
Double glazed door to outside door to...
Cloakroom:
Double glazed window to rear, W.C and hand wash basin.
1st Floor Landing:
The landing is a light and practical space, It provides access to the bedrooms and shower room, featuring traditional spindled balustrades and a carpeted staircase leading downstairs.
Bedroom 1: (3.69 x 3.67m)
This bedroom features a large bay window filling the room with natural light, wooden laminate flooring, radiator and a wall of built-in wardrobes
Bedroom 2: (3.04 x 4.27m)
With a window overlooking the garden to the rear and a radiator.
Bedroom 3: (2.11 x 4.17m)
With a large window to front and a radiator.
Bedroom 4: (2.49 x 2.92m)
With a window to rear, cupboard and a radiator.
Shower Room:
With a window to front, a curved glass shower enclosure, a vanity unit with integrated basin and storage and a WC. The walls are partially tiled and a radiator.
Outside:
The frontage is 95ft (sts) from the path to the house with a driveway provding off road parking for several cars. There is a range of shrubs, shingle areas, access to the rear via a gate and access to the garage.
The rear garden is 60ft (sts) and has concrete, shingle areas, raised planting beds and 2 green houses.
Ipswich Office:
7 Great Colman Street, Ipswich, IP4 2AA to view please call or email
Viewing
Please contact us on 01473 253366 if you wish to arrange a viewing appointment for this property, or require further information.
Energy Performance Certificate
Click here to view the Energy Efficiency Rating and Environmental Impact Rating for this property.
Hamilton Smith - IP16 endeavour to maintain accurate depictions of properties in Virtual Tours, Floor Plans and descriptions, however, these are intended only as a guide and purchasers must satisfy themselves by personal inspection.

