- Central heating
- Double glazing
- Fireplace
Full Description
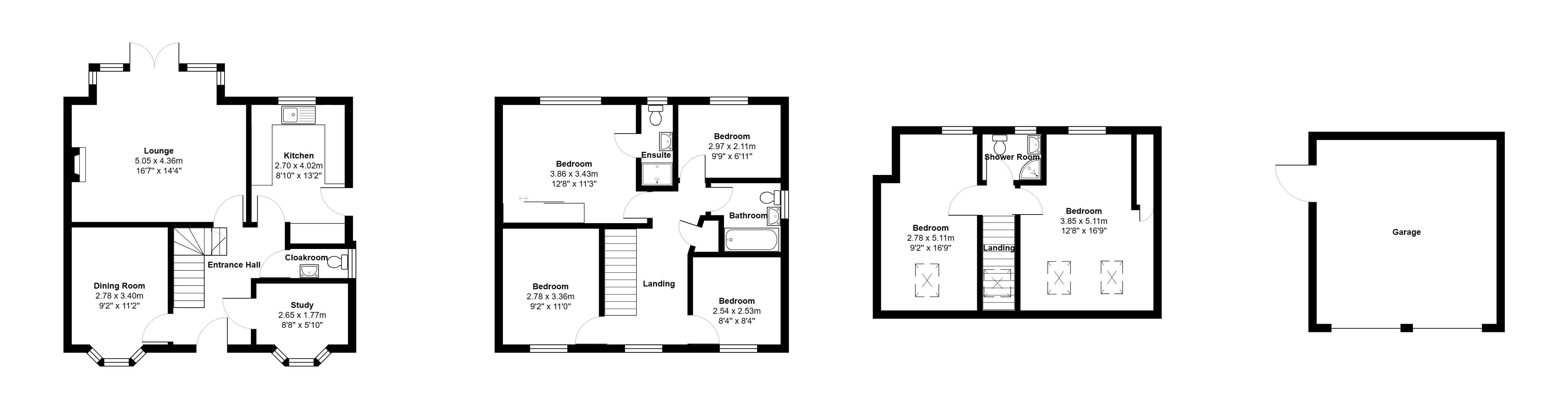
We are pleased to offer for sale this immaculate and substantial six bedroom family village house, occupying a good size plot with generous parking, double garage and attractive landscaped rear garden. Occupying an appealing position at the end of a small cul-de-sac only a short walk to schools and shops within this sought after village, easy access to Ipswich and the A14.
The property occupies a most appealing position at the end of a small cul-de-sac within this established and sought after development only a short walk to the village centre. Claydon offers a range of shops including post office, pharmacy, hairdressers, public houses and primary and secondary schooling. The Suffolk county town of Ipswich is approximately three miles distant offering a much wider range of facilities including mainline railway link to London's Liverpool Street. The A14 trunk road offers access in an easterly direction to the A12 and Felixstowe and in a westerly direction to Bury St Edmunds, Cambridge and on to the Midlands.
This stunning house has been well cared for and upgraded by the present owners, presented in superb condition throughout ready for immediate occupation. The property presents well throughout with modern bright and airy décor, upgraded kitchen, cloakroom and bathrooms. Further features include separate study and dining rooms with feature bay windows, an impressive sitting room with feature fireplace and French doors overlooking the rear garden. On the first floor there are four bedrooms with the master bedroom having an en-suite and built-in wardrobes and overlooking the rear garden. The property has been the subject of an extensive loft conversion to provide two superb 16'9" bedrooms with good ceiling heights, complimented by a central shower room. The outside space is a particular feature with plenty of off road parking and drive space which leads to a double garage, there is a secluded garden to the side leading to an attractive landscaped garden. Internal viewing is essential to appreciate the size and quality of the accommodation on offer.
Reception hall: PVC double glazed entrance door, staircase to the first floor with decorative balustrading, built-in understair storage cupboard, good quality wood strip flooring, radiator.
Sitting room: 16' 7" x 14' 4" (5.05m x 4.37m) Three radiators, tv point, feature fireplace with decorative wooden surround, marble back and hearth inset with gas fire, square bay to the rear aspect with wide PVC double glazed French doors, further PVC double glazed windows to the side.
Dining room: 11' 2" x 9' 2" (3.4m x 2.79m) Radiator, good quality wood strip flooring, feature PVC double glazed bay window to the front aspect.
Study: 8' 8" x 5' 9" (2.64m x 1.75m) Radiator, PVC double glazed bay window to the front aspect.
Kitchen: 13' 2" x 8' 10" (4.01m x 2.69m) Recently re-fitted with a good range of contemporary style white gloss base and wall mounted units, fitted worktops inset with ceramic sink with mono mixer tap, range cooker space with black glass back, large extractor connected over, plumbing for dishwasher and washing machine, space for fridge/freezer, gloss floor tiles, wall mounted gas fired boiler concealed within a cupboard, spotlights, PVC double glazed window overlooking the rear garden, half glazed PVC door to the side aspect.
Cloakroom: Re-fitted white suite comprises low level wc and wash hand basin, radiator, extractor fan, PVC double glazed window to the side aspect.
Spacious first floor galleried landing: Decorative balustrading, radiator, built-in linen cupboard, further staircase to the second floor accommodation, PVC double glazed window to the front aspect.
Master bedroom: 12' 8" x 11' 3" (3.86m x 3.43m) Radiator, good quality built-in full height wardrobe with wood grain and mirrored doors inset with fitted shelves and hanging rails, generous PVC double glazed window to the rear overlooking the garden.
En-suite: Re-fitted contemporary suite comprises low level wc with concealed cistern, vanity unit with wash hand basin and mono mixer tap and large independent shower enclosure with glazed screen, extensive wall tiling, tiled floor, extractor fan, PVC double glazed window to the rear aspect.
Bedroom 2: 11' 0" x 9' 2" (3.35m x 2.79m) Radiator, space for wardrobes, PVC double glazed window to the front aspect.
Bedroom 3: 9' 9" x 6' 11" (2.97m x 2.11m) Radiator, space for wardrobes, PVC double glazed window overlooking the rear garden.
Bedroom 4: 8' 4" x 8' 4" (2.54m x 2.54m) Radiator, space for wardrobes, PVC double glazed window to the front aspect.
Family bathroom: Re-fitted contemporary suite comprises low level wc., panel bath with shower connected over and dark grey vanity unit with inset wash hand basin, mono mixer tap and storage cupboards below, chrome towel radiator, extractor fan, spotlights, extensive wall tiling, wood effect flooring, PVC double glazed window to the side aspect.
Staircase leads from the first floor landing:
Second floor accommdoation: Landing and access to two bedrooms and shower room.
Second floor bedroom 1: 16' 9" x 12' 8" (5.11m x 3.86m) Radiator, generous PVC double glazed window with amazing views over the village, two further Velux roof windows to the front aspect providing good amounts of natural light.
Second floor bedroom 2: 16' 9" x 9' 2" (5.11m x 2.79m) Radiator, PVC double glazed window with amazing views over the village.
Shower room: Suite comprises low level wc, wall mounted wash hand basin and independent shower enclosure with glazed screen, towel radiator, tiled splash backs, PVC double glazed window to the rear aspect.
Outside: The property enjoys an attractive end of cul-de- sac position with sweeping drive providing parking and turning space for numerous vehicles and gives direct access to the double garage with twin up and over doors, power and light connected, personal door to the side garden. The remainder of the front garden comprises open plan lawn with fenced and walled boundaries. Gated access leads to a secluded east facing, fenced with access to the personal door to the garage. The rear garden has recently been re-landscaped and comprises a substantial paved terrace, red brick retaining wall with decorative iron balustrading, steps leads to the lower level laid to lawn, fenced boundaries, second raised sun deck.
Postcode: IP6 0DW
energy rating: C - 75
viewing: By arrangement with the agents, Hamilton Smith, or email us at You can also visit our web site
Viewing
Please contact us on 01473 833307 if you wish to arrange a viewing appointment for this property, or require further information.
Energy Performance Certificate
Click here to view the Energy Efficiency Rating and Environmental Impact Rating for this property.
Hamilton Smith - IP16 endeavour to maintain accurate depictions of properties in Virtual Tours, Floor Plans and descriptions, however, these are intended only as a guide and purchasers must satisfy themselves by personal inspection.
The property occupies a most appealing position at the end of a small cul-de-sac within this established and sought after development only a short walk to the village centre. Claydon offers a range of shops including post office, pharmacy, hairdressers, public houses and primary and secondary schooling. The Suffolk county town of Ipswich is approximately three miles distant offering a much wider range of facilities including mainline railway link to London's Liverpool Street. The A14 trunk road offers access in an easterly direction to the A12 and Felixstowe and in a westerly direction to Bury St Edmunds, Cambridge and on to the Midlands.
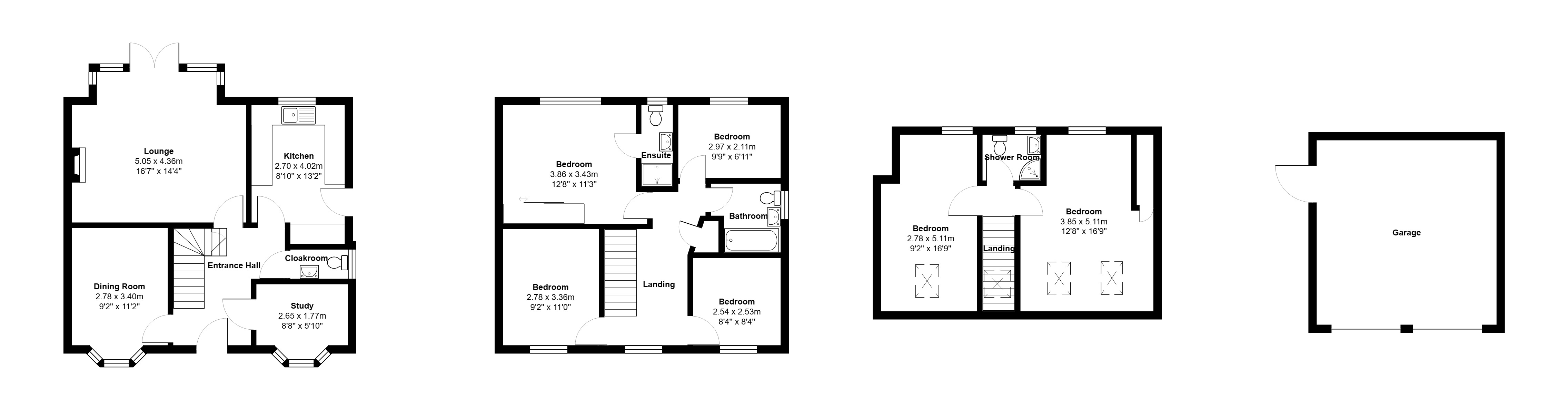
This stunning house has been well cared for and upgraded by the present owners, presented in superb condition throughout ready for immediate occupation. The property presents well throughout with modern bright and airy décor, upgraded kitchen, cloakroom and bathrooms. Further features include separate study and dining rooms with feature bay windows, an impressive sitting room with feature fireplace and French doors overlooking the rear garden. On the first floor there are four bedrooms with the master bedroom having an en-suite and built-in wardrobes and overlooking the rear garden. The property has been the subject of an extensive loft conversion to provide two superb 16'9" bedrooms with good ceiling heights, complimented by a central shower room. The outside space is a particular feature with plenty of off road parking and drive space which leads to a double garage, there is a secluded garden to the side leading to an attractive landscaped garden. Internal viewing is essential to appreciate the size and quality of the accommodation on offer.
Reception hall: PVC double glazed entrance door, staircase to the first floor with decorative balustrading, built-in understair storage cupboard, good quality wood strip flooring, radiator.
Sitting room: 16' 7" x 14' 4" (5.05m x 4.37m) Three radiators, tv point, feature fireplace with decorative wooden surround, marble back and hearth inset with gas fire, square bay to the rear aspect with wide PVC double glazed French doors, further PVC double glazed windows to the side.
Dining room: 11' 2" x 9' 2" (3.4m x 2.79m) Radiator, good quality wood strip flooring, feature PVC double glazed bay window to the front aspect.
Study: 8' 8" x 5' 9" (2.64m x 1.75m) Radiator, PVC double glazed bay window to the front aspect.
Kitchen: 13' 2" x 8' 10" (4.01m x 2.69m) Recently re-fitted with a good range of contemporary style white gloss base and wall mounted units, fitted worktops inset with ceramic sink with mono mixer tap, range cooker space with black glass back, large extractor connected over, plumbing for dishwasher and washing machine, space for fridge/freezer, gloss floor tiles, wall mounted gas fired boiler concealed within a cupboard, spotlights, PVC double glazed window overlooking the rear garden, half glazed PVC door to the side aspect.
Cloakroom: Re-fitted white suite comprises low level wc and wash hand basin, radiator, extractor fan, PVC double glazed window to the side aspect.
Spacious first floor galleried landing: Decorative balustrading, radiator, built-in linen cupboard, further staircase to the second floor accommodation, PVC double glazed window to the front aspect.
Master bedroom: 12' 8" x 11' 3" (3.86m x 3.43m) Radiator, good quality built-in full height wardrobe with wood grain and mirrored doors inset with fitted shelves and hanging rails, generous PVC double glazed window to the rear overlooking the garden.
En-suite: Re-fitted contemporary suite comprises low level wc with concealed cistern, vanity unit with wash hand basin and mono mixer tap and large independent shower enclosure with glazed screen, extensive wall tiling, tiled floor, extractor fan, PVC double glazed window to the rear aspect.
Bedroom 2: 11' 0" x 9' 2" (3.35m x 2.79m) Radiator, space for wardrobes, PVC double glazed window to the front aspect.
Bedroom 3: 9' 9" x 6' 11" (2.97m x 2.11m) Radiator, space for wardrobes, PVC double glazed window overlooking the rear garden.
Bedroom 4: 8' 4" x 8' 4" (2.54m x 2.54m) Radiator, space for wardrobes, PVC double glazed window to the front aspect.
Family bathroom: Re-fitted contemporary suite comprises low level wc., panel bath with shower connected over and dark grey vanity unit with inset wash hand basin, mono mixer tap and storage cupboards below, chrome towel radiator, extractor fan, spotlights, extensive wall tiling, wood effect flooring, PVC double glazed window to the side aspect.
Staircase leads from the first floor landing:
Second floor accommdoation: Landing and access to two bedrooms and shower room.
Second floor bedroom 1: 16' 9" x 12' 8" (5.11m x 3.86m) Radiator, generous PVC double glazed window with amazing views over the village, two further Velux roof windows to the front aspect providing good amounts of natural light.
Second floor bedroom 2: 16' 9" x 9' 2" (5.11m x 2.79m) Radiator, PVC double glazed window with amazing views over the village.
Shower room: Suite comprises low level wc, wall mounted wash hand basin and independent shower enclosure with glazed screen, towel radiator, tiled splash backs, PVC double glazed window to the rear aspect.
Outside: The property enjoys an attractive end of cul-de- sac position with sweeping drive providing parking and turning space for numerous vehicles and gives direct access to the double garage with twin up and over doors, power and light connected, personal door to the side garden. The remainder of the front garden comprises open plan lawn with fenced and walled boundaries. Gated access leads to a secluded east facing, fenced with access to the personal door to the garage. The rear garden has recently been re-landscaped and comprises a substantial paved terrace, red brick retaining wall with decorative iron balustrading, steps leads to the lower level laid to lawn, fenced boundaries, second raised sun deck.
Postcode: IP6 0DW
energy rating: C - 75
viewing: By arrangement with the agents, Hamilton Smith, or email us at You can also visit our web site
Viewing
Please contact us on 01473 833307 if you wish to arrange a viewing appointment for this property, or require further information.
Energy Performance Certificate
Click here to view the Energy Efficiency Rating and Environmental Impact Rating for this property.
Hamilton Smith - IP16 endeavour to maintain accurate depictions of properties in Virtual Tours, Floor Plans and descriptions, however, these are intended only as a guide and purchasers must satisfy themselves by personal inspection.

