Full Description
Situated in a Cul-De-Sac in the village of Bramford, near Ipswich, this impressive extended 5 bedroom detached house offers spacious accommodation for family living. The house boasts three well-appointed reception rooms and large kitchen all providing versatile spaces that can be tailored to your lifestyle. There is a downstairs cloakroom, 1st floor family bathroom and en-suite, double glazed windows, gas central heating and some underfloor heating downstairs. Sitting on around a half an acre plot with easterly facing rear gardens and woodland, ample off road parking and a garage. Now in need of further updating and offered with no onward chain.
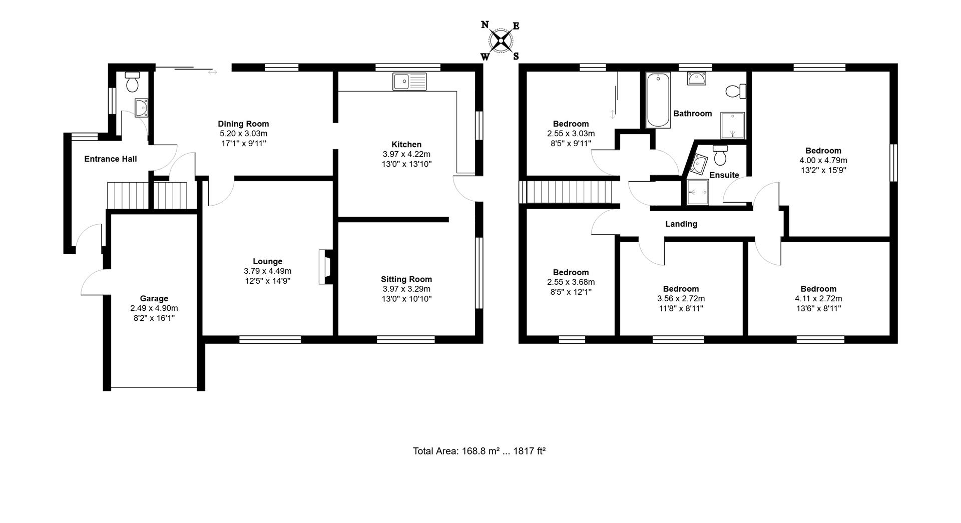
Hallway:
Stairs off, window to rear, doors off
Cloakroom:
Double glazed window, W.C, hand wash basin.
Lounge: (4.50m x 3.78m (14'9 x 12'5))
Double glazed window to front.
Dining Room: (5.23m x 3.02m (17'2 x 9'11))
Double glazed sliding doors to garden, laminate floor and under floor heating.
Kitchen: (4.22m x 3.96m (13'10 x 13))
Double glazed windows to side and rear. Range of wall and base units, drawers, sink, gas hob and space for appliances. Laminate flooring, under floor heating, double glazed door to outside and through to...
Sitting Room/Snug: (3.96m x 3.30m (13' x 10'10))
Double glazed windows to rear, laminate floor with under floor heating.
1st Floor Landing:
Bedroom One: (4.80m x 4.01m (15'9 x 13'2))
Double glazed window to rear, radiator and door to...
En-Suite:
With a shower cubicle, hand wash basin, W.C, extractor, ladder towel radiator and tiled.
Bedroom Two: (4.11m x 2.72m (13'6 x 8'11))
Double glazed window to front and a radiator.
Bedroom Three: (3.56m x 2.72m (11'8 x 8'11))
Double glazed window to front and a radiator.
Bedroom Four: (3.02m x 2.57m (9'11 x 8'5))
Double glazed window to rear, fitted wardrobes and a radiator.
Bedroom Five: (3.68m x 2.57m (12'1 x 8'5))
Double glazed window to front and a radiator.
Family Bathroom:
Double glazed window to rear, bath, separate shower cubicle, hand wash basin, W.C, towel ladder radiator and tiled floor.
Outside:
To the front there is an open garden with a lawn, driveway providing off road parking and access to the garage. A side gate leads to the rear.
The rear garden has a raised patio area with steps down to a lawn. There is a variety of of shrubs, flower beddings, trees and a summer house. There is a further woodland garden with a variety of trees. The whole plot including the formal gardens totals around half an acre (not measured).
Woodland:
An extra parcel of land being mainly mature trees.
Ipswich Office:
7 Great Colman Street, Ipswich, IP4 2AA to view please call or email
Viewing
Please contact us on 01473 253366 if you wish to arrange a viewing appointment for this property, or require further information.
Energy Performance Certificate
Click here to view the Energy Efficiency Rating and Environmental Impact Rating for this property.
Hamilton Smith - IP16 endeavour to maintain accurate depictions of properties in Virtual Tours, Floor Plans and descriptions, however, these are intended only as a guide and purchasers must satisfy themselves by personal inspection.

