Full Description
Nestled in a tranquil yet convenient location on Stowmarket Road, Needham Market, this impressive detached house offers a remarkable living experience. Spanning over 4000 square feet, this substantial property boasts five spacious bedrooms, making it an ideal family home.
As you enter, you are greeted by a welcoming atmosphere that flows throughout the house. The ground floor features a generous living room and a comfortable sitting room, perfect for relaxation and entertaining guests. For those who enjoy leisure activities, a dedicated games room provides an excellent space for family fun. The heart of the home is undoubtedly the expansive kitchen/diner..
One of the standout features of this property is the luxurious swimming pool, offering a private oasis for relaxation and recreation. The garden to the rear provides a serene outdoor space, ideal for summer gatherings or quiet evenings. Additionally, ample off-road parking ensures convenience for residents and visitors alike.
For added versatility, the property includes a self-contained two-bedroom annexe, perfect for guests, extended family, or even as a home office.
Situated just a stone's throw from the high street of Needham Market, residents can enjoy easy access to local amenities, shops, and transport links. This exceptional property truly combines space, comfort, and convenience, making it a must-see for those seeking a family home in a desirable location.
Entrance Lobby:
Door to...
Entrance Hall:
Welcoming, light and airy, stairs to first floor and doors to...
Cloakroom:
Double glazed window to front, low level w/c, hand wash basin, tiled floor.
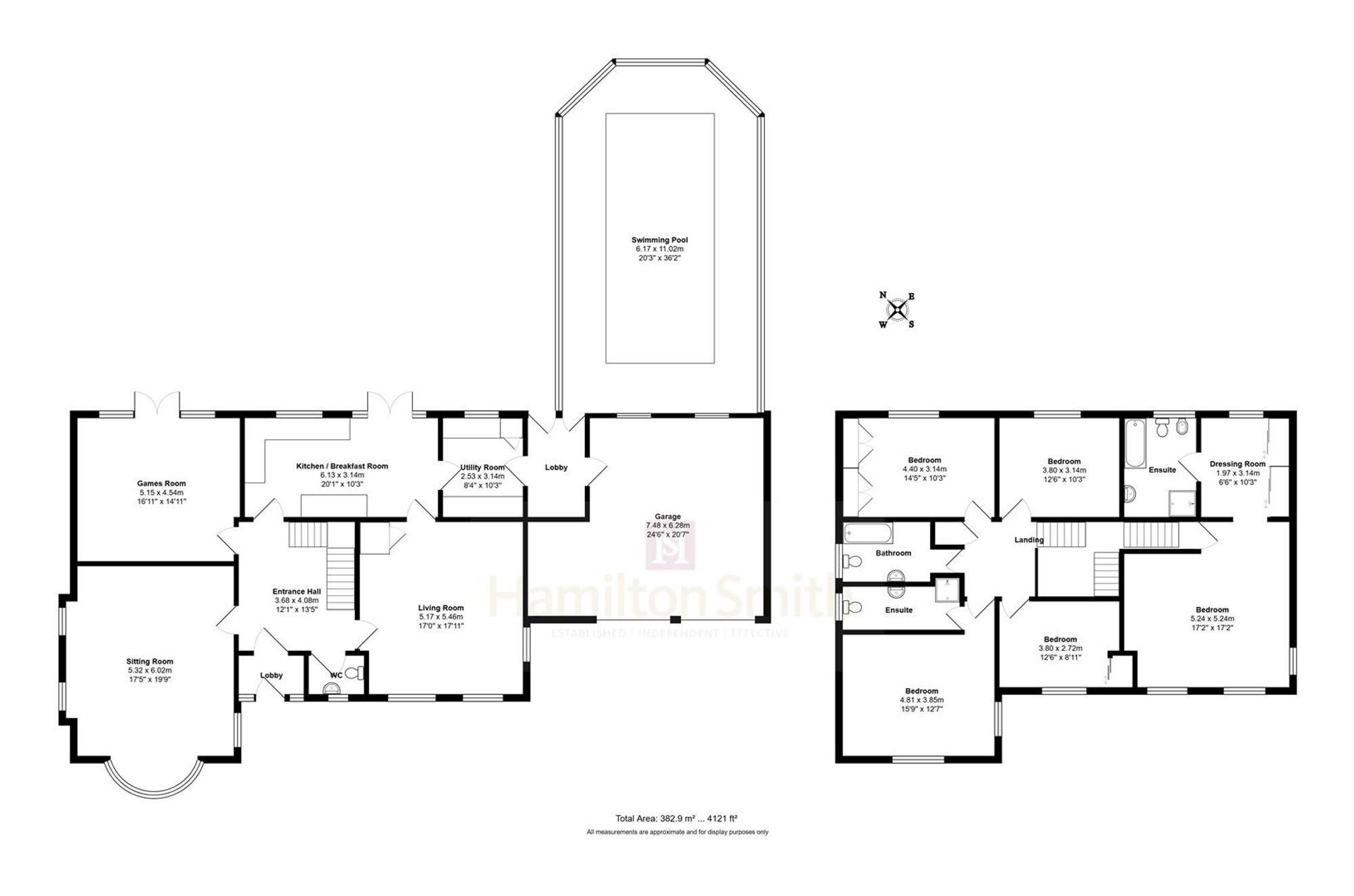
Sitting Room: (5.32 x 6.02 (17'5" x 19'9"))
Double glazed bay window to front, two double glazed windows to side and radiator.
Games Room: (5.15 x 4.54 (16'10" x 14'10"))
Double glazed window to rear, double doors to rear garden and radiator.
Living Room: (5.17 x 5.46 (16'11" x 17'10"))
Two double glazed windows to front, double glazed window to side, radiator and feature fireplace.
Kitchen/Dining Room: (6.13 x 3.14 (20'1" x 10'3"))
Double glazed window to rear, double glazed doors to rear, wall and base units, integrated fridge, dishwasher, sink and drainer, oven, hob and extractor, tiled floor, spotlights and door to...
Utility: (2.53 x 3.14 (8'3" x 10'3"))
Double glazed window to rear, wall and base units, space for appliances and tiled floor.
Bedroom One: (5.24 x 5.24 (17'2" x 17'2"))
Two double glazed windows to front, double glazed window to side, opening to dressing area, built in wardrobe and door to...
Ensuite Bathroom:
Double glazed window to rear, low level w/c, bidet, hand wash basin, bath and shower cubicle.
Bedroom Two: (4.81 x 3.85 (15'9" x 12'7"))
Double glazed window to front and to side, radiator and door to...
Ensuite:
Double glazed window to side, shower cubicle, low level w/c and hand wash basin.
Bedroom Three: (4.40 x 3.14 (14'5" x 10'3"))
Double glazed window to rear, built in wardrobe and radiator.
Bedroom Four: (3.8 x 3.14 (12'5" x 10'3"))
Double glazed window to rear and radiator.
Bedroom Five: (3.81m x 2.72m (12'6 x 8'11))
Double glazed window to side and radiator.
Bathroom:
Double glazed window to side, bath, low level w/c and hand wash basin.
Outside:
Swimming Pool
Beautiful indoor swimming pool with windows to three sides.
Rear:
Lawn area, patio area with hedged and fenced surround.
Front:
Brick frontage with off road parking, double garage.
Double Garage: (24.6 x 20.7 (80'8" x 67'10"))
Electric up and over door and further up and over door, has power and light.
Annexe:
Front door to...
Living Room: (3.12 x 5.82 (10'2" x 19'1"))
Double glazed window to front, stairs to first floor and radiator.
Cloakroom:
Low level w/c and hand wash basin.
Kitchen: (3.12 x 3.54 (10'2" x 11'7"))
Double glazed window and door to rear, worktop splash back tiles, space for appliances and door to conservatory.
Conservatory:
Double glazed windows over looking rear garden and double doors to rear.
Landing:
Doors to...
Bedroom One: (3.06 x 2.16 (10'0" x 7'1"))
Double glazed window to rear and radiator.
Bedroom Two: (3.06 x 3.96 (10'0" x 12'11"))
Double glazed window to front and radiator.
Bathroom:
Double glazed window to side, bath, hand wash basin and low level w/c.
Outsdie:
Front:
Off road parking.
Agents Notes:
The owners of this property own the access road.
EPC Rating: D
Viewing
Please contact us on 01449 722242 if you wish to arrange a viewing appointment for this property, or require further information.
Hamilton Smith - IP16 endeavour to maintain accurate depictions of properties in Virtual Tours, Floor Plans and descriptions, however, these are intended only as a guide and purchasers must satisfy themselves by personal inspection.

