- Garage & Off Road Parking
- Numerous Reception Rooms
- Five Bedroom Detached
- Two Conservatories
Full Description
Creeting st mary:
Creeting St Mary is a charming village located in Suffolk, England, with close proximity to the A14. Known for its picturesque countryside and historical charm, the village is home to the Church of St Mary, church of England primary school, with a rich history dating back to the medieval period. This quaint village offers a peaceful retreat with its beautiful landscapes, traditional English cottages, and a warm, welcoming
community. There is a village hall which is home to a thriving social club, Blacksmiths field, a large recreational area with walks, football field, pond and play equipment. Creeting St Mary is a perfect example of rural English life, where history and tranquillity come together.
Front entrance door to:
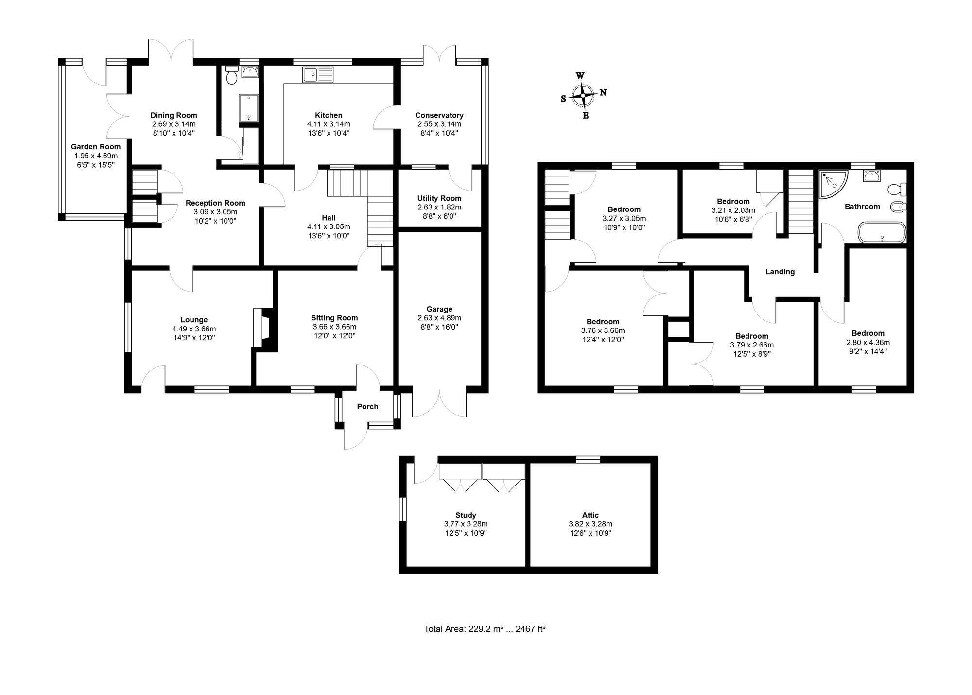
Living room: 14'8" x 12'0" (4.49 x 3.66)
Double glazed arch window to front and window to side, radiator, feature fireplace and door to...
Reception room: 10'1" x 10'0" (3.09 x 3.05)
Double glazed window to side, stairs to first floor, two radiators, storage cupboard, door to rear garden and door to conservatory. Doors to....
Wetroom:
Double glazed window to rear, low level W/C and wash hand basin set into vanity unit. Heated towel rail and shower. Storage cupboard and underfloor electric heating
reception/hallway: 13'5" x 10'0" (4.11 x 3.05)
Stairs to first floor, stairs to first floor, radiator and under stairs cupboard. Doors to....
Dining room: 8'9" x 10'3" (2.69 x 3.14)
Arch window to front, door to front porch with door to outside. Radiator and feature fireplace.
Kitchen: 13'5" x 10'3" (4.11 x 3.14)
Double glazed window to rear, range of wall and base units, sink with mixer tap, space for appliances, radiator and door to....
Conservatory: 15'4" x 6'4" (4.69 x 1.95)
Double door to outside, door to....
Utility room: 8'7" x 5'11" (2.63 x 1.82)
The utility room houses the air source heat pump booster unit allowing temperatures up to 70C in cold periods. Tiled floor.
Landing:
Two radiators, loft access and doors to....
Bedroom: 12'4" x 12'0" (3.76 x 3.66)
Double glazed window to front, radiator, built in cupboard, door to inner landing and door to...
Bedroom/study: 33'0" x 10'6" (10.06 x 3.21)
Window to rear, radiator and stairs to second floor.
Bedroom: 12'5" x 8'8" (3.79 x 2.66)
Window to front, built in cupboard and radiator
bedroom: 10'8" x 10'0" (3.27 x 3.05)
Window to rear, storage cupboard and radiator.
Bedroom: 14'3" x 9'2" (4.36 x 2.80)
Window to front and radiator.
Bathroom:
Window to rear, heated towel rail, bidet, W/C, pedestal wash hand basin and shower cubicle.
Second floor:
The second floor also offers attic storage room with Velux window and is accessed by a loft ladder. There is also loft storage space.
Study: 12'4" x 10'9" (3.77 x 3.28)
Double glazed window to side and storage cupboards.
Outside:
To the front of the property there is a block paved driveway leading to the garage. There is side access to the rear garden. There is a gate to a pathway leading to the front door and a further side lawn area with gate leading to the rear garden. To the rear of the property there is a lawn area, mature hedging, shed, brick built potting shed and pond. Air source heat pump.
EPC Rating: E
Viewing
Please contact us on 01449 722242 if you wish to arrange a viewing appointment for this property, or require further information.
Hamilton Smith - IP16 endeavour to maintain accurate depictions of properties in Virtual Tours, Floor Plans and descriptions, however, these are intended only as a guide and purchasers must satisfy themselves by personal inspection.

