- Three bedrooms
- Two reception rooms
- Front & rear gardens
- Copleston school area
- Perfect for updating and making your own
- In need of updating - no onward chain
Full Description
No onward chain - A three bedroom house - two reception rooms - Situated in a desirable area of Ipswich, you will benefit from local amenities, primary and Copelston high school are all within easy reach. Now in need of updating throughout making it A perfect opportunity to make this house your home.
Ipswich
Ipswich is the county town of Suffolk and provides a comprehensive range of educational, commercial and recreational facilities and an excellent link to London Liverpool Street Railway Station (about 70 mins). The town has two shopping centres, shops, restaurants, bars, two multi screen cinemas, music & entertainment venues and many sports clubs and societies. The Waterfront docks has an on going regeneration providing an excellent marina, recently built high tech University & college, restaurants, bars and residential development.
Situated in a desirable location, residents will benefit from easy access to local amenities, schools, and transport links, making it an excellent choice for those looking to settle down or invest, this property on Schreiber Road presents a wonderful opportunity to update to your style.
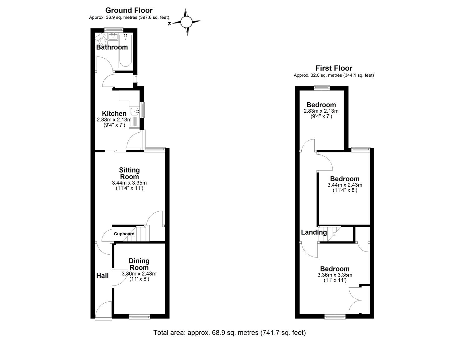
Front Door To
Dining Room: (3.35m x 2.44m (11 x 8))
Window to front, fitted shelving.
Lounge: (3.45m x 3.35m (11'4 x 11))
Window to rear, door to stairs, door to kitchen
Kitchen: (2.84m x 2.13m (9'4 x 7))
Window to side, door to outside, sink and basin, units and worktop, space for appliances, door to
Lobby:
Door to pantry with window to side. Door to
Bathroom:
Window to rear, bath, W.C, hand wash basin. Light/heater.
1st Floor:
Doors to bedrooms. Loft hatch.
Bedroom One: (3.35m x 3.35m (11 x 11))
Window to front, 3 built in cupboards.
Bedroom Two: (3.45m x 2.44m (11'4 x 8))
Window to rear, fitted shelving and storage unit above.
Bedroom Three: (2.84m x 2.13m (9'4 x 7))
Window to rear, cupboard with hot water tank.
Outside:
Front garden enclosed by a wall.
The rear garden has a lawn, patio, mature shrubs and access to rear via a gate.
Ipswich Office:
7 Great Colman Street, Ipswich, IP4 2AA to view please call or email
Viewing
Please contact us on 01473 253366 if you wish to arrange a viewing appointment for this property, or require further information.
Energy Performance Certificate
Click here to view the Energy Efficiency Rating and Environmental Impact Rating for this property.
Hamilton Smith - IP16 endeavour to maintain accurate depictions of properties in Virtual Tours, Floor Plans and descriptions, however, these are intended only as a guide and purchasers must satisfy themselves by personal inspection.

