- Private garden
- Central heating
- Double glazing
- Fireplace
Full Description
We are pleased to offer for sale this most attractive, deceptively spacious, three bedroom period village house, presented in superb condition throughout, ready for immediate occupation. With appealing garden and views over meadowland to the rear. Located
The highly desirable Mid Suffolk village of Coddenham is surrounded by rolling countryside and lies approximately 5 miles north of the county town of Ipswich with easy access to the A140 and A14 trunk roads. This picturesque and sought after village is nestled within undulating meadow and farmland predominately historical timber framed traditional Suffolk houses and cottages dominated by the picturesque village church, facilities include desirable community village stores with fresh vegetables, butchery and deli. The village also has a sports field, children's play area with community hall. There are numerous rambling walks surrounding the village and a good community spirit.
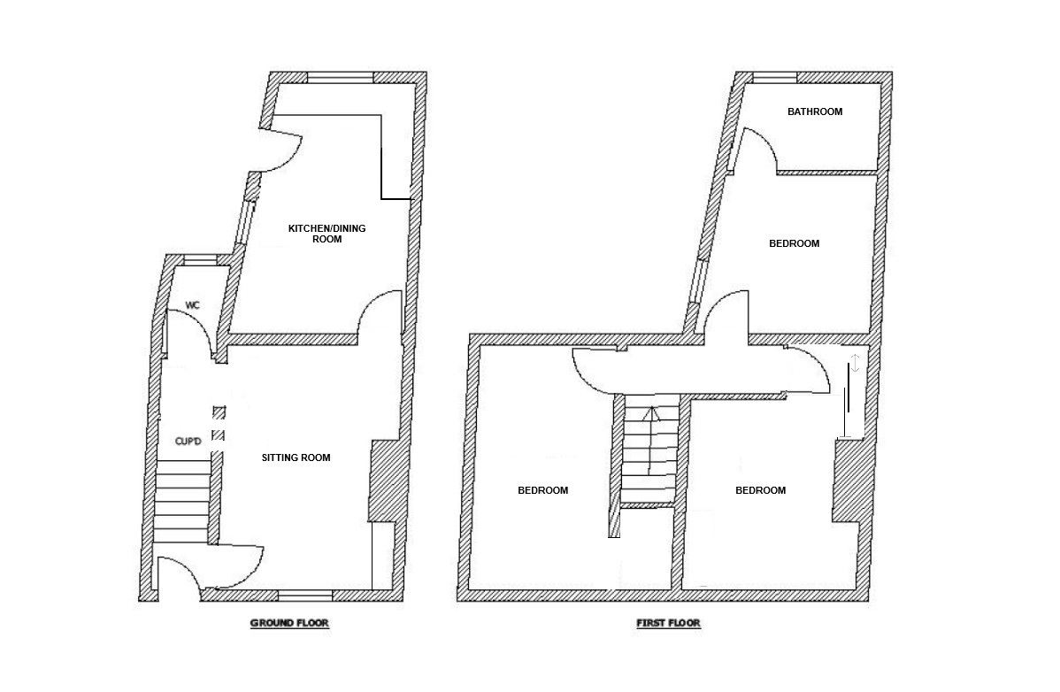
This deceptively spacious village house has been lovingly cared for, upgraded and refurbished in recent years to provide well planned accommodation together with attractive south/westerly facing rear garden. Features include sitting room with fireplace inset with modern wood burner, open studwork and generous PVC sash window to the front aspect, the impressive kitchen/dining room is located to the rear, well fitted with a good range of shaker style kitchen units, space for dining table and views over the garden. On the first floor there are three good size bedrooms as well as a re-fitted modern bathroom with shower bath. The property benefits from modern oil fired heating and sympathetic PVC double glazed windows, the garden is a particular feature, well stocked with various seating areas, good size lawn and faces south/westerly. The property is offered with the benefit of no onward chain. Internal viewing is highly recommended to appreciate the size and quality of the accommodation on offer.
Entrance hall:
Part glazed panelled entrance door, staircase to the first floor, exposed feature stripped pine wall, radiator.
Sitting room:
14' 6" x 10' 5" (4.42m x 3.18m) Central chimney breast inset modern wood burning stove, terracotta pamment tiled hearth, feature bressummer beam over, bespoke built-in storage cupboard and bookcase, inset spotlight, radiator, feature open studwork, pine panelled doors, generous PVC sash window to the front aspect.
Cloakroom:
White suite comprises low level wc and pedestal wash hand basin, chrome towel radiator, inset spotlights, half tiled walls, PVC window to the rear aspect.
Kitchen/dining room:
18' 2" x 8' 7" (5.54m x 2.62m) Fitted with a good range of base and wall mounted units having shaker style panelled doors and drawer fronts, fitted worktops inset with good quality ceramic sink with mono mixer tap, electric cooker space, extractor fan connected over, integrated slimline dishwasher and fridge, plumbing for washing machine, wall light points, radiator, inset spotlights, wide board oak style flooring, double aspect room with PVC window to the side aspect and generous PVC window looking the rear garden and meadowland beyond, PVC stable style door to the garden.
First floor landing:
Feature exposed pine walling, access to the insulated loft space.
Bedroom 1:
11' 3" x 11' 0" (3.43m x 3.35m) Radiator, inset spotlights, built-in double, full height wardrobe with sliding mirrored doors inset with fitted shelf and hanging rail, chimney breast, further alcove, generous PVC sash window to the front aspect.
Bedroom 2:
14' 7" x 9' 0" (4.44m x 2.74m) Radiator, inset spotlights, open fronted double wardrobe, PVC sash window to the front aspect.
Bedroom 3:
10' 4" x 8' 0" (3.15m x 2.44m) Radiator, inset spotlights, built-in linen cupboard, access leads to the bathroom, PVC window to the side aspect.
Bathroom:
7' 4" x 6' 4" (2.24m x 1.93m) Modern white suite comprises P shaped panelled shower bath with shower mixer tap, further mains shower connected over and curved glazed screen, low level wc with concealed cistern and built-in vanity unit with storage cupboards with mirrored doors and inset ceramic wash hand basin with mono mixer tap, fully tiled walls, tile effect flooring, chrome towel radiator, inset spotlights, extractor fan, PVC window to the rear with views over the garden and beyond.
Outside:
Hill House is in the heart of the village a short stroll from the renowned Coddenham store and coffee shop. Large white wooden double gates open to a large courtyard providing shared pedestrian access to Hill House and the neighbouring properties. Immediately to the rear of the house there is a raised decking and seating area, low level picket fencing with gate opens to the lawn, well stocked flower and shrub borders, timber garden store, steps lead to a further generous sized lawn with fenced boundaries and a further raised deck with far reaching views to the rear.
Postcode: IP6 9PR
energy rating: E - 44
viewing:
By arrangement with the agents, Hamilton Smith, or email us at You can also visit our web site
Viewing
Please contact us on 01473 833307 if you wish to arrange a viewing appointment for this property, or require further information.
Energy Performance Certificate
Click here to view the Energy Efficiency Rating and Environmental Impact Rating for this property.
Hamilton Smith - IP16 endeavour to maintain accurate depictions of properties in Virtual Tours, Floor Plans and descriptions, however, these are intended only as a guide and purchasers must satisfy themselves by personal inspection.
The highly desirable Mid Suffolk village of Coddenham is surrounded by rolling countryside and lies approximately 5 miles north of the county town of Ipswich with easy access to the A140 and A14 trunk roads. This picturesque and sought after village is nestled within undulating meadow and farmland predominately historical timber framed traditional Suffolk houses and cottages dominated by the picturesque village church, facilities include desirable community village stores with fresh vegetables, butchery and deli. The village also has a sports field, children's play area with community hall. There are numerous rambling walks surrounding the village and a good community spirit.
This deceptively spacious village house has been lovingly cared for, upgraded and refurbished in recent years to provide well planned accommodation together with attractive south/westerly facing rear garden. Features include sitting room with fireplace inset with modern wood burner, open studwork and generous PVC sash window to the front aspect, the impressive kitchen/dining room is located to the rear, well fitted with a good range of shaker style kitchen units, space for dining table and views over the garden. On the first floor there are three good size bedrooms as well as a re-fitted modern bathroom with shower bath. The property benefits from modern oil fired heating and sympathetic PVC double glazed windows, the garden is a particular feature, well stocked with various seating areas, good size lawn and faces south/westerly. The property is offered with the benefit of no onward chain. Internal viewing is highly recommended to appreciate the size and quality of the accommodation on offer.
Entrance hall:
Part glazed panelled entrance door, staircase to the first floor, exposed feature stripped pine wall, radiator.
Sitting room:
14' 6" x 10' 5" (4.42m x 3.18m) Central chimney breast inset modern wood burning stove, terracotta pamment tiled hearth, feature bressummer beam over, bespoke built-in storage cupboard and bookcase, inset spotlight, radiator, feature open studwork, pine panelled doors, generous PVC sash window to the front aspect.
Cloakroom:
White suite comprises low level wc and pedestal wash hand basin, chrome towel radiator, inset spotlights, half tiled walls, PVC window to the rear aspect.
Kitchen/dining room:
18' 2" x 8' 7" (5.54m x 2.62m) Fitted with a good range of base and wall mounted units having shaker style panelled doors and drawer fronts, fitted worktops inset with good quality ceramic sink with mono mixer tap, electric cooker space, extractor fan connected over, integrated slimline dishwasher and fridge, plumbing for washing machine, wall light points, radiator, inset spotlights, wide board oak style flooring, double aspect room with PVC window to the side aspect and generous PVC window looking the rear garden and meadowland beyond, PVC stable style door to the garden.
First floor landing:
Feature exposed pine walling, access to the insulated loft space.
Bedroom 1:
11' 3" x 11' 0" (3.43m x 3.35m) Radiator, inset spotlights, built-in double, full height wardrobe with sliding mirrored doors inset with fitted shelf and hanging rail, chimney breast, further alcove, generous PVC sash window to the front aspect.
Bedroom 2:
14' 7" x 9' 0" (4.44m x 2.74m) Radiator, inset spotlights, open fronted double wardrobe, PVC sash window to the front aspect.
Bedroom 3:
10' 4" x 8' 0" (3.15m x 2.44m) Radiator, inset spotlights, built-in linen cupboard, access leads to the bathroom, PVC window to the side aspect.
Bathroom:
7' 4" x 6' 4" (2.24m x 1.93m) Modern white suite comprises P shaped panelled shower bath with shower mixer tap, further mains shower connected over and curved glazed screen, low level wc with concealed cistern and built-in vanity unit with storage cupboards with mirrored doors and inset ceramic wash hand basin with mono mixer tap, fully tiled walls, tile effect flooring, chrome towel radiator, inset spotlights, extractor fan, PVC window to the rear with views over the garden and beyond.
Outside:
Hill House is in the heart of the village a short stroll from the renowned Coddenham store and coffee shop. Large white wooden double gates open to a large courtyard providing shared pedestrian access to Hill House and the neighbouring properties. Immediately to the rear of the house there is a raised decking and seating area, low level picket fencing with gate opens to the lawn, well stocked flower and shrub borders, timber garden store, steps lead to a further generous sized lawn with fenced boundaries and a further raised deck with far reaching views to the rear.
Postcode: IP6 9PR
energy rating: E - 44
viewing:
By arrangement with the agents, Hamilton Smith, or email us at You can also visit our web site
Viewing
Please contact us on 01473 833307 if you wish to arrange a viewing appointment for this property, or require further information.
Energy Performance Certificate
Click here to view the Energy Efficiency Rating and Environmental Impact Rating for this property.
Hamilton Smith - IP16 endeavour to maintain accurate depictions of properties in Virtual Tours, Floor Plans and descriptions, however, these are intended only as a guide and purchasers must satisfy themselves by personal inspection.

