- Two Bedroom Semi Detached
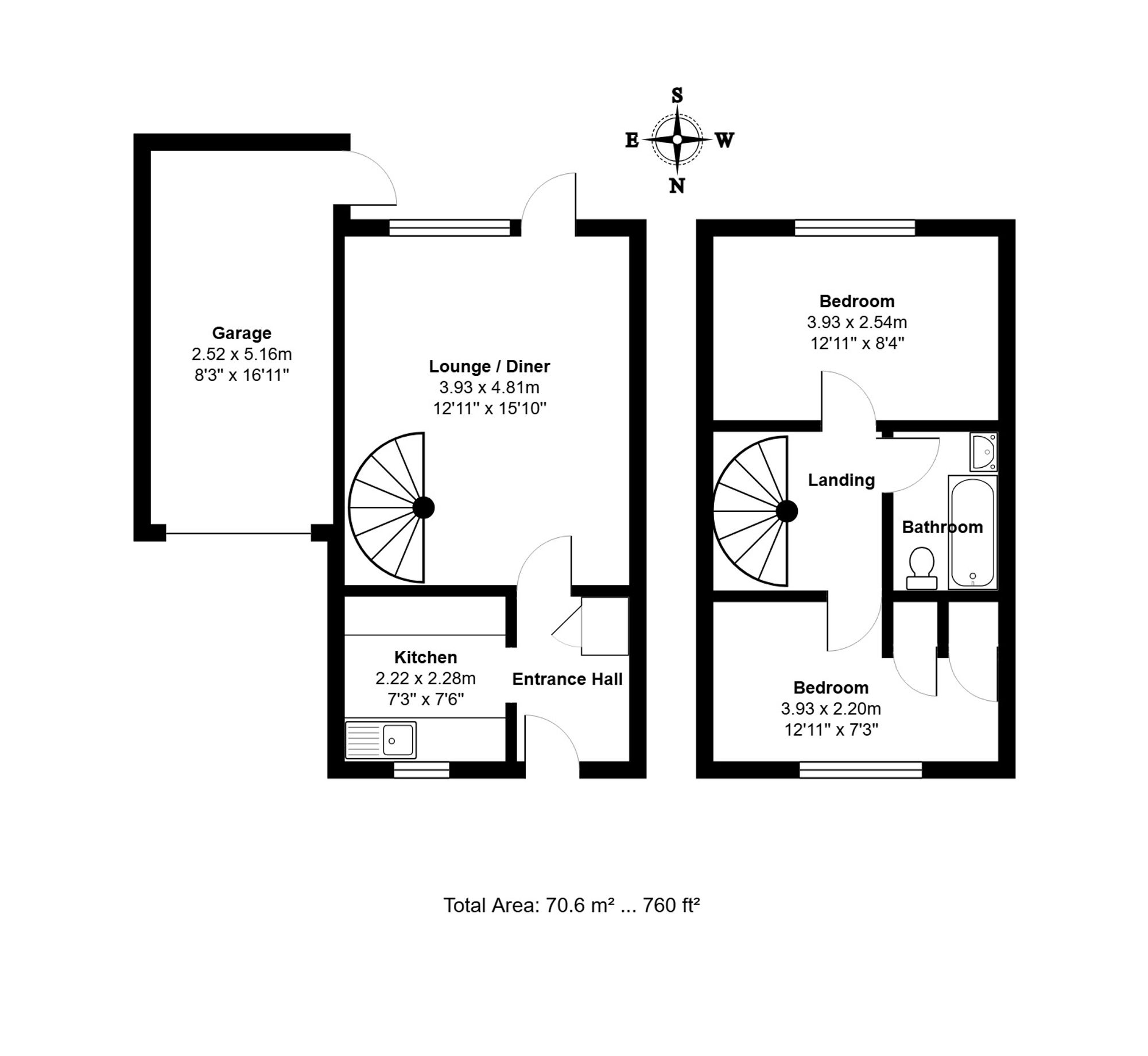
- Garage and Parking
- Enclosed Garden
Full Description
Entry through a double glazed door leads to
Entrance Hall - storage cupboard
Kitchen - 2.28m by 2.22m - a variety of wall and base units, stainless steel sink and drainer, space for appliances, double glazed window to front aspect
Sitting Room - 4.81m by 3.93m - double glazed window to rear aspect, double glazed door to rear aspect, spiral stair case to first floor
Landing with doors leading to
Bedroom 1 - 3.93m by 2.54m - double glazed window to rear aspect, fitted wardrobes, wall heater
Bedroom 2 - 3.93m by 2.20m - double glazed window to front aspect, wall heater
Bathroom - panelled bath with shower over, low level w/c, hand basin
Outside - to the front of the property is laid to lawn with a pathway leading to the first floor, driveway to side and garage. To the rear of the property is a good size enclosed garden mainly laid to lawn with patio area, shed and side door to garage.
Viewing
Please contact us on 01449 722242 if you wish to arrange a viewing appointment for this property, or require further information.
Hamilton Smith - IP16 endeavour to maintain accurate depictions of properties in Virtual Tours, Floor Plans and descriptions, however, these are intended only as a guide and purchasers must satisfy themselves by personal inspection.

