- Private garden
- Off street parking
- Central heating
- Double glazing
Full Description
Last remaining plot. We are pleased to offer for sale this brand new, high specification non estate bungalow, finished to the highest standards throughout ready for immediate occupation. With good amounts of off road parking and impressive un-overlook
The bungalows occupy a non estate position overlooking farmland within the desirable and sought after village of Barham. Barham and Claydon offer a range of shops including post office, pharmacy, hairdressers, public houses and primary and secondary schooling. The Suffolk county town of Ipswich is approximately three miles distant offering a much wider range of facilities including mainline railway link to London's Liverpool Street. The A14 trunk road offers access in an easterly direction to the A12 and Felixstowe and in a westerly direction to Bury St Edmunds, Cambridge and on to the Midlands.
This superb new build bungalow has been finished to the highest standards throughout by a local building company, totally finished ready for immediate occupation, comprising just two detached bungalows. Features include an inviting reception hall with solid oak doors throughout, two double bedrooms with good amounts of natural light and overlooking farmland to the front, there is a generous bathroom with separate shower and the open plan kitchen/living and dining room is located to the rear with bi-folding doors opening to the impressive, private garden. The property benefits from air source underfloor heating, double glazed windows and doors, a good range of built-in appliances, carpets and flooring and off road parking with electric vehicle charging point. Internal viewing is highly recommended.
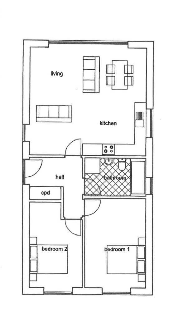
Reception hall:
10' 4" x 9' 9" (3.15m x 2.97m) At the longest points. L shaped. Part glazed entrance door, solid oak doors, mains smoke alarm, access to the insulated loft space, wood effect flooring, built-in cloaks cupboard/linen cupboard with double doors.
Kitchen/dining & sitting room:
19' 9" x 18' 5" (6.02m x 5.61m) A superb room with good amounts of natural light, PVC double glazed windows to the side aspect, wide PVC double glazed bi-folding doors opening to the rear garden.
Kitchen area is fitted with a good range of contemporary style base and wall mounted units, marble effect worktops inset with one and a half bowl stainless steel sink unit with mixer tap, built-in appliances include stainless steel and glass double oven, black glass ceramic hob with stainless steel extractor fan connected over, integrated fridge/freezer, washer/dryer and dishwasher, metro style wall tiling, lvt wood effect flooring, telephone, tv and media points.
Bedroom 1:
15' 4" x 10' 4" (4.67m x 3.15m) Fitted carpet, space for wardrobe, tv point, full height PVC double glazed window to the front aspect with views over farmland.
Bedroom 2:
14' 6" x 9' 2" (4.42m x 2.79m) Fitted carpet, space for wardrobe, tv point, full height PVC double glazed window to the front with views over farmland.
Bathroom:
10' 4" x 6' 4" (3.15m x 1.93m) Contemporary white suite comprises panel bath with shower mixer tap, low level wc, pedestal wash hand basin and independent curved shower enclosure with glazed screen, tall electric chrome towel radiator, spotlights, extractor fan, lvt wood effect flooring, PVC double glazed window to the side aspect.
Outside:
To the front of the bungalow there is an open block paved drive providing two side by side parking spaces with electric vehicle charging point. Pedestrian access leads to a lockable side gate opening to the impressive rear garden with generous paved terrace, sleeper border, steps lead to a good size lawn with mature flowering cherry tree, newly fenced boundaries. To the further side of the bungalow there is storage space.
Postcode: IP6 0PA
energy rating: C - 80
viewing:
By arrangement with the agents, Hamilton Smith, or email us at You can also visit our web site
Viewing
Please contact us on 01473 833307 if you wish to arrange a viewing appointment for this property, or require further information.
Energy Performance Certificate
Click here to view the Energy Efficiency Rating and Environmental Impact Rating for this property.
Hamilton Smith - IP16 endeavour to maintain accurate depictions of properties in Virtual Tours, Floor Plans and descriptions, however, these are intended only as a guide and purchasers must satisfy themselves by personal inspection.
The bungalows occupy a non estate position overlooking farmland within the desirable and sought after village of Barham. Barham and Claydon offer a range of shops including post office, pharmacy, hairdressers, public houses and primary and secondary schooling. The Suffolk county town of Ipswich is approximately three miles distant offering a much wider range of facilities including mainline railway link to London's Liverpool Street. The A14 trunk road offers access in an easterly direction to the A12 and Felixstowe and in a westerly direction to Bury St Edmunds, Cambridge and on to the Midlands.
This superb new build bungalow has been finished to the highest standards throughout by a local building company, totally finished ready for immediate occupation, comprising just two detached bungalows. Features include an inviting reception hall with solid oak doors throughout, two double bedrooms with good amounts of natural light and overlooking farmland to the front, there is a generous bathroom with separate shower and the open plan kitchen/living and dining room is located to the rear with bi-folding doors opening to the impressive, private garden. The property benefits from air source underfloor heating, double glazed windows and doors, a good range of built-in appliances, carpets and flooring and off road parking with electric vehicle charging point. Internal viewing is highly recommended.
Reception hall:
10' 4" x 9' 9" (3.15m x 2.97m) At the longest points. L shaped. Part glazed entrance door, solid oak doors, mains smoke alarm, access to the insulated loft space, wood effect flooring, built-in cloaks cupboard/linen cupboard with double doors.
Kitchen/dining & sitting room:
19' 9" x 18' 5" (6.02m x 5.61m) A superb room with good amounts of natural light, PVC double glazed windows to the side aspect, wide PVC double glazed bi-folding doors opening to the rear garden.
Kitchen area is fitted with a good range of contemporary style base and wall mounted units, marble effect worktops inset with one and a half bowl stainless steel sink unit with mixer tap, built-in appliances include stainless steel and glass double oven, black glass ceramic hob with stainless steel extractor fan connected over, integrated fridge/freezer, washer/dryer and dishwasher, metro style wall tiling, lvt wood effect flooring, telephone, tv and media points.
Bedroom 1:
15' 4" x 10' 4" (4.67m x 3.15m) Fitted carpet, space for wardrobe, tv point, full height PVC double glazed window to the front aspect with views over farmland.
Bedroom 2:
14' 6" x 9' 2" (4.42m x 2.79m) Fitted carpet, space for wardrobe, tv point, full height PVC double glazed window to the front with views over farmland.
Bathroom:
10' 4" x 6' 4" (3.15m x 1.93m) Contemporary white suite comprises panel bath with shower mixer tap, low level wc, pedestal wash hand basin and independent curved shower enclosure with glazed screen, tall electric chrome towel radiator, spotlights, extractor fan, lvt wood effect flooring, PVC double glazed window to the side aspect.
Outside:
To the front of the bungalow there is an open block paved drive providing two side by side parking spaces with electric vehicle charging point. Pedestrian access leads to a lockable side gate opening to the impressive rear garden with generous paved terrace, sleeper border, steps lead to a good size lawn with mature flowering cherry tree, newly fenced boundaries. To the further side of the bungalow there is storage space.
Postcode: IP6 0PA
energy rating: C - 80
viewing:
By arrangement with the agents, Hamilton Smith, or email us at You can also visit our web site
Viewing
Please contact us on 01473 833307 if you wish to arrange a viewing appointment for this property, or require further information.
Energy Performance Certificate
Click here to view the Energy Efficiency Rating and Environmental Impact Rating for this property.
Hamilton Smith - IP16 endeavour to maintain accurate depictions of properties in Virtual Tours, Floor Plans and descriptions, however, these are intended only as a guide and purchasers must satisfy themselves by personal inspection.

