- Off street parking
- Central heating
- Double glazing
Full Description
We are pleased to offer for sale this exceptional, extended two bedroom village bungalow, finished to the highest standards throughout, superbly presented, good amounts of off road parking and impressive landscaped rear garden. Occupying a prime position
The property occupies a prime position on level ground only a short stroll to the village centre of Claydon. Claydon offers a range of shops including post office, pharmacy, hairdressers, public houses and primary and secondary schooling. The Suffolk county town of Ipswich is approximately three miles distant offering a much wider range of facilities including mainline railway link to London's Liverpool Street. The A14 trunk road offers access in an easterly direction to the A12 and Felixstowe and in a westerly direction to Bury St Edmunds, Cambridge and on to the Midlands.
This superb, rarely available bungalow has been the subject of a meticulous updating, extending and refurbishment program. Presented in showhouse condition throughout ready for immediate occupation with the benefit of no onward chain. Features include bright and spacious sitting room with two windows to the front aspect, there are two double bedrooms with the main bedroom to the rear overlooking the gardens, there is also a re-fitted shower room. A particular feature is the live-in kitchen/dining room, extended and fitted with high quality kitchen with direct access to the appealing, landscaped garden. Internal viewing is essential to appreciate the condition and quality of the property throughout.
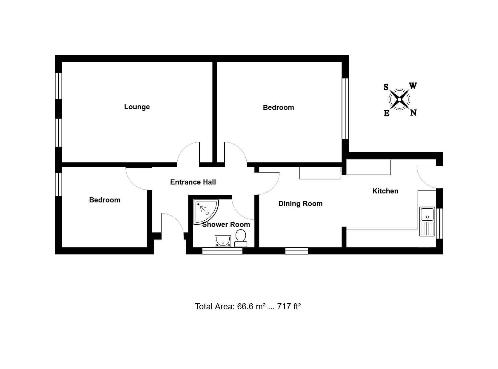
Reception hall:
PVC double glazed entrance door, mains smoke alarm, wood effect flooring, radiator, access to the insulated, part boarded loft space housing the modern gas fired boiler.
Sitting room:
16' 7" x 11' 2" (5.05m x 3.4m) Chimney breast, radiator, two generous PVC double glazed windows to the front aspect providing good amounts of natural light.
Live-in kitchen/dining room:
20' 4" x 9' 8" (6.2m x 2.95m) Fitted with an extensive range of good quality, contemporary style base and wall mounted units having matching grey doors and drawer fronts, grey granite style worktops inset with one and a half bowl sink unit with mixer tap, wide pan drawers, plumbing for washing machine, eye level stainless steel and glass fan assisted oven, inset black glass ceramic hob, glass splashback and extractor fan connected over, space for fridge/freezer, inset spotlights, contemporary style radiator, stone effect floor tiling, inset spotlights, high level tv point, generous PVC double glazed windows to the rear and side aspects, part glazed door opening to the rear garden.
Shower room:
Re-fitted suite comprising low level wc with concealed cistern, independent shower enclosure with curved glazed screen and built-in vanity unit with inset wash hand basin and storage cupboards below and mono mixer tap, chrome towel radiator, non slip flooring, extensive wall tiling, PVC double glazed window to the side aspect.
Bedroom 1:
13' 8" x 11' 7" (4.17m x 3.53m) Radiator, space for wardrobes, PVC double glazed window overlooking the rear garden.
Bedroom 2:
9' 4" x 8' 9" (2.84m x 2.67m) Radiator, space for wardrobes, PVC double glazed window to the front aspect.
Outside:
The bungalow is set nicely back with low maintenance gravel garden, adjacent block paved drive providing parking for at least two vehicles. Gated access leads to further enclosed drive. Immediately to the rear of the house there is a brick built store with PVC double glazed window and door, generous Indian sandstone terrace with wheelchair slope leading to the lower garden, again of low maintenance design with artificial lawn, block paved path to shaded seating area and good quality timber pergola with covered roof. There are mature shrub borders and fenced boundaries.
Postcode: IP6 0BH
energy rating: C - 70
viewing:
By arrangement with the agents, Hamilton Smith, or email us at You can also visit our web site
Viewing
Please contact us on 01473 833307 if you wish to arrange a viewing appointment for this property, or require further information.
Energy Performance Certificate
Click here to view the Energy Efficiency Rating and Environmental Impact Rating for this property.
Hamilton Smith - IP16 endeavour to maintain accurate depictions of properties in Virtual Tours, Floor Plans and descriptions, however, these are intended only as a guide and purchasers must satisfy themselves by personal inspection.
The property occupies a prime position on level ground only a short stroll to the village centre of Claydon. Claydon offers a range of shops including post office, pharmacy, hairdressers, public houses and primary and secondary schooling. The Suffolk county town of Ipswich is approximately three miles distant offering a much wider range of facilities including mainline railway link to London's Liverpool Street. The A14 trunk road offers access in an easterly direction to the A12 and Felixstowe and in a westerly direction to Bury St Edmunds, Cambridge and on to the Midlands.
This superb, rarely available bungalow has been the subject of a meticulous updating, extending and refurbishment program. Presented in showhouse condition throughout ready for immediate occupation with the benefit of no onward chain. Features include bright and spacious sitting room with two windows to the front aspect, there are two double bedrooms with the main bedroom to the rear overlooking the gardens, there is also a re-fitted shower room. A particular feature is the live-in kitchen/dining room, extended and fitted with high quality kitchen with direct access to the appealing, landscaped garden. Internal viewing is essential to appreciate the condition and quality of the property throughout.
Reception hall:
PVC double glazed entrance door, mains smoke alarm, wood effect flooring, radiator, access to the insulated, part boarded loft space housing the modern gas fired boiler.
Sitting room:
16' 7" x 11' 2" (5.05m x 3.4m) Chimney breast, radiator, two generous PVC double glazed windows to the front aspect providing good amounts of natural light.
Live-in kitchen/dining room:
20' 4" x 9' 8" (6.2m x 2.95m) Fitted with an extensive range of good quality, contemporary style base and wall mounted units having matching grey doors and drawer fronts, grey granite style worktops inset with one and a half bowl sink unit with mixer tap, wide pan drawers, plumbing for washing machine, eye level stainless steel and glass fan assisted oven, inset black glass ceramic hob, glass splashback and extractor fan connected over, space for fridge/freezer, inset spotlights, contemporary style radiator, stone effect floor tiling, inset spotlights, high level tv point, generous PVC double glazed windows to the rear and side aspects, part glazed door opening to the rear garden.
Shower room:
Re-fitted suite comprising low level wc with concealed cistern, independent shower enclosure with curved glazed screen and built-in vanity unit with inset wash hand basin and storage cupboards below and mono mixer tap, chrome towel radiator, non slip flooring, extensive wall tiling, PVC double glazed window to the side aspect.
Bedroom 1:
13' 8" x 11' 7" (4.17m x 3.53m) Radiator, space for wardrobes, PVC double glazed window overlooking the rear garden.
Bedroom 2:
9' 4" x 8' 9" (2.84m x 2.67m) Radiator, space for wardrobes, PVC double glazed window to the front aspect.
Outside:
The bungalow is set nicely back with low maintenance gravel garden, adjacent block paved drive providing parking for at least two vehicles. Gated access leads to further enclosed drive. Immediately to the rear of the house there is a brick built store with PVC double glazed window and door, generous Indian sandstone terrace with wheelchair slope leading to the lower garden, again of low maintenance design with artificial lawn, block paved path to shaded seating area and good quality timber pergola with covered roof. There are mature shrub borders and fenced boundaries.
Postcode: IP6 0BH
energy rating: C - 70
viewing:
By arrangement with the agents, Hamilton Smith, or email us at You can also visit our web site
Viewing
Please contact us on 01473 833307 if you wish to arrange a viewing appointment for this property, or require further information.
Energy Performance Certificate
Click here to view the Energy Efficiency Rating and Environmental Impact Rating for this property.
Hamilton Smith - IP16 endeavour to maintain accurate depictions of properties in Virtual Tours, Floor Plans and descriptions, however, these are intended only as a guide and purchasers must satisfy themselves by personal inspection.

