Full Description
Tenure: Leasehold
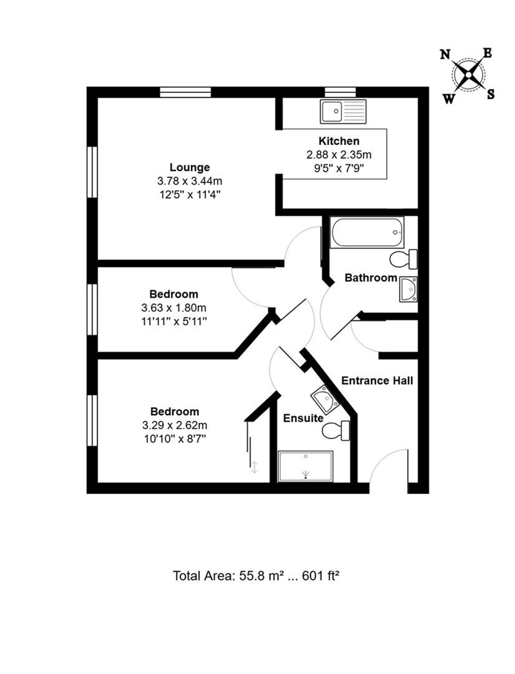
This two bedroom perfectly presented ground floor apartment offers an open plan living room/kitchen, master bedroom with en-suite, shower room, bathroom and allocated parking. The property is located close to Needham Market high street.
Needham Market:
Needham Market lies in the heart of Mid Suffolk between the towns of Bury St Edmunds and Ipswich. Facilities include butchers, bakers, post office, co-op supermarket and a number of individual shops. Needham Market also has a rail station with mainline connections to Ipswich and Stowmarket where in turn there are main line services to London Liverpool Street. The town also has the Needham Lake conservation area with a number of countryside walks and the county town of Ipswich is just eight miles away with all the social, shopping and leisure facilities.
Entrance Hall:
Tiled floor, radiator and door to...
Living Room: (3.78 x 3.44 (12'4" x 11'3"))
Double glazed window to side, two radiators, built in cupboard space and opens to...
Kitchen: (2.88 x 2.35 (9'5" x 7'8"))
Stainless steel sink and drainer, work top splash back tiles, integrated oven and space for appliances.
Bedroom One: (3.29 x 2.62 (10'9" x 8'7"))
Double glazed window to side, radiator, built in wardrobe and blinds.
En-Suite:
Double shower cubicle, low level w/c and hand wash basin with vanity.
Bedroom Two: (3.63 x 1.80 (11'10" x 5'10"))
Double glazed window to side and radiator.
Bathroom:
Low level w/c, hand wash basin, paneled bath with shower over, spotlights and tiled walls.
Agents note Ground rent - £364.72, Service charge £1471.96
EPC Rating: B
Viewing
Please contact us on 01449 722242 if you wish to arrange a viewing appointment for this property, or require further information.
Hamilton Smith - IP16 endeavour to maintain accurate depictions of properties in Virtual Tours, Floor Plans and descriptions, however, these are intended only as a guide and purchasers must satisfy themselves by personal inspection.

