- Private garden
- Single garage
- Off street parking
- Central heating
- Fireplace
Full Description
We are pleased to offer for sale this most appealing deceptively spacious period cottage, of special architectual interest, displaying a wealth of period charm with exposed beams, inglenooks fireplaces and delightful cottage style garden. With independent detached lodge providing further accommodation.
The property occupies a prominent and most convenient position within the heart of this well served and popular Mid Suffolk village offering easy access to Ipswich and the A14. Claydon offers a range of shops including post office, pharmacy, hairdressers, public houses and primary and secondary schooling. The Suffolk county town of Ipswich is approximately three miles distant offering a much wider range of facilities including mainline railway link to London's Liverpool Street. The A14 trunk road offers access in an easterly direction to the A12, Ipswich and Felixstowe and in a westerly direction to Bury St Edmunds, Cambridge and on to the Midlands.
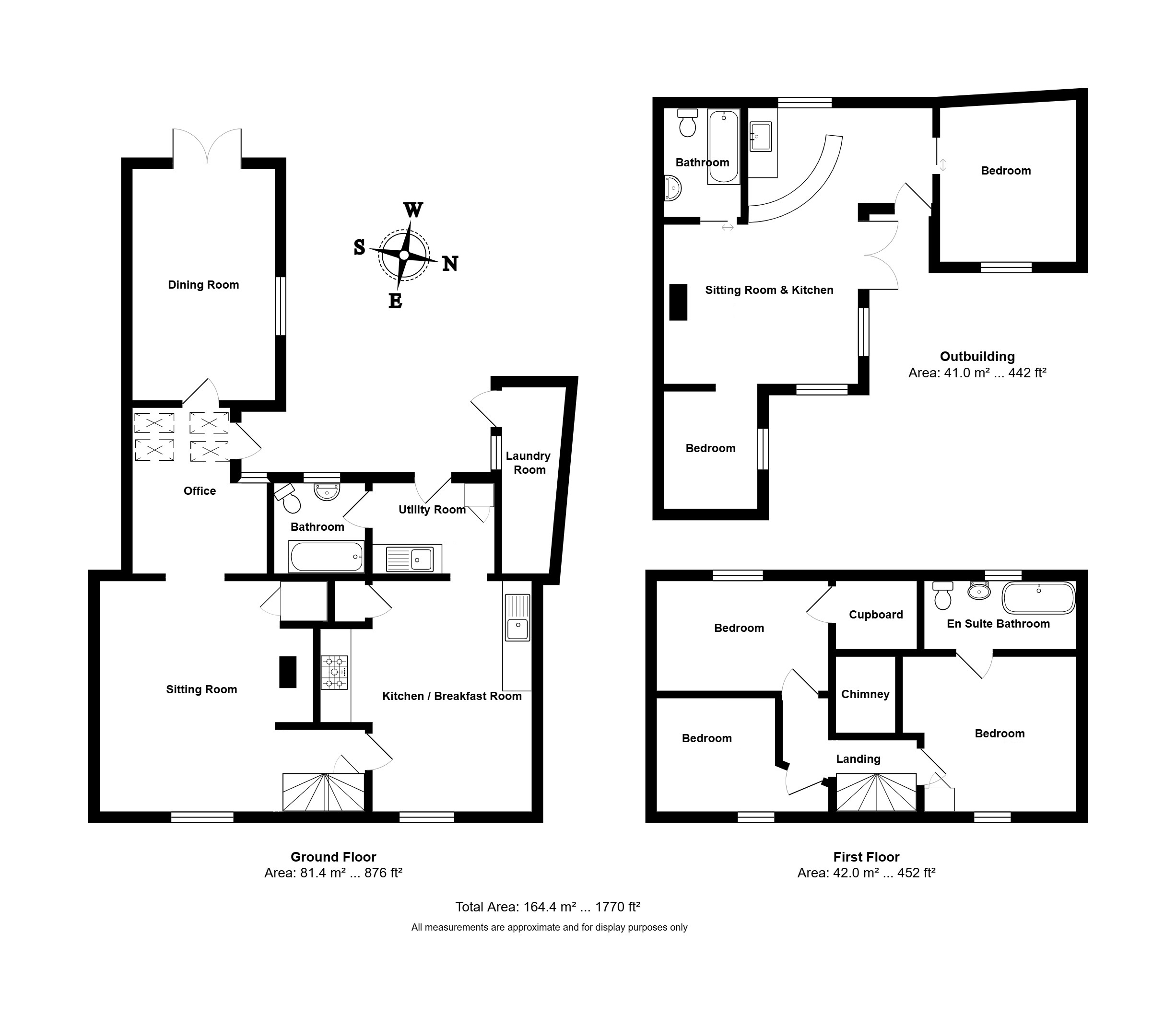
This amazing period cottage offers deceptively spacious accommodation having been extended to the rear. Presented in excellent condition throughout with charming individual interior displaying a wealth of period features including exposed timber frame, red brick inglenook fireplaces, brick floors and pine ledge & brace doors. Features include a bespoke kitchen with central inglenook fireplace, the atmospheric sitting room has massive red brick inglenook fitted with gas fired wood burning stove. The extended accommodation leads from the sitting room with a bright and airy vaulted study and generous dining room with French doors opening to the garden. The garden is a particular feature having been recently landscaped with an array of low maintenance planting. Unusually there is good amounts of off road parking, for at leas four cars as well as a garage. The current owner has added a further dimension with the installation of a detached two bedroom lodge offering independent accommodation. Internal viewing of this property is essential.
Rear entrance hall: 8' 4" x 6' 2" (2.54m x 1.88m) With half glazed entrance door, natural exposed brick flooring, good range of handmade painted base and wall mounted storage units, inset stainless steel single bowl sink unit with mixer tap.
Bathroom: White suite comprises enamel bath with shower connected over and glazed screen, low level wc and vanity unit with inset ceramic wash hand basin with storage cupboards below, extensive wall tiling, tiled floor, window to the rear aspect.
Kitchen: 15' 8" x 10' 9" (4.78m x 3.28m) Base storage cupboards, worktop inset stainless steel sink unit, space for fridge, massive inglenook fireplace with bressummer beam connected over, natural exposed brick floor, cast iron radiator, window to the front aspect.
Lower hall: Staircase to the first floor, built-in understairs storage cupboard with stripped and polished pine door.
Sitting room: 15' 4" x 12' 0" (4.67m x 3.66m) Stripped and polished natural pine floorboards, massive feature red brick inglenook fireplace with bressumer beam over and brick hearth inset with gas stove, storage cupboard with stripped pine doors.
Study: 11' 2" x 9' 0" (3.4m x 2.74m) With 10'5" high vaulted ceiling, attractive herringbone wood block flooring, part glazed roof, glazed door to the garden.
Dining/living room: 13' 0" x 10' 4" (3.96m x 3.15m) With 10'5" high vaulted ceiling, tiled floor, two built-in loft/eaves storage cupboards, French doors opening to the garden, further window to the side aspect.
First floor landing: Access to three bedrooms with pine ledge & brace doors.
Master bedrom: 11' 6" x 10' 7" (3.51m x 3.23m) Access to loft space, exposed wall and tie beams, built-in storage cupboard, access leads to the en-suite bathroom, dormer window to the front aspect.
En-suite bathroom: 8' 0" x 5' 0" (2.44m x 1.52m) White suite comprises full size panel bath, low level wc and pedestal wash hand basin, radiator, dormer window to the rear aspect.
Bedroom 2: 12' 3" x 7' 7" (3.73m x 2.31m) Exposed wall and tie beams, radiator, built-in storage cupboard, dormer window to the rear aspect.
Bedroom 3: 11' 9" x 8' 0" (3.58m x 2.44m) Exposed tie beam, dormer window to the front aspect.
Outside: Immediately to the rear of the house there is an attached utility room 12'2" x 4'8" plumbing for washing machine, space for tumble dryer, fitted worktop. Immediately to the rear of the house there is a generous well stocked low maintenance gravel garden with inset flowering plants, further raised block paved terracing to the rear of the dining room, fenced boundaries. Gated access leads to a wide gravel parking area suitable for up to four small cars, the parking area leads to the newly designed and planted garden, well stocked with an array of cottage style flowers and shrubs giving access to the detached timber lodge providing independent accommodation. Beside the garden there is a single garage with up and over door. Gravel drive to the side gives access to the road.
Annex/lodge:
Lobby: 6' 3 " x 5' 4" (1.91m x 1.63m)
kitchen/living room: 18' 8" x 12' 8" (5.69m x 3.86m) Kitchen area fitted with bespoke storage cupboards, slate tiled worktop inset butler sink.
Fitted wood burning stove, tv point, half glazed French doors and window to the front aspect.
Bedroom 1: 10' 3 " x 9' 4" (3.12m x 2.84m) window to the front aspect.
Bedroom 2: 8' 5" x 6' 3" (2.57m x 1.91m) Window to the front aspect.
Bathroom: 8' 5 " x 6' 3" (2.57m x 1.91m) Suite comprises low level wc, pedestal wash hand basin and bath with shower mixer tap and bi-folding glazed screen, wood flooring, tiled walls, window to the rear aspect.
Outside: Private garden with patio and mature shrubs.
Postcode: IP6 0AR
viewing: By arrangement with the agents, Hamilton Smith, or email us at . You can also visit our web site
Viewing
Please contact us on 01473 833307 if you wish to arrange a viewing appointment for this property, or require further information.
Hamilton Smith - IP16 endeavour to maintain accurate depictions of properties in Virtual Tours, Floor Plans and descriptions, however, these are intended only as a guide and purchasers must satisfy themselves by personal inspection.
The property occupies a prominent and most convenient position within the heart of this well served and popular Mid Suffolk village offering easy access to Ipswich and the A14. Claydon offers a range of shops including post office, pharmacy, hairdressers, public houses and primary and secondary schooling. The Suffolk county town of Ipswich is approximately three miles distant offering a much wider range of facilities including mainline railway link to London's Liverpool Street. The A14 trunk road offers access in an easterly direction to the A12, Ipswich and Felixstowe and in a westerly direction to Bury St Edmunds, Cambridge and on to the Midlands.
This amazing period cottage offers deceptively spacious accommodation having been extended to the rear. Presented in excellent condition throughout with charming individual interior displaying a wealth of period features including exposed timber frame, red brick inglenook fireplaces, brick floors and pine ledge & brace doors. Features include a bespoke kitchen with central inglenook fireplace, the atmospheric sitting room has massive red brick inglenook fitted with gas fired wood burning stove. The extended accommodation leads from the sitting room with a bright and airy vaulted study and generous dining room with French doors opening to the garden. The garden is a particular feature having been recently landscaped with an array of low maintenance planting. Unusually there is good amounts of off road parking, for at leas four cars as well as a garage. The current owner has added a further dimension with the installation of a detached two bedroom lodge offering independent accommodation. Internal viewing of this property is essential.
Rear entrance hall: 8' 4" x 6' 2" (2.54m x 1.88m) With half glazed entrance door, natural exposed brick flooring, good range of handmade painted base and wall mounted storage units, inset stainless steel single bowl sink unit with mixer tap.
Bathroom: White suite comprises enamel bath with shower connected over and glazed screen, low level wc and vanity unit with inset ceramic wash hand basin with storage cupboards below, extensive wall tiling, tiled floor, window to the rear aspect.
Kitchen: 15' 8" x 10' 9" (4.78m x 3.28m) Base storage cupboards, worktop inset stainless steel sink unit, space for fridge, massive inglenook fireplace with bressummer beam connected over, natural exposed brick floor, cast iron radiator, window to the front aspect.
Lower hall: Staircase to the first floor, built-in understairs storage cupboard with stripped and polished pine door.
Sitting room: 15' 4" x 12' 0" (4.67m x 3.66m) Stripped and polished natural pine floorboards, massive feature red brick inglenook fireplace with bressumer beam over and brick hearth inset with gas stove, storage cupboard with stripped pine doors.
Study: 11' 2" x 9' 0" (3.4m x 2.74m) With 10'5" high vaulted ceiling, attractive herringbone wood block flooring, part glazed roof, glazed door to the garden.
Dining/living room: 13' 0" x 10' 4" (3.96m x 3.15m) With 10'5" high vaulted ceiling, tiled floor, two built-in loft/eaves storage cupboards, French doors opening to the garden, further window to the side aspect.
First floor landing: Access to three bedrooms with pine ledge & brace doors.
Master bedrom: 11' 6" x 10' 7" (3.51m x 3.23m) Access to loft space, exposed wall and tie beams, built-in storage cupboard, access leads to the en-suite bathroom, dormer window to the front aspect.
En-suite bathroom: 8' 0" x 5' 0" (2.44m x 1.52m) White suite comprises full size panel bath, low level wc and pedestal wash hand basin, radiator, dormer window to the rear aspect.
Bedroom 2: 12' 3" x 7' 7" (3.73m x 2.31m) Exposed wall and tie beams, radiator, built-in storage cupboard, dormer window to the rear aspect.
Bedroom 3: 11' 9" x 8' 0" (3.58m x 2.44m) Exposed tie beam, dormer window to the front aspect.
Outside: Immediately to the rear of the house there is an attached utility room 12'2" x 4'8" plumbing for washing machine, space for tumble dryer, fitted worktop. Immediately to the rear of the house there is a generous well stocked low maintenance gravel garden with inset flowering plants, further raised block paved terracing to the rear of the dining room, fenced boundaries. Gated access leads to a wide gravel parking area suitable for up to four small cars, the parking area leads to the newly designed and planted garden, well stocked with an array of cottage style flowers and shrubs giving access to the detached timber lodge providing independent accommodation. Beside the garden there is a single garage with up and over door. Gravel drive to the side gives access to the road.
Annex/lodge:
Lobby: 6' 3 " x 5' 4" (1.91m x 1.63m)
kitchen/living room: 18' 8" x 12' 8" (5.69m x 3.86m) Kitchen area fitted with bespoke storage cupboards, slate tiled worktop inset butler sink.
Fitted wood burning stove, tv point, half glazed French doors and window to the front aspect.
Bedroom 1: 10' 3 " x 9' 4" (3.12m x 2.84m) window to the front aspect.
Bedroom 2: 8' 5" x 6' 3" (2.57m x 1.91m) Window to the front aspect.
Bathroom: 8' 5 " x 6' 3" (2.57m x 1.91m) Suite comprises low level wc, pedestal wash hand basin and bath with shower mixer tap and bi-folding glazed screen, wood flooring, tiled walls, window to the rear aspect.
Outside: Private garden with patio and mature shrubs.
Postcode: IP6 0AR
viewing: By arrangement with the agents, Hamilton Smith, or email us at . You can also visit our web site
Viewing
Please contact us on 01473 833307 if you wish to arrange a viewing appointment for this property, or require further information.
Hamilton Smith - IP16 endeavour to maintain accurate depictions of properties in Virtual Tours, Floor Plans and descriptions, however, these are intended only as a guide and purchasers must satisfy themselves by personal inspection.
Parsing error occurred in template '85399453' -> Object reference not set to an instance of an object.
Content.RazorEngine37
at Content.RazorEngine37.RazorEngineTemplatingService.Parse(String Markup, Object Model, String UniqueKey)
at Content.RazorEngine37.RazorEngineTemplatingService.Render(String Markup, Object Model, ICanvas Output)
at AFP.WebUI.Presentation.Components.Form.Form.Render()
at AFP.Content.WebControls.ContentControl._Lambda$__5(IComponent x)Object reference not set to an instance of an object.
AFP.Content.Templating
at AFP.Content.Templating.Helpers.ContentHelper.get_Heading()
at CallSite.Target(Closure , CallSite , Object )
at CompiledRazorTemplates.Dynamic.RazorEngine_560aec1ac2264bb6aaaaa75fa2890ea4.Execute()
at RazorEngine.Templating.TemplateBase.RazorEngine.Templating.ITemplate.Run(ExecuteContext context, TextWriter reader)
at RazorEngine.Templating.TemplateBase.<>c__DisplayClass3.
at RazorEngine.Templating.TemplateWriter.WriteTo(TextWriter writer)
at RazorEngine.Templating.TemplateBase.Write(TemplateWriter helper)
at CallSite.Target(Closure , CallSite , RazorEngine_f03a84faebfa44ddbbef80399e16959e , Object )
at CompiledRazorTemplates.Dynamic.RazorEngine_f03a84faebfa44ddbbef80399e16959e.Execute()
at RazorEngine.Templating.TemplateBase.RazorEngine.Templating.ITemplate.Run(ExecuteContext context, TextWriter reader)
at RazorEngine.Templating.TemplateBase.<>c__DisplayClass3.
at RazorEngine.Templating.TemplateWriter.WriteTo(TextWriter writer)
at RazorEngine.Templating.TemplateBase.Write(TemplateWriter helper)
at CompiledRazorTemplates.Dynamic.RazorEngine_9ba97839b6434898a70a94a11a240c9c.Execute()
at RazorEngine.Templating.TemplateBase.RazorEngine.Templating.ITemplate.Run(ExecuteContext context, TextWriter reader)
at RazorEngine.Templating.RazorEngineCore.RunTemplate(ICompiledTemplate template, TextWriter writer, Object model, DynamicViewBag viewBag)
at RazorEngine.Templating.RazorEngineService.RunCompile(ITemplateKey key, TextWriter writer, Type modelType, Object model, DynamicViewBag viewBag)
at RazorEngine.Templating.DynamicWrapperService.RunCompile(ITemplateKey key, TextWriter writer, Type modelType, Object model, DynamicViewBag viewBag)
at RazorEngine.Templating.RazorEngineServiceExtensions.<>c__DisplayClass4.
at RazorEngine.Templating.RazorEngineServiceExtensions.WithWriter(Action`1 withWriter)
at RazorEngine.Templating.RazorEngineServiceExtensions.RunCompile(IRazorEngineService service, String name, Type modelType, Object model, DynamicViewBag viewBag)
at RazorEngine.Templating.RazorEngineServiceExtensions.RunCompile(IRazorEngineService service, String templateSource, String name, Type modelType, Object model, DynamicViewBag viewBag)
at Content.RazorEngine37.RazorEngineTemplatingService.Parse(String Markup, Object Model, String UniqueKey)

