- Detached new build bungalow on small site of just 8 bungalows
- Contemporary kitchen with built-in appliances
- Sitting room with bi-fold doors
- Three bedrooms with contemporary en-suite to master
- Landscaped front & rear garden, block paved drive
- Gas fired heating, double glazing & solar panels
- 10 year builders warranty
- Walking distance to bus stop, shop & pub
Full Description
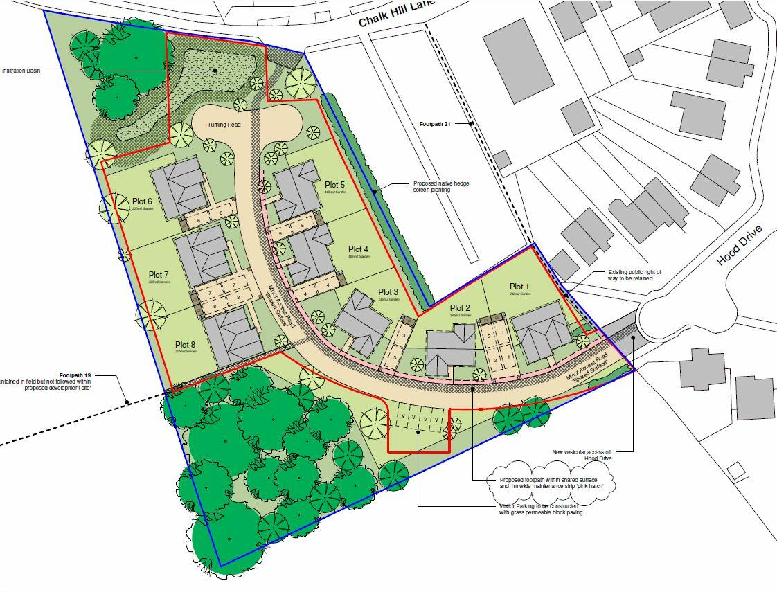
We are pleased to offer sale an exciting new development of just eight, energy efficient 2 and 3 bedroom detached bungalows. Finished to a high standard throughout with contemporary kitchen and en-suite, parking and good size gardens.
This delightful development of just eight brand new bungalows is situated within a private drive offering stunning field views, within the popular Mid Suffolk village of Great Blakenham. Great Blakenham is an easily accessible village with links to both the A12 and A14. The village benefits from recently opened Budgens supermarket serving a good range of everyday shopping. There is also a recently extended and upgraded popular village Indian Restaurant. The river Gipping is situated close to the village with some attractive river walks along the water meadows. The larger village of Claydon is approximately 1/2 mile distance offering a wider range of shopping, recreational and schooling facilities.
This brand new detached village bungalow has been designed and built to a high standard with low maintenance and energy efficiency in mind. Features include a large inviting reception hall which leads to the open plan style sitting room, kitchen and dining room. The sitting room has bi-fold doors and offers views over the good size rear garden, direct access leads to the kitchen and dining room with ample contemporary styled units and built-in appliances. The hallway further leads to the modern bathroom and three bedrooms, all of which are doubles with the master having a modern en-suite shower room. Outside the property has gardens to the front and rear and generous block paved drive conveniently located to the side of the property. Further benefits include gas fired heating to radiators, double glazed windows and doors, solar panels and 10 year builders warranty.
Reception hall:
Composite entrance door and side window, radiator, built-in cloaks cupboard.
Sitting room/kitchen/dining room:
32' 6" x 11' 1" (9.91m x 3.38m) A bright & airy room with numerous windows allowing for lots of natural light.
Sitting room:
Radiator, two double glazed windows to the side aspect, double glazed bi-folding doors open to the garden.
Kitchen/dining room:
Fitted with a generous range of contemporary styled base and wall mounted units having matching doors and drawer fronts, fitted worktops inset one and a half bowl sink unit with mixer tap, built-in appliances include four ring ceramic hob, eye level oven, extractor fan, washing machine and dishwasher, space for fridge/freezer, wall mounted gas fired boiler, contemporary vertical radiator, double glazed windows to the side and rear aspects.
Bathroom:
9' 0" x 5' 6" (2.74m x 1.68m) Contemporary suite comprises panel bath, wall mounted vanity unit with storage and inset wash hand basin with mono mixer tap and low level wc, heated towel rail.
Bedroom 1:
13' 5" x 10' 7" (4.09m x 3.23m) Radiator, double glazed window to the rear aspect.
En-suite:
8' 8" x 5' 11" (2.64m x 1.8m) Contemporary suite comprises double sized, tiled shower cubicle with sliding glazed screen and vanity unit with storage cupboard, inset wash hand basin with mono mixer tap and low level wc with concealed cistern, half tiled walls, heated towel radiator, double glazed window to the side aspect.
Bedroom 2:
14' 0" x 12' 3" (4.27m x 3.73m) Radiator, double glazed window to the front aspect with field views.
Bedroom 3:
10' 6" x 8' 5" (3.2m x 2.57m) Radiator, double glazed window to the front aspect with field views.
Outside:
The gardens to both the front and rear have been landscaped. The front garden is laid to lawn with planted beds, path to front door. Block paved drive to the side provides parking for two vehicles. Solar panels. Secure gated access to the side leads to the good size rear garden, laid to lawn with patio area, fenced boundaries, open field views.
Postcode: IP6 0ft
energy rating: Tbc
viewing:
By arrangement with the agents, Hamilton Smith, or email us at You can also visit our web site
Viewing
Please contact us on 01473 833307 if you wish to arrange a viewing appointment for this property, or require further information.
Hamilton Smith - IP16 endeavour to maintain accurate depictions of properties in Virtual Tours, Floor Plans and descriptions, however, these are intended only as a guide and purchasers must satisfy themselves by personal inspection.
This delightful development of just eight brand new bungalows is situated within a private drive offering stunning field views, within the popular Mid Suffolk village of Great Blakenham. Great Blakenham is an easily accessible village with links to both the A12 and A14. The village benefits from recently opened Budgens supermarket serving a good range of everyday shopping. There is also a recently extended and upgraded popular village Indian Restaurant. The river Gipping is situated close to the village with some attractive river walks along the water meadows. The larger village of Claydon is approximately 1/2 mile distance offering a wider range of shopping, recreational and schooling facilities.
This brand new detached village bungalow has been designed and built to a high standard with low maintenance and energy efficiency in mind. Features include a large inviting reception hall which leads to the open plan style sitting room, kitchen and dining room. The sitting room has bi-fold doors and offers views over the good size rear garden, direct access leads to the kitchen and dining room with ample contemporary styled units and built-in appliances. The hallway further leads to the modern bathroom and three bedrooms, all of which are doubles with the master having a modern en-suite shower room. Outside the property has gardens to the front and rear and generous block paved drive conveniently located to the side of the property. Further benefits include gas fired heating to radiators, double glazed windows and doors, solar panels and 10 year builders warranty.
Reception hall:
Composite entrance door and side window, radiator, built-in cloaks cupboard.
Sitting room/kitchen/dining room:
32' 6" x 11' 1" (9.91m x 3.38m) A bright & airy room with numerous windows allowing for lots of natural light.
Sitting room:
Radiator, two double glazed windows to the side aspect, double glazed bi-folding doors open to the garden.
Kitchen/dining room:
Fitted with a generous range of contemporary styled base and wall mounted units having matching doors and drawer fronts, fitted worktops inset one and a half bowl sink unit with mixer tap, built-in appliances include four ring ceramic hob, eye level oven, extractor fan, washing machine and dishwasher, space for fridge/freezer, wall mounted gas fired boiler, contemporary vertical radiator, double glazed windows to the side and rear aspects.
Bathroom:
9' 0" x 5' 6" (2.74m x 1.68m) Contemporary suite comprises panel bath, wall mounted vanity unit with storage and inset wash hand basin with mono mixer tap and low level wc, heated towel rail.
Bedroom 1:
13' 5" x 10' 7" (4.09m x 3.23m) Radiator, double glazed window to the rear aspect.
En-suite:
8' 8" x 5' 11" (2.64m x 1.8m) Contemporary suite comprises double sized, tiled shower cubicle with sliding glazed screen and vanity unit with storage cupboard, inset wash hand basin with mono mixer tap and low level wc with concealed cistern, half tiled walls, heated towel radiator, double glazed window to the side aspect.
Bedroom 2:
14' 0" x 12' 3" (4.27m x 3.73m) Radiator, double glazed window to the front aspect with field views.
Bedroom 3:
10' 6" x 8' 5" (3.2m x 2.57m) Radiator, double glazed window to the front aspect with field views.
Outside:
The gardens to both the front and rear have been landscaped. The front garden is laid to lawn with planted beds, path to front door. Block paved drive to the side provides parking for two vehicles. Solar panels. Secure gated access to the side leads to the good size rear garden, laid to lawn with patio area, fenced boundaries, open field views.
Postcode: IP6 0ft
energy rating: Tbc
viewing:
By arrangement with the agents, Hamilton Smith, or email us at You can also visit our web site
Viewing
Please contact us on 01473 833307 if you wish to arrange a viewing appointment for this property, or require further information.
Hamilton Smith - IP16 endeavour to maintain accurate depictions of properties in Virtual Tours, Floor Plans and descriptions, however, these are intended only as a guide and purchasers must satisfy themselves by personal inspection.

