Full Description
Development opportunity.... Located on the High Street in Needham is this opportunity to develop the upper floor of the Old Bank Building. Current planning for three residential apartments, with parking to rear.
Needham Market:
Needham Market lies in the heart of Mid Suffolk between the towns of Bury St Edmunds and Ipswich. Facilities include butchers, bakers, post office, co-op supermarket and a number of individual shops. Needham Market also has a rail station with mainline connections to Ipswich and Stowmarket where in turn there are main line services to London Liverpool Street. The town also has the Needham Lake conservation area with a number of countryside walks and the county town of Ipswich is just eight miles away with all the social, shopping and leisure facilities.
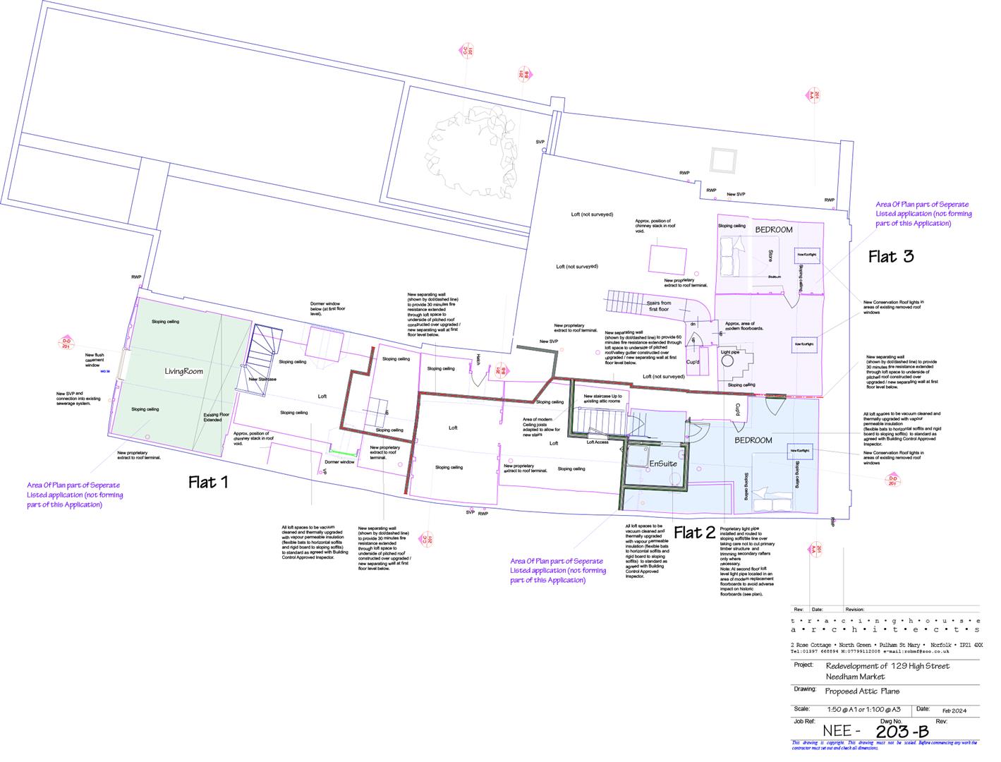
Apartment One
50sqm - 538 sqft
Apartment Two
85sqm - 914 sqft
Apartment Three
100 sqm - 1076 sqft
Agents Notes
Attic space subject to planning.
Needham Market:
Hamilton Smith Needham Market
Viewing
Please contact us on 01449 722242 if you wish to arrange a viewing appointment for this property, or require further information.
Hamilton Smith - IP16 endeavour to maintain accurate depictions of properties in Virtual Tours, Floor Plans and descriptions, however, these are intended only as a guide and purchasers must satisfy themselves by personal inspection.

