- SPACIOUS RECEPTION HALL / GROUND FLOOR CLOAKROOM
- 15' SITTING ROOM WITH FRENCH DOORS
- ATTRACTIVE 17' KITCHEN/DINING ROOM
- SPACIOUS LANDING
- MASTER BEDROOM WITH EN-SUITE
- TWO FURTHER BEDROOMS
- MODERN FAMILY BATHROOM
- GAS FIRED HEATING / PVC DOUBLE GLAZING
- BLOCK PAVED DRIVE & BRICK BUILT GARAGE
- LARGE REAR GARDEN / WALKING DISTANCE TO SCHOOLS & SHOPS
Full Description
We are pleased to offer for sale this BEAUTIFULLY PRESENTED THREE BEDROOM DETACHED FAMILY HOUSE, with well planned and spacious accommodation, generous parking, detached garage and good size rear garden. Located within the ever popular village of Great Blakenham offering easy access to the A14 and Ipswich.
SITUATION: This property is located on the ever popular Plummers Dell development at Great Blakenham. Great Blakenham is an easily accessible village with convenient links to both the A12 and A14. The village benefits from recently opened Tesco store serving a good range of everyday shopping. There is also a recently extended and upgraded popular village Indian Restaurant. The river Gipping is situated close to the village with some attractive river walks along the water meadows. The larger village of Claydon is approximately 1/2 miles distance offering a wider range of shopping, recreational and schooling facilities.
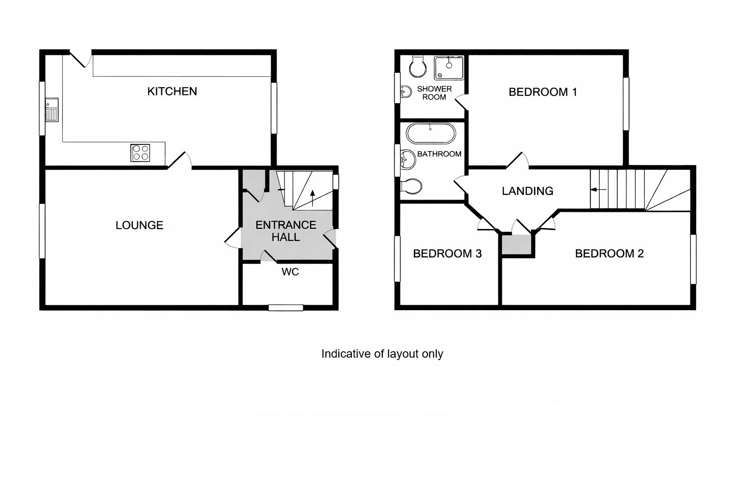
This impressive well cared for house offers deceptively spacious accommodation with well planned open and airy layout. Features include an inviting and spacious reception hall leading to generous sitting room, located to the rear of the property with French doors opening to the garden, the kitchen/dining room is fitted with an array of built-in appliances with door leading directly to the drive. On the first floor a spacious landing gives access to the master bedroom with en-suite shower room, two further good size bedrooms and modern family bathroom. To the side of the house there is a generous drive and good size brick built garage, gated side access leads to the good size rear garden. Internal viewing is essential.
RECEPTION HALL: 6' 2" x 5' 1 " (1.88m x 1.55m) Part glazed entrance door, radiator, smoke alarm, staircase leading to the first floor, PVC double glazed window to the front aspect.
CLOAKROOM: Suite comprising low level wc and vanity unit with inset wash hand basin, tiled splash backs, radiator, PVC double glazed window to the side aspect.
SITTING ROOM: 15' 4 " x 10' 9" (4.67m x 3.28m) Radiator, tv point, French doors opening to the rear garden.
KITCHEN/DINING ROOM: 17' 9" x 8' 8" (5.41m x 2.64m) Fitted with a good range of base and wall mounted units having matching high gloss doors and drawer fronts, fitted worktops inset with stainless steel sink unit with mixer tap, four ring electric hob, extractor connected over, built-in dishwasher, fridge/freezer, eye level oven and coffee machine, space for washing machine, wood effect flooring, PVC double glazed windows to the front and rear aspects.
FIRST FLOOR LANDING: Smoke alarm, built-in storage cupboard housing the gas fired combination boiler, access to loft space.
MASTER BEDROOM: 12' 6" x 8' 9" (3.81m x 2.67m) Radiator, PVC double glazed window to the front aspect.
EN-SUITE: 5 ' 9" x 5 ' 5 " (1.75m x 1.65m) Suite comprises low level wc, pedestal wash hand basin and good size shower enclosure with glazed screen, heated towel rail, PVC double glazed window to the rear aspect.
BEDROOM 2: 10' 4" x 7' 9" (3.15m x 2.36m) Radiator, PVC double glazed window to the front aspect.
BEDROOM 3: 7' 10" x 7' 9" (2.39m x 2.36m) Radiator, PVC double glazed window to the rear aspect.
FAMILY BATHROOM: 6' 7" x 5 ' 6" (2.01m x 1.68m) White suite comprises free standing bath with shower mixer tap, low level wc with concealed cistern and vanity unit inset wash hand basin with mixer tap and storage cupboard below, heated towel rail, half tiled walls, tiled floor, PVC double glazed window to the rear aspect.
OUTSIDE: To the front of the house is predominately laid to lawn. Extended block paved drive to the side provides parking for up to three vehicles and leads to the garage with up and over door, power and light connected. Secure gated access to the side leads to the impressive rear garden with decked seating areas, generous lawn, decorative borders, fenced boundaries.
POSTCODE: IP6 0HW
ENERGY RATING: TBC
VIEWING: By arrangement with the agents, Hamilton Smith, 01473 833307, or email us at claydon@hamilton-smith.com You can also visit our web site www.hamilton-smith.com
Viewing
Please contact us on 01473 833307 if you wish to arrange a viewing appointment for this property, or require further information.
Hamilton Smith - IP16 endeavour to maintain accurate depictions of properties in Virtual Tours, Floor Plans and descriptions, however, these are intended only as a guide and purchasers must satisfy themselves by personal inspection.
SITUATION: This property is located on the ever popular Plummers Dell development at Great Blakenham. Great Blakenham is an easily accessible village with convenient links to both the A12 and A14. The village benefits from recently opened Tesco store serving a good range of everyday shopping. There is also a recently extended and upgraded popular village Indian Restaurant. The river Gipping is situated close to the village with some attractive river walks along the water meadows. The larger village of Claydon is approximately 1/2 miles distance offering a wider range of shopping, recreational and schooling facilities.
This impressive well cared for house offers deceptively spacious accommodation with well planned open and airy layout. Features include an inviting and spacious reception hall leading to generous sitting room, located to the rear of the property with French doors opening to the garden, the kitchen/dining room is fitted with an array of built-in appliances with door leading directly to the drive. On the first floor a spacious landing gives access to the master bedroom with en-suite shower room, two further good size bedrooms and modern family bathroom. To the side of the house there is a generous drive and good size brick built garage, gated side access leads to the good size rear garden. Internal viewing is essential.
RECEPTION HALL: 6' 2" x 5' 1 " (1.88m x 1.55m) Part glazed entrance door, radiator, smoke alarm, staircase leading to the first floor, PVC double glazed window to the front aspect.
CLOAKROOM: Suite comprising low level wc and vanity unit with inset wash hand basin, tiled splash backs, radiator, PVC double glazed window to the side aspect.
SITTING ROOM: 15' 4 " x 10' 9" (4.67m x 3.28m) Radiator, tv point, French doors opening to the rear garden.
KITCHEN/DINING ROOM: 17' 9" x 8' 8" (5.41m x 2.64m) Fitted with a good range of base and wall mounted units having matching high gloss doors and drawer fronts, fitted worktops inset with stainless steel sink unit with mixer tap, four ring electric hob, extractor connected over, built-in dishwasher, fridge/freezer, eye level oven and coffee machine, space for washing machine, wood effect flooring, PVC double glazed windows to the front and rear aspects.
FIRST FLOOR LANDING: Smoke alarm, built-in storage cupboard housing the gas fired combination boiler, access to loft space.
MASTER BEDROOM: 12' 6" x 8' 9" (3.81m x 2.67m) Radiator, PVC double glazed window to the front aspect.
EN-SUITE: 5 ' 9" x 5 ' 5 " (1.75m x 1.65m) Suite comprises low level wc, pedestal wash hand basin and good size shower enclosure with glazed screen, heated towel rail, PVC double glazed window to the rear aspect.
BEDROOM 2: 10' 4" x 7' 9" (3.15m x 2.36m) Radiator, PVC double glazed window to the front aspect.
BEDROOM 3: 7' 10" x 7' 9" (2.39m x 2.36m) Radiator, PVC double glazed window to the rear aspect.
FAMILY BATHROOM: 6' 7" x 5 ' 6" (2.01m x 1.68m) White suite comprises free standing bath with shower mixer tap, low level wc with concealed cistern and vanity unit inset wash hand basin with mixer tap and storage cupboard below, heated towel rail, half tiled walls, tiled floor, PVC double glazed window to the rear aspect.
OUTSIDE: To the front of the house is predominately laid to lawn. Extended block paved drive to the side provides parking for up to three vehicles and leads to the garage with up and over door, power and light connected. Secure gated access to the side leads to the impressive rear garden with decked seating areas, generous lawn, decorative borders, fenced boundaries.
POSTCODE: IP6 0HW
ENERGY RATING: TBC
VIEWING: By arrangement with the agents, Hamilton Smith, 01473 833307, or email us at claydon@hamilton-smith.com You can also visit our web site www.hamilton-smith.com
Viewing
Please contact us on 01473 833307 if you wish to arrange a viewing appointment for this property, or require further information.
Hamilton Smith - IP16 endeavour to maintain accurate depictions of properties in Virtual Tours, Floor Plans and descriptions, however, these are intended only as a guide and purchasers must satisfy themselves by personal inspection.

