- ENTRANCE HALL / GROUND FLOOR CLOAKROOM
- SITTING ROOM
- IMPRESSIVE MODERN FITTED KITCHEN/DINING ROOM
- PVC CONSERVATORY
- FIRST FLOOR LANDING
- THREE BEDROOMS / MODERN FAMILY BATHROOM
- GAS FIRED HEATING / PVC DOUBLE GLAZING
- LANDSCAPED REAR GARDEN
- DRIVE & CONVERTED GARAGE
- EASY ACCESS TO IPSWICH & A14
Full Description
We are pleased to offer for sale this VERY WELL PRESENTED, MODERN THREE BEDROOM SEMI DETACHED VILLAGE HOME, benefiting from PVC conservatory, landscaped rear garden, drive and converted garage with store. Located within the ever popular and well served village of Great Blakenham with easy access schools, shops and the A14.
SITUATION: The property is located on the ever popular Plummers Dell development at Great Blakenham. Great Blakenham is an easily accessible village with links to both the A12 and A14. The village benefits from recently opened Budgens supermarket serving a good range of everyday shopping. There is also a recently extended and upgraded popular village Indian Restaurant. The river Gipping is situated close to the village with some attractive river walks along the water meadows. The larger village of Claydon is approximately 1/2 miles distance offering a wider range of shopping, recreational and schooling facilities.
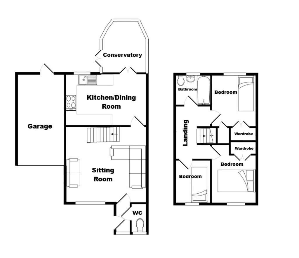
This modern village home is offered to the market in good decorative condition throughout and has been extended with a conservatory to the rear. Features include entrance hall with ground floor cloakroom, good size sitting room and impressive modern fitted kitchen/dining room opening to the PVC conservatory. On the first floor the landing provides access to the modern family bathroom and three bedrooms. The garden to the rear has been landscaped and faces south, drive to the side provides off road parking and leads to the converted garage, currently sub-divided to provide both storage and work from home space. Internal inspection is highly advised.
ENTRANCE HALL: PVC half glazed entrance door, PVC double glazed window to the front aspect.
GROUND FLOOR CLOAKROOM: Suite comprises low level wc and vanity unit with storage cupboards and inset wash hand basin, radiator, PVC double glazed window to the front aspect.
SITTING ROOM: 14' 10" x 14' 1" (4.52m x 4.29m) Radiator, wood flooring, tv point, staircase to the first floor, built-in understairs storage cupboard, PVC double glazed window to the front aspect.
KITCHEN/DINING ROOM: 14' 10" x 9' 5" (4.52m x 2.87m) Fitted with a good range of modern base and wall mounted units having matching white doors and drawer fronts, fitted worktops inset with stainless steel single bowl sink unit with mixer tap, metro style tiled splash backs, built-in appliances include dishwasher, fridge/freezer, stainless steel and black glass oven, stainless steel four ring gas hob above and stainless steel extractor fan connected over, plumbing for washing machine, radiator, PVC double glazed window and sliding patio doors to the conservatory.
CONSERVATORY: PVC double glazed construction upon a brick plinth with pitched roof, wood flooring, PVC double glazed French doors opening to the garden.
FIRST FLOOR LANDING: Decorative glass balustrading, radiator, access to the insulated loft space.
BATHROOM: Modern suite comprises vanity unit with inset low level wc with concealed cistern and worktop above, inset wash hand basin with storage cupboards below and shower jacuzzi bath with shower connected over and glazed screen, extensive wall tiling, heated towel radiator, PVC double glazed window to the rear.
BEDROOM 1: 10' 10" x 8' 3" (3.3m x 2.51m) Radiator, built-in double wardrobe with sliding doors, PVC double glazed window to the front aspect.
BEDROOM 2: 9' 7" x 8' 2" (2.92m x 2.49m) Radiator, built-in double wardrobe, PVC double glazed window to the rear aspect.
BEDROOM 3: 9' 6" x 9' 5" (2.9m x 2.87m) Radiator, PVC double glazed window to the front aspect.
OUTSIDE: The house is set back with garden to the front being laid to lawn with mature shrubs. Drive to the side provides parking and gives access to the garage with up and over door and door leading directly to the garden, currently sub-divided to provide both storage space and work from home space. To the rear the garden has been landscaped with large paved terrace, lawn, raised sleeper, flower and shrub borders, timber garden store, fenced boundaries.
POSTCODE: IP6 0HW
ENERGY RATING: TBC
VIEWING: By arrangement with the agents, Hamilton Smith, 01473 833307, or email us at claydon@hamilton-smith.com You can also visit our web site www.hamilton-smith.com
Viewing
Please contact us on 01473 833307 if you wish to arrange a viewing appointment for this property, or require further information.
Hamilton Smith - IP16 endeavour to maintain accurate depictions of properties in Virtual Tours, Floor Plans and descriptions, however, these are intended only as a guide and purchasers must satisfy themselves by personal inspection.
SITUATION: The property is located on the ever popular Plummers Dell development at Great Blakenham. Great Blakenham is an easily accessible village with links to both the A12 and A14. The village benefits from recently opened Budgens supermarket serving a good range of everyday shopping. There is also a recently extended and upgraded popular village Indian Restaurant. The river Gipping is situated close to the village with some attractive river walks along the water meadows. The larger village of Claydon is approximately 1/2 miles distance offering a wider range of shopping, recreational and schooling facilities.
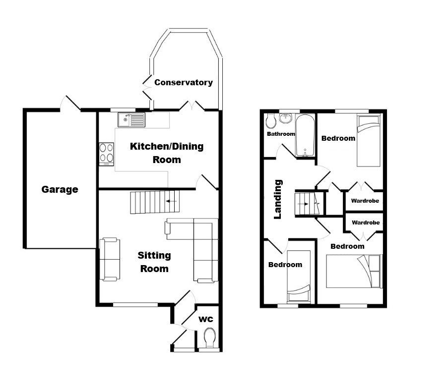
This modern village home is offered to the market in good decorative condition throughout and has been extended with a conservatory to the rear. Features include entrance hall with ground floor cloakroom, good size sitting room and impressive modern fitted kitchen/dining room opening to the PVC conservatory. On the first floor the landing provides access to the modern family bathroom and three bedrooms. The garden to the rear has been landscaped and faces south, drive to the side provides off road parking and leads to the converted garage, currently sub-divided to provide both storage and work from home space. Internal inspection is highly advised.
ENTRANCE HALL: PVC half glazed entrance door, PVC double glazed window to the front aspect.
GROUND FLOOR CLOAKROOM: Suite comprises low level wc and vanity unit with storage cupboards and inset wash hand basin, radiator, PVC double glazed window to the front aspect.
SITTING ROOM: 14' 10" x 14' 1" (4.52m x 4.29m) Radiator, wood flooring, tv point, staircase to the first floor, built-in understairs storage cupboard, PVC double glazed window to the front aspect.
KITCHEN/DINING ROOM: 14' 10" x 9' 5" (4.52m x 2.87m) Fitted with a good range of modern base and wall mounted units having matching white doors and drawer fronts, fitted worktops inset with stainless steel single bowl sink unit with mixer tap, metro style tiled splash backs, built-in appliances include dishwasher, fridge/freezer, stainless steel and black glass oven, stainless steel four ring gas hob above and stainless steel extractor fan connected over, plumbing for washing machine, radiator, PVC double glazed window and sliding patio doors to the conservatory.
CONSERVATORY: PVC double glazed construction upon a brick plinth with pitched roof, wood flooring, PVC double glazed French doors opening to the garden.
FIRST FLOOR LANDING: Decorative glass balustrading, radiator, access to the insulated loft space.
BATHROOM: Modern suite comprises vanity unit with inset low level wc with concealed cistern and worktop above, inset wash hand basin with storage cupboards below and shower jacuzzi bath with shower connected over and glazed screen, extensive wall tiling, heated towel radiator, PVC double glazed window to the rear.
BEDROOM 1: 10' 10" x 8' 3" (3.3m x 2.51m) Radiator, built-in double wardrobe with sliding doors, PVC double glazed window to the front aspect.
BEDROOM 2: 9' 7" x 8' 2" (2.92m x 2.49m) Radiator, built-in double wardrobe, PVC double glazed window to the rear aspect.
BEDROOM 3: 9' 6" x 9' 5" (2.9m x 2.87m) Radiator, PVC double glazed window to the front aspect.
OUTSIDE: The house is set back with garden to the front being laid to lawn with mature shrubs. Drive to the side provides parking and gives access to the garage with up and over door and door leading directly to the garden, currently sub-divided to provide both storage space and work from home space. To the rear the garden has been landscaped with large paved terrace, lawn, raised sleeper, flower and shrub borders, timber garden store, fenced boundaries.
POSTCODE: IP6 0HW
ENERGY RATING: TBC
VIEWING: By arrangement with the agents, Hamilton Smith, 01473 833307, or email us at claydon@hamilton-smith.com You can also visit our web site www.hamilton-smith.com
Viewing
Please contact us on 01473 833307 if you wish to arrange a viewing appointment for this property, or require further information.
Hamilton Smith - IP16 endeavour to maintain accurate depictions of properties in Virtual Tours, Floor Plans and descriptions, however, these are intended only as a guide and purchasers must satisfy themselves by personal inspection.

