- Off street parking
Full Description
We are pleased to offer for sale this one bedroom coach house style village home, occupying a pleasant and convenient cul-de-sac position with allocated parking. Offered for sale with the benefit of no onward chain. Walking distance to the village centre
The property occupies an attractive corner position within a small cul-de-sac on the Coopers Development at Barham, just a short stroll to the village centre of Claydon/Barham. Claydon offers a range of shops including post office, pharmacy, hairdressers, public houses and primary and secondary schooling. The Suffolk county town of Ipswich is approximately three miles distant offering a much wider range of facilities including mainline railway link to London's Liverpool Street. The A14 trunk road offers access in an easterly direction to the A12 and Felixstowe and in a westerly direction to Bury St Edmunds, Cambridge and on to the Midlands.
This modern coach house style property has accommodation over two floors, spacious reception hall and modern bathroom on the ground floor, on the first floor the bright and airy accommodation offers generous living space, good size kitchen and double bedroom. The property benefits from PVC double glazing and allocated parking to the rear and is offered for sale with the benefit of no onward chain.
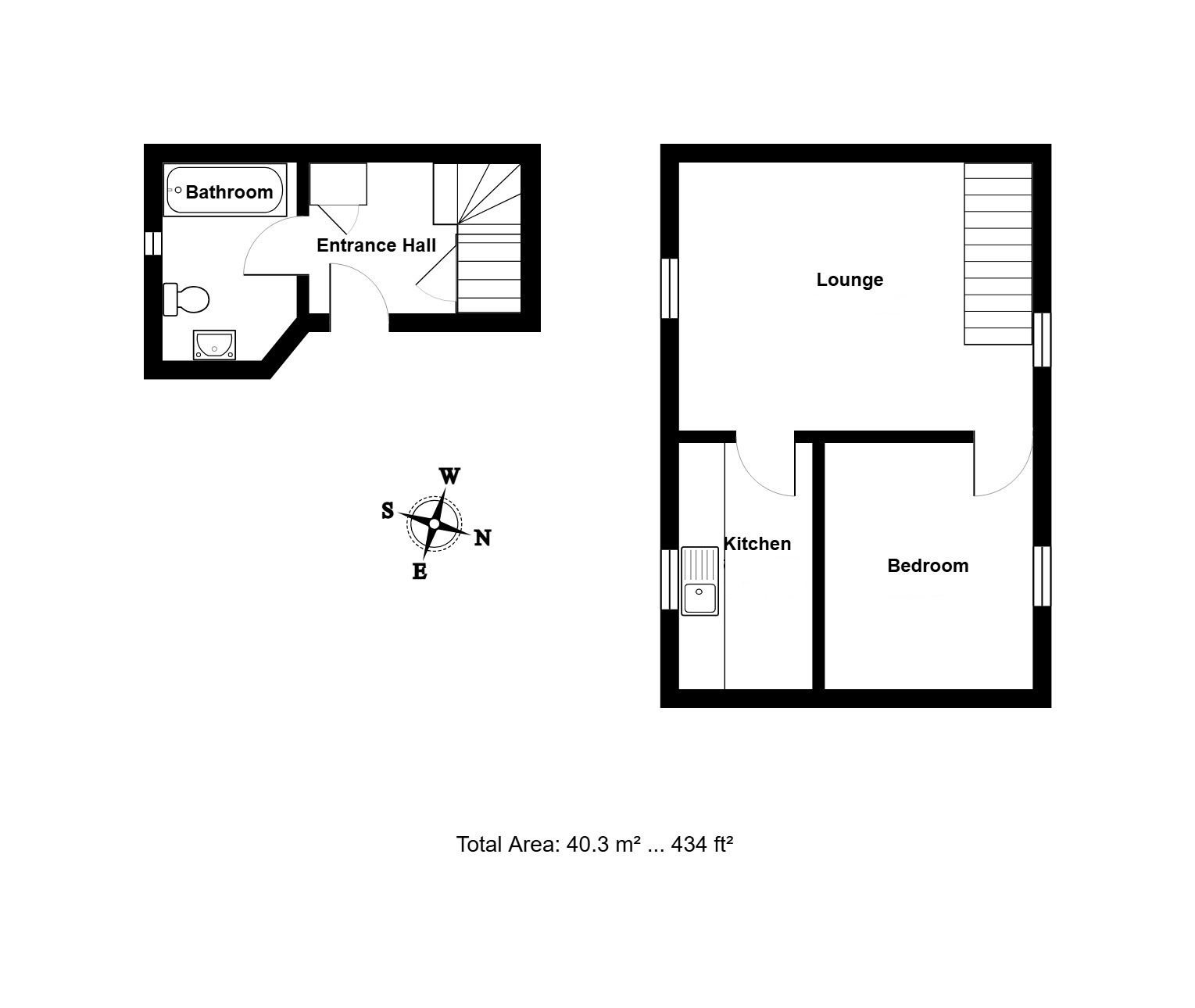
Reception hall:
10' 4" x 7' 2" (3.15m x 2.18m) Part glazed entrance door, telephone point, wall mounted electric storage heater, built-in storage cupboard, built-in airing cupboard housing the hot water tank, staircase to the first floor.
Bathroom:
8' 4" x 5' 6" (2.54m x 1.68m) Contemporary white suite comprises panel bath with shower connected over, low level wc and pedestal wash hand basin, partly tiled walls, window to the rear aspect.
First floor:
Sitting room:
14' 9" x 11' 4" (4.5m x 3.45m) Tv point, wall mounted electric storage heater, window to the rear aspect.
Kitchen:
10' 4" x 6' 8" (3.15m x 2.03m) Fitted with a good range of base and wall mounted units, fitted worktops inset stainless steel sink unit with mixer tap, space and plumbing for washing machine, built-in four ring electric hob, built-in electric oven, tiled splash backs, space for low level fridge, window to the rear aspect.
Bedroom:
10' 4" x 9' 4" (3.15m x 2.84m) Tv and telephone points, access to loft space, window to the front aspect.
Outside:
Vehicular access leads to the parking area to the rear of the property with two allocated allocated parking spaces.
Postcode: IP6 0TA
energy rating: D - 67
viewing:
By arrangement with the agents, Hamilton Smith, or email us at You can also visit our web site
Viewing
Please contact us on 01473 833307 if you wish to arrange a viewing appointment for this property, or require further information.
Energy Performance Certificate
Click here to view the Energy Efficiency Rating and Environmental Impact Rating for this property.
Hamilton Smith - IP16 endeavour to maintain accurate depictions of properties in Virtual Tours, Floor Plans and descriptions, however, these are intended only as a guide and purchasers must satisfy themselves by personal inspection.
The property occupies an attractive corner position within a small cul-de-sac on the Coopers Development at Barham, just a short stroll to the village centre of Claydon/Barham. Claydon offers a range of shops including post office, pharmacy, hairdressers, public houses and primary and secondary schooling. The Suffolk county town of Ipswich is approximately three miles distant offering a much wider range of facilities including mainline railway link to London's Liverpool Street. The A14 trunk road offers access in an easterly direction to the A12 and Felixstowe and in a westerly direction to Bury St Edmunds, Cambridge and on to the Midlands.
This modern coach house style property has accommodation over two floors, spacious reception hall and modern bathroom on the ground floor, on the first floor the bright and airy accommodation offers generous living space, good size kitchen and double bedroom. The property benefits from PVC double glazing and allocated parking to the rear and is offered for sale with the benefit of no onward chain.
Reception hall:
10' 4" x 7' 2" (3.15m x 2.18m) Part glazed entrance door, telephone point, wall mounted electric storage heater, built-in storage cupboard, built-in airing cupboard housing the hot water tank, staircase to the first floor.
Bathroom:
8' 4" x 5' 6" (2.54m x 1.68m) Contemporary white suite comprises panel bath with shower connected over, low level wc and pedestal wash hand basin, partly tiled walls, window to the rear aspect.
First floor:
Sitting room:
14' 9" x 11' 4" (4.5m x 3.45m) Tv point, wall mounted electric storage heater, window to the rear aspect.
Kitchen:
10' 4" x 6' 8" (3.15m x 2.03m) Fitted with a good range of base and wall mounted units, fitted worktops inset stainless steel sink unit with mixer tap, space and plumbing for washing machine, built-in four ring electric hob, built-in electric oven, tiled splash backs, space for low level fridge, window to the rear aspect.
Bedroom:
10' 4" x 9' 4" (3.15m x 2.84m) Tv and telephone points, access to loft space, window to the front aspect.
Outside:
Vehicular access leads to the parking area to the rear of the property with two allocated allocated parking spaces.
Postcode: IP6 0TA
energy rating: D - 67
viewing:
By arrangement with the agents, Hamilton Smith, or email us at You can also visit our web site
Viewing
Please contact us on 01473 833307 if you wish to arrange a viewing appointment for this property, or require further information.
Energy Performance Certificate
Click here to view the Energy Efficiency Rating and Environmental Impact Rating for this property.
Hamilton Smith - IP16 endeavour to maintain accurate depictions of properties in Virtual Tours, Floor Plans and descriptions, however, these are intended only as a guide and purchasers must satisfy themselves by personal inspection.

