- Private garden
- Single garage
- Off street parking
- Central heating
- Double glazing
- Fireplace
Full Description
We are pleased to offer for sale this very well presented, deceptively spacious modern three bedroom family house, occupying an appealing and convenient cul-da-sac position, only a short walk to the well served town centre of Needham Market. With off road parking, garage and impressive size garden. Offered with the benefit of no onward chain.
The attractive and sought after small town of Needham Market has an historic High Street with a good range of everyday shopping and recreational facilities including pubs, butchers and grocers as well as railway station with links to Ipswich, also within walking distance of the house there is the local countryside attraction know as Needham Lakes, there is also easy access onto the road networks including the A14 linking to the A12.
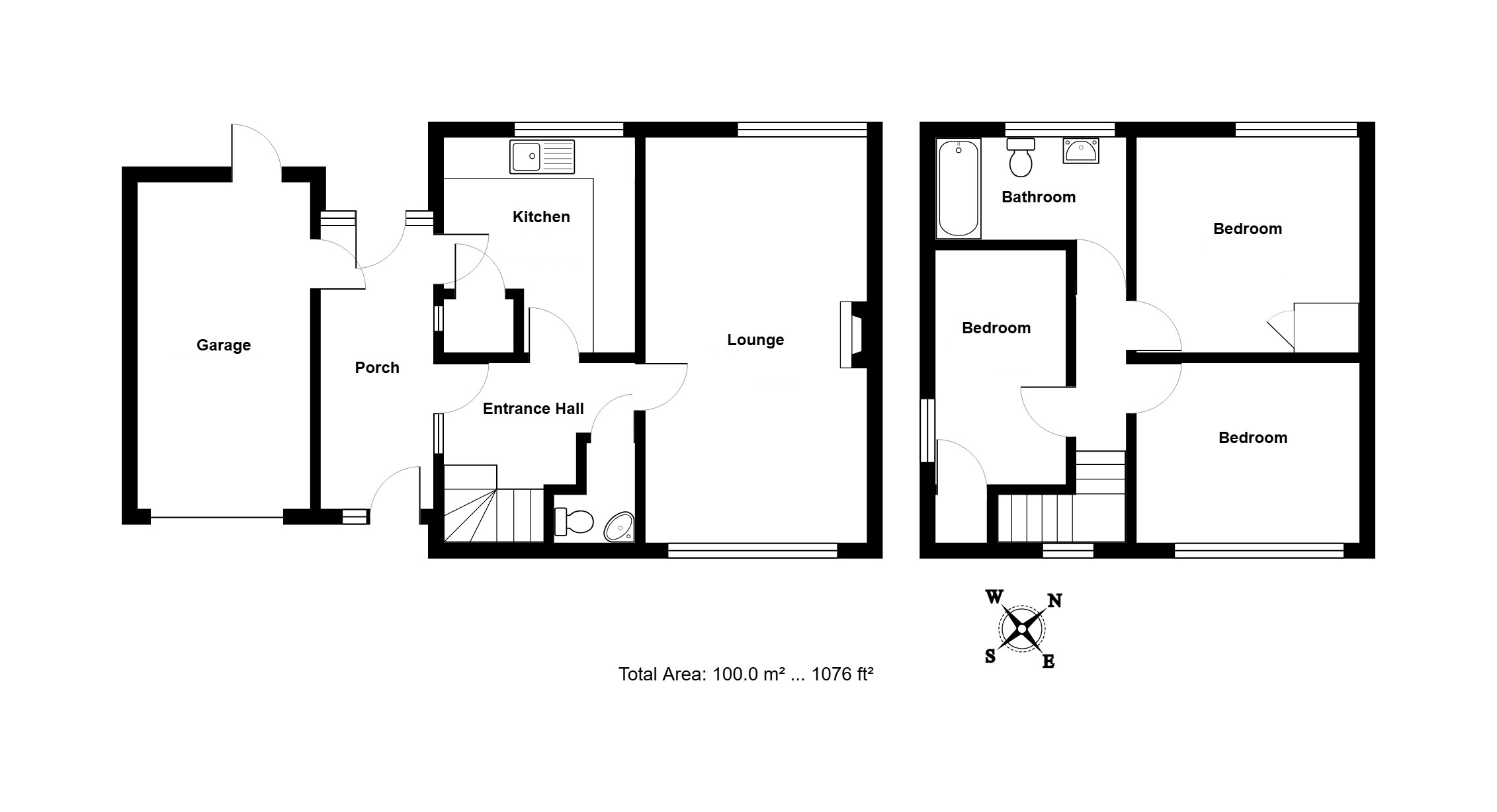
This spacious modern house has been lovingly cared for, presented in good condition ready for immediate occupation. Features include a good size reception hall which links the house directly to the garage, PVC doors to the front and rear lead to the garden. The inner hall gives access to the ground floor cloakroom, fitted kitchen and an impressive 20' long sitting room with central fireplace, generous windows to the front and rear provide a bright and airy room. On the first floor there are three good size bedrooms as well as a modern bathroom. The gardens are a particular feature, well stocked with established planting, the rear garden in particular is a generous size for this style of property. Internal viewing is highly recommended.
Reception hall:
14' 3 " x 6' 0" (4.34m x 1.83m) PVC double glazed doors to the front and rear aspects, internal personal door to the garage.
Inner reception hall:
9' 6" x 6' 3 " (2.9m x 1.91m) PVC double glazed entrance door, staircase to the first floor, radiator.
Cloakroom:
Suite comprises low level wc and wall mounted wash hand basin.
Kitchen:
10' 7" x 9' 4 " (3.23m x 2.84m) Fitted with a good range of base and wall mounted units having light oak style panelled doors and drawer fronts, fitted worktops inset with stainless steel singe bowl sink unit with mixer tap, built-in electric oven and grill, four ring hob above, plumbing for washing machine, radiator, modern wall mounted gas fired Worcester boiler, separate built-in shelved larder cupboard, generous PVC double glazed window overlooking the rear garden.
Sitting room:
20' 9" x 11' 2" (6.32m x 3.4m) Two radiators, tv point, central chimney breast fitted with an attractive stone effect fire surround inset flame effect fire, PVC double glazed windows to the front and rear aspects.
First floor & half landng:
Access to the insulated loft space, PVC double glazed window to the front aspect.
Bedroom 1:
12' 0" x 10' 9" (3.66m x 3.28m) Radiator, space for wardrobes, built-in shelved linen cupboard, PVC double glazed window overlooking the rear garden.
Bedroom 2:
12' 0" x 9' 5" (3.66m x 2.87m) Radiator, PVC double glazed window to the front aspect.
Bedroom 3:
11' 8" x 6' 5" (3.56m x 1.96m) Radiator, built-in overstairs storage cupboard/wardrobe, PVC double glazed window to the side aspect.
Bathroom:
9' 5 " x 5 ' 4 " (2.87m x 1.63m) Plus 2'4" door recess. Modern white suite comprises panel bath with shower mixer tap, low level wc with concealed cistern and wash hand basin with vanity storage cupboards below, radiator, PVC double glazed window to the rear aspect.
Outside:
The property is set nicely back with mature well stocked garden to the front, adjacent block printed drive provides off road parking and gives direct access to the garage 16'2" x 8'8", power and light connected. The established and generous rear garden comprises an array of well stocked herbaceous borders, flowering trees and shrubs, inset with lawns, fenced boundaries.
Postcode: IP6 8AZ
energy rating: C - 71
viewing:
By arrangement with the agents, Hamilton Smith, or email us at You can also visit our web site
Viewing
Please contact us on 01473 833307 if you wish to arrange a viewing appointment for this property, or require further information.
Energy Performance Certificate
Click here to view the Energy Efficiency Rating and Environmental Impact Rating for this property.
Hamilton Smith - IP16 endeavour to maintain accurate depictions of properties in Virtual Tours, Floor Plans and descriptions, however, these are intended only as a guide and purchasers must satisfy themselves by personal inspection.
The attractive and sought after small town of Needham Market has an historic High Street with a good range of everyday shopping and recreational facilities including pubs, butchers and grocers as well as railway station with links to Ipswich, also within walking distance of the house there is the local countryside attraction know as Needham Lakes, there is also easy access onto the road networks including the A14 linking to the A12.
This spacious modern house has been lovingly cared for, presented in good condition ready for immediate occupation. Features include a good size reception hall which links the house directly to the garage, PVC doors to the front and rear lead to the garden. The inner hall gives access to the ground floor cloakroom, fitted kitchen and an impressive 20' long sitting room with central fireplace, generous windows to the front and rear provide a bright and airy room. On the first floor there are three good size bedrooms as well as a modern bathroom. The gardens are a particular feature, well stocked with established planting, the rear garden in particular is a generous size for this style of property. Internal viewing is highly recommended.
Reception hall:
14' 3 " x 6' 0" (4.34m x 1.83m) PVC double glazed doors to the front and rear aspects, internal personal door to the garage.
Inner reception hall:
9' 6" x 6' 3 " (2.9m x 1.91m) PVC double glazed entrance door, staircase to the first floor, radiator.
Cloakroom:
Suite comprises low level wc and wall mounted wash hand basin.
Kitchen:
10' 7" x 9' 4 " (3.23m x 2.84m) Fitted with a good range of base and wall mounted units having light oak style panelled doors and drawer fronts, fitted worktops inset with stainless steel singe bowl sink unit with mixer tap, built-in electric oven and grill, four ring hob above, plumbing for washing machine, radiator, modern wall mounted gas fired Worcester boiler, separate built-in shelved larder cupboard, generous PVC double glazed window overlooking the rear garden.
Sitting room:
20' 9" x 11' 2" (6.32m x 3.4m) Two radiators, tv point, central chimney breast fitted with an attractive stone effect fire surround inset flame effect fire, PVC double glazed windows to the front and rear aspects.
First floor & half landng:
Access to the insulated loft space, PVC double glazed window to the front aspect.
Bedroom 1:
12' 0" x 10' 9" (3.66m x 3.28m) Radiator, space for wardrobes, built-in shelved linen cupboard, PVC double glazed window overlooking the rear garden.
Bedroom 2:
12' 0" x 9' 5" (3.66m x 2.87m) Radiator, PVC double glazed window to the front aspect.
Bedroom 3:
11' 8" x 6' 5" (3.56m x 1.96m) Radiator, built-in overstairs storage cupboard/wardrobe, PVC double glazed window to the side aspect.
Bathroom:
9' 5 " x 5 ' 4 " (2.87m x 1.63m) Plus 2'4" door recess. Modern white suite comprises panel bath with shower mixer tap, low level wc with concealed cistern and wash hand basin with vanity storage cupboards below, radiator, PVC double glazed window to the rear aspect.
Outside:
The property is set nicely back with mature well stocked garden to the front, adjacent block printed drive provides off road parking and gives direct access to the garage 16'2" x 8'8", power and light connected. The established and generous rear garden comprises an array of well stocked herbaceous borders, flowering trees and shrubs, inset with lawns, fenced boundaries.
Postcode: IP6 8AZ
energy rating: C - 71
viewing:
By arrangement with the agents, Hamilton Smith, or email us at You can also visit our web site
Viewing
Please contact us on 01473 833307 if you wish to arrange a viewing appointment for this property, or require further information.
Energy Performance Certificate
Click here to view the Energy Efficiency Rating and Environmental Impact Rating for this property.
Hamilton Smith - IP16 endeavour to maintain accurate depictions of properties in Virtual Tours, Floor Plans and descriptions, however, these are intended only as a guide and purchasers must satisfy themselves by personal inspection.

