Full Description
An excellent opportunity - Situated on a private road in a tucked away location just off Felixstowe Road Nacton is this two double bedroom detached bungalow occupying a large plot and now requiring modernisation. This spacious property benefits from double glazed windows, gas central heating, modern bathroom, ample off road parking, 32ft workshop, large shed, garage, plot size 210ft x 100ft (sts) and offered with no onward chain.
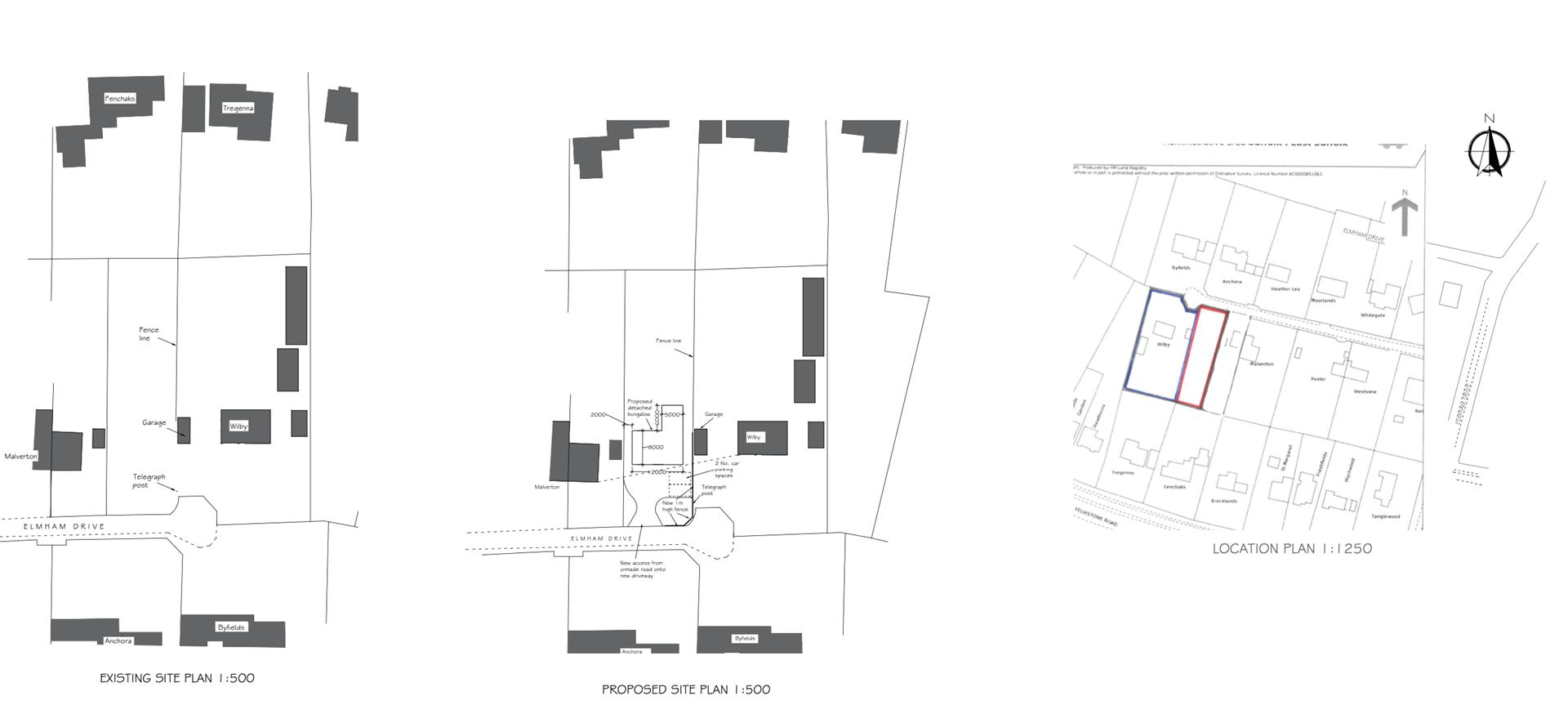
To the left (east) of the property there is an opportunity to purchase a building plot subject to outline planning permission to be approved. The perfect self build 200ft x 50ft (Sts). Call the office for further details.
Elmham Drive is a private road just off Felixstowe Road.
Double Glazed Door To
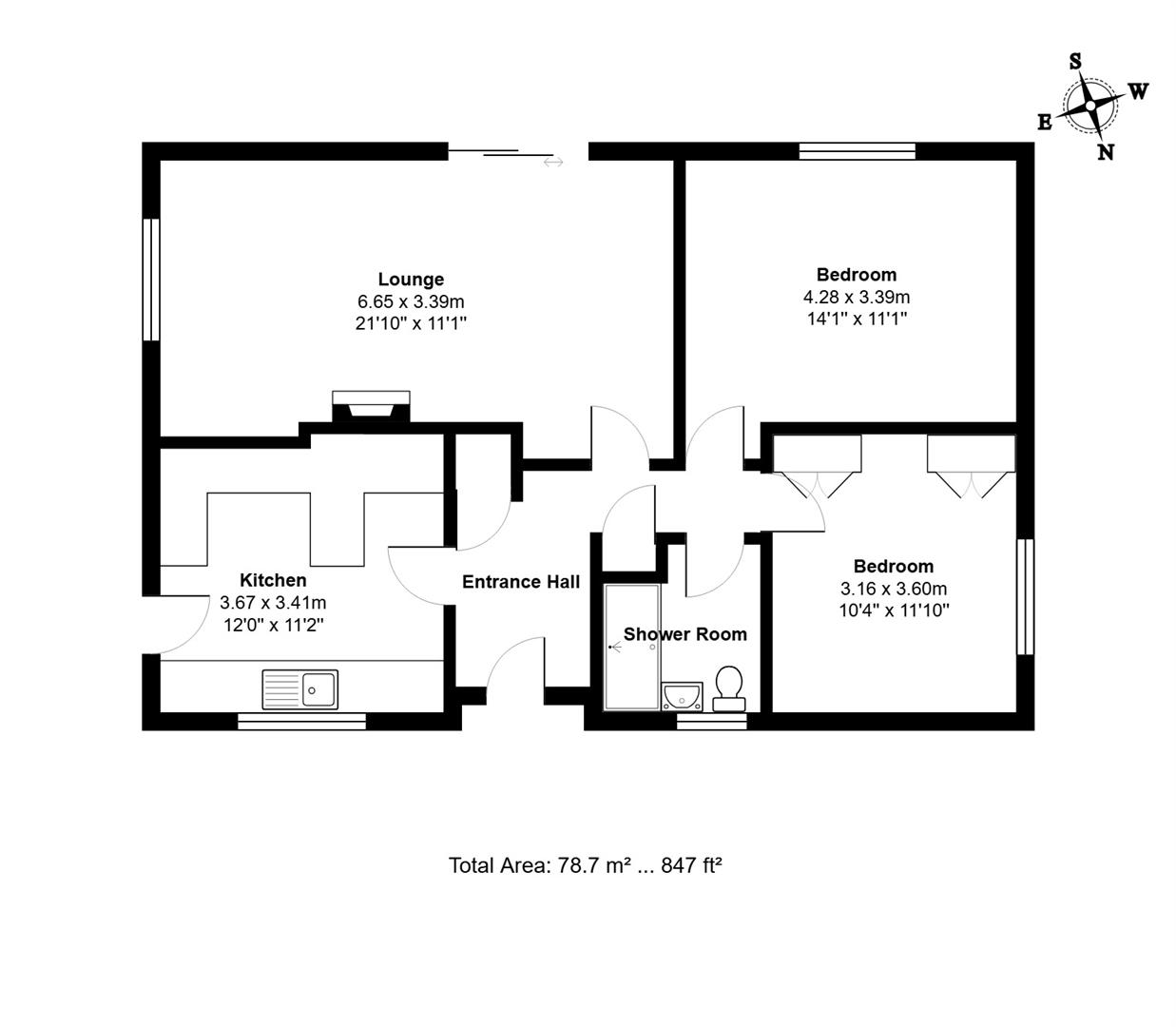
Entrance Hall:
Cupboard, radiator, airing cupboard with combi boiler, doors off, loft access.
Lounge/Diner: (6.60m x 3.78m (21'8 x 12'5))
Dual aspect windows with double glazed window to side and patio doors to rear. Radiators and picture rails.
Kitchen/Breakfast Room: (3.66m x 3.20m (12 x 10'6))
Double glazed window to front. Wall and base units, sink and drainer, worktops, drawers, part tiled and a radiator. Double glazed door to side.
Bathroom:
Double glazed window to front, open shower with glass screen, tiled floor and walls, W.C, hand wash basin and radiator.
Bedroom One: (4.27m x 3.35m (14 x 11))
Double glazed window to rear, picture rail and radiator.
Bedroom Two: (3.78m x 3.15m (12'5 x 10'4))
Double glazed window to side, fitted wardrobes, radiator and picture rail.
Outside:
The property has ample parking and gardens to the front with a lawn, established shrubs and trees, a path leads to the front door. A driveway provides off road parking and leads to the garage.
The garden wraps round to the west side of the property with access to the shed, workshop and rear gardens.
The south facing rear garden is mainly laid to lawn with established trees, shrubs and flower beddings. There is a summer house and large aviary cages. Plot size 210ft x 100ft not measured.
Workshop: (9.75m x 4.70m (32 x 15'5))
Timbre built with a pitch corrugated roof, power & lights connected.
Garage: (5.79m x 2.74m (19 x 9))
Power connected.
Shed: (5.99m x 3.51m (19'8 x 11'6))
Ipswich Office:
7 Great Colman Street, Ipswich, IP4 2AA to view please call or email
Viewing
Please contact us on 01473 253366 if you wish to arrange a viewing appointment for this property, or require further information.
Energy Performance Certificate
Click here to view the Energy Efficiency Rating and Environmental Impact Rating for this property.
Hamilton Smith - IP16 endeavour to maintain accurate depictions of properties in Virtual Tours, Floor Plans and descriptions, however, these are intended only as a guide and purchasers must satisfy themselves by personal inspection.

