- SPACIOUS RECEPTION HALL
- BEAUTIFUL SITTING ROOM WITH BAY WINDOW & FEATURE FIREPLACE
- DINING ROOM WITH FEATURE FIREPLACE
- IMPRESSIVE WELL FITTED KITCHEN/DINING/FAMILY ROOM WITH BI-FOLD DOORS
- GROUND FLOOR WC & SHOWER ROOM / 16'7
- SPACIOUS LANDING
- GENEROUS MASTER BEDROOM WITH BUILT-IN WARDROBES & BAY WINDOW
- THREE FURTHER GOOD SIZE BEDROOMS / RE-FITTED CONTEMPORARY FAMILY BATHROOM
- BLOCK PAVED DRIVE WITH PARKING FOR NUMEROUS VEHICLES
- IMPRESSIVE ESTABLISHED REAR GARDEN / SOUGHT AFTER RESIDENTIAL AREA
Full Description
We are pleased to offer for sale this SUPERB, ESTABLISHED FOUR BEDROOM, EXTENDED FAMILY HOUSE OCCUPYING A PRIME POSITION , with easy access to the town centre and schools. Offering generous off road parking for numerous vehicles and exceptional, established 130ft long rear garden.
SITUATION: This most appealing, established family house occupies a prime position, set well back from the Dale Hall Lane with easy access to the town centre, Christchurch Park and train station. The Suffolk county town of Ipswich offers a wide range of facilities including mainline railway link to London's Liverpool Street. The A14 trunk road offers access in an easterly direction to the A12 and Felixstowe and in a westerly direction to Bury St Edmunds, Cambridge and on to the Midlands.
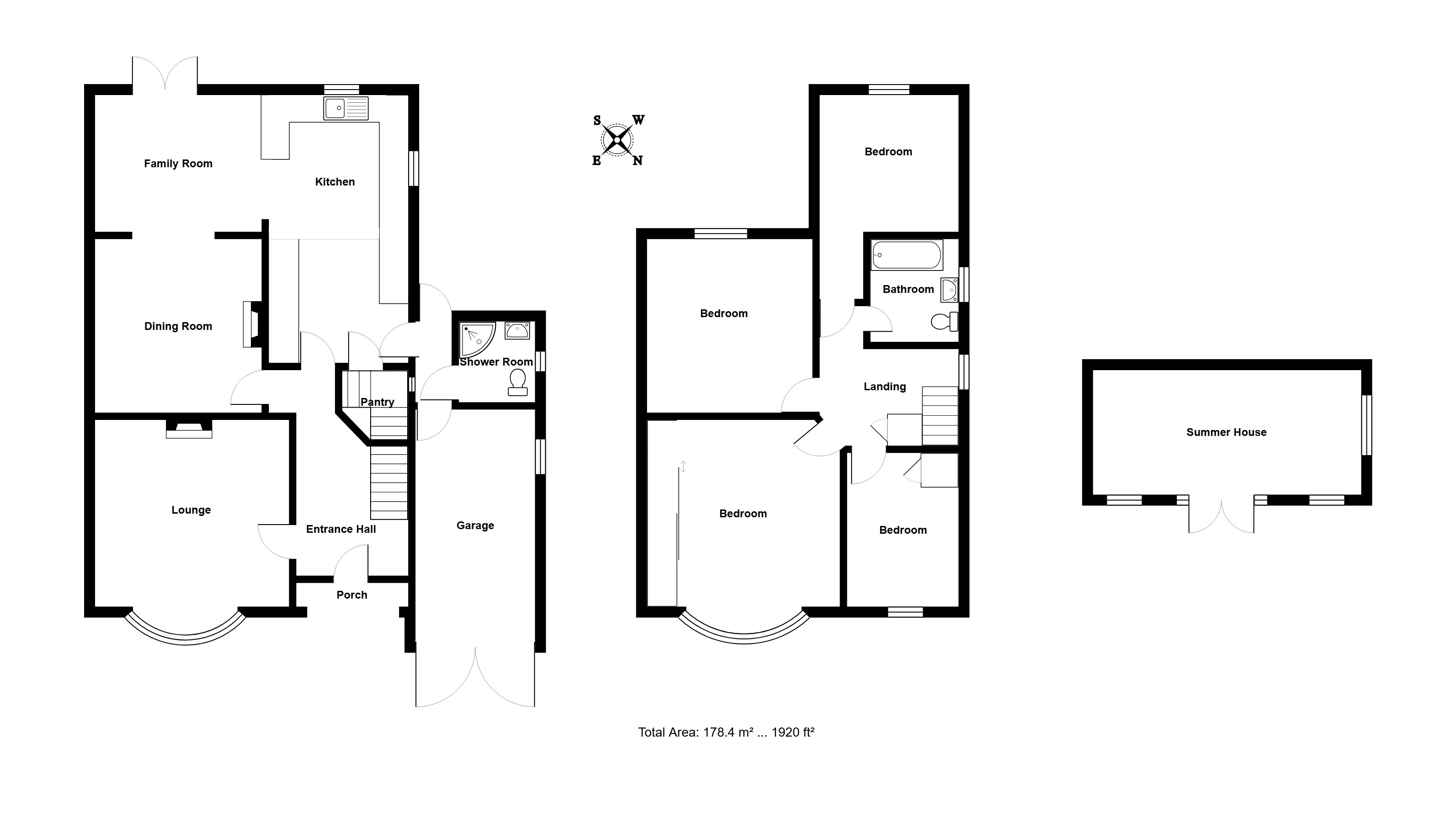
This lovingly cared for family house is larger than it first appears and offers well planned, flexible family accommodation. An inviting and spacious reception hall gives access to a beautiful sitting room with feature bay window and oak fireplace, the well fitted live-in kitchen/dining and family room is located to the rear with good amounts of natural light and bi-folding doors overlooking the garden leading to a further reception room with feature fireplace, the ground floor is complimented by a ground floor shower room and cloakroom and also direct access to the garage. On the first floor a spacious landing gives access to four generous bedrooms with the impressive master bedroom having feature bay window and good amounts of built-in wardrobes and re-fitted contemporary style bathroom. The property is set well back from the road giving extensive parking for numerous cars or perhaps caravan storage. The rear garden is a particular feature, facing due south with large paved terrace leading to an extensive lawn with mature and specimen trees and a very useful home office/studio building. Internal viewing is essential.
WIDE ARCH OPEN PORCH: Leads to the entrance door.
RECEPTION HALL: 15' 8" x 7' 9" (4.78m x 2.36m) Panelled entrance door with two side windows, wood strip effect flooring, built-in understairs storage cupboard, traditional style cast iron radiator.
SITTING ROOM: 16' 9" x 13' 9" (5.11m x 4.19m) An inviting room with chimney breast with feature open fireplace with decorative wooden surround, granite hearth and iron grate and back, cast iron radiator, tv point, wood strip effect flooring, large feature bay window to the front aspect.
DINING ROOM: 12' 6" x 12' 5" (3.81m x 3.78m) Chimney breast with decorative Victorian style iron fire surround, open grate and granite hearth, tv point, wood strip effect flooring, radiator, open through to the live-in kitchen/dining and family room.
KITCHEN/DINING & FAMILY ROOM: 22' 5" x 20' 2" (6.83m x 6.15m) At the longest points. Bright and airy room with windows to both the side and rear aspects overlooking the garden with bi-fold doors opening directly to the terrace.
Kitchen area: Fitted with an extensive range of shaker styled base and wall mounted units having panelled doors and drawer fronts, wide pan drawers, walk-in shelved pantry, solid beach worktops inset with ceramic sink unit, feature chimney breast with tiled back inset with extractor fan, space for electric oven, plumbing for dishwasher, space for fridge/freezer, shelved alcove, matching wood strip effect flooring, modern wall mounted gas fired boiler, tv point.
REAR HALL: Access to the garden and garage.
SHOWER ROOM/CLOAKROOM: 5' 6" x 5' 4" (1.68m x 1.63m) Low level wc, vanity unit with inset wash hand basin and storage cupboard below, independent shower enclosure with glazed screen, radiator, tiled floor, window to the side aspect.
FIRST FLOOR LANDING: 10' 9" x 9' 9" (3.28m x 2.97m) Built-in full height shelved linen cupboard, access to the insulated loft space with fitted ladder, window to the side aspect.
MASTER BEDROOM: 16' 9" x 11' 7" (5.11m x 3.53m) Radiator, impressive range of built-in full height wardrobes with sliding opaque glass doors, inset with drawer units, picture rail, chimney breast, large feature bay window overlooking the front garden.
BEDROOM 2: 12' 6" x 12' 0" (3.81m x 3.66m) Radiator, built-in storage cupboard/wardrobe, window with far reaching views over the garden.
BEDROOM 3: 9' 8" x 9' 6" (2.95m x 2.9m) plus 5'9" lobby. Radiator, window overlooking the rear garden.
BEDROOM 4: 11' 2" x 8' 10" (3.4m x 2.69m) Radiator, built-in full height storage cupboard, window overlooking the front garden.
FAMILY BATHROOM: Re-fitted contemporary style suite comprises deep panelled bath with shower connected over, low level wc and vanity unit with inset wash hand basin with storage drawers below, herringbone wood effect flooring, towel radiator, window to the side aspect.
OUTSIDE: The property is set well back form the road with red brick and wrought iron boundary. Extensive block paved drive provides parking for numerous vehicles or perhaps caravan storage. The remainder of the front garden is laid to lawn with hedged boundaries. Drive gives direct access to the garage 16'7" x 8'5" twin opening wooden doors, power and light connected, plumbing for washing machine, space for tumble dryer, personal door to the house. The south facing rear garden comprises an extensive paved sun terrace offering good privacy and leads to the lawn, mature flower and shrub borders with fenced boundaries, towards the end of the garden there is a most useful home office/studio building 19'4" x 8'9" fully insulated, PVC windows and French doors, power and light connected. At the end of the garden there is further shed storage and specimen black poplar tree. In all the garden extends in the region of 130ft in length.
POSTCODE: IP1 4LH
ENERGY RATING: TBC
VIEWING: By arrangement with the agents, Hamilton Smith, 01473 833307, or email us at claydon@hamilton-smith.com You can also visit our web site www.hamilton-smith.com
Viewing
Please contact us on 01473 833307 if you wish to arrange a viewing appointment for this property, or require further information.
Energy Performance Certificate
Click here to view the Energy Efficiency Rating and Environmental Impact Rating for this property.
Hamilton Smith - IP16 endeavour to maintain accurate depictions of properties in Virtual Tours, Floor Plans and descriptions, however, these are intended only as a guide and purchasers must satisfy themselves by personal inspection.
SITUATION: This most appealing, established family house occupies a prime position, set well back from the Dale Hall Lane with easy access to the town centre, Christchurch Park and train station. The Suffolk county town of Ipswich offers a wide range of facilities including mainline railway link to London's Liverpool Street. The A14 trunk road offers access in an easterly direction to the A12 and Felixstowe and in a westerly direction to Bury St Edmunds, Cambridge and on to the Midlands.
This lovingly cared for family house is larger than it first appears and offers well planned, flexible family accommodation. An inviting and spacious reception hall gives access to a beautiful sitting room with feature bay window and oak fireplace, the well fitted live-in kitchen/dining and family room is located to the rear with good amounts of natural light and bi-folding doors overlooking the garden leading to a further reception room with feature fireplace, the ground floor is complimented by a ground floor shower room and cloakroom and also direct access to the garage. On the first floor a spacious landing gives access to four generous bedrooms with the impressive master bedroom having feature bay window and good amounts of built-in wardrobes and re-fitted contemporary style bathroom. The property is set well back from the road giving extensive parking for numerous cars or perhaps caravan storage. The rear garden is a particular feature, facing due south with large paved terrace leading to an extensive lawn with mature and specimen trees and a very useful home office/studio building. Internal viewing is essential.
WIDE ARCH OPEN PORCH: Leads to the entrance door.
RECEPTION HALL: 15' 8" x 7' 9" (4.78m x 2.36m) Panelled entrance door with two side windows, wood strip effect flooring, built-in understairs storage cupboard, traditional style cast iron radiator.
SITTING ROOM: 16' 9" x 13' 9" (5.11m x 4.19m) An inviting room with chimney breast with feature open fireplace with decorative wooden surround, granite hearth and iron grate and back, cast iron radiator, tv point, wood strip effect flooring, large feature bay window to the front aspect.
DINING ROOM: 12' 6" x 12' 5" (3.81m x 3.78m) Chimney breast with decorative Victorian style iron fire surround, open grate and granite hearth, tv point, wood strip effect flooring, radiator, open through to the live-in kitchen/dining and family room.
KITCHEN/DINING & FAMILY ROOM: 22' 5" x 20' 2" (6.83m x 6.15m) At the longest points. Bright and airy room with windows to both the side and rear aspects overlooking the garden with bi-fold doors opening directly to the terrace.
Kitchen area: Fitted with an extensive range of shaker styled base and wall mounted units having panelled doors and drawer fronts, wide pan drawers, walk-in shelved pantry, solid beach worktops inset with ceramic sink unit, feature chimney breast with tiled back inset with extractor fan, space for electric oven, plumbing for dishwasher, space for fridge/freezer, shelved alcove, matching wood strip effect flooring, modern wall mounted gas fired boiler, tv point.
REAR HALL: Access to the garden and garage.
SHOWER ROOM/CLOAKROOM: 5' 6" x 5' 4" (1.68m x 1.63m) Low level wc, vanity unit with inset wash hand basin and storage cupboard below, independent shower enclosure with glazed screen, radiator, tiled floor, window to the side aspect.
FIRST FLOOR LANDING: 10' 9" x 9' 9" (3.28m x 2.97m) Built-in full height shelved linen cupboard, access to the insulated loft space with fitted ladder, window to the side aspect.
MASTER BEDROOM: 16' 9" x 11' 7" (5.11m x 3.53m) Radiator, impressive range of built-in full height wardrobes with sliding opaque glass doors, inset with drawer units, picture rail, chimney breast, large feature bay window overlooking the front garden.
BEDROOM 2: 12' 6" x 12' 0" (3.81m x 3.66m) Radiator, built-in storage cupboard/wardrobe, window with far reaching views over the garden.
BEDROOM 3: 9' 8" x 9' 6" (2.95m x 2.9m) plus 5'9" lobby. Radiator, window overlooking the rear garden.
BEDROOM 4: 11' 2" x 8' 10" (3.4m x 2.69m) Radiator, built-in full height storage cupboard, window overlooking the front garden.
FAMILY BATHROOM: Re-fitted contemporary style suite comprises deep panelled bath with shower connected over, low level wc and vanity unit with inset wash hand basin with storage drawers below, herringbone wood effect flooring, towel radiator, window to the side aspect.
OUTSIDE: The property is set well back form the road with red brick and wrought iron boundary. Extensive block paved drive provides parking for numerous vehicles or perhaps caravan storage. The remainder of the front garden is laid to lawn with hedged boundaries. Drive gives direct access to the garage 16'7" x 8'5" twin opening wooden doors, power and light connected, plumbing for washing machine, space for tumble dryer, personal door to the house. The south facing rear garden comprises an extensive paved sun terrace offering good privacy and leads to the lawn, mature flower and shrub borders with fenced boundaries, towards the end of the garden there is a most useful home office/studio building 19'4" x 8'9" fully insulated, PVC windows and French doors, power and light connected. At the end of the garden there is further shed storage and specimen black poplar tree. In all the garden extends in the region of 130ft in length.
POSTCODE: IP1 4LH
ENERGY RATING: TBC
VIEWING: By arrangement with the agents, Hamilton Smith, 01473 833307, or email us at claydon@hamilton-smith.com You can also visit our web site www.hamilton-smith.com
Viewing
Please contact us on 01473 833307 if you wish to arrange a viewing appointment for this property, or require further information.
Energy Performance Certificate
Click here to view the Energy Efficiency Rating and Environmental Impact Rating for this property.
Hamilton Smith - IP16 endeavour to maintain accurate depictions of properties in Virtual Tours, Floor Plans and descriptions, however, these are intended only as a guide and purchasers must satisfy themselves by personal inspection.

