Full Description
This unique property is offered for sale with no onward chain. Located close to the High Street in Needham Market the property has a commercial building to the front and living accommodation set back at the rear. Call now to view.
Needham Market:
Needham Market lies in the heart of Mid Suffolk between the towns of Bury St Edmunds and Ipswich. Facilities include butchers, bakers, post office, co-op supermarket and a number of individual shops. Needham Market also has a rail station with mainline connections to Ipswich and Stowmarket where in turn there are main line services to London Liverpool Street. The town also has the Needham Lake conservation area with a number of countryside walks and the county town of Ipswich is just eight miles away with all the social, shopping and leisure facilities.
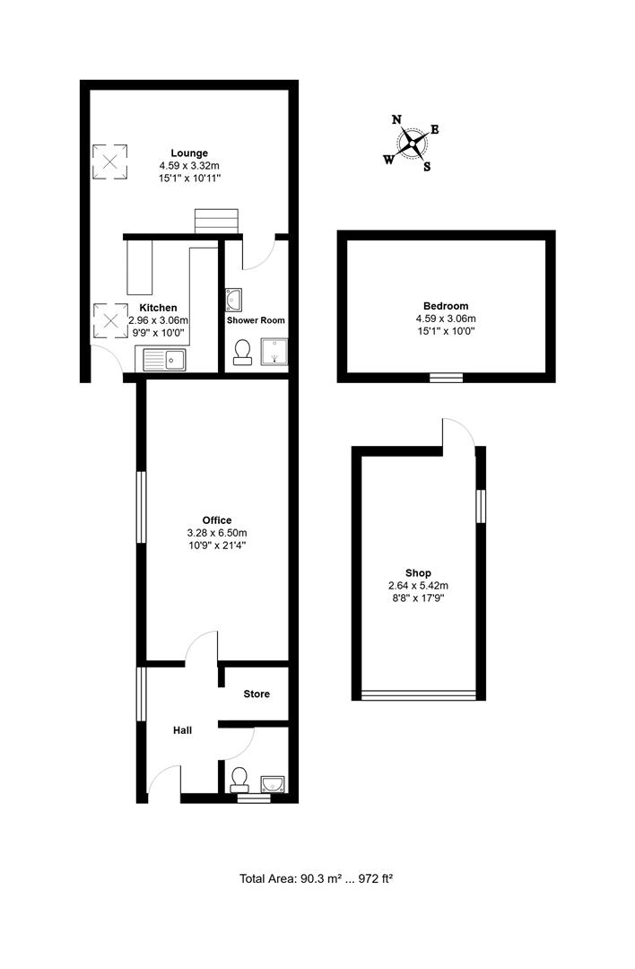
Shop Front: (5.41m x 2.64m (17'9" x 8'8"))
The commercial part of the property is situated on the street and has door to rear. To the side of the shop there is a pathway leading to the residential element of the property.
Door To:
Entrance Hallway:
Window to side, doors to....
Cloakroom:
Window to front, low level W/C and wash hand basin.
Store Room:
Office Room: (3.28m x 6.50m (10'9" x 21'4" ))
Window to side
External Door To:
Kitchen: (2.97m x 3.30m (9'9" x 10'10"))
Range of wall and base units with work surfaces over. Stainless steel sink and space for appliances. Open doorway to....
Lounge: (4.60m x 3.07m (15'1" x 10'1" ))
Door to shower room and steps up to bedroom.
Shower Room:
Shower cubicle, low level W/C and wash hand basin
Bedroom: (4.60m x 3.05m (15'1" x 10"))
Agents Note:
The vendor has advised that there is a covenant on the property that the buildings cannot be sold as seperate units.
Needham Market Sign Off:
Hamilton Smith Needham Market
Viewing
Please contact us on 01449 722242 if you wish to arrange a viewing appointment for this property, or require further information.
Energy Performance Certificate
Click here to view the Energy Efficiency Rating and Environmental Impact Rating for this property.
Hamilton Smith - IP16 endeavour to maintain accurate depictions of properties in Virtual Tours, Floor Plans and descriptions, however, these are intended only as a guide and purchasers must satisfy themselves by personal inspection.

