- RECEPTION HALL
- INNER HALL / GROUND FLOOR CLOAKROOM
- 14' KITCHEN/BREAKFAST ROOM
- 20' SITTING ROOM WITH FEATURE FIREPLACE & FRENCH DOORS
- SEPARATE 15' LIVING/DINING ROOM
- SPACIOUS LANDING
- THREE DOUBLE BEDROOMS / FAMILY BATHROOM
- GARDENS TO THE FRONT, SIDE & REAR / OFF ROAD PARKING
- GAS FIRED HEATING / PVC DOUBLE GLAZING
- SHORT WALK TO VILLAGE CENTRE / UPDATING REQUIRED
Full Description
We are pleased to offer for sale this DECPETIVELY SPACIOUS, DETACHED VILLAGE HOUSE, occupying a prime position within a highly desirable cul-de-sac only a short walk to the village centre, schools and shops. With generous room sizes throughout, off road parking and attractive south facing terraced garden.
SITUATION: Newell Rise is an established small cul-de-sac located within walking distance of this highly desirable and easily accessible village. Claydon offers a range of shops including post office, pharmacy, hairdressers, public houses and primary and secondary schooling. The Suffolk county town of Ipswich is approximately three miles distant offering a much wider range of facilities including mainline railway link to London's Liverpool Street. The A14 trunk road offers access in an easterly direction to the A12 and Felixstowe and in a westerly direction to Bury St Edmunds, Cambridge and on to the Midlands.
This modern house has been in the same ownership for many years, now requiring a degree of updating throughout but offering enormous potential with good room sizes throughout including two generous reception rooms as well as a good size kitchen/breakfast room and utility. On the first floor a spacious landing gives access to three impressive double bedrooms as well as the family bathroom. There are useable gardens to the front, side and rear with terraced garden with views over the village. Further benefits include off road parking, gas fired heating and PVC double glazing.
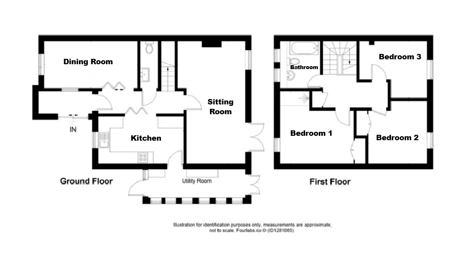
RECEPTION HALL: 9' 2" (2.79m) Long. Sliding patio doors.
INNER HALL: 10' 4" (3.15m) Long. PVC double glazed entrance door, radiator, wood effect flooring, staircase to the first floor.
CLOAKROOM: White suite comprises low level wc with concealed cistern and vanity unit inset wash hand basin with mono mixer tap, half tiled walls.
SITTING ROOM: 20' 3 " x 11' 9" (6.17m x 3.58m) Two radiators, feature Victorian style fireplace with decorative wooden surround, tiled and cast iron back and hearth with open grate, built-in understairs storage cupboard, generous PVC double glazed window and wide PVC double glazed French doors opening to the south facing garden.
KITCHEN/BREAKFAST ROOM: 14' 8" x 7' 9" (4.47m x 2.36m) Fitted with a range of modern base and wall mounted units including glazed display cupboards, quartz style worktops inset white ceramic sink unit with mixer tap, electric cooker point, extractor fan connected over, plumbing and space for dishwasher, wall and floor tiling, glazed PVC door leading to the lean-to conservatory, PVC double glazed window to the front aspect.
PVC CONSERVATORY/UTILITY: 17' 0" x 5 ' 3 " (5.18m x 1.6m) Tiled floor, plumbing for washing machine, space for tumble dryer, fitted storage unit with worktop, PVC double glazed doors to both the front and rear aspects.
LIVING/DINING ROOM: 15' 9" x 7' 8" (4.8m x 2.34m) Radiator, generous PVC double glazed window to the front aspect.
FIRST FLOOR GALLERIED LANDING: 11' 8" x 10' 7" (3.56m x 3.23m) Built-in linen cupboard, access to the insulated loft space housing wall mounted gas fired combination boiler.
MASTER BEDROOM: 12' 4" x 9' 4" (3.76m x 2.84m) Radiator, wood effect flooring, built-in double wardrobe, built-in double shower enclosure with bi-folding door, generous PVC double glazed window to the front aspect.
BEDROOM 2: 10' 7" x 9' 9" (3.23m x 2.97m) Radiator, wood effect flooring, built-in double wardrobe, PVC double glazed window to the rear with views over the garden.
BEDROOM 3: 11' 5 " x 9' 6" (3.48m x 2.9m) Radiator, wood effect flooring, PVC double glazed window overlooking the rear garden.
FAMILY BATHROOM: 7' 9" x 6' 5 " (2.36m x 1.96m) Traditional white suite comprises steel bath with decorative panel and shower connected over with pivot glazed screen, low level wc with concealed cistern, inset ceramic wash hand basin with storage cupboards below, further wall mounted cupboards, inset spotlights, fully tiled walls, radiator, PVC double glazed window to the front.
OUTSIDE: The property is set back with established garden and seating area to the front, off road parking. Path to the side of the property leads to the secluded south facing lower terrace, steps lead to an impressive upper terrace with established garden, patio area and decking area.
POSTCODE: IP6 0AQ
ENERGY RATING: D - 60
VIEWING: By arrangement with the agents, Hamilton Smith, 01473 833307, or email us at claydon@hamilton-smith.com You can also visit our web site www.hamilton-smith.com
Viewing
Please contact us on 01473 833307 if you wish to arrange a viewing appointment for this property, or require further information.
Energy Performance Certificate
Click here to view the Energy Efficiency Rating and Environmental Impact Rating for this property.
Hamilton Smith - IP16 endeavour to maintain accurate depictions of properties in Virtual Tours, Floor Plans and descriptions, however, these are intended only as a guide and purchasers must satisfy themselves by personal inspection.
SITUATION: Newell Rise is an established small cul-de-sac located within walking distance of this highly desirable and easily accessible village. Claydon offers a range of shops including post office, pharmacy, hairdressers, public houses and primary and secondary schooling. The Suffolk county town of Ipswich is approximately three miles distant offering a much wider range of facilities including mainline railway link to London's Liverpool Street. The A14 trunk road offers access in an easterly direction to the A12 and Felixstowe and in a westerly direction to Bury St Edmunds, Cambridge and on to the Midlands.
This modern house has been in the same ownership for many years, now requiring a degree of updating throughout but offering enormous potential with good room sizes throughout including two generous reception rooms as well as a good size kitchen/breakfast room and utility. On the first floor a spacious landing gives access to three impressive double bedrooms as well as the family bathroom. There are useable gardens to the front, side and rear with terraced garden with views over the village. Further benefits include off road parking, gas fired heating and PVC double glazing.
RECEPTION HALL: 9' 2" (2.79m) Long. Sliding patio doors.
INNER HALL: 10' 4" (3.15m) Long. PVC double glazed entrance door, radiator, wood effect flooring, staircase to the first floor.
CLOAKROOM: White suite comprises low level wc with concealed cistern and vanity unit inset wash hand basin with mono mixer tap, half tiled walls.
SITTING ROOM: 20' 3 " x 11' 9" (6.17m x 3.58m) Two radiators, feature Victorian style fireplace with decorative wooden surround, tiled and cast iron back and hearth with open grate, built-in understairs storage cupboard, generous PVC double glazed window and wide PVC double glazed French doors opening to the south facing garden.
KITCHEN/BREAKFAST ROOM: 14' 8" x 7' 9" (4.47m x 2.36m) Fitted with a range of modern base and wall mounted units including glazed display cupboards, quartz style worktops inset white ceramic sink unit with mixer tap, electric cooker point, extractor fan connected over, plumbing and space for dishwasher, wall and floor tiling, glazed PVC door leading to the lean-to conservatory, PVC double glazed window to the front aspect.
PVC CONSERVATORY/UTILITY: 17' 0" x 5 ' 3 " (5.18m x 1.6m) Tiled floor, plumbing for washing machine, space for tumble dryer, fitted storage unit with worktop, PVC double glazed doors to both the front and rear aspects.
LIVING/DINING ROOM: 15' 9" x 7' 8" (4.8m x 2.34m) Radiator, generous PVC double glazed window to the front aspect.
FIRST FLOOR GALLERIED LANDING: 11' 8" x 10' 7" (3.56m x 3.23m) Built-in linen cupboard, access to the insulated loft space housing wall mounted gas fired combination boiler.
MASTER BEDROOM: 12' 4" x 9' 4" (3.76m x 2.84m) Radiator, wood effect flooring, built-in double wardrobe, built-in double shower enclosure with bi-folding door, generous PVC double glazed window to the front aspect.
BEDROOM 2: 10' 7" x 9' 9" (3.23m x 2.97m) Radiator, wood effect flooring, built-in double wardrobe, PVC double glazed window to the rear with views over the garden.
BEDROOM 3: 11' 5 " x 9' 6" (3.48m x 2.9m) Radiator, wood effect flooring, PVC double glazed window overlooking the rear garden.
FAMILY BATHROOM: 7' 9" x 6' 5 " (2.36m x 1.96m) Traditional white suite comprises steel bath with decorative panel and shower connected over with pivot glazed screen, low level wc with concealed cistern, inset ceramic wash hand basin with storage cupboards below, further wall mounted cupboards, inset spotlights, fully tiled walls, radiator, PVC double glazed window to the front.
OUTSIDE: The property is set back with established garden and seating area to the front, off road parking. Path to the side of the property leads to the secluded south facing lower terrace, steps lead to an impressive upper terrace with established garden, patio area and decking area.
POSTCODE: IP6 0AQ
ENERGY RATING: D - 60
VIEWING: By arrangement with the agents, Hamilton Smith, 01473 833307, or email us at claydon@hamilton-smith.com You can also visit our web site www.hamilton-smith.com
Viewing
Please contact us on 01473 833307 if you wish to arrange a viewing appointment for this property, or require further information.
Energy Performance Certificate
Click here to view the Energy Efficiency Rating and Environmental Impact Rating for this property.
Hamilton Smith - IP16 endeavour to maintain accurate depictions of properties in Virtual Tours, Floor Plans and descriptions, however, these are intended only as a guide and purchasers must satisfy themselves by personal inspection.

