Full Description
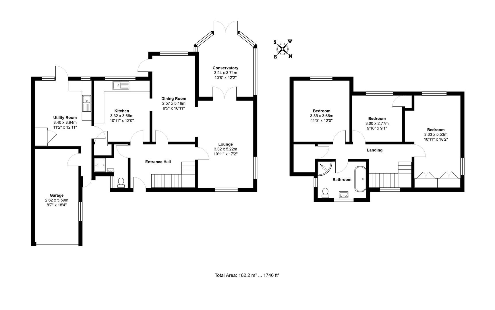
Situated in the village of Sproughton near Ipswich, this extended three bedroom detached house on Church Lane offers a perfect opportunity to make your own. This spacious family home benefits from gas central heating, double glazed windows and accommodation includes a reception hall way, ground floor cloakroom/shower room, lounge/diner, kitchen, large utility/breakfast room, 1st floor family bathroom, 3 bedrooms, south westerly facing gardens, off road parking, garage and offered with no chain.
Double Glazed Front Door To
Reception Hallway:
Double glazed window to front. The entrance hall provides a spacious welcome to the home with stairs leading to the first floor and access to the main living areas. It includes a door to the convenient downstairs WC/Shower room.
Shower Room/Cloakroom:
Double glazed window to front, shower cubicle, W.C, hand wash basin and a radiator.
Lounge: (5.23m x 3.33m (17'2 x 10'11))
This welcoming lounge extends into a spacious dining room, creating a generous open-plan living area filled with natural light. The lounge features a fireplace with a surround, complemented by large windows and French doors that open into the conservatory, enhancing the sense of space and connection to the garden. The adjoining dining room comfortably accommodates a dining table and has a wide window overlooking the garden. Radiators.
Dining Room: (4.90m x 2.57m (16'1 x 8'5))
Double glazed window to rear, radiator and door to kitchen
Conservatory: (3.24 x 3.71m)
The conservatory offers a bright and airy space with large windows and French doors that open directly onto the garden patio. Its brick walls and tiled floor add a rustic charm while the high ceiling and multiple windows create light and views of the garden.
Kitchen: (3.66m x 3.33m (12 x 10'11))
Double glazed window looking over the rear garden. The kitchen is well-proportioned and fitted with a range of wall and base units, sink and drainer, worktops, integrated fridge/freezer, electric double oven and hob, space for appliances, part tiled walls, tiled floor & fitted shelving. It connects directly to the dining room and the utility/breakfast room providing extra space for laundry, storage, table and chairs, an external door leading outside.
Utility/Breakfast Room: (3.94m x 3.40m (12'11 x 11'2))
Double glazed window to rear and door to outside. Worktops, sink and drainer, part tiled walls and tiled floor, radiator.
1st Floor Landing:
Double glazed window to front, radiator, large cupboard.
Bedroom One: (5.54m x 3.33m (18'2 x 10'11))
This generously sized bedroom is light and airy, with a large window overlooking the rear garden. It provides ample space for bedroom furniture and benefits from built-in wardrobes, offering excellent storage without compromising floor space. Radiator.
Bedroom Two: (3.66m x 3.35m (12 x 11))
A well-proportioned bedroom featuring double glazed window to rear with views of the garden, fitted wardrobes and a radiator.
Bedroom Three: (3.00m x 2.77m (9'10 x 9'1))
Double glazed window to rear, cupboard and a radiator.
Bathroom:
Double glazed window to front, panelled bath with tiled walls, separate shower cubicle, W.C, hand wash basin, tiled floor, ceiling spot lights and a towel radiator.
Outside:
To the front is large open plan garden being mainly lawn, there is a driveway providing off road parking for at least 2 cars. Access to the garage.
The rear garden is a generous outdoor space with a large lawn bordered by mature shrubs and plants. There is a paved patio area adjacent to the house, the garden is enclosed and well-maintained and private.
Garage: (2.62 x 5.59m)
The garage provides secure parking and additional storage space, accessible from the driveway and connected internally via the utility room for added convenience.
Ipswich Office:
7 Great Colman Street, Ipswich, IP4 2AA to view please call or email
Viewing
Please contact us on 01473 253366 if you wish to arrange a viewing appointment for this property, or require further information.
Hamilton Smith - IP16 endeavour to maintain accurate depictions of properties in Virtual Tours, Floor Plans and descriptions, however, these are intended only as a guide and purchasers must satisfy themselves by personal inspection.

