- Two Bedroom Park Home
- Off Road Parking
- Wrap Around Gardens
Full Description
Two bedroom park home is situated on the sought after Blueleighs Park development within Great Blakenham. The property benefits from Living Room/Dining Room, Kitchen, 2 Bedrooms, shower room, Gardens and Parking.
Great blakenham Great Blakenham has a public house, large convenience store and a regular bus service. The larger village of Claydon
is approximately half a mile and offers a range of shops, post office, public houses, primary and secondary schooling.
The Suffolk county town of Ipswich is approximately three miles distant offering a much wider range of facilities
including mainline railway link to London's Liverpool Street. The A14 trunk road offers access in an easterly direction
to The A12, Ipswich and Felixstowe and in a westerly direction to Bury St Edmunds, Cambridge and on to the
Midlands.
entrance
Radiator and doors
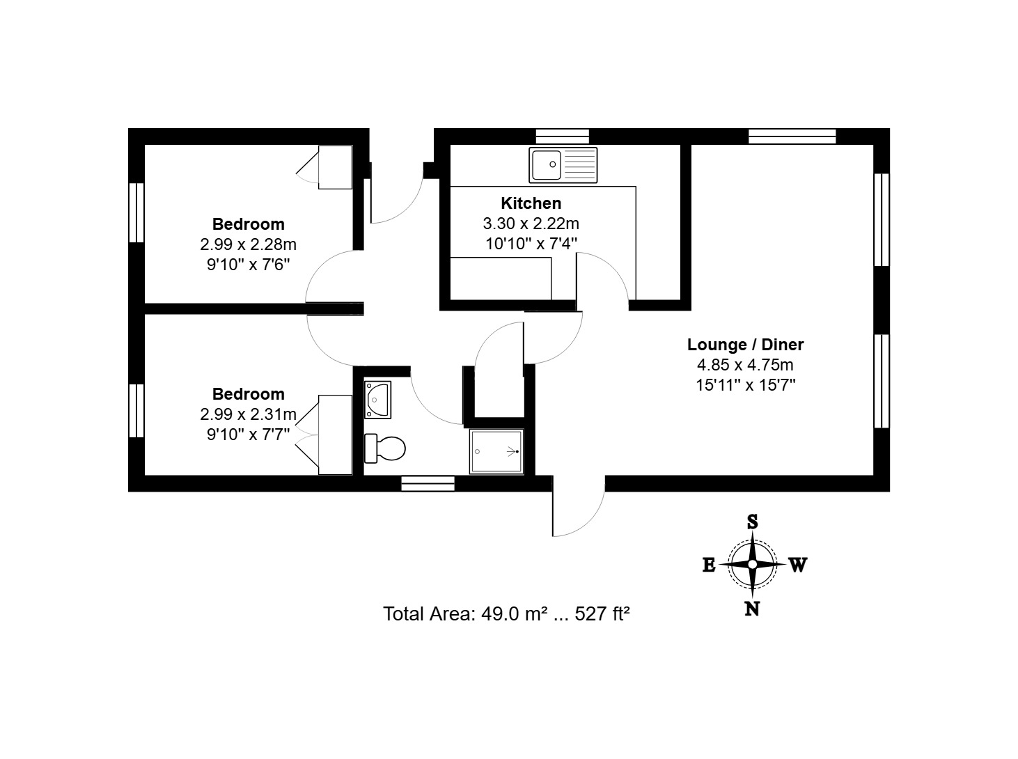
living room / dining room 15'10" x 15'7" (4.85 x 4.75)
Double glazed window to front x 2, double glazed window to side, two radiators and door to ...
Kitchen 10'9" x 7'3" (3.30 x 2.22)
Double glazed window to side, wall and base units, stainless steel sink and drainer, integrated oven and hob, space
for fridge freezer and radiator.
bedroom one 9'9" x 7'6" (2.99 x 2.31)
Double glazed window to rear and radiator.
Bedroom two 9'9" x 7'5" (2.99 x 2.28)
Double glazed window to rear and radiator.
Shower room Shower cubicle, low level WC, hand wash basin and double glazed window to side.
Outside Wrap round gardens with off road parking.
Viewing
Please contact us on 01449 722242 if you wish to arrange a viewing appointment for this property, or require further information.
Hamilton Smith - IP16 endeavour to maintain accurate depictions of properties in Virtual Tours, Floor Plans and descriptions, however, these are intended only as a guide and purchasers must satisfy themselves by personal inspection.

