- ENTRANCE HALL
- TWO GENEROUS BEDROOMS
- 18' SITTING ROOM
- MODERN KITCHEN
- 18' CONSERVATORY
- SHOWER ROOM
- DRIVE PROVIDING PARKING FOR NUMEROUS VEHICLES & GARAGE
- SOUTH FACING REAR GARDEN
- PVC DOUBLE GLAZING / GAS FIRED HEATING
- LIGHT & AIRY ACCOMMODATION / NO ONWARD CHAIN
Full Description
We are pleased to offer for sale this WELL PRESENTED TWO BEDROOM SEMI DETACHED VILLAGE BUNGALOW, with long drive and garage to the side and south facing garden. Located within a prime position only a short stroll to the village centre. Offered for sale with no onward chain.
SITUATION: This established village bungalow occupies a prime position on level ground, only a short walk to the village centre. Bramford offers village stores and post office, a public house, pharmacy and primary schooling. The county town of Ipswich is approximately three miles distance offering a wide range of shopping and recreational facilities including mainline railway link to London's Liverpool Street. The A14 trunk road offers access in an easterly direction to the A12, Ipswich and Felixstowe and in a westerly direction to Bury St Edmunds, Cambridge and onto the Midlands.
This rarely available village bungalow occupies an appealing tucked away position with a good size drive providing generous off road parking and a most attractive, low maintenance, south westerly facing rear garden. The bungalow itself has been well cared for by the previous owner and is in good order throughout benefiting from recent shower room and kitchen. Features include an 18' sitting room, a generous 18' conservatory overlooking the garden and two good size bedrooms. The property is sold with no onward chain and is ready for immediate viewing.
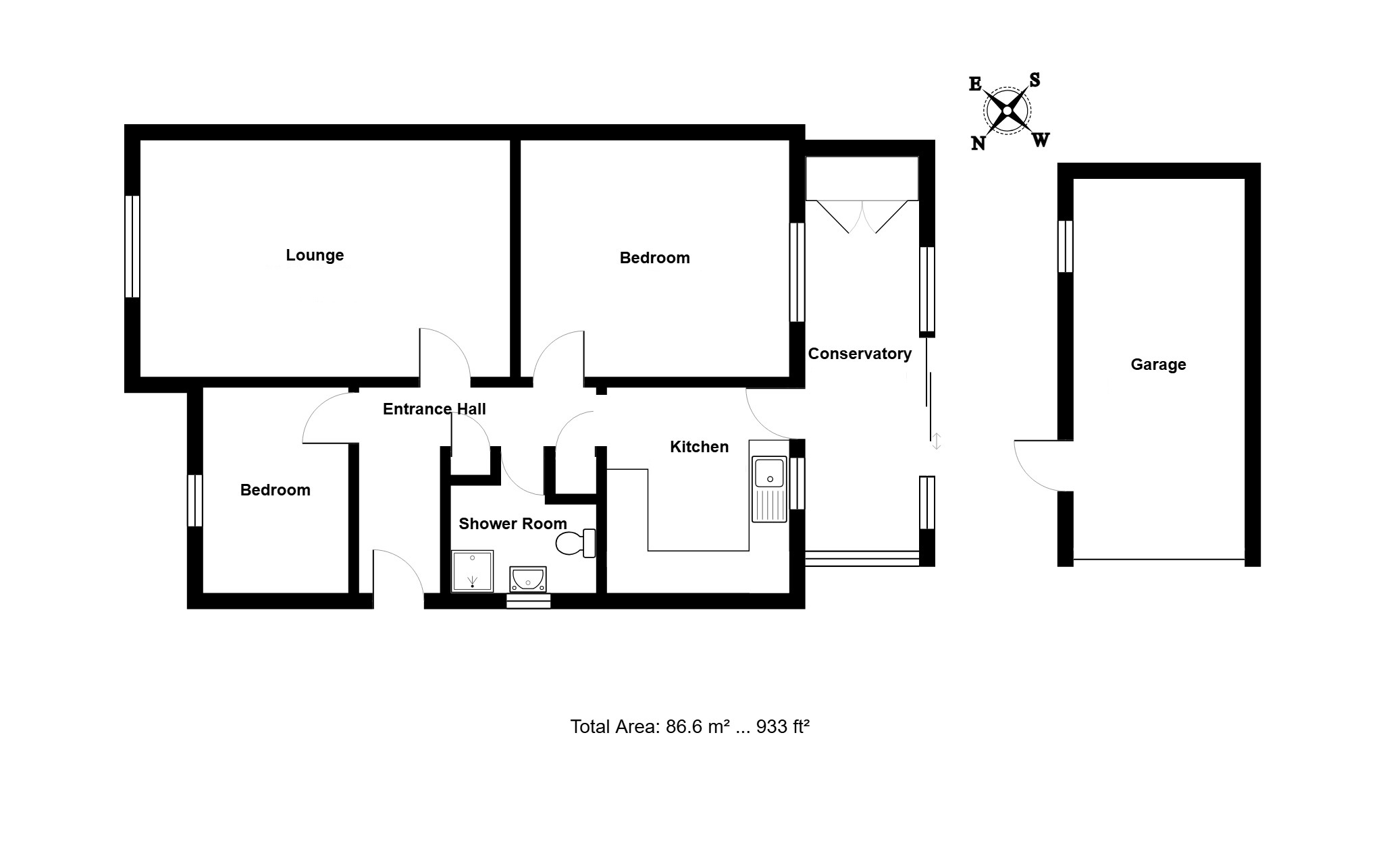
ENTRANCE HALL: 12' 2" x 11' 8" (3.71m x 3.56m) At longest points, L shaped. PVC part glazed entrance door, smoke alarm, thermostat heating control, radiator, two built-in storage cupboards, wood effect flooring.
SITTING ROOM: 18' 11" x 11' 8" (5.77m x 3.56m) Feature fireplace, tv point, radiator, window to the front aspect.
KITCHEN: 9' 10" x 9' 8" (3m x 2.95m) Fitted with a range of good quality base and wall mounted units having contemporary doors and drawer fronts, fitted worktops inset with stainless steel sink unit with mixer tap, tiled splash backs, eye level oven, inset four ring induction hob, extractor fan connected over, washing machine, low level fridge, tile effect flooring, PVC door opening to the conservatory, window to the rear aspect.
CONSERVATORY: 18' 5" x 6' 4" (5.61m x 1.93m) Built-in double storage cupboard, glazed sliding doors open to the rear garden.
BEDROOM 1: 13' 2" x 11' 7" (4.01m x 3.53m) Radiator, window to the rear aspect.
BEDROOM 2: 9' 10" x 7' 8" (3m x 2.34m) radiator, window to the front aspect.
SHOWER ROOM: Recently re-fitted suite comprises low level wc, vanity unit with storage cupboard and inset wash hand basin and shower cubicle with both dual shower heads, window to the side aspect.
OUTSIDE: The bungalow is nicely set back from the quiet no through road. Garden to the front is laid to lawn with flower borders, adjacent drive provides parking for numerous cars and gives access to the garage with up and over door. Secure gated access leads to the south facing rear garden, having been designed with low maintenance in mind with patio and mature flower beds. Personal door to the garage. The rear garden offers a high degree of privacy with fenced boundaries.
POSTCODE: IP8 4EG
ENERGY RATING: C - 69
VIEWING: By arrangement with the agents, Hamilton Smith, 01473 833307, or email us at claydon@hamilton-smith.com You can also visit our web site www.hamilton-smith.com
Viewing
Please contact us on 01473 833307 if you wish to arrange a viewing appointment for this property, or require further information.
Energy Performance Certificate
Click here to view the Energy Efficiency Rating and Environmental Impact Rating for this property.
Hamilton Smith - IP16 endeavour to maintain accurate depictions of properties in Virtual Tours, Floor Plans and descriptions, however, these are intended only as a guide and purchasers must satisfy themselves by personal inspection.
SITUATION: This established village bungalow occupies a prime position on level ground, only a short walk to the village centre. Bramford offers village stores and post office, a public house, pharmacy and primary schooling. The county town of Ipswich is approximately three miles distance offering a wide range of shopping and recreational facilities including mainline railway link to London's Liverpool Street. The A14 trunk road offers access in an easterly direction to the A12, Ipswich and Felixstowe and in a westerly direction to Bury St Edmunds, Cambridge and onto the Midlands.
This rarely available village bungalow occupies an appealing tucked away position with a good size drive providing generous off road parking and a most attractive, low maintenance, south westerly facing rear garden. The bungalow itself has been well cared for by the previous owner and is in good order throughout benefiting from recent shower room and kitchen. Features include an 18' sitting room, a generous 18' conservatory overlooking the garden and two good size bedrooms. The property is sold with no onward chain and is ready for immediate viewing.
ENTRANCE HALL: 12' 2" x 11' 8" (3.71m x 3.56m) At longest points, L shaped. PVC part glazed entrance door, smoke alarm, thermostat heating control, radiator, two built-in storage cupboards, wood effect flooring.
SITTING ROOM: 18' 11" x 11' 8" (5.77m x 3.56m) Feature fireplace, tv point, radiator, window to the front aspect.
KITCHEN: 9' 10" x 9' 8" (3m x 2.95m) Fitted with a range of good quality base and wall mounted units having contemporary doors and drawer fronts, fitted worktops inset with stainless steel sink unit with mixer tap, tiled splash backs, eye level oven, inset four ring induction hob, extractor fan connected over, washing machine, low level fridge, tile effect flooring, PVC door opening to the conservatory, window to the rear aspect.
CONSERVATORY: 18' 5" x 6' 4" (5.61m x 1.93m) Built-in double storage cupboard, glazed sliding doors open to the rear garden.
BEDROOM 1: 13' 2" x 11' 7" (4.01m x 3.53m) Radiator, window to the rear aspect.
BEDROOM 2: 9' 10" x 7' 8" (3m x 2.34m) radiator, window to the front aspect.
SHOWER ROOM: Recently re-fitted suite comprises low level wc, vanity unit with storage cupboard and inset wash hand basin and shower cubicle with both dual shower heads, window to the side aspect.
OUTSIDE: The bungalow is nicely set back from the quiet no through road. Garden to the front is laid to lawn with flower borders, adjacent drive provides parking for numerous cars and gives access to the garage with up and over door. Secure gated access leads to the south facing rear garden, having been designed with low maintenance in mind with patio and mature flower beds. Personal door to the garage. The rear garden offers a high degree of privacy with fenced boundaries.
POSTCODE: IP8 4EG
ENERGY RATING: C - 69
VIEWING: By arrangement with the agents, Hamilton Smith, 01473 833307, or email us at claydon@hamilton-smith.com You can also visit our web site www.hamilton-smith.com
Viewing
Please contact us on 01473 833307 if you wish to arrange a viewing appointment for this property, or require further information.
Energy Performance Certificate
Click here to view the Energy Efficiency Rating and Environmental Impact Rating for this property.
Hamilton Smith - IP16 endeavour to maintain accurate depictions of properties in Virtual Tours, Floor Plans and descriptions, however, these are intended only as a guide and purchasers must satisfy themselves by personal inspection.