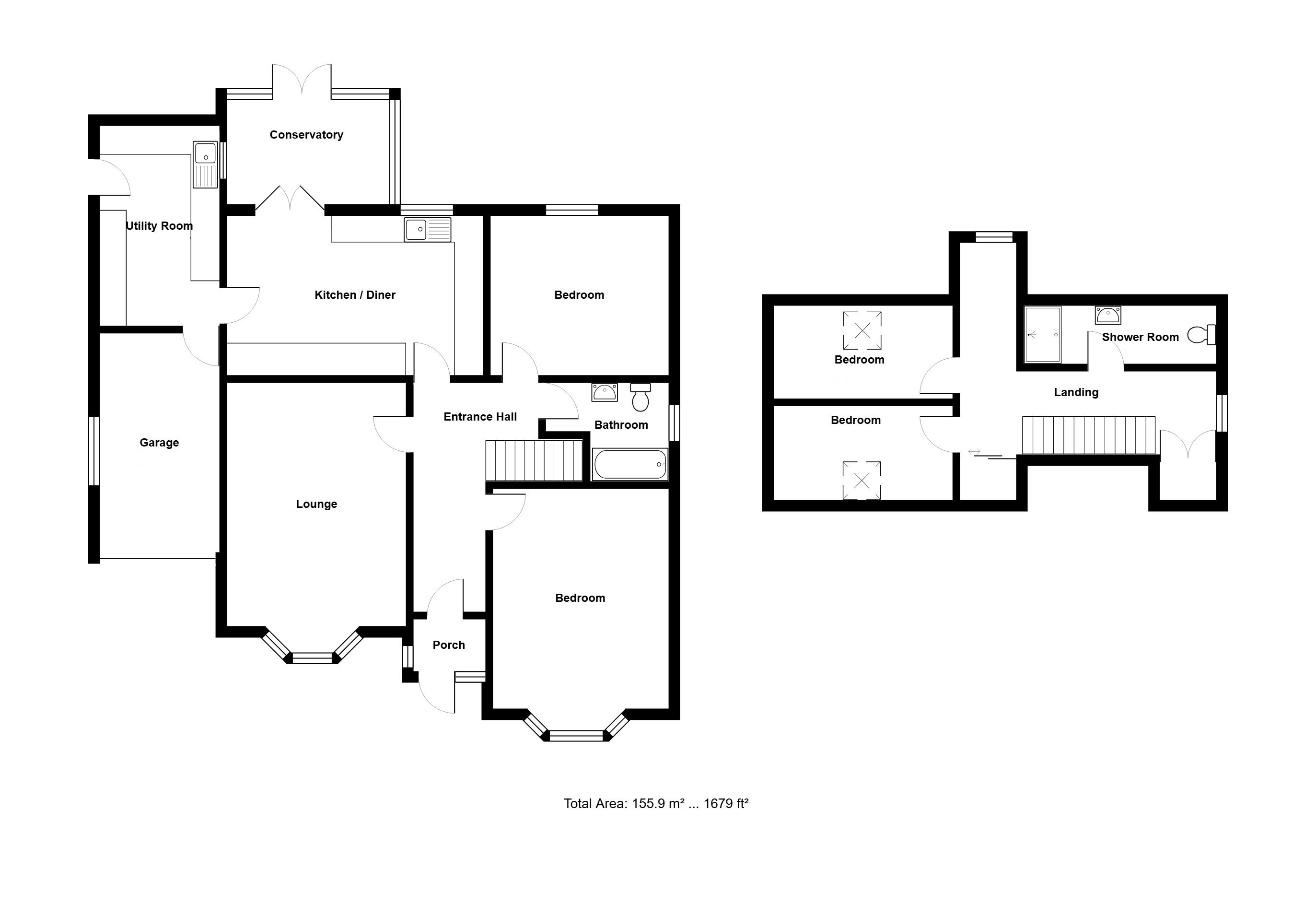
- 15' RECEPTION HALL
- 18' SITTING ROOM WITH FEATURE FIREPLACE
- 17' NEWLY FITTED KITCHEN
- CONSERVATORY / LARGE UTILITY ROOM
- TWO GROUND FLOOR DOUBLE BEDROOMS / NEWLY FITTED FAMILY BATHROOM
- SPACIOUS FIRST FLOOR LANDING WITH STUDY AREA
- TWO FIRST FLOOR DOUBLE BEDROOMS / SPACIOUS SHOWER ROOM
- PARKING FOR AT LEAST 15 CARS
- SECLUDED REAR GARDEN / FURTHER REAR GARDEN WITH POTENTIAL FOR BUILDING PLOT
- WALKING DISTANCE TO HEART OF THE VILLAGE
Full Description
We are pleased to offer for sale this SUPERB, RECENTLY REFURBISHED AND RENOVATED FOUR BEDROOM DETACHED CHALET STYLE PROPERTY, situated with extensive parking, gardens and grounds and potential building plot. Occupying a most convenient position in the heart of the well served village of Barham.
SITUATION: The property occupies an appealing position set back from the road with large frontage, only a short stroll to the village centre facilities within Barham/Claydon. Claydon offers a range of shops including post office, pharmacy, hairdressers, public houses and primary and secondary schooling. The Suffolk county town of Ipswich is approximately three miles distant offering a much wider range of facilities including mainline railway link to London's Liverpool Street. The A14 trunk road offers access in an easterly direction to the A12 and
Felixstowe and in a westerly direction to Bury St Edmunds, Cambridge and on to the Midlands.
This superb, deceptively spacious property has been the subject of an extensive renovation and remodelling program, now presented in "as new" condition. Larger than it first appears, offering flexible living accommodation with four double bedrooms, two bathrooms/shower room, impressive contemporary kitchen, large utility and conservatory leading to the garden. A particular feature of the property is the outside space with extensive parking area, rear garden and extra parcel of land with vehicular access close by, offering enormous potential for building, space for independent annex or home office complex. Internal viewing is essential to appreciate the size and quality of the accommodation on offer.
ENTRANCE PORCH: PVC double glazed entrance door, decorative tiled floor.
RECEPTION HALL: 15' 8" x 5' 2" (4.78m x 1.57m) PVC double glazed entrance door, staircase to the first floor, Karndean herringbone style wood effect flooring, contemporary styled radiator, mains smoke alarm.
SITTING ROOM: 18' 7" x 12' 5" (5.66m x 3.78m) Wood strip effect flooring, central chimney breast with decorative wooden surround, granite back and hearth inset with electric flame effect fire, tv point, bespoke built-in bookcase, generous PVC double glazed bay window to the front aspect.
KITCHEN: 17' 7" x 10' 9" (5.36m x 3.28m) Newly fitted kitchen with an excellent range of base and wall mounted units having contemporary high gloss doors and drawer fronts, marble effect worktops inset with one and a half bowl sink unit with mixer tap, wide pan drawers, inset black glass ceramic hob with black glass back and contemporary extractor fan connected over, space for American style fridge/freezer, eye level stainless steel and glass double oven, inset spotlights, Karndean herringbone wood effect flooring, contemporary style radiator, door leads to the utility room, PVC double glazed window overlooking the rear garden, PVC double glazed French doors opening to the conservatory.
UTILITY ROOM: 13' 6" x 8' 7" (4.11m x 2.62m) Fitted with an extensive range of contemporary style base storage units, wood effect worktop inset with ceramic one and a half bowl sink unit with mixer tap, plumbing and space for washing machine and tumble dryer, wood strip effect flooring, inset spotlights, personal door to the garage, PVC double glazed window to the side aspect, PVC double glazed door to the garden.
CONSERVATORY: 8' 5" x 7' 9" (2.57m x 2.36m) Good quality PVC double glazed construction with solid roof, tile effect flooring, French doors opening to the garden.
BEDROOM 1: (GROUND FLOOR) 17' 5" x 12' 0" (5.31m x 3.66m) Radiator, decorative wall panelling, space for wardrobes, large PVC double glazed bay window to the front aspect.
BEDROOM 2: (GROUND FLOOR) 12' 2" x 11' 8" (3.71m x 3.56m) Radiator, wood strip effect flooring, space for wardrobes, generous PVC double glazed window overlooking the rear garden.
FAMILY BATHROOM: Newly fitted suite comprises panel bath with mixer tap, built-in vanity unit with storage cupboards, inset wash hand basin with mono mixer tap and low level wc with concealed cistern, chrome towel radiator, tiled splash backs, PVC double glazed window to the side aspect.
SPACIOUS FIRST FLOOR LANDING: 17' 5" x 10' 4" (5.31m x 3.15m) At the longest points. Decorative contemporary balustrading with wooden top, built-in full height linen cupboard with double doors housing the gas fired boiler, built-in full height wardrobe with sliding mirrored doors, mains smoke alarm, access to the insulated loft space, dormer window incorporating a study area, PVC double glazed window to the side aspect.
BEDROOM 3: 12' 3" x 6' 4" (3.73m x 1.93m) Radiator, Velux roof window to the rear aspect.
BEDROOM 4: 12' 4" x 6' 4" (3.76m x 1.93m) Radiator, Velux roof window to the front aspect.
FIRST FLOOR SHOWER ROOM: Newly fitted suite comprises low level wc, large double shower enclosure with pivot glazed screen and independent vanity unit with inset wash hand basin, mono mixer tap and storage cupboards below, tiled splash backs, generous chrome towel radiator, spotlights, extractor fan, decorative tile effect flooring.
OUTSIDE: To the front there is a low level fenced boundary. Gravel drive provides extensive parking for up to 15 cars, enormous potential for motor home, vans or commercial vehicles. Direct access to the single garage 14'9" x 8' power and light connected, personal door to the house. Immediately to the rear of the house there is a newly constructed raised deck leading to the lawn with fenced boundaries, timber garden store. To the further end of the garden secure gated access leads to an additional, enclosed parcel of land offering huge potential for a variety of uses. The generously sized plot of land offers a unique chance for prospective buyers to explore the possibility of incorporating the land into the existing formal garden or creating a bespoke residential dwelling (STPP), other creative development opportunities could include the construction of annex accommodation, home office/studio or ancillary building, all of which are subject to the necessary planning consents.
POSTCODE: IP6 0DJ
ENERGY RATING: C - 76
VIEWING: By arrangement with the agents, Hamilton Smith, 01473 833307, or email us atclaydon@hamilton-smith.com You can also visit our web site www.hamilton-smith.com
Viewing
Please contact us on 01473 833307 if you wish to arrange a viewing appointment for this property, or require further information.
Energy Performance Certificate
Click here to view the Energy Efficiency Rating and Environmental Impact Rating for this property.
Hamilton Smith - IP16 endeavour to maintain accurate depictions of properties in Virtual Tours, Floor Plans and descriptions, however, these are intended only as a guide and purchasers must satisfy themselves by personal inspection.
SITUATION: The property occupies an appealing position set back from the road with large frontage, only a short stroll to the village centre facilities within Barham/Claydon. Claydon offers a range of shops including post office, pharmacy, hairdressers, public houses and primary and secondary schooling. The Suffolk county town of Ipswich is approximately three miles distant offering a much wider range of facilities including mainline railway link to London's Liverpool Street. The A14 trunk road offers access in an easterly direction to the A12 and
Felixstowe and in a westerly direction to Bury St Edmunds, Cambridge and on to the Midlands.
This superb, deceptively spacious property has been the subject of an extensive renovation and remodelling program, now presented in "as new" condition. Larger than it first appears, offering flexible living accommodation with four double bedrooms, two bathrooms/shower room, impressive contemporary kitchen, large utility and conservatory leading to the garden. A particular feature of the property is the outside space with extensive parking area, rear garden and extra parcel of land with vehicular access close by, offering enormous potential for building, space for independent annex or home office complex. Internal viewing is essential to appreciate the size and quality of the accommodation on offer.
ENTRANCE PORCH: PVC double glazed entrance door, decorative tiled floor.
RECEPTION HALL: 15' 8" x 5' 2" (4.78m x 1.57m) PVC double glazed entrance door, staircase to the first floor, Karndean herringbone style wood effect flooring, contemporary styled radiator, mains smoke alarm.
SITTING ROOM: 18' 7" x 12' 5" (5.66m x 3.78m) Wood strip effect flooring, central chimney breast with decorative wooden surround, granite back and hearth inset with electric flame effect fire, tv point, bespoke built-in bookcase, generous PVC double glazed bay window to the front aspect.
KITCHEN: 17' 7" x 10' 9" (5.36m x 3.28m) Newly fitted kitchen with an excellent range of base and wall mounted units having contemporary high gloss doors and drawer fronts, marble effect worktops inset with one and a half bowl sink unit with mixer tap, wide pan drawers, inset black glass ceramic hob with black glass back and contemporary extractor fan connected over, space for American style fridge/freezer, eye level stainless steel and glass double oven, inset spotlights, Karndean herringbone wood effect flooring, contemporary style radiator, door leads to the utility room, PVC double glazed window overlooking the rear garden, PVC double glazed French doors opening to the conservatory.
UTILITY ROOM: 13' 6" x 8' 7" (4.11m x 2.62m) Fitted with an extensive range of contemporary style base storage units, wood effect worktop inset with ceramic one and a half bowl sink unit with mixer tap, plumbing and space for washing machine and tumble dryer, wood strip effect flooring, inset spotlights, personal door to the garage, PVC double glazed window to the side aspect, PVC double glazed door to the garden.
CONSERVATORY: 8' 5" x 7' 9" (2.57m x 2.36m) Good quality PVC double glazed construction with solid roof, tile effect flooring, French doors opening to the garden.
BEDROOM 1: (GROUND FLOOR) 17' 5" x 12' 0" (5.31m x 3.66m) Radiator, decorative wall panelling, space for wardrobes, large PVC double glazed bay window to the front aspect.
BEDROOM 2: (GROUND FLOOR) 12' 2" x 11' 8" (3.71m x 3.56m) Radiator, wood strip effect flooring, space for wardrobes, generous PVC double glazed window overlooking the rear garden.
FAMILY BATHROOM: Newly fitted suite comprises panel bath with mixer tap, built-in vanity unit with storage cupboards, inset wash hand basin with mono mixer tap and low level wc with concealed cistern, chrome towel radiator, tiled splash backs, PVC double glazed window to the side aspect.
SPACIOUS FIRST FLOOR LANDING: 17' 5" x 10' 4" (5.31m x 3.15m) At the longest points. Decorative contemporary balustrading with wooden top, built-in full height linen cupboard with double doors housing the gas fired boiler, built-in full height wardrobe with sliding mirrored doors, mains smoke alarm, access to the insulated loft space, dormer window incorporating a study area, PVC double glazed window to the side aspect.
BEDROOM 3: 12' 3" x 6' 4" (3.73m x 1.93m) Radiator, Velux roof window to the rear aspect.
BEDROOM 4: 12' 4" x 6' 4" (3.76m x 1.93m) Radiator, Velux roof window to the front aspect.
FIRST FLOOR SHOWER ROOM: Newly fitted suite comprises low level wc, large double shower enclosure with pivot glazed screen and independent vanity unit with inset wash hand basin, mono mixer tap and storage cupboards below, tiled splash backs, generous chrome towel radiator, spotlights, extractor fan, decorative tile effect flooring.
OUTSIDE: To the front there is a low level fenced boundary. Gravel drive provides extensive parking for up to 15 cars, enormous potential for motor home, vans or commercial vehicles. Direct access to the single garage 14'9" x 8' power and light connected, personal door to the house. Immediately to the rear of the house there is a newly constructed raised deck leading to the lawn with fenced boundaries, timber garden store. To the further end of the garden secure gated access leads to an additional, enclosed parcel of land offering huge potential for a variety of uses. The generously sized plot of land offers a unique chance for prospective buyers to explore the possibility of incorporating the land into the existing formal garden or creating a bespoke residential dwelling (STPP), other creative development opportunities could include the construction of annex accommodation, home office/studio or ancillary building, all of which are subject to the necessary planning consents.
POSTCODE: IP6 0DJ
ENERGY RATING: C - 76
VIEWING: By arrangement with the agents, Hamilton Smith, 01473 833307, or email us atclaydon@hamilton-smith.com You can also visit our web site www.hamilton-smith.com
Viewing
Please contact us on 01473 833307 if you wish to arrange a viewing appointment for this property, or require further information.
Energy Performance Certificate
Click here to view the Energy Efficiency Rating and Environmental Impact Rating for this property.
Hamilton Smith - IP16 endeavour to maintain accurate depictions of properties in Virtual Tours, Floor Plans and descriptions, however, these are intended only as a guide and purchasers must satisfy themselves by personal inspection.

