- Three bedrooms
- End of terrace
- Gas central heating
- Double glazed windows
- Rear garden
- Permit parking
- In need of further updating
- No chain
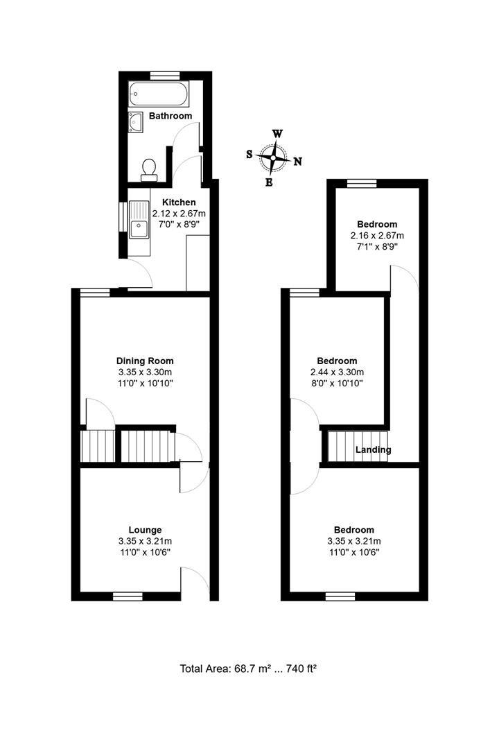
Full Description
Sold stc sold stc - more properties required - call for further details - no chain - ideal 1st time buy or investment. This three bedroom end of terrace house is situated within easy reach of the town centre, train station and marina. Benefiting from double glazed windows, gas central heating, permit parking and now in need of further updating and decorating. Call to book your viewing.
Ipswich
Ipswich is the county town of Suffolk and provides a comprehensive range of educational, commercial and recreational facilities and an excellent link to London Liverpool Street Railway Station (about 70 mins). The town has two shopping centres, shops, restaurants, bars, two multi screen cinemas, music & entertainment venues and many sports clubs and societies. The Waterfront docks has an on going regeneration providing an excellent marina, recently built high tech University & college, restaurants, bars and residential development.
Double Glazed Front Door To...
Lounge: (3.35m x 3.18m (11 x 10'5))
Double glazed window to front, cupboards with smart meters for gas and electric, radiator, through to
Dining Room: (3.35m x 3.23m (11 x 10'7))
Double glazed window to rear, stairs of via a door, radiator, under stairs cupboard, through to
Kitchen: (2.44m x 2.31m (8 x 7'7))
Double glazed door to outside, double glazed window to side, wall and base units, space for appliances, work surface, door to...
Bathroom:
Double glazed window to rear, bath, W.C, hand wash basin and a radiator.
1st Floor Landing:
Doors off.
Bedroom One: (3.28m x 3.18m (10'9 x 10'5))
Double glazed window to front, cupboard with Valiant combi boiler and a radiator.
Bedroom Two: (3.23m x 2.49m (10'7 x 8'2))
Double glazed window to rear and a radiator.
Bedrom Three: (2.64m x 2.13m (8'8 x 7))
Double glazed window to rear.
Outside:
To the rear there is a paved area with steps to the garden, access to side via a gate. Shed to remain.
Ipswich Office:
7 Great Colman Street, Ipswich, IP4 2AA to view please call or email
Viewing
Please contact us on 01473 253366 if you wish to arrange a viewing appointment for this property, or require further information.
Energy Performance Certificate
Click here to view the Energy Efficiency Rating and Environmental Impact Rating for this property.
Hamilton Smith - IP16 endeavour to maintain accurate depictions of properties in Virtual Tours, Floor Plans and descriptions, however, these are intended only as a guide and purchasers must satisfy themselves by personal inspection.

