- Single garage
- Off street parking
- Central heating
- Double glazing
Full Description
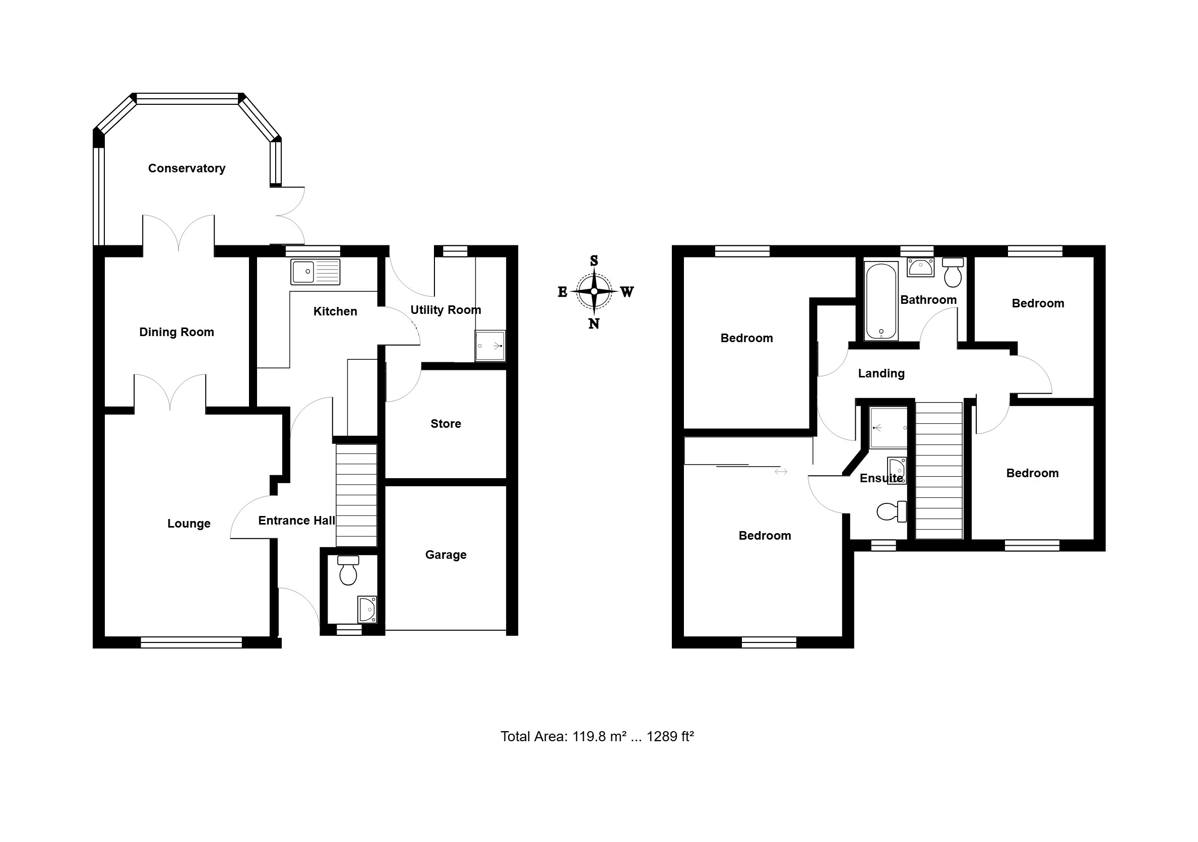
We are pleased to offer for sale this very well presented, four bedroom detached family house occupying an appealing corner position, at the end of a tucked away cul-de-sac, walking distance to schools & shops. With parking, garage and south facing garden
The property occupies an appealing corner position at the end of a desirable cul-de-sac within this sought after and well served village. Great Blakenham is an easily accessible village with links to both the A12 and A14. The village benefits from recently opened Budgens supermarket serving a good range of everyday shopping. There is also a recently extended and upgraded popular village Indian Restaurant. The river Gipping is situated close to the village with some attractive river walks along the water meadows. The larger village of Claydon is approximately half a miles distance offering a wider range of shopping, recreational and schooling facilities.
This very well presented, detached family house has been well cared for and is ready for immediate occupation. Features include a spacious entrance hall, sitting room with double doors opening to the dining room which in turn leads to a good quality conservatory overlooking the attractive, south facing walled rear garden, the kitchen and utility area have been upgraded. On the first floor the master bedroom benefits from built-in wardrobes and en-suite facilities, there are three further good size bedrooms and family bathroom. The position of this house is a particular feature, at the end of a desirable cul-de-sac.
Entrance hall:
Part glazed entrance door, staircase to the first floor, radiator with decorative cover, Karndean wood effect flooring.
Cloakroom:
Suite comprises low level wc and wall mounted wash hand basin, radiator, PVC double glazed window to the front aspect.
Sitting room:
14' 7" x 11' 7" (4.44m x 3.53m) Radiator, TV point, Karndean wood effect flooring, glazed double doors open to the dining room, PVC double glazed window to the front aspect.
Dining room:
9' 8" x 9' 7" (2.95m x 2.92m) Radiator, Karndean wood effect flooring, PVC double glazed French doors open directly to the conservatory.
Conservatory:
9' 6" x 9' 0" (2.9m x 2.74m) Good quality PVC double glazed construction with pitched roof, tile effect flooring, wall mounted electric heater, double glazed French doors open to the terrace
kitchen:
11' 7" x 8' 0" (3.53m x 2.44m) Re-fitted with an extensive range of good quality base and wall mounted units having wood effect doors and drawer fronts, marble effect worktops inset with one and half bowl sink unit with mixer tap, electric cooker point, extractor fan, built-in low level fridge, PVC double glazed window overlooking the rear garden.
Utility room:
7' 9" x 6' 8" (2.36m x 2.03m) Fitted base and wall mounted units with wood effect doors, marble effect worktop inset with stainless steel sink unit with mixer tap, plumbing for washing machine, door leads to an internal store, PVC double glazed window and half glazed PVC door opens to the garden.
Internal store/freezer room:
8' 0" x 7' 2" (2.44m x 2.18m)
first floor landing:
Built-in airing cupboard housing the gas fired combination central heating boiler.
Master bedroom:
15' 6" x 10' 5" (4.72m x 3.18m) Radiator, good range of built-in full height wardrobes with sliding mirrored doors inset fitted shelves and hanging rails, PVC double glazed window to the front aspect.
En-suite:
Suite comprises low level wc, pedestal wash hand basin and independent shower enclosure with pivot glazed door, wood effect flooring, alcove with fitted shelf, radiator, extractor fan, shaver point, PVC double glazed window to the front aspect.
Bedroom 2:
11' 9" x 8' 5" (3.58m x 2.57m) Radiator, wardrobe alcove, access to the partly boarded insulated loft space with power and light connected, PVC double glazed window overlooking the rear garden.
Bedroom 3:
9' 2" x 8' 2" (2.79m x 2.49m) Radiator, built-in overstair storage cupboard/wardrobe, PVC double glazed window to the front aspect.
Bedroom 4:
8' 7" x 8' 4" (2.62m x 2.54m) Radiator, PVC double glazed window overlooking the rear garden.
Family bathroom:
Suite comprises low level wc, pedestal wash hand basin and panel bath with shower mixer tap, extensive wall tiling with decorative border, shaver point, extractor fan, PVC double glazed window to the rear aspect.
Outside:
To the front of the house there is a block paved drive providing off road parking and leading directly to the sub-divided garage. Access leads to the rear garden which is relatively un-overlooked and faces due south with attractive walled boundary. Immediately to the rear of the house there is a good sized raised deck leading to the lawn, semi circular gravel borders, flowering trees and shrubs. Towards the end of the garden there is a hard standing with timber garden store.
Postcode: IP6 0HQ
energy rating: C - 71
viewing:
By arrangement with the agents, Hamilton Smith, or email us at You can also visit our web site
Viewing
Please contact us on 01473 833307 if you wish to arrange a viewing appointment for this property, or require further information.
Energy Performance Certificate
Click here to view the Energy Efficiency Rating and Environmental Impact Rating for this property.
Hamilton Smith - IP16 endeavour to maintain accurate depictions of properties in Virtual Tours, Floor Plans and descriptions, however, these are intended only as a guide and purchasers must satisfy themselves by personal inspection.
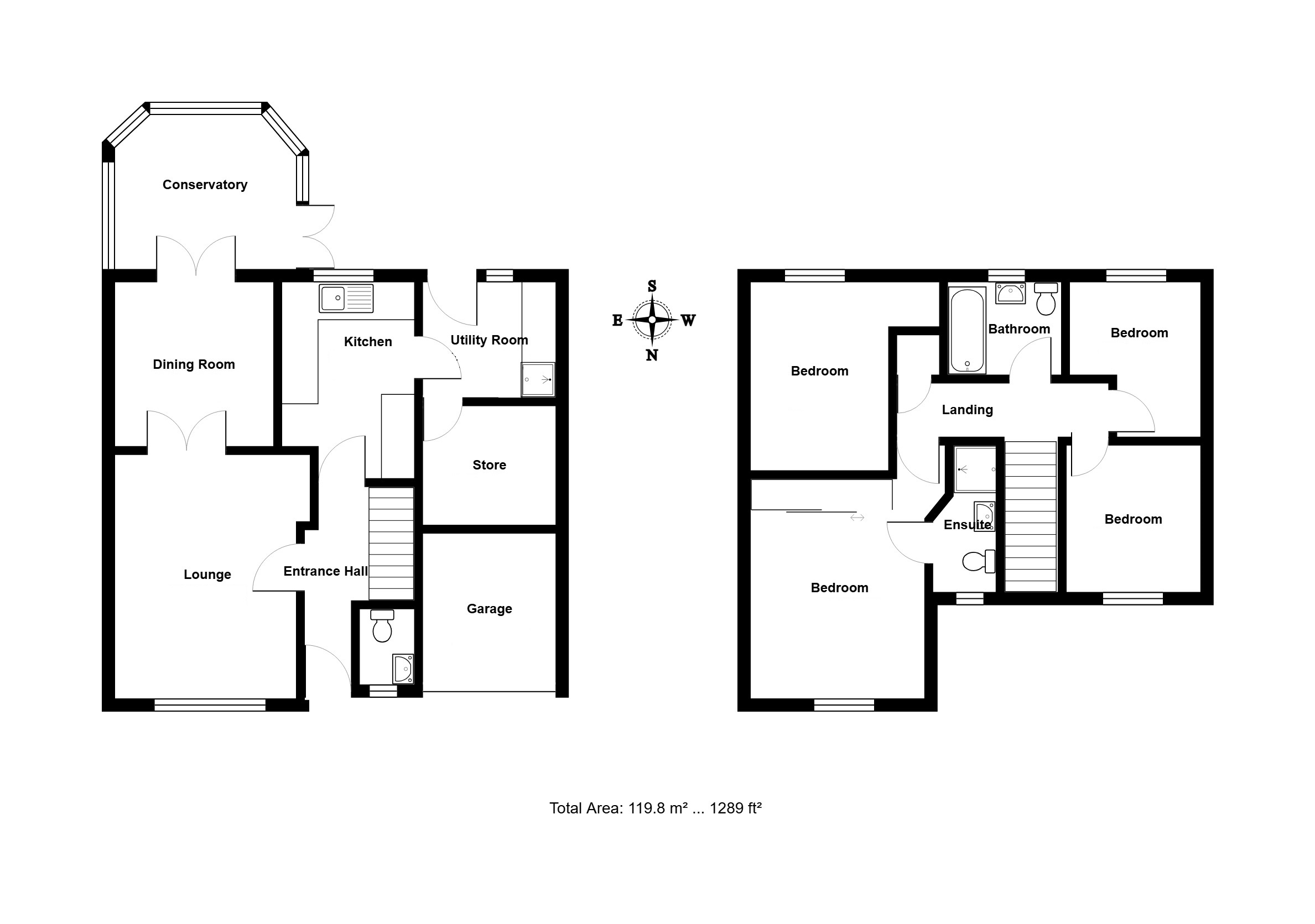
The property occupies an appealing corner position at the end of a desirable cul-de-sac within this sought after and well served village. Great Blakenham is an easily accessible village with links to both the A12 and A14. The village benefits from recently opened Budgens supermarket serving a good range of everyday shopping. There is also a recently extended and upgraded popular village Indian Restaurant. The river Gipping is situated close to the village with some attractive river walks along the water meadows. The larger village of Claydon is approximately half a miles distance offering a wider range of shopping, recreational and schooling facilities.
This very well presented, detached family house has been well cared for and is ready for immediate occupation. Features include a spacious entrance hall, sitting room with double doors opening to the dining room which in turn leads to a good quality conservatory overlooking the attractive, south facing walled rear garden, the kitchen and utility area have been upgraded. On the first floor the master bedroom benefits from built-in wardrobes and en-suite facilities, there are three further good size bedrooms and family bathroom. The position of this house is a particular feature, at the end of a desirable cul-de-sac.
Entrance hall:
Part glazed entrance door, staircase to the first floor, radiator with decorative cover, Karndean wood effect flooring.
Cloakroom:
Suite comprises low level wc and wall mounted wash hand basin, radiator, PVC double glazed window to the front aspect.
Sitting room:
14' 7" x 11' 7" (4.44m x 3.53m) Radiator, TV point, Karndean wood effect flooring, glazed double doors open to the dining room, PVC double glazed window to the front aspect.
Dining room:
9' 8" x 9' 7" (2.95m x 2.92m) Radiator, Karndean wood effect flooring, PVC double glazed French doors open directly to the conservatory.
Conservatory:
9' 6" x 9' 0" (2.9m x 2.74m) Good quality PVC double glazed construction with pitched roof, tile effect flooring, wall mounted electric heater, double glazed French doors open to the terrace
kitchen:
11' 7" x 8' 0" (3.53m x 2.44m) Re-fitted with an extensive range of good quality base and wall mounted units having wood effect doors and drawer fronts, marble effect worktops inset with one and half bowl sink unit with mixer tap, electric cooker point, extractor fan, built-in low level fridge, PVC double glazed window overlooking the rear garden.
Utility room:
7' 9" x 6' 8" (2.36m x 2.03m) Fitted base and wall mounted units with wood effect doors, marble effect worktop inset with stainless steel sink unit with mixer tap, plumbing for washing machine, door leads to an internal store, PVC double glazed window and half glazed PVC door opens to the garden.
Internal store/freezer room:
8' 0" x 7' 2" (2.44m x 2.18m)
first floor landing:
Built-in airing cupboard housing the gas fired combination central heating boiler.
Master bedroom:
15' 6" x 10' 5" (4.72m x 3.18m) Radiator, good range of built-in full height wardrobes with sliding mirrored doors inset fitted shelves and hanging rails, PVC double glazed window to the front aspect.
En-suite:
Suite comprises low level wc, pedestal wash hand basin and independent shower enclosure with pivot glazed door, wood effect flooring, alcove with fitted shelf, radiator, extractor fan, shaver point, PVC double glazed window to the front aspect.
Bedroom 2:
11' 9" x 8' 5" (3.58m x 2.57m) Radiator, wardrobe alcove, access to the partly boarded insulated loft space with power and light connected, PVC double glazed window overlooking the rear garden.
Bedroom 3:
9' 2" x 8' 2" (2.79m x 2.49m) Radiator, built-in overstair storage cupboard/wardrobe, PVC double glazed window to the front aspect.
Bedroom 4:
8' 7" x 8' 4" (2.62m x 2.54m) Radiator, PVC double glazed window overlooking the rear garden.
Family bathroom:
Suite comprises low level wc, pedestal wash hand basin and panel bath with shower mixer tap, extensive wall tiling with decorative border, shaver point, extractor fan, PVC double glazed window to the rear aspect.
Outside:
To the front of the house there is a block paved drive providing off road parking and leading directly to the sub-divided garage. Access leads to the rear garden which is relatively un-overlooked and faces due south with attractive walled boundary. Immediately to the rear of the house there is a good sized raised deck leading to the lawn, semi circular gravel borders, flowering trees and shrubs. Towards the end of the garden there is a hard standing with timber garden store.
Postcode: IP6 0HQ
energy rating: C - 71
viewing:
By arrangement with the agents, Hamilton Smith, or email us at You can also visit our web site
Viewing
Please contact us on 01473 833307 if you wish to arrange a viewing appointment for this property, or require further information.
Energy Performance Certificate
Click here to view the Energy Efficiency Rating and Environmental Impact Rating for this property.
Hamilton Smith - IP16 endeavour to maintain accurate depictions of properties in Virtual Tours, Floor Plans and descriptions, however, these are intended only as a guide and purchasers must satisfy themselves by personal inspection.

