Full Description
Deceptively spacious CHALET STYLE HOUSE offered in SUPERB CONDITION throughout and located in a quiet position, within the village.
Recently modernised and extended, this detached chalet bungalow provides split level living with quality fittings throughout. The vendors have been meticulous throughout the property so it is now offered for sale in superb condition with the benefit of low running costs due to an air source heat pump and solar panels being installed. (2,100 kwh for the first 8 months of 2025).
FULL DETAILS AND APPROXIMATE ROOM SIZES ARE AS FOLLOWS:
Part glazed composite door into:
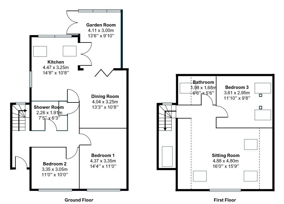
Entrance Hall:
'S' shaped with access to most ground floor accommodation, staircase to first floor, part vaulted ceiling open to upstairs with sky light, radiator, smoke detector. Cupboard housing pressurized hot water cylinder and controls for solar energy.
Shower Room: 7'5" max x 6'3" max (2.26m x 1.91m)
With white suite comprising wall mounted wash hand basin with Grohe contemporary mixer, Geberit dual flush WC with concealed cistern. 1200 x 900 dual control shower enclosure with rainwater head shower, glazed pivot door, heated towel rail radiator.
Bedroom One: 14'4" x 11' (4.37m x 3.35m)
PVCu window to front aspect, radiator, wood laminate floor.
Bedroom Two: 11' x 10' (3.35m x 3.05m)
PVCu window to front aspect, radiator, wood laminate floor.
Kitchen/Breakfast Room: 14'8" x 10'8" (4.47m x 3.25m)
Contemporary fitted gloss cream fronted high and low level units, cupboards and drawers under roll edge wood effect work surfaces with matching island. Stainless steel sink + drainer with 'Hansgrohe' mixer tap, inset ceramic induction hob with stainless steel chimney style extractor over, built-in Miele oven, plumbing for washing machine, built-in dishwasher, fridge and separate freezer. Part vaulted ceiling with two velux windows, sliding glazed doors to patio, double opening French doors to Conservatory, window to side aspect, open plan through to:
Dining Room: 13'3" x 10'8" (4.04m x 3.25m)
Tiled floor, radiator, built-in cupboards, oak bi-fold doors into:
Garden Room: 13'6" x 9'10" (4.11m x 3m)
Of part brick and glazed construction with pitched glazed roof with opening sky lights, continuation of tiled floor, radiator, double doors to garden.
Half return staircase to first floor landing opening into:
Sitting Room: 16' x 15'9" (4.88m x 4.80m)
A light and airy room with window to the front aspect and three velux windows to side, feature fireplace with electric fire, wood surround under a wooden mantel. Radiator, exposed oak wooden floor, built-in eaves storage cupboards, ceiling fan.
Bedroom Three: 11'10" x 9'8" (3.61m x 2.95m)
Two velux windows to side aspect, radiator, continuation of solid wood oak floor, loft access.
Family Bathroom: 6'6" x 5'6" (1.98m x 1.68m)
White suite comprising wall mounted wash hand basin with Grohe mixer tap, dual flush Geberit WC with concealed cistern, paneled bath with dual control Grohe mixer shower, folding glazed splash screen, tiled walls, heated towel rail radiator, velux skylight.
OUTSIDE
Front Garden:
Mainly laid to lawn with a paved pathway meandering to the front door and side entrance gate with external power connected, flower and shrub border.
Rear Garden:
Situated behind the house, is a raised paved patio area with pergola over and secluded paved seating area. The garden offers a hot tub point with timber cover and an ornamental pond. Laid to lawn with a variety of shrub and flower borders, enclosed on all sides the garden offers a high degree of seclusion. Outside tap and air source heat pump. Garage enbloc.
Mid Suffolk District Council - Tax Band 'B'
Freehold
EPC rating: 'C'
Regulations 2017 - Under Money Laundering, Terrorist Financing and Transfer of Funds
As Estate Agents, we are required to obtain identification from buyers/sellers in the form of either the photo page of a driving licence or passport, the document must still be valid for use. In addition, we will request proof of address in the form of a utility bill (with the name and address of the buyer clearly marked within the document).
This must not be more than three months old.
Under the terms of the regulations, we are also required to clarify, where the purchase funds will be obtained from.
Council Tax Band: B
Tenure: Freehold
Garden details: Enclosed Garden, Front Garden, Private Garden, Rear Garden
Electricity supply: Mains
Water supply: Mains
Sewerage: Mains
Viewing
Please contact us on 01728 860699 if you wish to arrange a viewing appointment for this property, or require further information.
Energy Performance Certificate
Click here to view the Energy Efficiency Rating and Environmental Impact Rating for this property.
Hamilton Smith - IP16 endeavour to maintain accurate depictions of properties in Virtual Tours, Floor Plans and descriptions, however, these are intended only as a guide and purchasers must satisfy themselves by personal inspection.
Recently modernised and extended, this detached chalet bungalow provides split level living with quality fittings throughout. The vendors have been meticulous throughout the property so it is now offered for sale in superb condition with the benefit of low running costs due to an air source heat pump and solar panels being installed. (2,100 kwh for the first 8 months of 2025).
FULL DETAILS AND APPROXIMATE ROOM SIZES ARE AS FOLLOWS:
Part glazed composite door into:
Entrance Hall:
'S' shaped with access to most ground floor accommodation, staircase to first floor, part vaulted ceiling open to upstairs with sky light, radiator, smoke detector. Cupboard housing pressurized hot water cylinder and controls for solar energy.
Shower Room: 7'5" max x 6'3" max (2.26m x 1.91m)
With white suite comprising wall mounted wash hand basin with Grohe contemporary mixer, Geberit dual flush WC with concealed cistern. 1200 x 900 dual control shower enclosure with rainwater head shower, glazed pivot door, heated towel rail radiator.
Bedroom One: 14'4" x 11' (4.37m x 3.35m)
PVCu window to front aspect, radiator, wood laminate floor.
Bedroom Two: 11' x 10' (3.35m x 3.05m)
PVCu window to front aspect, radiator, wood laminate floor.
Kitchen/Breakfast Room: 14'8" x 10'8" (4.47m x 3.25m)
Contemporary fitted gloss cream fronted high and low level units, cupboards and drawers under roll edge wood effect work surfaces with matching island. Stainless steel sink + drainer with 'Hansgrohe' mixer tap, inset ceramic induction hob with stainless steel chimney style extractor over, built-in Miele oven, plumbing for washing machine, built-in dishwasher, fridge and separate freezer. Part vaulted ceiling with two velux windows, sliding glazed doors to patio, double opening French doors to Conservatory, window to side aspect, open plan through to:
Dining Room: 13'3" x 10'8" (4.04m x 3.25m)
Tiled floor, radiator, built-in cupboards, oak bi-fold doors into:
Garden Room: 13'6" x 9'10" (4.11m x 3m)
Of part brick and glazed construction with pitched glazed roof with opening sky lights, continuation of tiled floor, radiator, double doors to garden.
Half return staircase to first floor landing opening into:
Sitting Room: 16' x 15'9" (4.88m x 4.80m)
A light and airy room with window to the front aspect and three velux windows to side, feature fireplace with electric fire, wood surround under a wooden mantel. Radiator, exposed oak wooden floor, built-in eaves storage cupboards, ceiling fan.
Bedroom Three: 11'10" x 9'8" (3.61m x 2.95m)
Two velux windows to side aspect, radiator, continuation of solid wood oak floor, loft access.
Family Bathroom: 6'6" x 5'6" (1.98m x 1.68m)
White suite comprising wall mounted wash hand basin with Grohe mixer tap, dual flush Geberit WC with concealed cistern, paneled bath with dual control Grohe mixer shower, folding glazed splash screen, tiled walls, heated towel rail radiator, velux skylight.
OUTSIDE
Front Garden:
Mainly laid to lawn with a paved pathway meandering to the front door and side entrance gate with external power connected, flower and shrub border.
Rear Garden:
Situated behind the house, is a raised paved patio area with pergola over and secluded paved seating area. The garden offers a hot tub point with timber cover and an ornamental pond. Laid to lawn with a variety of shrub and flower borders, enclosed on all sides the garden offers a high degree of seclusion. Outside tap and air source heat pump. Garage enbloc.
Mid Suffolk District Council - Tax Band 'B'
Freehold
EPC rating: 'C'
Regulations 2017 - Under Money Laundering, Terrorist Financing and Transfer of Funds
As Estate Agents, we are required to obtain identification from buyers/sellers in the form of either the photo page of a driving licence or passport, the document must still be valid for use. In addition, we will request proof of address in the form of a utility bill (with the name and address of the buyer clearly marked within the document).
This must not be more than three months old.
Under the terms of the regulations, we are also required to clarify, where the purchase funds will be obtained from.
Council Tax Band: B
Tenure: Freehold
Garden details: Enclosed Garden, Front Garden, Private Garden, Rear Garden
Electricity supply: Mains
Water supply: Mains
Sewerage: Mains
Viewing
Please contact us on 01728 860699 if you wish to arrange a viewing appointment for this property, or require further information.
Energy Performance Certificate
Click here to view the Energy Efficiency Rating and Environmental Impact Rating for this property.
Hamilton Smith - IP16 endeavour to maintain accurate depictions of properties in Virtual Tours, Floor Plans and descriptions, however, these are intended only as a guide and purchasers must satisfy themselves by personal inspection.

