Full Description
EXTENDED THREE/FOUR BEDROOM DETACHED CHALET STYLE HOUSE, offered in SUPERB CONDITION, situated in a tucked away location.
The property has undergone major renovation with an extension also added at the rear, situated in a sought location and within a short walk to the village centre and all the amenities.
The chalet offers a good size sitting/dining room at the front with a stunning kitchen along the rear, along with a snug/bedroom four and shower room all located on the ground floor. There are three double bedrooms and a family bathroom on the first floor. Situated on a good size plot, the gardens are of a good size with the front garden laid predominantly to lawn.
The south facing rear garden is of good proportions with an abundance of trees and shrubs, enclosed on all sides, this corner plot offers ample space in which to enjoy the sun when it arrives.
FULL DETAILS AND APPROXIMATE ROOM SIZES ARE AS FOLLOWS:
Half glazed front entrance door into:
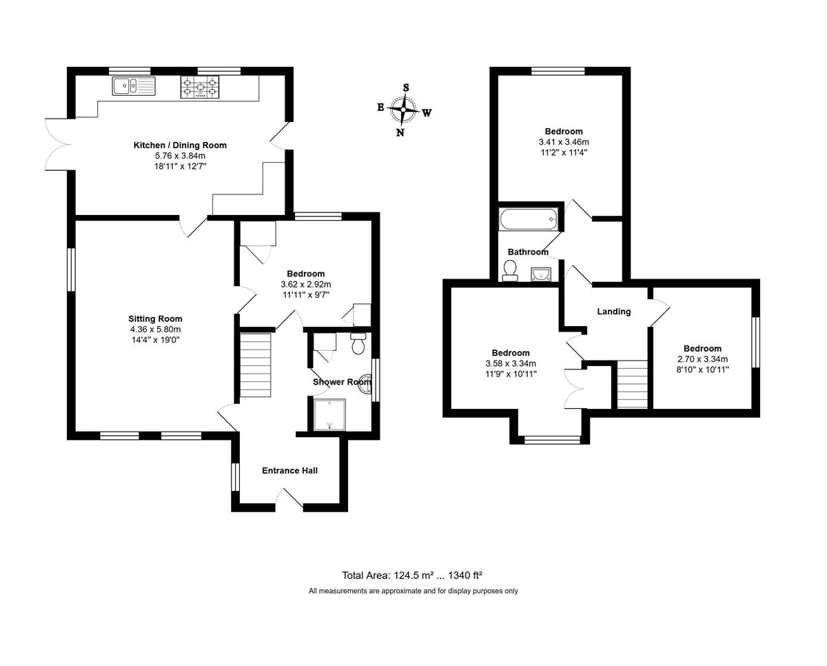
Entrance Hall: 16'1" x 8'8" (4.90m x 2.68m)
With window to side aspect, stairs to first floor with cupboard under, two radiators.
Sitting/Dining Room: 19'1" x 14'3" (5.82m x 4.35m)
With double aspect windows, two to front aspect and one to side, feature fireplace housing electric stove, two radiators, television point, door to kitchen, door to:
Snug/Bedroom Four: 12' x 9'10" (3.65m x 2.77m)
With window to rear aspect, radiator, two cupboards, cupboard housing pressurised hot water cylinder and water softener and second cupboard housing consumer unit.
Shower Room: 9' x 5'3" (2.74m x 1.61m)
White suite comprising of shower cubicle with integrated mixer shower, low level w.c., pedestal wash hand basin, half tiled walls, obscure window to side aspect, towel rail radiator, wall mounted fan heater.
Kitchen: 18'10" x 12'6" (5.51m x 3.84m)
Stunning kitchen, comprising of high and low level units, cupboards and drawers under roll edge work surfaces, one and a half stainless steel sink and drainer with swan neck h&c mixer over. Cooker point with chimney style extractor above, plumbing for washing machine and dishwasher, two windows to rear aspect, courtesy door to side, lighting under cupboards and plinths, fan heater, French door opens onto rear garden.
First Floor Landing: 7'5" x 6'6" (2.28m x 2.01m)
With access to all bedrooms and family bathroom, access to loft space.
Bedroom One: 12'3" x 11'3" (3.74m x 3.44m)
With sloping apex, radiator.
Bedroom Two: 11'8" x 10'10" (3.59m x 3.07m)
With window to front aspect, radiator, wardrobe cupboards.
Bedroom Three: 11' x 9' (3.35m x 2.74m)
With fitted cupboards, window to side aspect, radiator.
Family Bathroom: 6'2" x 5'7" (1.88m x 1.73m)
Comprising white bath with mixer shower and pivot screen, wash hand basin, low level w.c.,
wall mounted fan heater.
Outside
The property is approached over a paved and gravelled driveway with paved entrance and step to storm
porch front entrance door.
The driveway provides off-road parking leading up to the SINGLE GARAGE with double opening doors and
power and light connected. FRONT GARDEN is mainly laid to lawn with a mature boundary and side entrance gateway into the rear garden which is also accessed from a pedestrian gateway located on the driveway.
The REAR GARDEN is of a generous size, mainly laid to lawn with curved and shaped flower and shrub beds interspersed with mature trees, trellis screened oil tank, fully enclosed boiler room with Grant oil fired boiler, outside tap. Steps lead up to a decked area, an ideal entertainment space which leads into the fully fitted kitchen.
The garden also has the major benefit of being south facing.
Local Authority: Babergh & Mid Suffolk District Council
Freehold
Council Tax Band: 'C'
EPC Rating: 'C'
Regulations 2017 - Under Money Laundering, Terrorist Financing and Transfer of Funds.
As Estate Agents, we are required to obtain identification from buyers/sellers in the form of either the photo page of
a driving licence or passport, the document must still be valid for use. In addition, we will request proof of address in the form of a utility bill (with the name and address of the buyer clearly marked within the document).
This must not be more than three months old.
Under the terms of the regulations, we are also required to clarify, where the purchase funds will be obtained from.
Council Tax Band: C
Tenure: Freehold
Parking options: Driveway, Garage
Garden details: Enclosed Garden, Front Garden, Rear Garden
Electricity supply: Mains
Heating: Oil
Water supply: Mains
Sewerage: Mains
Viewing
Please contact us on 01728 860699 if you wish to arrange a viewing appointment for this property, or require further information.
Energy Performance Certificate
Click here to view the Energy Efficiency Rating and Environmental Impact Rating for this property.
Hamilton Smith - IP16 endeavour to maintain accurate depictions of properties in Virtual Tours, Floor Plans and descriptions, however, these are intended only as a guide and purchasers must satisfy themselves by personal inspection.
The property has undergone major renovation with an extension also added at the rear, situated in a sought location and within a short walk to the village centre and all the amenities.
The chalet offers a good size sitting/dining room at the front with a stunning kitchen along the rear, along with a snug/bedroom four and shower room all located on the ground floor. There are three double bedrooms and a family bathroom on the first floor. Situated on a good size plot, the gardens are of a good size with the front garden laid predominantly to lawn.
The south facing rear garden is of good proportions with an abundance of trees and shrubs, enclosed on all sides, this corner plot offers ample space in which to enjoy the sun when it arrives.
FULL DETAILS AND APPROXIMATE ROOM SIZES ARE AS FOLLOWS:
Half glazed front entrance door into:
Entrance Hall: 16'1" x 8'8" (4.90m x 2.68m)
With window to side aspect, stairs to first floor with cupboard under, two radiators.
Sitting/Dining Room: 19'1" x 14'3" (5.82m x 4.35m)
With double aspect windows, two to front aspect and one to side, feature fireplace housing electric stove, two radiators, television point, door to kitchen, door to:
Snug/Bedroom Four: 12' x 9'10" (3.65m x 2.77m)
With window to rear aspect, radiator, two cupboards, cupboard housing pressurised hot water cylinder and water softener and second cupboard housing consumer unit.
Shower Room: 9' x 5'3" (2.74m x 1.61m)
White suite comprising of shower cubicle with integrated mixer shower, low level w.c., pedestal wash hand basin, half tiled walls, obscure window to side aspect, towel rail radiator, wall mounted fan heater.
Kitchen: 18'10" x 12'6" (5.51m x 3.84m)
Stunning kitchen, comprising of high and low level units, cupboards and drawers under roll edge work surfaces, one and a half stainless steel sink and drainer with swan neck h&c mixer over. Cooker point with chimney style extractor above, plumbing for washing machine and dishwasher, two windows to rear aspect, courtesy door to side, lighting under cupboards and plinths, fan heater, French door opens onto rear garden.
First Floor Landing: 7'5" x 6'6" (2.28m x 2.01m)
With access to all bedrooms and family bathroom, access to loft space.
Bedroom One: 12'3" x 11'3" (3.74m x 3.44m)
With sloping apex, radiator.
Bedroom Two: 11'8" x 10'10" (3.59m x 3.07m)
With window to front aspect, radiator, wardrobe cupboards.
Bedroom Three: 11' x 9' (3.35m x 2.74m)
With fitted cupboards, window to side aspect, radiator.
Family Bathroom: 6'2" x 5'7" (1.88m x 1.73m)
Comprising white bath with mixer shower and pivot screen, wash hand basin, low level w.c.,
wall mounted fan heater.
Outside
The property is approached over a paved and gravelled driveway with paved entrance and step to storm
porch front entrance door.
The driveway provides off-road parking leading up to the SINGLE GARAGE with double opening doors and
power and light connected. FRONT GARDEN is mainly laid to lawn with a mature boundary and side entrance gateway into the rear garden which is also accessed from a pedestrian gateway located on the driveway.
The REAR GARDEN is of a generous size, mainly laid to lawn with curved and shaped flower and shrub beds interspersed with mature trees, trellis screened oil tank, fully enclosed boiler room with Grant oil fired boiler, outside tap. Steps lead up to a decked area, an ideal entertainment space which leads into the fully fitted kitchen.
The garden also has the major benefit of being south facing.
Local Authority: Babergh & Mid Suffolk District Council
Freehold
Council Tax Band: 'C'
EPC Rating: 'C'
Regulations 2017 - Under Money Laundering, Terrorist Financing and Transfer of Funds.
As Estate Agents, we are required to obtain identification from buyers/sellers in the form of either the photo page of
a driving licence or passport, the document must still be valid for use. In addition, we will request proof of address in the form of a utility bill (with the name and address of the buyer clearly marked within the document).
This must not be more than three months old.
Under the terms of the regulations, we are also required to clarify, where the purchase funds will be obtained from.
Council Tax Band: C
Tenure: Freehold
Parking options: Driveway, Garage
Garden details: Enclosed Garden, Front Garden, Rear Garden
Electricity supply: Mains
Heating: Oil
Water supply: Mains
Sewerage: Mains
Viewing
Please contact us on 01728 860699 if you wish to arrange a viewing appointment for this property, or require further information.
Energy Performance Certificate
Click here to view the Energy Efficiency Rating and Environmental Impact Rating for this property.
Hamilton Smith - IP16 endeavour to maintain accurate depictions of properties in Virtual Tours, Floor Plans and descriptions, however, these are intended only as a guide and purchasers must satisfy themselves by personal inspection.

