Full Description
Located in the popular Combs Ford area of Stowmarket and OFFERED WITH NO ONWARD CHAIN this 3 bedroom semi detached house benefits from off road parking, garage and approximately 1/4 acre plot (STS). With living room, kitchen/diner and ground floor shower room internal viewing is highly recommended.
STOWMARKET:
Stowmarket is a market town situated in Suffolk close to the A14 trunk road between Bury St Edmunds to the west and Ipswich to the southeast. The town is on the main railway line between London and Norwich, and lies on the River Gipping, which is joined by its tributary, the River Rat, to the south of the town. The town takes its name from the Old English word stow meaning ‘principal place’, and was granted a market charter in 1347 by Edward III.
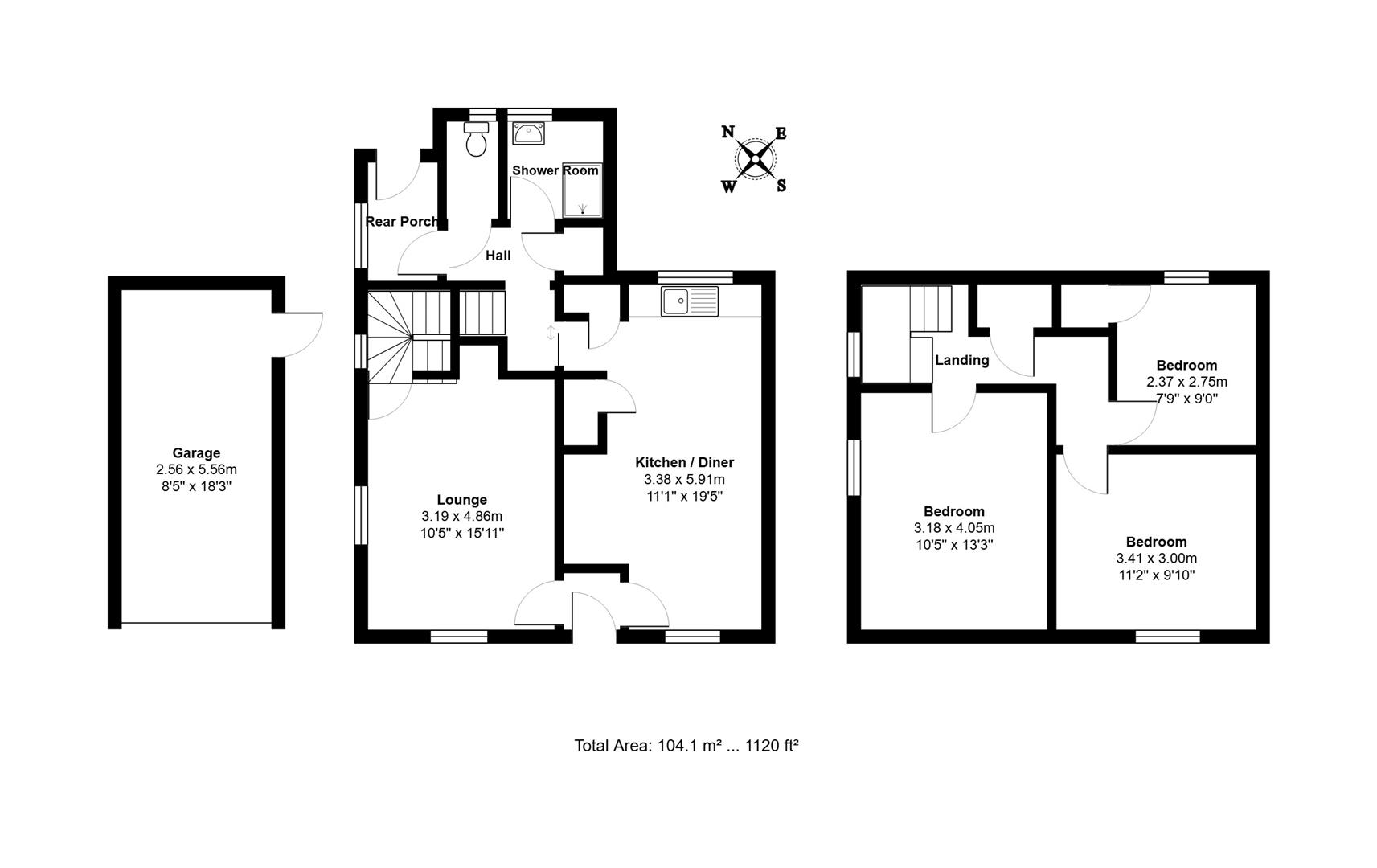
FRONT ENTRANCE DOOR TO:
ENTRANCE HALLWAY:
Doors to....
KITCHEN/DINER: (5.91 x 3.38 (19'4" x 11'1"))
Window to front and rear, radiator, two storage cupboards, range of wall and base units with work surface over. Space for appliances. Door to rear hallway.
LIVING ROOM: (4.86 x 3.19 (15'11" x 10'5"))
Window to front and side, radiator, gas fire set into fireplace. Under stairs cupboard with window to side.
REAR HALLWAY:
Stairs to first floor, storage cupboard housing boiler, radiator, door to rear lobby.
SHOWER ROOM:
Window to rear, double shower cubicle, wash hand basin set into vanity unit, heated towel rail.
W/C
Window to rear, radiator and low level W/C.
FIRST FLOOR LANDING:
Window to side, loft access, airing cupboard and doors to.....
BEDROOM 1: (4.05 x 3.18 (13'3" x 10'5"))
Window to side, radiator and feature fireplace.
BEDROOM 2: (3.41 x 3.00 (11'2" x 9'10"))
Window to front and radiator.
BEDROOM 3: (2.37 x 2.75 (7'9" x 9'0"))
Window to rear, radiator and storage cupboard.
OUTSIDE:
To the front of the property there is a lawn area, driveway leading to single GARAGE with up and over door. There is side access to the rear of the property.
The rear garden is mainly laid to lawn with flower and shrub borders. The plot is approximately 1/4 acre (STS)
Viewing
Please contact us on 01449 722242 if you wish to arrange a viewing appointment for this property, or require further information.
Energy Performance Certificate
Click here to view the Energy Efficiency Rating and Environmental Impact Rating for this property.
Hamilton Smith - IP16 endeavour to maintain accurate depictions of properties in Virtual Tours, Floor Plans and descriptions, however, these are intended only as a guide and purchasers must satisfy themselves by personal inspection.
STOWMARKET:
Stowmarket is a market town situated in Suffolk close to the A14 trunk road between Bury St Edmunds to the west and Ipswich to the southeast. The town is on the main railway line between London and Norwich, and lies on the River Gipping, which is joined by its tributary, the River Rat, to the south of the town. The town takes its name from the Old English word stow meaning ‘principal place’, and was granted a market charter in 1347 by Edward III.
FRONT ENTRANCE DOOR TO:
ENTRANCE HALLWAY:
Doors to....
KITCHEN/DINER: (5.91 x 3.38 (19'4" x 11'1"))
Window to front and rear, radiator, two storage cupboards, range of wall and base units with work surface over. Space for appliances. Door to rear hallway.
LIVING ROOM: (4.86 x 3.19 (15'11" x 10'5"))
Window to front and side, radiator, gas fire set into fireplace. Under stairs cupboard with window to side.
REAR HALLWAY:
Stairs to first floor, storage cupboard housing boiler, radiator, door to rear lobby.
SHOWER ROOM:
Window to rear, double shower cubicle, wash hand basin set into vanity unit, heated towel rail.
W/C
Window to rear, radiator and low level W/C.
FIRST FLOOR LANDING:
Window to side, loft access, airing cupboard and doors to.....
BEDROOM 1: (4.05 x 3.18 (13'3" x 10'5"))
Window to side, radiator and feature fireplace.
BEDROOM 2: (3.41 x 3.00 (11'2" x 9'10"))
Window to front and radiator.
BEDROOM 3: (2.37 x 2.75 (7'9" x 9'0"))
Window to rear, radiator and storage cupboard.
OUTSIDE:
To the front of the property there is a lawn area, driveway leading to single GARAGE with up and over door. There is side access to the rear of the property.
The rear garden is mainly laid to lawn with flower and shrub borders. The plot is approximately 1/4 acre (STS)
Viewing
Please contact us on 01449 722242 if you wish to arrange a viewing appointment for this property, or require further information.
Energy Performance Certificate
Click here to view the Energy Efficiency Rating and Environmental Impact Rating for this property.
Hamilton Smith - IP16 endeavour to maintain accurate depictions of properties in Virtual Tours, Floor Plans and descriptions, however, these are intended only as a guide and purchasers must satisfy themselves by personal inspection.

