Full Description
SUPERIOR FIVE BEDROOM DETACHED HOUSE with a ONE BEDROOM DETACHED ANNEXE, situated within the grounds.
This individual build property is of traditional construction with rendered elevations under a pan tiled roof, offering 3500 sq ft of accommodation including the annexe which is located within the grounds of the property. The house offers many features which include a magnificent marble entrance hall, inglenook fire place in the sitting room with wood burner and a Kitchen/Breakfast Room offering a family space with double doors onto the verandah.
Upstairs the main bedroom suite offers its own bathroom and dressing room, with guest bedroom/two also having an ensuite shower room. Situated in the grounds of the house is a substantial one bedroom annexe with fitted kitchen, spacious sitting room with bedroom and shower room on the first floor. Both properties have oil fired heating with the main house having zoned under floor heating throughout the ground floor.
FULL DETAILS AND APPROXIMATE ROOM SIZES ARE AS FOLLOWS:
Storm Porch:
Solid wood entrance door with windows either side leading into:
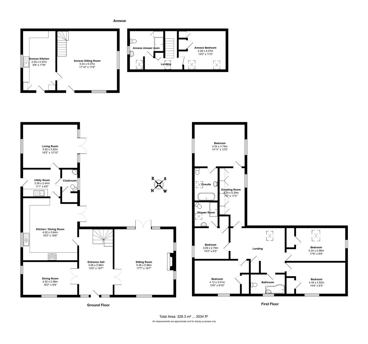
Entrance Hall: 19'6" x 10'3" (5.94 x 3.12m)
An exceptionally spacious entrance hall with staircase leading to the first floor and cupboard under, wall mounted digital programmer, marble tiled floor, door to kitchen and double doors to sitting and dining rooms.
Sitting Room: 17'7" x 19'6" (5.36m x 5.94m)
Feature inglenook fireplace with wood burning stove under an oak bressummer. Double aspect windows with views to both the front and side aspects and double opening doors lead onto the patio area.
Dining Room: 16'1" x 9'9" (4.9m x 2.97m)
With windows to front and side aspects.
Kitchen/Breakfast Room: 18'6" x 16'2" (5.64m x 4.93m)
Comprehensively fitted with pale fronted wooden units, cupboards and drawers under roll edge work surfaces. Rangemaster cooker with extractor chimney, ceramic sink and drainer, built in dishwasher, tiled flooring and splashbacks, recessed ceiling lights. Double doors open onto the verandah, window to side aspect and door to:
Utility Room: 11' x 8' (3.35m x 2.44m)
A continuation of the kitchen units with worktops, stainless steel sink and drainer, space and plumbing for washing machine, extractor, stable door to side aspect, door to family room and door to:
Cloakroom: 6'6" x 4'6" (1.98m x 1.37m)
White suite comprising of a corner low level WC and corner wash hand basin, tiled floor, cupboard housing Thermecon oil fired boiler, obscure window to the side aspect.
Family Room: 16'2" x 12'10" (4.93m x 3.91m)
Window to side aspect, and French doors to the verandah.
First Floor Landing:
With access to all accommodation and loft, airing cupboard with hot water cylinder and shelving, smoke detector, radiator, velux window, walk through dressing room to:
Bedroom One: 16'2" x 12'10" (4.93m x 3.91m)
With radiator, double aspect windows to side aspects with fitted shutters and door to:
En Suite: 9'8" x 6'9" (2.95m x 2.06m)
Comprising of white roll top bath, wash hand basin, dual flush low level WC, towel rail radiator, velux window.
Dressing Room: 17'3" x 7' (5.26m x 2.13m)
With five wardrobe cupboards all approximately two feet in depth, radiator and window to the side aspect.
Bedroom Two: 10'4" x 9'3" (3.15m x 2.82m)
With radiator, cupboard with rail and shelf, door to:
Ensuite: 7'2" x 6'9" (2.18m x 2.06m)
White suite comprising of a corner low level WC, pedestal wash hand basin, fully tiled shower enclosure with integrated mixer shower, towel rail radiator, velux window.
Bedroom Three: 16'3" x 9'11" (4.95m x 3.02m)
Including wardrobe cupboard, radiator and window to the front aspect.
Bedroom Four: 17'7"max x 9'6" (5.36m x 2.9m)
Including wardrobe cupboard, radiator, velux window to rear and window to side aspect.
Bedroom Five: 17'7"max x 9'6" (5.36m x 2.9m)
Including wardrobe cupboard, radiator, window to front aspect.
Family Bathroom: 10'2" x 5'9" (3.1m x 1.75m)
Comprising of an integrated bath/shower with curved splash screen, low level WC, pedestal wash hand basin,
tiled splash backs, radiator, window to front aspect.
ANNEXE
Wooden entrance door into:
Sitting Room: 18' x 17'10" (5.49m x 5.44m)
Feature fireplace with wooden surround and mantel housing an electric fire, television point, radiator, inset spotlights, staircase to first floor, windows to front and side aspects.
Kitchen/Diner: 17'5" x 9'6" (5.31m x 2.9m)
Fitted with a range of solid beech high and low level units, cupboards and drawers under roll edge work surfaces,
inset composite one and a half bowl sink and drainer with tiled splash backs. Built-in oven, inset hob with stainless steel chimney extractor over, built-in dishwasher, space for fridge/freezer, wood laminate floor, inset spotlighting,
radiator, cupboard housing Worcester oil boiler, window to rear aspect.
First Floor Landing:
With access to all accommodation, clothes cupboard with rail and shelf, smoke detector and door to:
Bedroom: 13'11" max x 11'5" (4.24m x 3.48m)
With wardrobe cupboard, telephone point, radiator and window to front aspect.
Shower Room: 9'9" x 7'3" (2.97m x 2.21m) plus 4'2" x 4' (1.27m x 1.22m)
Comprising of 900 shower cubicle with wall mounted mixer, dual flush low level WC., pedestal wash hand basin, towel rail, circular window to side aspect and velux window to front aspect.
OUTSIDE
The property is approached via a wooden five bar gate leading on to the paved driveway with ample off-road parking for numerous vehicles. The drive is flanked on either side by wide areas of lawn and established trees.
Leading round to the rear of the house, there is a spacious decked verandah which can be accessed by both the kitchen/breakfast room and the family room, with steps down to the patio which is laid to 'Jeronda' French limestone effect paving. Both properties are enclosed by close border fencing and red brick walling.
Council Tax Band: F - Babergh & Mid Suffolk District Council
'Freehold' - EPC rating: 'C'
Council Tax Band: F
Tenure: Freehold
Parking options: Driveway, EV Charging, Off Street
Garden details: Enclosed Garden, Front Garden, Rear Garden, Terrace
Electricity supply: Mains
Heating: Oil, Underfloor
Water supply: Mains
Sewerage: Mains
Viewing
Please contact us on 01728 860699 if you wish to arrange a viewing appointment for this property, or require further information.
Energy Performance Certificate
Click here to view the Energy Efficiency Rating and Environmental Impact Rating for this property.
Hamilton Smith - IP16 endeavour to maintain accurate depictions of properties in Virtual Tours, Floor Plans and descriptions, however, these are intended only as a guide and purchasers must satisfy themselves by personal inspection.
This individual build property is of traditional construction with rendered elevations under a pan tiled roof, offering 3500 sq ft of accommodation including the annexe which is located within the grounds of the property. The house offers many features which include a magnificent marble entrance hall, inglenook fire place in the sitting room with wood burner and a Kitchen/Breakfast Room offering a family space with double doors onto the verandah.
Upstairs the main bedroom suite offers its own bathroom and dressing room, with guest bedroom/two also having an ensuite shower room. Situated in the grounds of the house is a substantial one bedroom annexe with fitted kitchen, spacious sitting room with bedroom and shower room on the first floor. Both properties have oil fired heating with the main house having zoned under floor heating throughout the ground floor.
FULL DETAILS AND APPROXIMATE ROOM SIZES ARE AS FOLLOWS:
Storm Porch:
Solid wood entrance door with windows either side leading into:
Entrance Hall: 19'6" x 10'3" (5.94 x 3.12m)
An exceptionally spacious entrance hall with staircase leading to the first floor and cupboard under, wall mounted digital programmer, marble tiled floor, door to kitchen and double doors to sitting and dining rooms.
Sitting Room: 17'7" x 19'6" (5.36m x 5.94m)
Feature inglenook fireplace with wood burning stove under an oak bressummer. Double aspect windows with views to both the front and side aspects and double opening doors lead onto the patio area.
Dining Room: 16'1" x 9'9" (4.9m x 2.97m)
With windows to front and side aspects.
Kitchen/Breakfast Room: 18'6" x 16'2" (5.64m x 4.93m)
Comprehensively fitted with pale fronted wooden units, cupboards and drawers under roll edge work surfaces. Rangemaster cooker with extractor chimney, ceramic sink and drainer, built in dishwasher, tiled flooring and splashbacks, recessed ceiling lights. Double doors open onto the verandah, window to side aspect and door to:
Utility Room: 11' x 8' (3.35m x 2.44m)
A continuation of the kitchen units with worktops, stainless steel sink and drainer, space and plumbing for washing machine, extractor, stable door to side aspect, door to family room and door to:
Cloakroom: 6'6" x 4'6" (1.98m x 1.37m)
White suite comprising of a corner low level WC and corner wash hand basin, tiled floor, cupboard housing Thermecon oil fired boiler, obscure window to the side aspect.
Family Room: 16'2" x 12'10" (4.93m x 3.91m)
Window to side aspect, and French doors to the verandah.
First Floor Landing:
With access to all accommodation and loft, airing cupboard with hot water cylinder and shelving, smoke detector, radiator, velux window, walk through dressing room to:
Bedroom One: 16'2" x 12'10" (4.93m x 3.91m)
With radiator, double aspect windows to side aspects with fitted shutters and door to:
En Suite: 9'8" x 6'9" (2.95m x 2.06m)
Comprising of white roll top bath, wash hand basin, dual flush low level WC, towel rail radiator, velux window.
Dressing Room: 17'3" x 7' (5.26m x 2.13m)
With five wardrobe cupboards all approximately two feet in depth, radiator and window to the side aspect.
Bedroom Two: 10'4" x 9'3" (3.15m x 2.82m)
With radiator, cupboard with rail and shelf, door to:
Ensuite: 7'2" x 6'9" (2.18m x 2.06m)
White suite comprising of a corner low level WC, pedestal wash hand basin, fully tiled shower enclosure with integrated mixer shower, towel rail radiator, velux window.
Bedroom Three: 16'3" x 9'11" (4.95m x 3.02m)
Including wardrobe cupboard, radiator and window to the front aspect.
Bedroom Four: 17'7"max x 9'6" (5.36m x 2.9m)
Including wardrobe cupboard, radiator, velux window to rear and window to side aspect.
Bedroom Five: 17'7"max x 9'6" (5.36m x 2.9m)
Including wardrobe cupboard, radiator, window to front aspect.
Family Bathroom: 10'2" x 5'9" (3.1m x 1.75m)
Comprising of an integrated bath/shower with curved splash screen, low level WC, pedestal wash hand basin,
tiled splash backs, radiator, window to front aspect.
ANNEXE
Wooden entrance door into:
Sitting Room: 18' x 17'10" (5.49m x 5.44m)
Feature fireplace with wooden surround and mantel housing an electric fire, television point, radiator, inset spotlights, staircase to first floor, windows to front and side aspects.
Kitchen/Diner: 17'5" x 9'6" (5.31m x 2.9m)
Fitted with a range of solid beech high and low level units, cupboards and drawers under roll edge work surfaces,
inset composite one and a half bowl sink and drainer with tiled splash backs. Built-in oven, inset hob with stainless steel chimney extractor over, built-in dishwasher, space for fridge/freezer, wood laminate floor, inset spotlighting,
radiator, cupboard housing Worcester oil boiler, window to rear aspect.
First Floor Landing:
With access to all accommodation, clothes cupboard with rail and shelf, smoke detector and door to:
Bedroom: 13'11" max x 11'5" (4.24m x 3.48m)
With wardrobe cupboard, telephone point, radiator and window to front aspect.
Shower Room: 9'9" x 7'3" (2.97m x 2.21m) plus 4'2" x 4' (1.27m x 1.22m)
Comprising of 900 shower cubicle with wall mounted mixer, dual flush low level WC., pedestal wash hand basin, towel rail, circular window to side aspect and velux window to front aspect.
OUTSIDE
The property is approached via a wooden five bar gate leading on to the paved driveway with ample off-road parking for numerous vehicles. The drive is flanked on either side by wide areas of lawn and established trees.
Leading round to the rear of the house, there is a spacious decked verandah which can be accessed by both the kitchen/breakfast room and the family room, with steps down to the patio which is laid to 'Jeronda' French limestone effect paving. Both properties are enclosed by close border fencing and red brick walling.
Council Tax Band: F - Babergh & Mid Suffolk District Council
'Freehold' - EPC rating: 'C'
Council Tax Band: F
Tenure: Freehold
Parking options: Driveway, EV Charging, Off Street
Garden details: Enclosed Garden, Front Garden, Rear Garden, Terrace
Electricity supply: Mains
Heating: Oil, Underfloor
Water supply: Mains
Sewerage: Mains
Viewing
Please contact us on 01728 860699 if you wish to arrange a viewing appointment for this property, or require further information.
Energy Performance Certificate
Click here to view the Energy Efficiency Rating and Environmental Impact Rating for this property.
Hamilton Smith - IP16 endeavour to maintain accurate depictions of properties in Virtual Tours, Floor Plans and descriptions, however, these are intended only as a guide and purchasers must satisfy themselves by personal inspection.

