Full Description
Versatile FOUR/FIVE BEDROOM HOUSE with a DETACHED BARN for renovation (Detailed planning currently lapsed) stunning views and location.
This individual house is situated in Water Lane in the centre of this popular village, the property enjoys a quiet position just two minutes walk away from the High Street. The property presents painted rendered elevations under an interlocking pantile roof and is of good proportions, sitting centrally within its plot. The property provides light and spacious accommodation over two floors with two bedrooms on the ground floor and three on the first floor all with access to bathroom facilities.
Situated in established surroundings, at the rear of the property is a detached barn which has previously obtained planning as a separate dwelling (standing within its own grounds and own access), please note this would have to be renewed in order for development.
FULL DETAILS AND APPROXIMATE ROOM SIZES ARE AS FOLLOWS:
Storm porch with solid wood entrance door into:
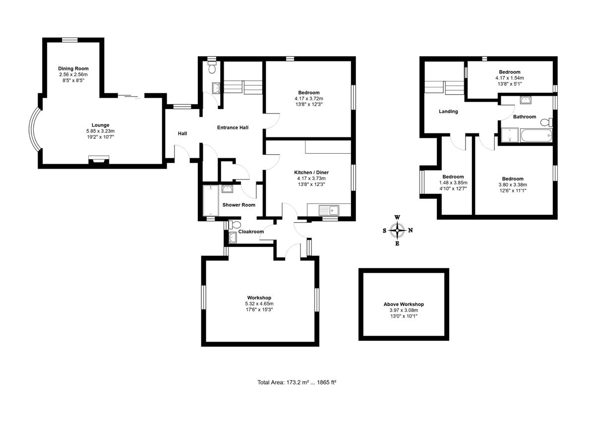
Entrance Hall: 7'10" x 5'5" (2.39m x 1.65m) arch opening to 15'10" max x 9'5" (4.83m x 2.87m)
With access to most of the ground floor accommodation, staircase to the first floor with cupboard under, storage cupboard with complimentary shelves, airing cupboard housing hot water cylinder, two radiators, part brick pamment flooring and part oak floor, window to the side aspect and door to:
Cloakroom: 7'1" x 2'10" (2.16m x 0.86m)
With white ceramic suite comprising of dual flush low level WC, wall mounted wash hand basin, stone tiled splash backs, radiator, oak flooring, obscure window to the side aspect, extractor.
Sitting Room/Diner: 19'3" x 10'7" (5.87m x 3.23m) plus 9'4" x 8'5" (2.84m x 2.56m)
'L' shaped room with feature open fireplace incorporating a wood burning stove with wooden mantel and raised slate hearth, three radiators, television point, smoke detector, double glazed sliding patio doors to paved courtyard area and windows to the front and side aspects.
Kitchen/Breakfast Room: 13'7" x 12'2" (4.14m x 3.71m)
Fitted with high and low level oak units, cupboards and drawers under roll edge solid granite work surfaces, inset one and half bowl composite sink and single drainer with h & c mixer over, stone wall tiles. Kenwood range cooker with five ring halogen hob, stainless steel chimney style extractor and splash back over, brushed stainless steel shelving, part slate and part oak flooring, larder cupboard, windows to the rear and side aspects.
Bedroom: 13'7" x 11'10" (4.14m x 3.61m)
Situated off hallway, radiator, windows to the rear and side aspects.
Shower Room: 9'5" x 5'1" (2.87m x 1.55m) + 7'2" x 3'10"
With walk in wet room shower, wall mounted mixer shower, inset wash hand basin with vanity cupboard under. Half tiled limestone effect wall tiles and splash backs, two heated towel rail radiators, extractor, obscure windows to the side and front aspects. Second wash hand basin and wc, door to:
Rear Entrance Hall: 6' x 5'5" (1.83m x 1.65m)
With stable door to the rear garden, access to the Kitchen and Reception/Bedroom Five, radiator, window to the
side aspect, door to:
Living Room/Bedroom Five: 17'4" x 13'1" (5.28m x 3.99m) plus 6'8" x 2'10" (2.03m x 0.86m) alcove
With stripped wood floor, two radiators, freestanding Grant oil fired boiler, two windows to the front aspect and window to the rear aspect, ladder staircase to:
Attic/Storage Room: 13' x 12'5" (3.96m x 3.78m) at base height.
With sloping apexes, two velux windows to the front aspect, balustrade, mains smoke detector.
Return staircase to the first floor landing:
With access to all remaining accommodation, velux window to the front aspect and door to:
Bedroom One: 12'6" x 12'5" (3.81m x 3.78m)
With oak flooring, television point, fitting corner cupboard, radiator, window to the rear aspect overlooking the garden.
Bedroom Two: 13'7" x 5'10" reducing to 5'2" (4.14m x 1.78m reducing to 1.57m)
With ornate stained glass window to the landing, radiator, windows to the side and rear aspects.
Bedroom Three: 12'6" x 7'5" reducing to 4'9" (3.81m x 2.26m reducing to 1.45m)
With radiator, window to the front aspect overlooking village church.
Family Bathroom: 8'4" x 7'5" (2.54m x 2.26m)
With white suite comprising of feature roll top bath, Victorian style h & c mixer with shower attachment, low level WC, pedestal wash hand basin, heated towel rail, shaver socket, Halogen lighting with dimmer cord, oak floor, obscure window to the rear aspect. Shower enclosure with wall mounted Triton electric shower and glazed pivot door.
OUTSIDE:
Front Garden:
Five bar gate leads to a tarmacadam drive with vehicular parking. The garden enjoys a southerly aspect, mainly laid to lawn with borders and a side access to:
Rear Garden: Mainly laid to lawn with central raised feature flower bed, trellis arch to the seating area, mature specimen trees and shrubs to the boundaries. Summer house 10'7" x 10'7" with double doors, two windows and
power connected. Greenhouse, oil tank and outside tap.
Close boarded fencing leads round to:
Detached Timber Frame Barn:
Situated on a plot of approx 23m x 15m - With lapsed planning to provide separate dwelling, ideal for conversion to annex (STPP).
As Estate Agents, we are required to obtain identification from buyers/sellers in the form of either the photo page of
a driving licence or passport, the document must still be valid for use. In addition, we will request proof of address in the form of a utility bill (with the name and address of the buyer clearly marked within the document). This must not
be more than three months old. Under the terms of the regulations, we are also required to clarify, where the purchase funds will be obtained from.
EPC rating: 'D'
Freehold - Council tax band: 'F' - Babergh & Mid Suffolk District Council
Council Tax Band: F
Tenure: Freehold
Parking options: Driveway
Garden details: Enclosed Garden, Front Garden, Rear Garden
Electricity supply: Mains
Heating: Oil
Water supply: Mains
Sewerage: Mains
Viewing
Please contact us on 01728 860699 if you wish to arrange a viewing appointment for this property, or require further information.
Energy Performance Certificate
Click here to view the Energy Efficiency Rating and Environmental Impact Rating for this property.
Hamilton Smith - IP16 endeavour to maintain accurate depictions of properties in Virtual Tours, Floor Plans and descriptions, however, these are intended only as a guide and purchasers must satisfy themselves by personal inspection.
This individual house is situated in Water Lane in the centre of this popular village, the property enjoys a quiet position just two minutes walk away from the High Street. The property presents painted rendered elevations under an interlocking pantile roof and is of good proportions, sitting centrally within its plot. The property provides light and spacious accommodation over two floors with two bedrooms on the ground floor and three on the first floor all with access to bathroom facilities.
Situated in established surroundings, at the rear of the property is a detached barn which has previously obtained planning as a separate dwelling (standing within its own grounds and own access), please note this would have to be renewed in order for development.
FULL DETAILS AND APPROXIMATE ROOM SIZES ARE AS FOLLOWS:
Storm porch with solid wood entrance door into:
Entrance Hall: 7'10" x 5'5" (2.39m x 1.65m) arch opening to 15'10" max x 9'5" (4.83m x 2.87m)
With access to most of the ground floor accommodation, staircase to the first floor with cupboard under, storage cupboard with complimentary shelves, airing cupboard housing hot water cylinder, two radiators, part brick pamment flooring and part oak floor, window to the side aspect and door to:
Cloakroom: 7'1" x 2'10" (2.16m x 0.86m)
With white ceramic suite comprising of dual flush low level WC, wall mounted wash hand basin, stone tiled splash backs, radiator, oak flooring, obscure window to the side aspect, extractor.
Sitting Room/Diner: 19'3" x 10'7" (5.87m x 3.23m) plus 9'4" x 8'5" (2.84m x 2.56m)
'L' shaped room with feature open fireplace incorporating a wood burning stove with wooden mantel and raised slate hearth, three radiators, television point, smoke detector, double glazed sliding patio doors to paved courtyard area and windows to the front and side aspects.
Kitchen/Breakfast Room: 13'7" x 12'2" (4.14m x 3.71m)
Fitted with high and low level oak units, cupboards and drawers under roll edge solid granite work surfaces, inset one and half bowl composite sink and single drainer with h & c mixer over, stone wall tiles. Kenwood range cooker with five ring halogen hob, stainless steel chimney style extractor and splash back over, brushed stainless steel shelving, part slate and part oak flooring, larder cupboard, windows to the rear and side aspects.
Bedroom: 13'7" x 11'10" (4.14m x 3.61m)
Situated off hallway, radiator, windows to the rear and side aspects.
Shower Room: 9'5" x 5'1" (2.87m x 1.55m) + 7'2" x 3'10"
With walk in wet room shower, wall mounted mixer shower, inset wash hand basin with vanity cupboard under. Half tiled limestone effect wall tiles and splash backs, two heated towel rail radiators, extractor, obscure windows to the side and front aspects. Second wash hand basin and wc, door to:
Rear Entrance Hall: 6' x 5'5" (1.83m x 1.65m)
With stable door to the rear garden, access to the Kitchen and Reception/Bedroom Five, radiator, window to the
side aspect, door to:
Living Room/Bedroom Five: 17'4" x 13'1" (5.28m x 3.99m) plus 6'8" x 2'10" (2.03m x 0.86m) alcove
With stripped wood floor, two radiators, freestanding Grant oil fired boiler, two windows to the front aspect and window to the rear aspect, ladder staircase to:
Attic/Storage Room: 13' x 12'5" (3.96m x 3.78m) at base height.
With sloping apexes, two velux windows to the front aspect, balustrade, mains smoke detector.
Return staircase to the first floor landing:
With access to all remaining accommodation, velux window to the front aspect and door to:
Bedroom One: 12'6" x 12'5" (3.81m x 3.78m)
With oak flooring, television point, fitting corner cupboard, radiator, window to the rear aspect overlooking the garden.
Bedroom Two: 13'7" x 5'10" reducing to 5'2" (4.14m x 1.78m reducing to 1.57m)
With ornate stained glass window to the landing, radiator, windows to the side and rear aspects.
Bedroom Three: 12'6" x 7'5" reducing to 4'9" (3.81m x 2.26m reducing to 1.45m)
With radiator, window to the front aspect overlooking village church.
Family Bathroom: 8'4" x 7'5" (2.54m x 2.26m)
With white suite comprising of feature roll top bath, Victorian style h & c mixer with shower attachment, low level WC, pedestal wash hand basin, heated towel rail, shaver socket, Halogen lighting with dimmer cord, oak floor, obscure window to the rear aspect. Shower enclosure with wall mounted Triton electric shower and glazed pivot door.
OUTSIDE:
Front Garden:
Five bar gate leads to a tarmacadam drive with vehicular parking. The garden enjoys a southerly aspect, mainly laid to lawn with borders and a side access to:
Rear Garden: Mainly laid to lawn with central raised feature flower bed, trellis arch to the seating area, mature specimen trees and shrubs to the boundaries. Summer house 10'7" x 10'7" with double doors, two windows and
power connected. Greenhouse, oil tank and outside tap.
Close boarded fencing leads round to:
Detached Timber Frame Barn:
Situated on a plot of approx 23m x 15m - With lapsed planning to provide separate dwelling, ideal for conversion to annex (STPP).
As Estate Agents, we are required to obtain identification from buyers/sellers in the form of either the photo page of
a driving licence or passport, the document must still be valid for use. In addition, we will request proof of address in the form of a utility bill (with the name and address of the buyer clearly marked within the document). This must not
be more than three months old. Under the terms of the regulations, we are also required to clarify, where the purchase funds will be obtained from.
EPC rating: 'D'
Freehold - Council tax band: 'F' - Babergh & Mid Suffolk District Council
Council Tax Band: F
Tenure: Freehold
Parking options: Driveway
Garden details: Enclosed Garden, Front Garden, Rear Garden
Electricity supply: Mains
Heating: Oil
Water supply: Mains
Sewerage: Mains
Viewing
Please contact us on 01728 860699 if you wish to arrange a viewing appointment for this property, or require further information.
Energy Performance Certificate
Click here to view the Energy Efficiency Rating and Environmental Impact Rating for this property.
Hamilton Smith - IP16 endeavour to maintain accurate depictions of properties in Virtual Tours, Floor Plans and descriptions, however, these are intended only as a guide and purchasers must satisfy themselves by personal inspection.

