Full Description
SUPERIOR FOUR BEDROOM DETACHED HOUSE, situated in a select close of just three other properties, VIEWS TO THE CHURCH.
ABOUT THE PROPERTY
The house was originally built in 1997 and offers good family sized accommodation, with approximately 1550 sq ft of well planned floor space. Attractively set, the house overlooks the Church and therefore offers an established outlook. Approached via curved brick edged walling, the property offers off-road parking and a tucked away double garage with matured gardens. Features include two reception rooms, spacious fitted kitchen/breakfast room with separate utility room and cloakroom. Upstairs there is a master bedroom with ensuite shower room, three further bedrooms and family bathroom which also incorporates a separate shower cubicle. The property is being offered 'For Sale' with no onward chain.
FULL DETAILS AND APPROXIMATE ROOM SIZES ARE AS FOLLOWS:
Approached from an open recessed porch into:
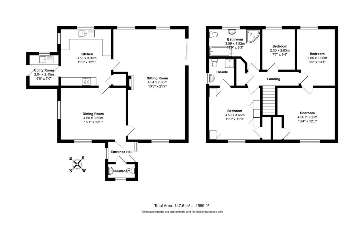
Entrance Hall:
Radiator, window to front aspect, wall mounted heating thermostat, door to:
Cloakroom:
Comprising of a low level w.c., vanity unit with inset wash hand basin, tiled splash back, opaque window, radiator.
Sitting Room: 25'7" x 13'3" increasing to 16'7" (7.80m x 4.04m increasing to 5.05m)
Feature red brick fireplace with wood burning stove, double aspect windows with also a glazed sliding patio door opening onto the patio. Television and telephone points, two radiators.
Dining Room: 15'2" x 12' (4.62m x 3.66m)
Double aspect windows, radiator, with stairs leading to the first floor with cupboard under.
Kitchen/Breakfast Room: 13'1" x 11'9" (3.99m x 3.58m)
Fitted with a good range of wooden fronted units with cupboards and drawers under work surfaces.
Integrated electric hob, Bosch eye level double oven, extractor, plumbing for dishwasher. Single drainer sink unit with mixer tap and drinking tap combined with water softener.
Telephone point, radiator, double aspect windows offer views over the enclosed gardens.
Utility Room: 7'2" x 6'7" (2.18m x 2.01m)
Fitted with further work surface and stainless steel sink. External vent for tumble drier, plumbing for washing machine, extractor fan, Grant oil fired boiler supplying domestic hot water and heating. Window and outside door overlooking the garden
First Floor Landing:
With walk-in airing cupboard housing hot water tank and immersion, complimentary shelving and timer control.
Master Bedroom: 12' x 11'10" (3.66m x 3.61m)
Fitted with a range of bedside cabinets, wardrobes and chest of drawers. Walk-in wardrobe cupboard, window to front aspect, radiator, door to:
Ensuite Shower Room:
White suite comprising of a wash basin, low level w.c., corner shower cubicle housing power shower, radiator, extractor fan, opaque window to side aspect.
Bedroom Two: 12'2" x 11'10" (3.71m x 3.61m)
With built-in wardrobe cupboard, radiator, recess providing perfect space for a freestanding piece of bedroom furniture, window to front aspect overlooking the front garden.
Bedroom Three: 13' x 8'7" (3.96m x 2.62m)
Radiator, window overlooking the pretty rear garden.
Bedroom Four: 9'7" x 7'7" (2.92m x 2.31m)
Radiator, television point, window overlooking the rear garden.
Family Bathroom:
Of good proportions, comprising of a paneled bath, low level w.c., pedestal wash basin, separate shower enclosure. Tiled walls, radiator, opaque window to rear aspect.
OUTSIDE
Tucked away behind a decorative curved red brick wall, the house is approached over a brick paved driveway which in turn offers a parking area leading to the DETACHED DOUBLE GARAGE (approx. 18'6" x 18'1"). With twin up-and-over doors, power and light connected, courtesy door to the side.
The gardens are enclosed by a mixture of close boarded fencing and a continuation of the red brick walling offering a secluded and secure setting. There is a side access gate for ease of access, the mostly southerly facing rear and side gardens are mainly laid to lawn with established well stocked flower and shrub beds. The garden also has a timber shed, outside tap and an oil tank (new in 2024).
Council: Babergh & Mid Suffolk District Council
Tax band: 'F'
EPC rating: 'D'
Council Tax Band: F
Tenure: Freehold
Garden details: Enclosed Garden, Front Garden, Rear Garden
Electricity supply: Mains
Heating: Oil
Viewing
Please contact us on 01728 860699 if you wish to arrange a viewing appointment for this property, or require further information.
Energy Performance Certificate
Click here to view the Energy Efficiency Rating and Environmental Impact Rating for this property.
Hamilton Smith - IP16 endeavour to maintain accurate depictions of properties in Virtual Tours, Floor Plans and descriptions, however, these are intended only as a guide and purchasers must satisfy themselves by personal inspection.
ABOUT THE PROPERTY
The house was originally built in 1997 and offers good family sized accommodation, with approximately 1550 sq ft of well planned floor space. Attractively set, the house overlooks the Church and therefore offers an established outlook. Approached via curved brick edged walling, the property offers off-road parking and a tucked away double garage with matured gardens. Features include two reception rooms, spacious fitted kitchen/breakfast room with separate utility room and cloakroom. Upstairs there is a master bedroom with ensuite shower room, three further bedrooms and family bathroom which also incorporates a separate shower cubicle. The property is being offered 'For Sale' with no onward chain.
FULL DETAILS AND APPROXIMATE ROOM SIZES ARE AS FOLLOWS:
Approached from an open recessed porch into:
Entrance Hall:
Radiator, window to front aspect, wall mounted heating thermostat, door to:
Cloakroom:
Comprising of a low level w.c., vanity unit with inset wash hand basin, tiled splash back, opaque window, radiator.
Sitting Room: 25'7" x 13'3" increasing to 16'7" (7.80m x 4.04m increasing to 5.05m)
Feature red brick fireplace with wood burning stove, double aspect windows with also a glazed sliding patio door opening onto the patio. Television and telephone points, two radiators.
Dining Room: 15'2" x 12' (4.62m x 3.66m)
Double aspect windows, radiator, with stairs leading to the first floor with cupboard under.
Kitchen/Breakfast Room: 13'1" x 11'9" (3.99m x 3.58m)
Fitted with a good range of wooden fronted units with cupboards and drawers under work surfaces.
Integrated electric hob, Bosch eye level double oven, extractor, plumbing for dishwasher. Single drainer sink unit with mixer tap and drinking tap combined with water softener.
Telephone point, radiator, double aspect windows offer views over the enclosed gardens.
Utility Room: 7'2" x 6'7" (2.18m x 2.01m)
Fitted with further work surface and stainless steel sink. External vent for tumble drier, plumbing for washing machine, extractor fan, Grant oil fired boiler supplying domestic hot water and heating. Window and outside door overlooking the garden
First Floor Landing:
With walk-in airing cupboard housing hot water tank and immersion, complimentary shelving and timer control.
Master Bedroom: 12' x 11'10" (3.66m x 3.61m)
Fitted with a range of bedside cabinets, wardrobes and chest of drawers. Walk-in wardrobe cupboard, window to front aspect, radiator, door to:
Ensuite Shower Room:
White suite comprising of a wash basin, low level w.c., corner shower cubicle housing power shower, radiator, extractor fan, opaque window to side aspect.
Bedroom Two: 12'2" x 11'10" (3.71m x 3.61m)
With built-in wardrobe cupboard, radiator, recess providing perfect space for a freestanding piece of bedroom furniture, window to front aspect overlooking the front garden.
Bedroom Three: 13' x 8'7" (3.96m x 2.62m)
Radiator, window overlooking the pretty rear garden.
Bedroom Four: 9'7" x 7'7" (2.92m x 2.31m)
Radiator, television point, window overlooking the rear garden.
Family Bathroom:
Of good proportions, comprising of a paneled bath, low level w.c., pedestal wash basin, separate shower enclosure. Tiled walls, radiator, opaque window to rear aspect.
OUTSIDE
Tucked away behind a decorative curved red brick wall, the house is approached over a brick paved driveway which in turn offers a parking area leading to the DETACHED DOUBLE GARAGE (approx. 18'6" x 18'1"). With twin up-and-over doors, power and light connected, courtesy door to the side.
The gardens are enclosed by a mixture of close boarded fencing and a continuation of the red brick walling offering a secluded and secure setting. There is a side access gate for ease of access, the mostly southerly facing rear and side gardens are mainly laid to lawn with established well stocked flower and shrub beds. The garden also has a timber shed, outside tap and an oil tank (new in 2024).
Council: Babergh & Mid Suffolk District Council
Tax band: 'F'
EPC rating: 'D'
Council Tax Band: F
Tenure: Freehold
Garden details: Enclosed Garden, Front Garden, Rear Garden
Electricity supply: Mains
Heating: Oil
Viewing
Please contact us on 01728 860699 if you wish to arrange a viewing appointment for this property, or require further information.
Energy Performance Certificate
Click here to view the Energy Efficiency Rating and Environmental Impact Rating for this property.
Hamilton Smith - IP16 endeavour to maintain accurate depictions of properties in Virtual Tours, Floor Plans and descriptions, however, these are intended only as a guide and purchasers must satisfy themselves by personal inspection.

