- 3 Bedroom semi detached
- 2 conservatories
- Wood burners
- Village location
- Large garden
- Views over fields at the rear
- Ideal for a young family
Full Description
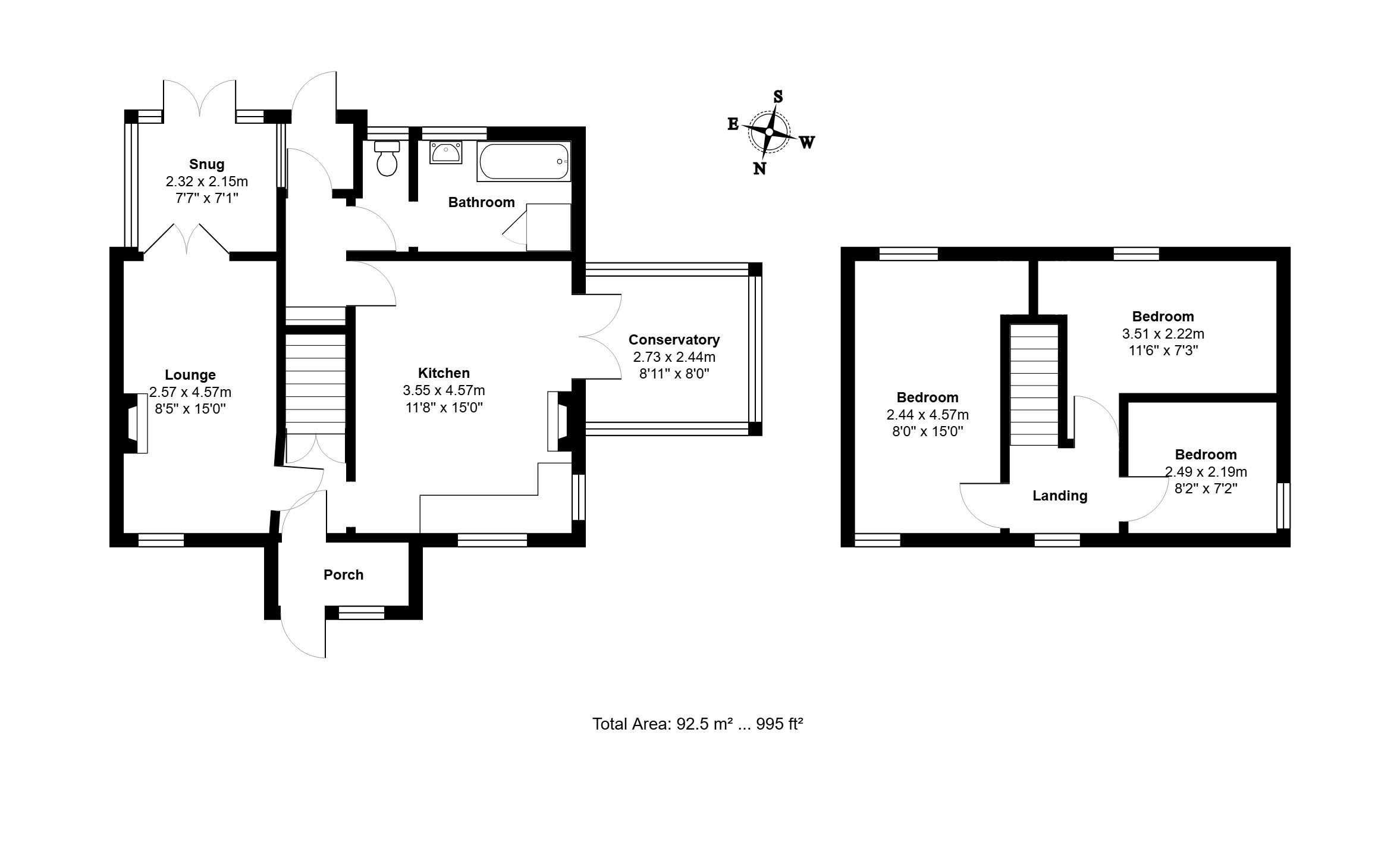
This charming three-bedroom, semi-detached home is set in the peaceful village of Sibton, enjoying a large south-facing garden with open countryside views to the rear. Thoughtfully maintained, the property combines character features with generous living space, making it an ideal home for a young family.
This charming three-bedroom, semi-detached home is set in the peaceful village of Sibton, enjoying a large south-facing garden with open countryside views to the rear. Thoughtfully maintained, the property combines character features with generous living space, making it an ideal home for a young family.
A glazed timber front door opens into a welcoming porch with a window to the front and wood flooring. From here, a secondary glazed door leads into the inner hallway, where a wood laminate floor runs through, and an under-stair storage cupboard provides practical space.
The living room is light and inviting, with a front-facing window, fitted bookshelves, and a wooden mantelpiece with inset tiled hearth and wood-burning stove. Double doors open into a conservatory at the rear, which is flooded with natural light from its surrounding windows and offers direct access to the garden.
The kitchen is fitted with a range of low-level units, open shelving, and a butler sink with mixer tap. There is space for a washing machine, fridge, and freezer, along with a freestanding electric oven. A multi-fuel burner adds a cosy focal point. Double doors open to a second conservatory with windows to the front, rear, and side -ideal as a dining space or relaxation area.
To the rear of the ground floor is a back porch with access to the garden, and the family bathroom, which includes a panelled bath with overhead electric shower, pedestal wash basin, airing cupboard with pressurised cylinder, and a window to the rear.
Upstairs, the landing has a front-facing window and loft access. The main bedroom overlooks the rear garden and includes fitted storage cupboards. The second bedroom benefits from dual-aspect windows to the front and rear, a built-in cupboard, and a decorative wooden mantelpiece with a feature fireplace. The third bedroom is front-facing and would also make an ideal home office or nursery. All three bedrooms, as well as the living room, feature attractive picture rails.
Outside, the property is approached via a gated pathway leading through a mature front garden with a lawn, established trees, and shrubs. A side gate opens into the generously sized south-facing rear garden, which is fully enclosed and beautifully maintained. It has been naturally landscaped with a variety of grasses, hedges, and planting, and includes multiple storage sheds, a wood store, and a summer house with power connected. There are several seating areas to enjoy the sunshine and views, making the garden a true highlight of this home.
LOCAL COUNCIL East Suffolk House, Station Road, Melton, Woodbridge, IP12 1RT
COUNCIL TAX BAND B
SERVICES Electricity, mains drains and water are connected to the property.
AGENTS NOTE Items depicted in the photographs are not necessarily included in the sale. Please note that there is no allocated parking. The current owners park in the road opposite.
Viewing
Please contact us on 01728 833007 if you wish to arrange a viewing appointment for this property, or require further information.
Energy Performance Certificate
Click here to view the Energy Efficiency Rating and Environmental Impact Rating for this property.
Hamilton Smith - IP16 endeavour to maintain accurate depictions of properties in Virtual Tours, Floor Plans and descriptions, however, these are intended only as a guide and purchasers must satisfy themselves by personal inspection.
This charming three-bedroom, semi-detached home is set in the peaceful village of Sibton, enjoying a large south-facing garden with open countryside views to the rear. Thoughtfully maintained, the property combines character features with generous living space, making it an ideal home for a young family.
A glazed timber front door opens into a welcoming porch with a window to the front and wood flooring. From here, a secondary glazed door leads into the inner hallway, where a wood laminate floor runs through, and an under-stair storage cupboard provides practical space.
The living room is light and inviting, with a front-facing window, fitted bookshelves, and a wooden mantelpiece with inset tiled hearth and wood-burning stove. Double doors open into a conservatory at the rear, which is flooded with natural light from its surrounding windows and offers direct access to the garden.
The kitchen is fitted with a range of low-level units, open shelving, and a butler sink with mixer tap. There is space for a washing machine, fridge, and freezer, along with a freestanding electric oven. A multi-fuel burner adds a cosy focal point. Double doors open to a second conservatory with windows to the front, rear, and side -ideal as a dining space or relaxation area.
To the rear of the ground floor is a back porch with access to the garden, and the family bathroom, which includes a panelled bath with overhead electric shower, pedestal wash basin, airing cupboard with pressurised cylinder, and a window to the rear.
Upstairs, the landing has a front-facing window and loft access. The main bedroom overlooks the rear garden and includes fitted storage cupboards. The second bedroom benefits from dual-aspect windows to the front and rear, a built-in cupboard, and a decorative wooden mantelpiece with a feature fireplace. The third bedroom is front-facing and would also make an ideal home office or nursery. All three bedrooms, as well as the living room, feature attractive picture rails.
Outside, the property is approached via a gated pathway leading through a mature front garden with a lawn, established trees, and shrubs. A side gate opens into the generously sized south-facing rear garden, which is fully enclosed and beautifully maintained. It has been naturally landscaped with a variety of grasses, hedges, and planting, and includes multiple storage sheds, a wood store, and a summer house with power connected. There are several seating areas to enjoy the sunshine and views, making the garden a true highlight of this home.
LOCAL COUNCIL East Suffolk House, Station Road, Melton, Woodbridge, IP12 1RT
COUNCIL TAX BAND B
SERVICES Electricity, mains drains and water are connected to the property.
AGENTS NOTE Items depicted in the photographs are not necessarily included in the sale. Please note that there is no allocated parking. The current owners park in the road opposite.
Viewing
Please contact us on 01728 833007 if you wish to arrange a viewing appointment for this property, or require further information.
Energy Performance Certificate
Click here to view the Energy Efficiency Rating and Environmental Impact Rating for this property.
Hamilton Smith - IP16 endeavour to maintain accurate depictions of properties in Virtual Tours, Floor Plans and descriptions, however, these are intended only as a guide and purchasers must satisfy themselves by personal inspection.

