- 2 Bedroom semi detached
- Extended at the rear
- Excellent condition
- Shower room
- Gas central heating
- Water softener
- Garage
- Private Garden
- Off road parking
Full Description
This extended two-bedroom semi-detached home in Knodishall offers modern, practical living in a desirable Suffolk village setting. With its extended sitting room, generous parking, sizeable garage, and attractive garden, it will appeal to first-time buyers, families, professionals, and downsizers alike.
The Suffolk village of Knodishall is a welcoming and well-connected community, perfectly placed between the heritage coast and market towns such as Saxmundham and Leiston. Just a short drive from the popular seaside destination of Aldeburgh, Knodishall offers local amenities including a village pub, church, primary school, and easy access to stunning countryside and coastal walks. Its peaceful setting, combined with excellent road links, makes it ideal for families, professionals, and those seeking a quieter pace of life without being far from town and coast.
Accommodation
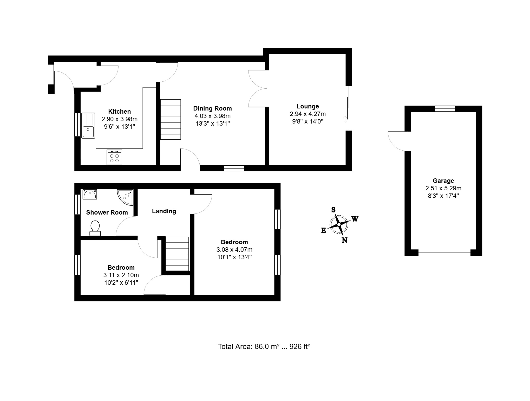
Entrance Porch
Approached via a uPVC glazed entrance door with side window, the porch provides a practical space for shoes and coats. There is also a built-in meter cupboard and additional storage, with a glazed timber door opening into the kitchen.
Kitchen
A bright and well-planned kitchen with a window to the front aspect. Fitted with a range of matching wall and base units with roll-edge work surfaces, tiled splashbacks, and upstand. Integrated appliances include an electric oven, four-ring gas hob, and extractor hood. Space and plumbing are provided for a washing machine and tall fridge/freezer. A double drainer stainless steel sink unit with mixer tap, additional drinking water tap, and fitted water softener add extra convenience. Radiator and attractive wooden flooring.
Dining Area
Accessed from the kitchen via a glazed door, this versatile space features a side window, radiator, and stairs rising to the first floor. With wooden flooring throughout, it also benefits from glazed double doors leading to the sitting room, creating a natural flow through the ground floor.
Sitting Room
Forming part of the rear extension, this generous reception room offers a warm and welcoming living space. With wooden flooring, radiator, and large sliding patio doors opening onto the rear garden, it is an ideal spot for relaxing or entertaining.
First Floor Landing
Stairs from the dining area rise to the first floor landing, with loft access via hatch.
Bedroom One
A spacious double bedroom with two rear-facing windows providing ample natural light. Radiator.
Bedroom Two
Another good-sized bedroom with front aspect window and radiator. A built-in storage cupboard houses the wall-mounted gas-fired combi boiler.
Shower Room
A modern, well-fitted shower room comprising corner cubicle with rainfall shower head and glass screen, wash hand basin set in vanity storage unit, and low-level WC. Heated towel rail, extractor fan, ceiling spotlights, and front-facing window.
Outside
Front Garden & Driveway
To the front, the property offers a lawned garden alongside a shingle driveway providing off-road parking for three to four vehicles. The driveway leads to a large single garage with newly replaced roof, electric roller door, power, lighting, and a fitted workbench-perfect for storage or hobbies.
Rear Garden
Fully enclosed and designed for ease of maintenance, the rear garden includes a large paved patio ideal for outdoor dining, a central lawn with established hedging providing privacy, and a substantial timber storage shed.
Summary
This extended two-bedroom semi-detached home in Knodishall offers modern, practical living in a desirable Suffolk village setting. With its extended sitting room, generous parking, sizeable garage, and attractive garden, it will appeal to first-time buyers, families, professionals, and downsizers alike.
LOCAL COUNCIL East Suffolk House, Station Road, Melton, Woodbridge, IP12 1RT
COUNCIL TAX BAND B
SERVICES Electricity, Gas, mains drains and water are connected to the property.
AGENST NOTE Items depicted in the photographs are not necessarily included in the sale
Viewing
Please contact us on 01728 833007 if you wish to arrange a viewing appointment for this property, or require further information.
Energy Performance Certificate
Click here to view the Energy Efficiency Rating and Environmental Impact Rating for this property.
Hamilton Smith - IP16 endeavour to maintain accurate depictions of properties in Virtual Tours, Floor Plans and descriptions, however, these are intended only as a guide and purchasers must satisfy themselves by personal inspection.
The Suffolk village of Knodishall is a welcoming and well-connected community, perfectly placed between the heritage coast and market towns such as Saxmundham and Leiston. Just a short drive from the popular seaside destination of Aldeburgh, Knodishall offers local amenities including a village pub, church, primary school, and easy access to stunning countryside and coastal walks. Its peaceful setting, combined with excellent road links, makes it ideal for families, professionals, and those seeking a quieter pace of life without being far from town and coast.
Accommodation
Entrance Porch
Approached via a uPVC glazed entrance door with side window, the porch provides a practical space for shoes and coats. There is also a built-in meter cupboard and additional storage, with a glazed timber door opening into the kitchen.
Kitchen
A bright and well-planned kitchen with a window to the front aspect. Fitted with a range of matching wall and base units with roll-edge work surfaces, tiled splashbacks, and upstand. Integrated appliances include an electric oven, four-ring gas hob, and extractor hood. Space and plumbing are provided for a washing machine and tall fridge/freezer. A double drainer stainless steel sink unit with mixer tap, additional drinking water tap, and fitted water softener add extra convenience. Radiator and attractive wooden flooring.
Dining Area
Accessed from the kitchen via a glazed door, this versatile space features a side window, radiator, and stairs rising to the first floor. With wooden flooring throughout, it also benefits from glazed double doors leading to the sitting room, creating a natural flow through the ground floor.
Sitting Room
Forming part of the rear extension, this generous reception room offers a warm and welcoming living space. With wooden flooring, radiator, and large sliding patio doors opening onto the rear garden, it is an ideal spot for relaxing or entertaining.
First Floor Landing
Stairs from the dining area rise to the first floor landing, with loft access via hatch.
Bedroom One
A spacious double bedroom with two rear-facing windows providing ample natural light. Radiator.
Bedroom Two
Another good-sized bedroom with front aspect window and radiator. A built-in storage cupboard houses the wall-mounted gas-fired combi boiler.
Shower Room
A modern, well-fitted shower room comprising corner cubicle with rainfall shower head and glass screen, wash hand basin set in vanity storage unit, and low-level WC. Heated towel rail, extractor fan, ceiling spotlights, and front-facing window.
Outside
Front Garden & Driveway
To the front, the property offers a lawned garden alongside a shingle driveway providing off-road parking for three to four vehicles. The driveway leads to a large single garage with newly replaced roof, electric roller door, power, lighting, and a fitted workbench-perfect for storage or hobbies.
Rear Garden
Fully enclosed and designed for ease of maintenance, the rear garden includes a large paved patio ideal for outdoor dining, a central lawn with established hedging providing privacy, and a substantial timber storage shed.
Summary
This extended two-bedroom semi-detached home in Knodishall offers modern, practical living in a desirable Suffolk village setting. With its extended sitting room, generous parking, sizeable garage, and attractive garden, it will appeal to first-time buyers, families, professionals, and downsizers alike.
LOCAL COUNCIL East Suffolk House, Station Road, Melton, Woodbridge, IP12 1RT
COUNCIL TAX BAND B
SERVICES Electricity, Gas, mains drains and water are connected to the property.
AGENST NOTE Items depicted in the photographs are not necessarily included in the sale
Viewing
Please contact us on 01728 833007 if you wish to arrange a viewing appointment for this property, or require further information.
Energy Performance Certificate
Click here to view the Energy Efficiency Rating and Environmental Impact Rating for this property.
Hamilton Smith - IP16 endeavour to maintain accurate depictions of properties in Virtual Tours, Floor Plans and descriptions, however, these are intended only as a guide and purchasers must satisfy themselves by personal inspection.

