- Stylishly presented throughout
- Spacious flexible family living
- Large entertainments/games room
- Striking modern fitted kitchen
- Luxury bathroom suites
- Delightful garden room
- Gas-fired heating
- Private enclosed gardens
- Garage, music room/home office & parking
Full Description
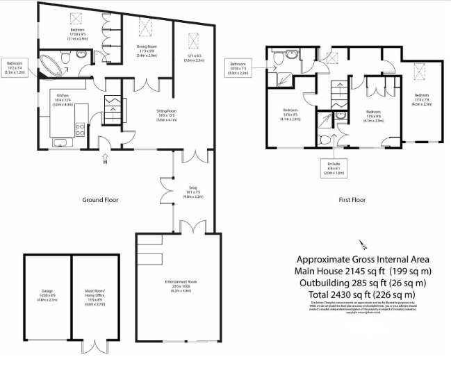
Occupying a delightful tucked-away position behind wrought iron gates, this deceptively spacious four-bedroom detached house offers generous and highly flexible family accommodation arranged over two floors. Stylishly presented throughout, the property benefits from a striking modern fitted kitchen, luxury bathroom suites, and an impressive entertainments/games room, alongside private enclosed gardens, off-road parking, a garage, and a separate music room or home office.
Occupying a delightful tucked-away position behind wrought iron gates, this deceptively spacious four-bedroom detached house offers generous and highly flexible family accommodation arranged over two floors. Stylishly presented throughout, the property benefits from a striking modern fitted kitchen, luxury bathroom suites, and an impressive entertainments/games room, alongside private enclosed gardens, off-road parking, a garage, and a separate music room or home office.
Accommodation
Part-glazed front door leading into the main hallway.
Entrance Hall
A welcoming space with radiator, stairs rising to the first floor, and doors leading to the principal ground-floor rooms.
Sitting Room
A spacious L-shaped living room with double doors to the front elevation, coved ceiling, radiator, wall lighting, and glazed double doors opening into both the dining room and the garden room. The room also opens into a cosy reading nook featuring a skylight, creating a calm and light-filled retreat.
Garden Room
An attractive additional reception space with Bifold doors opening onto the courtyard garden. Features include a vaulted ceiling, radiator, wall lighting, and glazed double doors leading through to the entertainments room.
Games / Entertainments Room
A superb, generously proportioned room offering excellent flexibility, ideal as a games room, home cinema, gym, or large home office. French doors open onto the front courtyard, complemented by coved ceiling, ceiling downlighters, and radiator.
Dining Room
A well-defined dining space with skylight, part-vaulted ceiling, radiator, and wall lighting, ideal for both family meals and entertaining.
Ground Floor Bedroom
A spacious double bedroom with part-vaulted ceiling, skylight, side-facing window, and radiator - perfect for guests or multi-generational living.
Luxury Family Bathroom
Beautifully fitted with a claw-and-ball foot freestanding roll-top bath with freestanding mixer tap and hand-held shower attachment, low-level WC, pedestal wash hand basin, fully tiled walls, heated towel ladder, ceiling downlighters, floor-level lighting, extractor fan, and frosted side window.
Kitchen
A striking modern fitted kitchen featuring a butler sink with mixer tap, work surfaces with base cupboards and soft-closing drawers, eye-level units, integrated fridge/freezer, built-in Zanussi double oven, and Zanussi induction hob. Fully tiled walls, ceiling downlighters, space and plumbing for a washing machine and dishwasher, and windows to both the front and side elevations complete this stylish and practical space.
First Floor
Galleried Landing
With skylight, access to the loft, and useful eaves storage cupboard.
Bedroom One
A generous double bedroom with front-facing window, tall wall-mounted radiator, fitted wardrobes, and double doors opening to the en-suite shower room.
En-Suite Shower Room
Fully tiled shower cubicle, counter-mounted wash hand basin with storage beneath, concealed-cistern WC, tiled flooring, heated towel ladder, extractor fan, embedded lighting, and frosted front-facing window.
Bedroom Two
A well-proportioned bedroom with multiple skylights to both front and rear elevations and radiator.
Shower Room
Comprising a built-in shower cubicle, vanity wash hand basin, concealed-cistern WC, wall-mounted heated towel ladder, fully tiled walls with embedded lighting, tiled flooring, extractor fan, and cupboard housing the Ideal gas-fired boiler. Frosted side window.
Bedroom Three
A further double bedroom with front-facing window, fitted wardrobes, and tall wall-mounted radiator.
Outside
The property is accessed via recently fitted wrought iron gates opening onto an attractive block-paved driveway and courtyard, providing off-road parking and access to the garage, music room/home office, and entertainments room.
A pedestrian gate leads to a beautifully maintained enclosed garden, featuring an outside kitchen with canopy and power sockets, lighting and fireplace. As well as an attractive patio area accessed directly from the garden room. The garden also benefits from outside lighting and power sockets, making it ideal for entertaining.
Music Room / Home Office
A separate and versatile outbuilding with power, lighting, and French doors opening onto the front courtyard - ideal for home working, hobbies, or creative use.
Location - Needham Market
Needham Market is a highly regarded and characterful small town set in the heart of Mid Suffolk, ideally located between Bury St Edmunds and Ipswich. The town offers a strong sense of community alongside an excellent range of everyday amenities, including independent shops, a butcher, baker, cafés, public houses, takeaways, a post office, library, dentist, Co-op supermarket, and a well-regarded primary school. Alder Carr Farm is nearby, offering fresh local produce and a popular restaurant.
Transport links are excellent, with both bus and rail services providing easy access to Stowmarket and Ipswich, where mainline rail connections run to London Liverpool Street. Needham Market is also well known for its vibrant local events, including street fairs and raft racing at Needham Lake, a designated Conservation Area offering scenic countryside walks.
Local Authority: Mid Suffolk District Council
Council Tax Band: E
Services: Mains water, drainage, and electricity. Gas-fired central heating.
Viewing
Please contact us on 01728 833007 if you wish to arrange a viewing appointment for this property, or require further information.
Energy Performance Certificate
Click here to view the Energy Efficiency Rating and Environmental Impact Rating for this property.
Hamilton Smith - IP16 endeavour to maintain accurate depictions of properties in Virtual Tours, Floor Plans and descriptions, however, these are intended only as a guide and purchasers must satisfy themselves by personal inspection.
Occupying a delightful tucked-away position behind wrought iron gates, this deceptively spacious four-bedroom detached house offers generous and highly flexible family accommodation arranged over two floors. Stylishly presented throughout, the property benefits from a striking modern fitted kitchen, luxury bathroom suites, and an impressive entertainments/games room, alongside private enclosed gardens, off-road parking, a garage, and a separate music room or home office.
Accommodation
Part-glazed front door leading into the main hallway.
Entrance Hall
A welcoming space with radiator, stairs rising to the first floor, and doors leading to the principal ground-floor rooms.
Sitting Room
A spacious L-shaped living room with double doors to the front elevation, coved ceiling, radiator, wall lighting, and glazed double doors opening into both the dining room and the garden room. The room also opens into a cosy reading nook featuring a skylight, creating a calm and light-filled retreat.
Garden Room
An attractive additional reception space with Bifold doors opening onto the courtyard garden. Features include a vaulted ceiling, radiator, wall lighting, and glazed double doors leading through to the entertainments room.
Games / Entertainments Room
A superb, generously proportioned room offering excellent flexibility, ideal as a games room, home cinema, gym, or large home office. French doors open onto the front courtyard, complemented by coved ceiling, ceiling downlighters, and radiator.
Dining Room
A well-defined dining space with skylight, part-vaulted ceiling, radiator, and wall lighting, ideal for both family meals and entertaining.
Ground Floor Bedroom
A spacious double bedroom with part-vaulted ceiling, skylight, side-facing window, and radiator - perfect for guests or multi-generational living.
Luxury Family Bathroom
Beautifully fitted with a claw-and-ball foot freestanding roll-top bath with freestanding mixer tap and hand-held shower attachment, low-level WC, pedestal wash hand basin, fully tiled walls, heated towel ladder, ceiling downlighters, floor-level lighting, extractor fan, and frosted side window.
Kitchen
A striking modern fitted kitchen featuring a butler sink with mixer tap, work surfaces with base cupboards and soft-closing drawers, eye-level units, integrated fridge/freezer, built-in Zanussi double oven, and Zanussi induction hob. Fully tiled walls, ceiling downlighters, space and plumbing for a washing machine and dishwasher, and windows to both the front and side elevations complete this stylish and practical space.
First Floor
Galleried Landing
With skylight, access to the loft, and useful eaves storage cupboard.
Bedroom One
A generous double bedroom with front-facing window, tall wall-mounted radiator, fitted wardrobes, and double doors opening to the en-suite shower room.
En-Suite Shower Room
Fully tiled shower cubicle, counter-mounted wash hand basin with storage beneath, concealed-cistern WC, tiled flooring, heated towel ladder, extractor fan, embedded lighting, and frosted front-facing window.
Bedroom Two
A well-proportioned bedroom with multiple skylights to both front and rear elevations and radiator.
Shower Room
Comprising a built-in shower cubicle, vanity wash hand basin, concealed-cistern WC, wall-mounted heated towel ladder, fully tiled walls with embedded lighting, tiled flooring, extractor fan, and cupboard housing the Ideal gas-fired boiler. Frosted side window.
Bedroom Three
A further double bedroom with front-facing window, fitted wardrobes, and tall wall-mounted radiator.
Outside
The property is accessed via recently fitted wrought iron gates opening onto an attractive block-paved driveway and courtyard, providing off-road parking and access to the garage, music room/home office, and entertainments room.
A pedestrian gate leads to a beautifully maintained enclosed garden, featuring an outside kitchen with canopy and power sockets, lighting and fireplace. As well as an attractive patio area accessed directly from the garden room. The garden also benefits from outside lighting and power sockets, making it ideal for entertaining.
Music Room / Home Office
A separate and versatile outbuilding with power, lighting, and French doors opening onto the front courtyard - ideal for home working, hobbies, or creative use.
Location - Needham Market
Needham Market is a highly regarded and characterful small town set in the heart of Mid Suffolk, ideally located between Bury St Edmunds and Ipswich. The town offers a strong sense of community alongside an excellent range of everyday amenities, including independent shops, a butcher, baker, cafés, public houses, takeaways, a post office, library, dentist, Co-op supermarket, and a well-regarded primary school. Alder Carr Farm is nearby, offering fresh local produce and a popular restaurant.
Transport links are excellent, with both bus and rail services providing easy access to Stowmarket and Ipswich, where mainline rail connections run to London Liverpool Street. Needham Market is also well known for its vibrant local events, including street fairs and raft racing at Needham Lake, a designated Conservation Area offering scenic countryside walks.
Local Authority: Mid Suffolk District Council
Council Tax Band: E
Services: Mains water, drainage, and electricity. Gas-fired central heating.
Viewing
Please contact us on 01728 833007 if you wish to arrange a viewing appointment for this property, or require further information.
Energy Performance Certificate
Click here to view the Energy Efficiency Rating and Environmental Impact Rating for this property.
Hamilton Smith - IP16 endeavour to maintain accurate depictions of properties in Virtual Tours, Floor Plans and descriptions, however, these are intended only as a guide and purchasers must satisfy themselves by personal inspection.

