Full Description
This extended two bedroom Victorian terraced house is located near to the high street in Needham market. This property offers living room, kitchen/diner, bathroom and a garden to rear. Perfect First Time Buy or Investment.
NEEDHAM MARKET:
Needham Market lies in the heart of Mid Suffolk between the towns of Bury St Edmunds and Ipswich. Facilities include butchers, bakers, post office, co-op supermarket and a number of individual shops. Needham Market also has a rail station with mainline connections to Ipswich and Stowmarket where in turn there are main line services to London Liverpool Street. The town also has the Needham Lake conservation area with a number of countryside walks and the county town of Ipswich is just eight miles away with all the social, shopping and leisure facilities.
FRONT ENTRANCE DOOR:
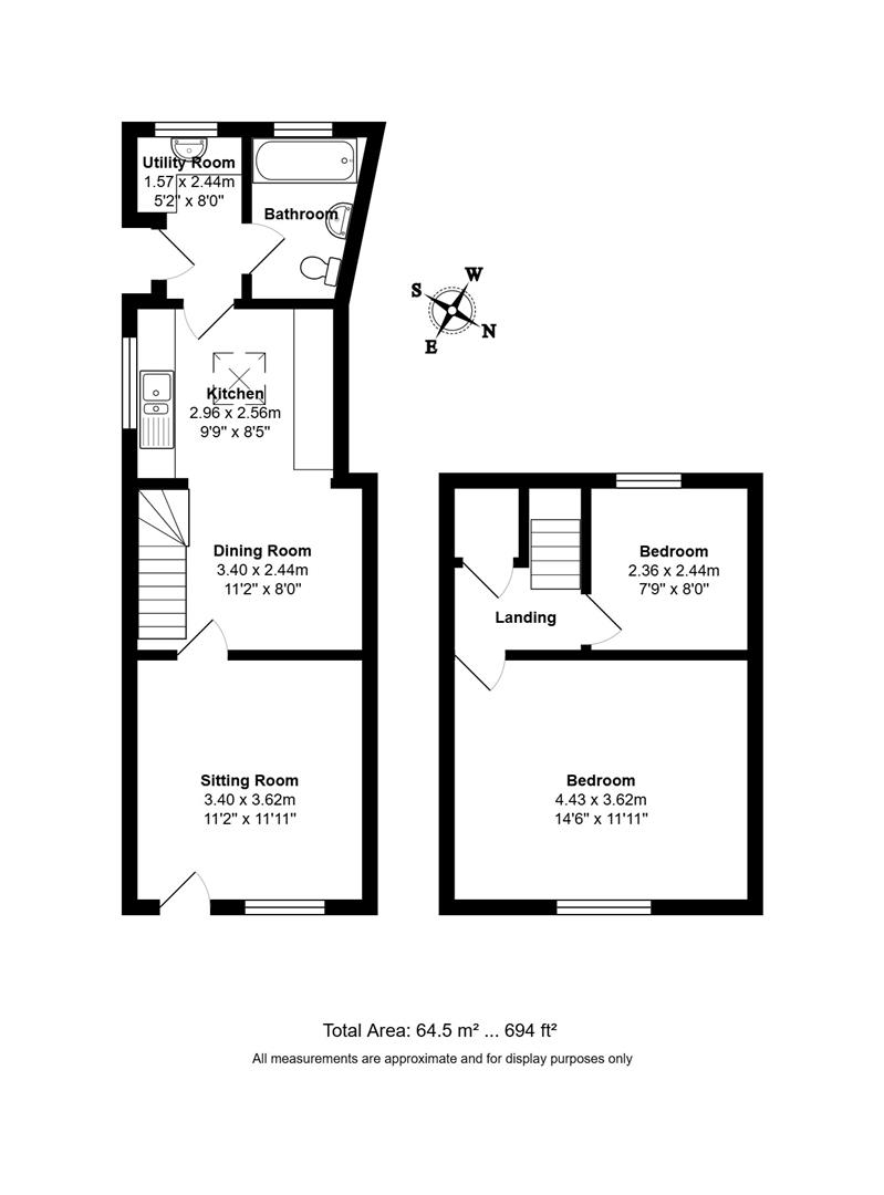
LIVING ROOM: (3.408 x 3.633 (11'2" x 11'11"))
Fireplace, radiator and open to....
KITCHEN/DINER: (3.321 x 5.085 (10'10" x 16'8"))
Stairs to first floor, radiator, window to side and velux window, range of wall and base units with work surfaces over and splash back tiles. Electric oven and hob and space for appliances, door to....
UTILITY ROOM: (2.458 x 1.503 (8'0" x 4'11"))
Door to outside and window to rear, sink with vanity cupboard below, space for washing machine and wall mounted boiler, door to....
BATHROOM:
Window to rear, bath, low level W/C, pedestal wash hand basin, tiled walls, radiator and loft access.
LANDING:
Airing cupboard, tank with shelving and radiator, doors to....
BEDROOM 1: (3.642 x 4.486 (11'11" x 14'8"))
Window to front and radiator
BEDROOM 2: (2.404 x 2.417 (7'10" x 7'11"))
Window to rear and radiator
OUTSIDE:
To the side of the property there is a passage way leading to the rear of the property. There is a rear garden which is mainly laid to lawn with garden shed.
AGENTS NOTE:
The vendor has advised that the boiler is likely to need replacing and there is damp at the front of the property.
Hamilton Smith Needham Market
01449 722 242
needham@hamilton-smith.com
www.hamilton-smith.com
Viewing
Please contact us on 01449 722242 if you wish to arrange a viewing appointment for this property, or require further information.
Energy Performance Certificate
Click here to view the Energy Efficiency Rating and Environmental Impact Rating for this property.
Hamilton Smith - IP16 endeavour to maintain accurate depictions of properties in Virtual Tours, Floor Plans and descriptions, however, these are intended only as a guide and purchasers must satisfy themselves by personal inspection.
NEEDHAM MARKET:
Needham Market lies in the heart of Mid Suffolk between the towns of Bury St Edmunds and Ipswich. Facilities include butchers, bakers, post office, co-op supermarket and a number of individual shops. Needham Market also has a rail station with mainline connections to Ipswich and Stowmarket where in turn there are main line services to London Liverpool Street. The town also has the Needham Lake conservation area with a number of countryside walks and the county town of Ipswich is just eight miles away with all the social, shopping and leisure facilities.
FRONT ENTRANCE DOOR:
LIVING ROOM: (3.408 x 3.633 (11'2" x 11'11"))
Fireplace, radiator and open to....
KITCHEN/DINER: (3.321 x 5.085 (10'10" x 16'8"))
Stairs to first floor, radiator, window to side and velux window, range of wall and base units with work surfaces over and splash back tiles. Electric oven and hob and space for appliances, door to....
UTILITY ROOM: (2.458 x 1.503 (8'0" x 4'11"))
Door to outside and window to rear, sink with vanity cupboard below, space for washing machine and wall mounted boiler, door to....
BATHROOM:
Window to rear, bath, low level W/C, pedestal wash hand basin, tiled walls, radiator and loft access.
LANDING:
Airing cupboard, tank with shelving and radiator, doors to....
BEDROOM 1: (3.642 x 4.486 (11'11" x 14'8"))
Window to front and radiator
BEDROOM 2: (2.404 x 2.417 (7'10" x 7'11"))
Window to rear and radiator
OUTSIDE:
To the side of the property there is a passage way leading to the rear of the property. There is a rear garden which is mainly laid to lawn with garden shed.
AGENTS NOTE:
The vendor has advised that the boiler is likely to need replacing and there is damp at the front of the property.
Hamilton Smith Needham Market
01449 722 242
needham@hamilton-smith.com
www.hamilton-smith.com
Viewing
Please contact us on 01449 722242 if you wish to arrange a viewing appointment for this property, or require further information.
Energy Performance Certificate
Click here to view the Energy Efficiency Rating and Environmental Impact Rating for this property.
Hamilton Smith - IP16 endeavour to maintain accurate depictions of properties in Virtual Tours, Floor Plans and descriptions, however, these are intended only as a guide and purchasers must satisfy themselves by personal inspection.

